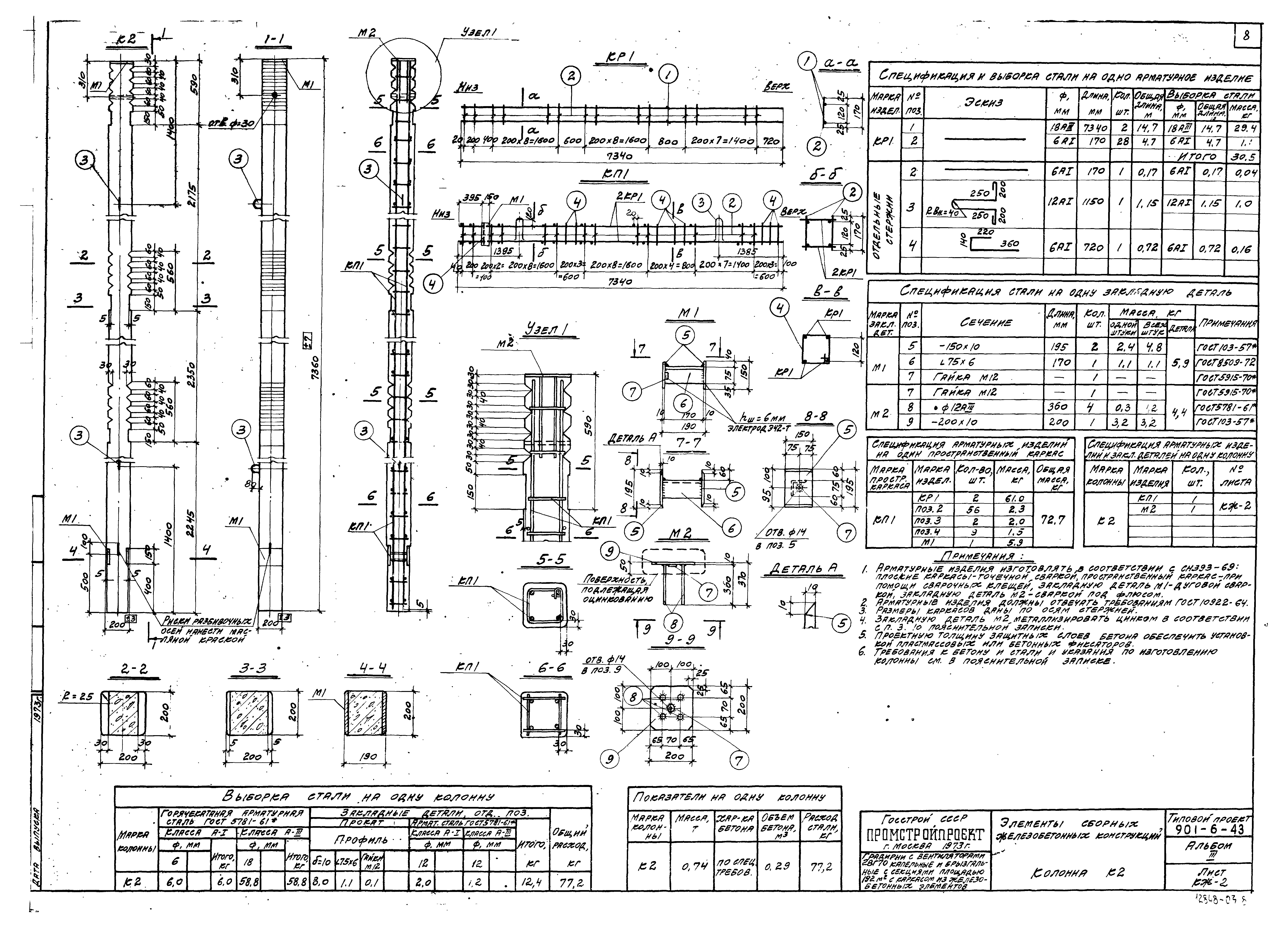
Скачать Типовой проект 901-6-51 Альбом III. Элементы сборных железобетонных конструкций (из ТП 901-6-43)Дата актуализации: 10.08.2017 Типовой проект 901-6-51
Альбом III. Элементы сборных железобетонных конструкций (из ТП 901-6-43)Обозначение: | Типовой проект 901-6-51 | Обозначение англ: | 901-6-51 | Статус: | отменен | Название рус.: | Альбом III. Элементы сборных железобетонных конструкций (из ТП 901-6-43) | Дата добавления в базу: | 12.02.2016 | Дата актуализации: | 05.05.2017 | Дата введения: | 01.07.1996 | Разработан: | Союзводоканалпроект
| Утверждён: | 12.06.1975 Главпромстройпроект Госстроя СССР (36)
| Расположен в: |
| Заменяет собой: | |
                         
|