Информационная система
«Ёшкин Кот»

Скачать базу одним архивом
Скачать обновления
История создания базы
Карта сайта

Скачать Типовой проект 903-4-178.94 Альбом 2. Теплотехнические решения. Архитектурно-строительные решения. Конструкции металлические. Внутренние водопровод и канализация

Дата актуализации: 10.08.2017

Типовой проект 903-4-178.94

Альбом 2. Теплотехнические решения. Архитектурно-строительные решения. Конструкции металлические. Внутренние водопровод и канализация

Обозначение: Типовой проект 903-4-178.94
Обозначение англ: 903-4-178.94
Статус:не определен законодательством
Название рус.:Альбом 2. Теплотехнические решения. Архитектурно-строительные решения. Конструкции металлические. Внутренние водопровод и канализация
Дата добавления в базу:01.09.2013
Дата актуализации:05.05.2017
Дата введения:31.10.1994
Оглавление:ТП 903-4-178.94-ТМ Теплотехнические решения ТМ
ТП 903-4-178.94-ТМ-1 Общие данные (начало) .
ТП 903-4-178.94-ТМ-2 Общие данные (продолжение)
ТП 903-4-178.94-ТМ-3 Общие данные (окончание)
ТП 903-4-178.94-ТМ-4 Схема трубопроводов
ТП 903-4-178.94-ТМ-5 Компоновка оборудования. План на отм. 0.000. Разрезы 1-1,2-2
ТП 903-4-178.94-ТМ-6 Трубопроводы. План на отм. 0.000. Разрезы 1-1,2-2 .
ТП 903-4-178.94-ТМ-7 Трубопроводы. Разрезы 3-3.. .5-5 .
ТП 903-4-178.94-АС Архитектурно-строительные решения АС
ТП 903-4-178.94-АС-1 Общие данные .
ТП 903-4-178.94-АС-2 План на отм. 0.000. Разрезы 1-1,2-2. Фасады Б-А, 1-2, А-Б, 2-1.
ТП 903-4-178.94-АС-3 Схемы расположения элементов ограждающих конструкции.
ТП 903-4-178.94-АС-4 Монтажные и маркировочные схемы ОКОН ОК-1, ОК-2.
ТП 903-4-178.94-АС-5 Узлы 1-4.
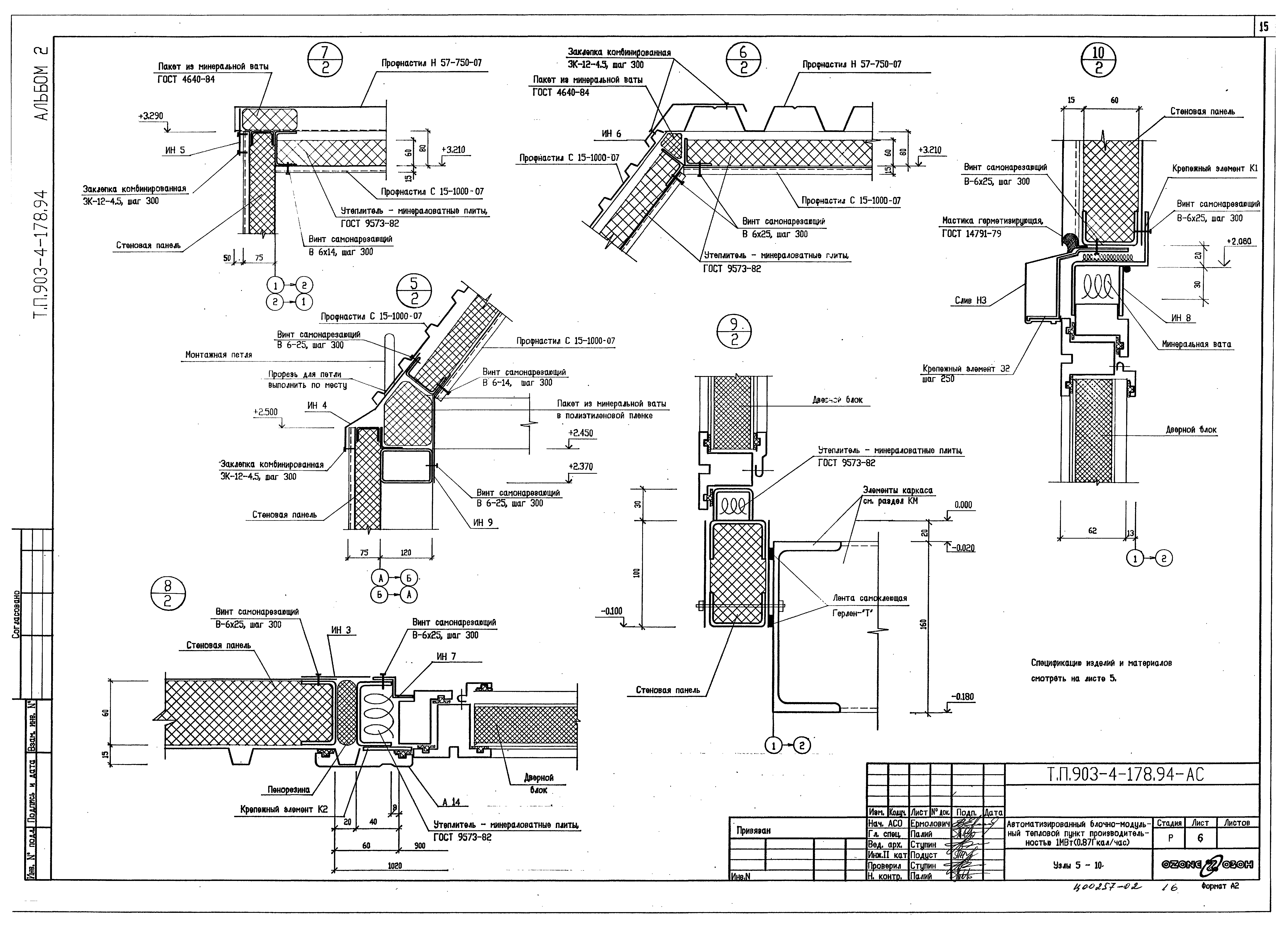
ТП 903-4-178.94-АС-6 Узлы 5-10.
ТП 903-4-178.94-АС-7 Узлы 11-16.
ТП 903-4-178.94-АС-8 Узлы 17-20.
ТП 903-4-178.94-АС-9 Схема расположения фундаментов, ФМ1, разрезы 1-1... 3-3. Узлы 21,22.
ТП 903-4-178.94 Прилагаемые документы
ТП 903-4-178.94-АС.И-ОТД6.12-1 Оконный блок ОТД6.12-1
ТП 903-4-178.94-АС.И-ОТД9.6-1 Оконный блок ОТД9.6-1
ТП 903-4-178.94-АС.И-ИН1-ИН16 Нащельники ИН1-ИН16
ТП 903-4-178.94-АС.И-Р1,С1-С3,К1 Решетка Р1. Сливы С1-С3. Крепежный элемент К1 .
ТП 903-4-178.94-АС.И-ПС1 Панель стеновая ПС1
ТП 903-4-178.94-АС.И-ПС2 Панель стеновая ПС2
ТП 903-4-178.94-АС.И-ПС3 Панель стеновая ПС3
ТП 903-4-178.94-АС.И-ПС4 Панель стеновая ПС4
ТП 903-4-178.94-АС.И-ПС5 Панель стеновая ПС5
ТП 903-4-178.94-АС.И-ПС6 Панель стеновая ПС6
ТП 903-4-178.94-АС.И-ПС7 Панель стеновая ПС7
ТП 903-4-178.94-АС.И-ПС8 Панель стеновая ПС8
ТП 903-4-178.94-АС.И-ПС9 Панель стеновая ПС9
ТП 903-4-178.94-КМ Конструкции металлические КМ
ТП 903-4-178.94-КМ-1 Общие данные.
ТП 903-4-178.94-КМ-2 Техническая спецификация металла.
ТП 903-4-178.94-КМ-3 Ведомость металлоконструкций по видам профилей.
ТП 903-4-178.94-КМ-4 Схема расположения элементов каркаса
ТП 903-4-178.94-КМ-5 Схема расположения элементов опорной рамы контейнера и опор под оборудование.
ТП 903-4-178.94-КМ-6 Разрезы 2-2...8-8.
ТП 903-4-178.94-КМ-7 Ригель Р3. Узлы 1,3.
ТП 903-4-178.94-КМ-8 Узел 2.
ТП 903-4-178.94-КМ-9 Узлы 4,5.
ТП 903-4-178.94-КМ-10 Узлы 6,7.
ТП 903-4-178.94-КМ-11 Узлы 8...16.
ТП 903-4-178.94-КМ-12 Схема расположения временных связей
ТП 903-4-178.94-ВК Внутренние водопровод и канализация ВК
ТП 903-4-178.94-ВК-1 План на отм. 0.000. Схемы систем К1,В1. Общие указания.
Разработан: АО ОЗОН
Утверждён:10.10.1994 Комитет РФ по химической и нефтехимической промышленности (09/1-11-102)
Расположен в:Техническая документация Строительство Справочные документы Типовые строительные конструкции, изделия и узлы Общероссийский строительный каталог Промышленные предприятия, здания и сооружения Здания и сооружения санитарно-технические Теплоснабжение Сооружения тепловых сетей Тепловые пункты в блочно-модульном исполнении
Типовой проект 903-4-178.94Типовой проект 903-4-178.94Типовой проект 903-4-178.94Типовой проект 903-4-178.94Типовой проект 903-4-178.94Типовой проект 903-4-178.94Типовой проект 903-4-178.94Типовой проект 903-4-178.94Типовой проект 903-4-178.94Типовой проект 903-4-178.94Типовой проект 903-4-178.94Типовой проект 903-4-178.94Типовой проект 903-4-178.94Типовой проект 903-4-178.94Типовой проект 903-4-178.94Типовой проект 903-4-178.94Типовой проект 903-4-178.94Типовой проект 903-4-178.94Типовой проект 903-4-178.94Типовой проект 903-4-178.94Типовой проект 903-4-178.94Типовой проект 903-4-178.94Типовой проект 903-4-178.94Типовой проект 903-4-178.94Типовой проект 903-4-178.94Типовой проект 903-4-178.94Типовой проект 903-4-178.94Типовой проект 903-4-178.94Типовой проект 903-4-178.94Типовой проект 903-4-178.94Типовой проект 903-4-178.94Типовой проект 903-4-178.94Типовой проект 903-4-178.94Типовой проект 903-4-178.94Типовой проект 903-4-178.94Типовой проект 903-4-178.94Типовой проект 903-4-178.94Типовой проект 903-4-178.94Типовой проект 903-4-178.94Типовой проект 903-4-178.94Типовой проект 903-4-178.94Типовой проект 903-4-178.94Типовой проект 903-4-178.94Типовой проект 903-4-178.94Типовой проект 903-4-178.94

© 2013 Ёшкин Кот :-) Карта сайта