Информационная система
«Ёшкин Кот»

Скачать базу одним архивом
Скачать обновления
История создания базы
Карта сайта

Скачать Типовой проект 902-5-40.87 Альбом II. Строительные изделия

Дата актуализации: 10.08.2017

Типовой проект 902-5-40.87

Альбом II. Строительные изделия

Обозначение: Типовой проект 902-5-40.87
Обозначение англ: 902-5-40.87
Статус:не определен законодательством
Название рус.:Альбом II. Строительные изделия
Дата добавления в базу:01.09.2013
Дата актуализации:05.05.2017
Дата введения:13.05.1987
Оглавление:ТП 902-5-40.87-КЖИ-0000 Содержание альбома
ТП 902-5-40.87-КЖИ-0000.ТО Техническое описание
ТП 902-5-40.87-КЖИ-0100 Каркас пространственный КП1
ТП 902-5-40.87-КЖИ-0200 Каркас пространственный КП2
ТП 902-5-40.87-КЖИ-0300 Каркас пространственный КП3
ТП 902-5-40.87-КЖИ-0400 Каркас пространственный КП4
ТП 902-5-40.87-КЖИ-0500 Каркас пространственный КП5
ТП 902-5-40.87-КЖИ-0600 Каркас плоский КР1
ТП 902-5-40.87-КЖИ-0700 Каркас плоский КР2
ТП 902-5-40.87-КЖИ-0800 Каркас плоский КР3
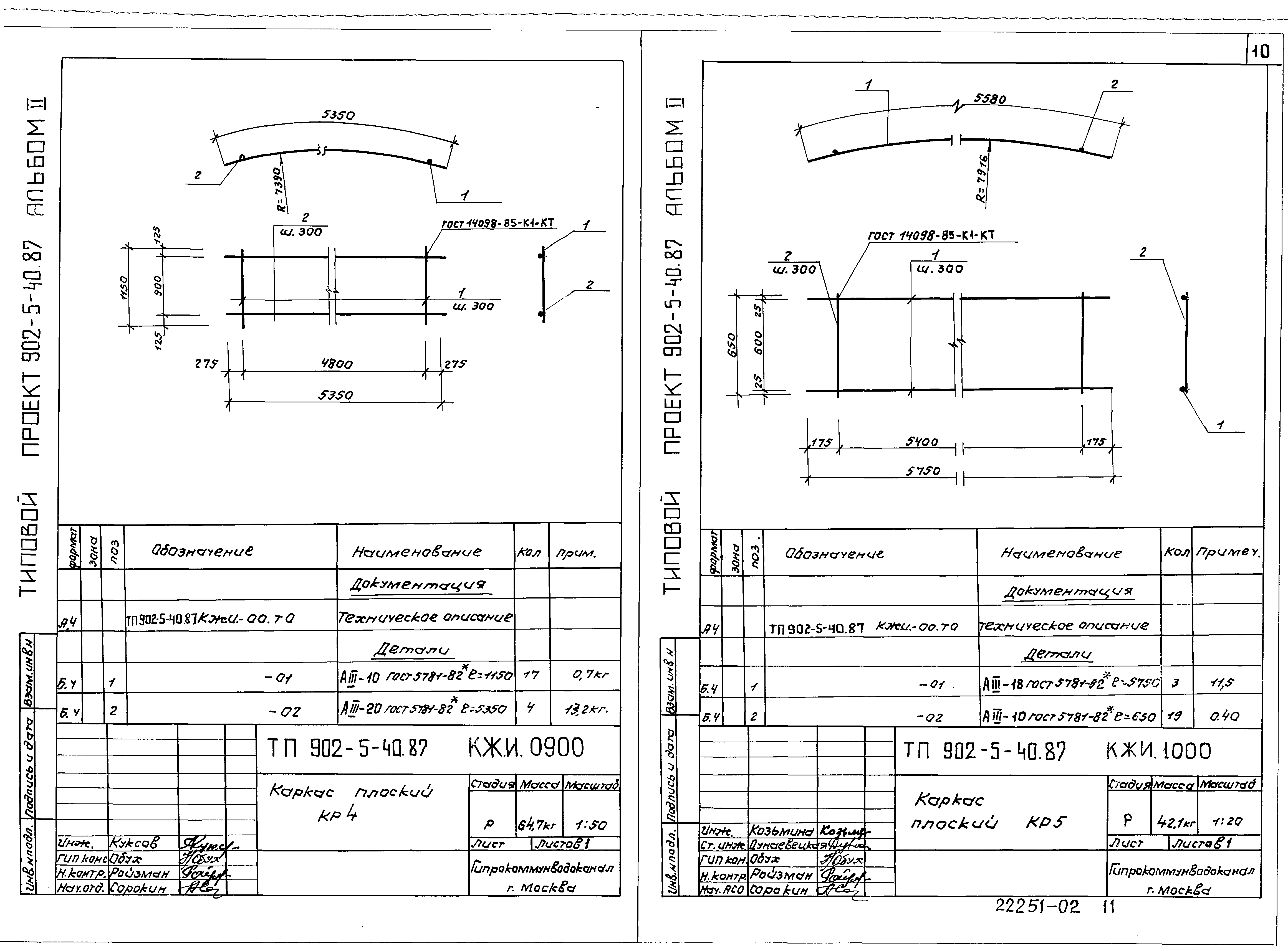
ТП 902-5-40.87-КЖИ-0900 Каркас плоский КР4
ТП 902-5-40.87-КЖИ-1000 Каркас плоский КР5
ТП 902-5-40.87-КЖИ-1100 Каркас плоский КР6
ТП 902-5-40.87-КЖИ-1200 Каркас плоский КР7
ТП 902-5-40.87-КЖИ-1300 Сетка С1
ТП 902-5-40.87-КЖИ-1400 Сетка С2
ТП 902-5-40.87-КЖИ-1500 Сетка С3
ТП 902-5-40.87-КЖИ-1600 Сетка С4
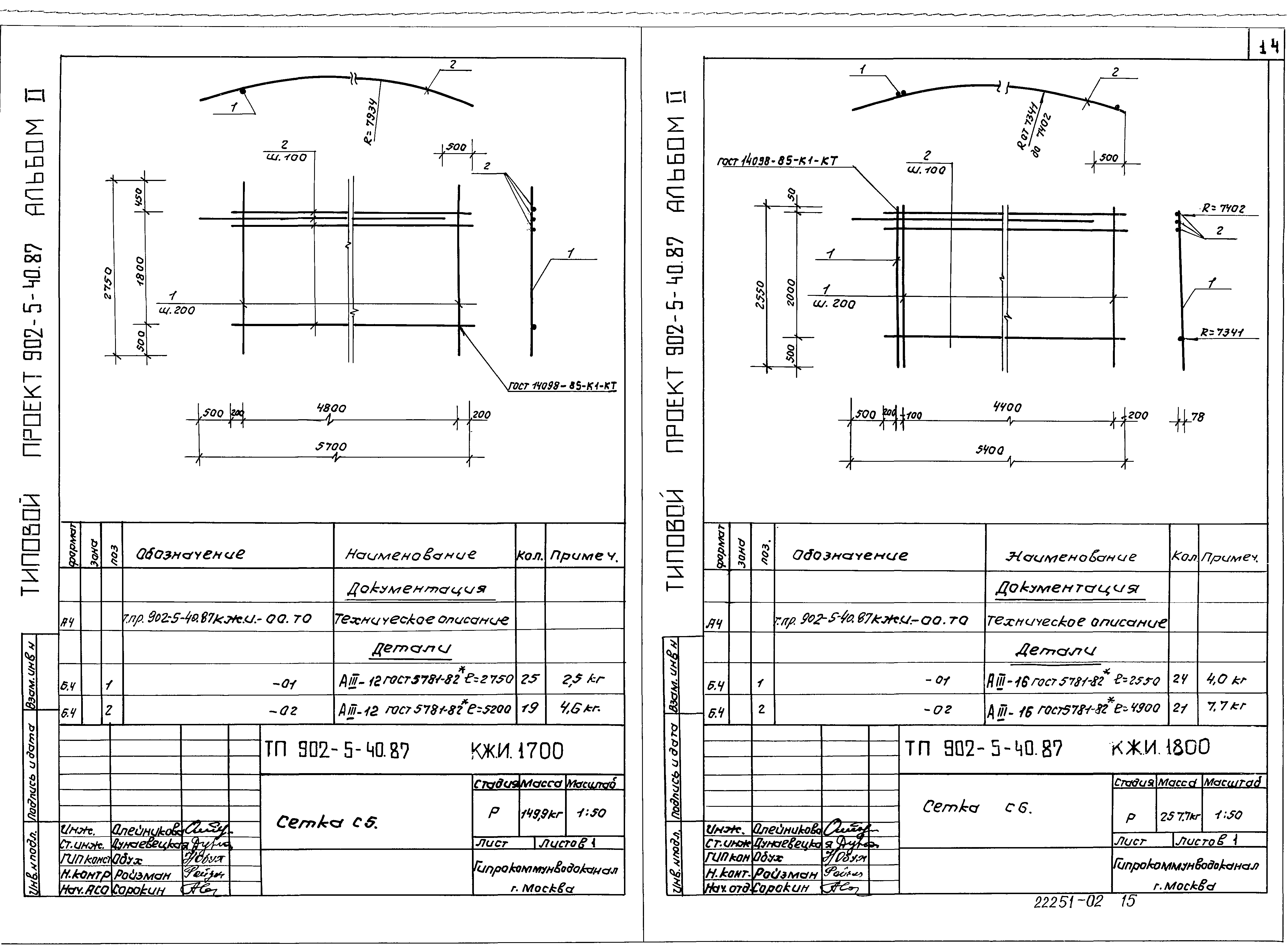
ТП 902-5-40.87-КЖИ-1700 Сетка С5
ТП 902-5-40.87-КЖИ-1800 Сетка С6
ТП 902-5-40.87-КЖИ-1900 Сетка С7
ТП 902-5-40.87-КЖИ-2000 Сетка С8
ТП 902-5-40.87-КЖИ-2100 Сетка С9
ТП 902-5-40.87-КЖИ-2200 Сетка С10
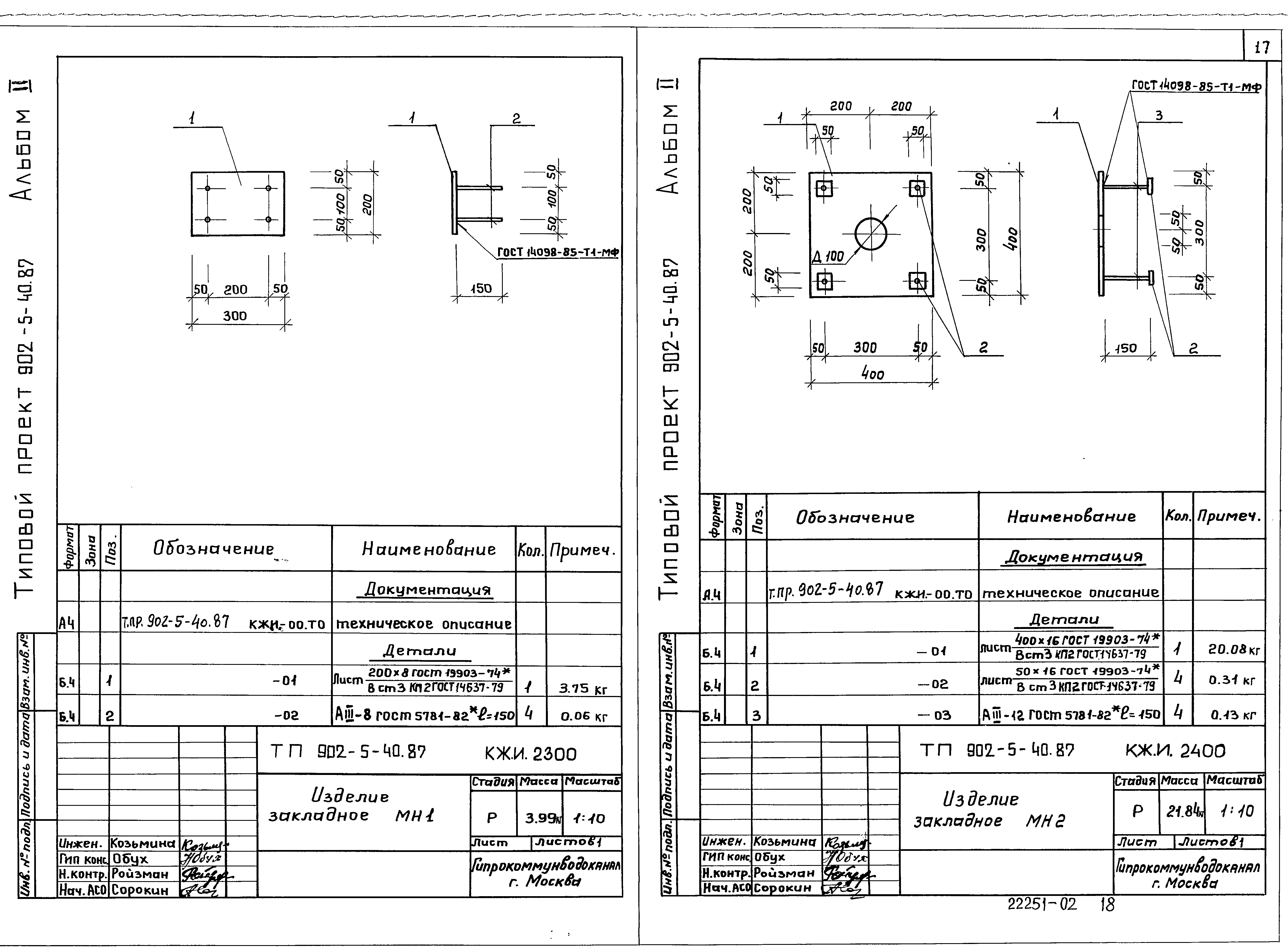
ТП 902-5-40.87-КЖИ-2300 Изделие закладное МН1
ТП 902-5-40.87-КЖИ-2400 Изделие закладное МН2
ТП 902-5-40.87-КЖИ-2500 Изделие закладное МН6
ТП 902-5-40.87-КЖИ-2600 Изделие закладное МН7
ТП 902-5-40.87-КЖИ-2700 Изделие закладное МН8
ТП 902-5-40.87-КЖИ-2800 Изделие закладное МН9
ТП 902-5-40.87-КЖИ-2900 Патрубок ПР1
ТП 902-5-40.87-КЖИ-3000 Изделие накладное НД1
ТП 902-5-40.87-КЖИ-3100 Патрубок ПР2
Разработан: Гипрокоммунводоканал Минжилкомхоза РСФСР
Утверждён:13.05.1987 МЖКХ РСФСР (5-тд)
Расположен в:Техническая документация Строительство Справочные документы Типовые строительные конструкции, изделия и узлы Общероссийский строительный каталог Промышленные предприятия, здания и сооружения Здания и сооружения санитарно-технические Канализация Сооружения для очистки производственных сточных вод Сооружения для обработки осадка
Типовой проект 902-5-40.87Типовой проект 902-5-40.87Типовой проект 902-5-40.87Типовой проект 902-5-40.87Типовой проект 902-5-40.87Типовой проект 902-5-40.87Типовой проект 902-5-40.87Типовой проект 902-5-40.87Типовой проект 902-5-40.87Типовой проект 902-5-40.87Типовой проект 902-5-40.87Типовой проект 902-5-40.87Типовой проект 902-5-40.87Типовой проект 902-5-40.87Типовой проект 902-5-40.87Типовой проект 902-5-40.87Типовой проект 902-5-40.87Типовой проект 902-5-40.87Типовой проект 902-5-40.87Типовой проект 902-5-40.87Типовой проект 902-5-40.87Типовой проект 902-5-40.87Типовой проект 902-5-40.87

© 2013 Ёшкин Кот :-) Карта сайта