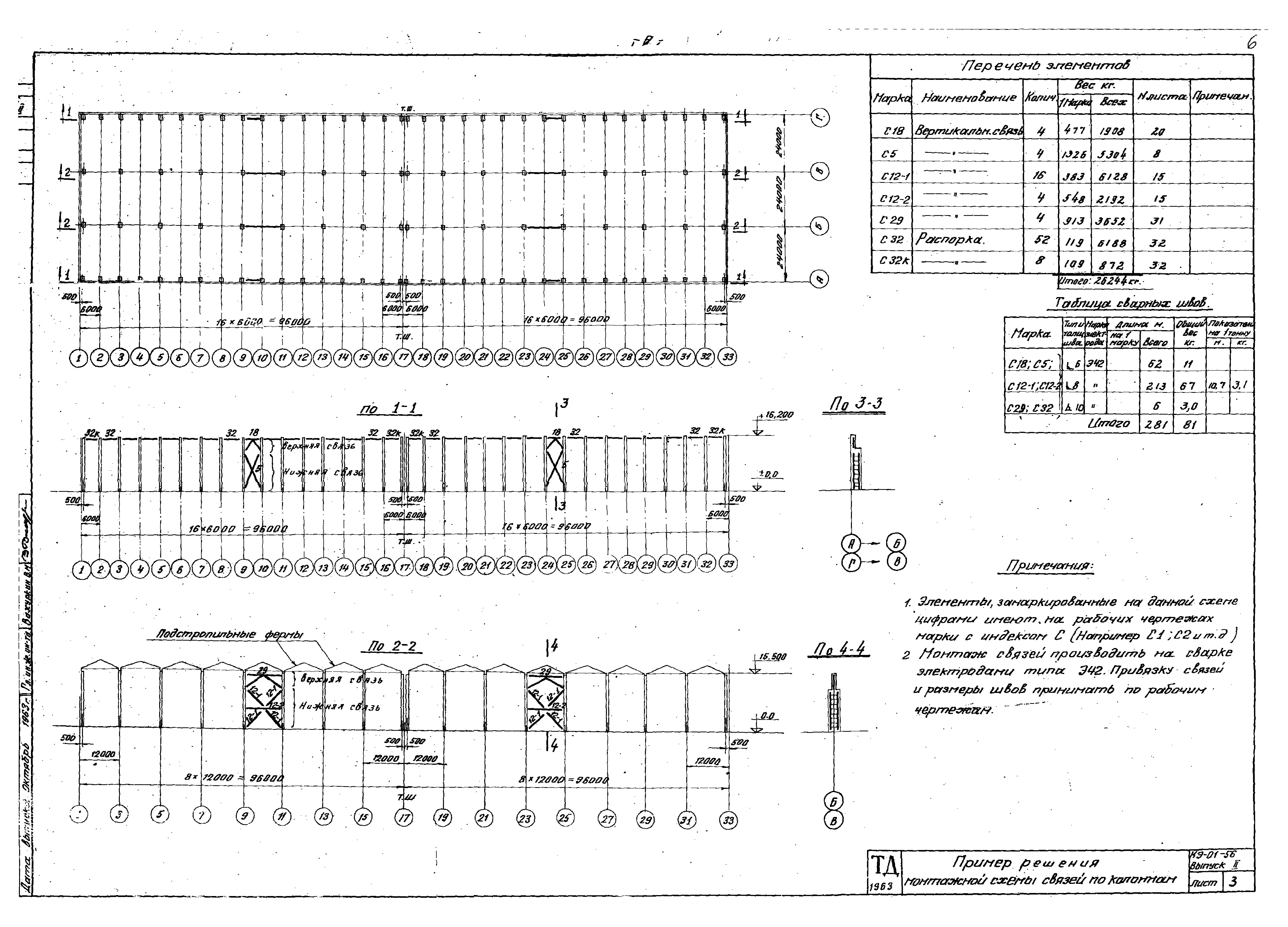
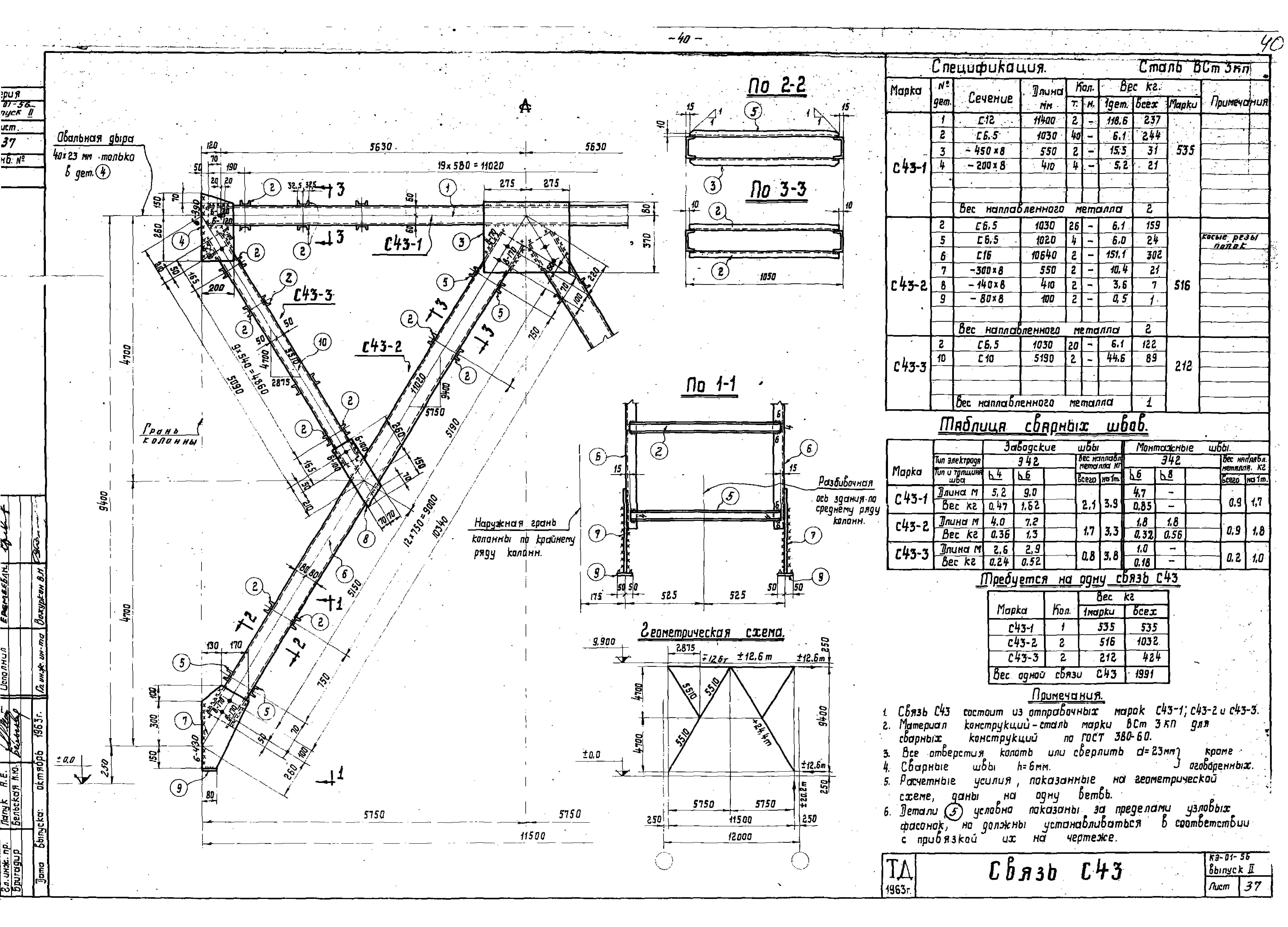
Скачать Серия КЭ-01-56 Выпуск II. Рабочие чертежи вертикальных связей по колоннамДата актуализации: 10.08.2017 Серия КЭ-01-56
Выпуск II. Рабочие чертежи вертикальных связей по колоннамОбозначение: | Серия КЭ-01-56 | Обозначение англ: | Series КЭ-01-56 | Статус: | заменен | Название рус.: | Выпуск II. Рабочие чертежи вертикальных связей по колоннам | Дата добавления в базу: | 01.09.2013 | Дата актуализации: | 05.05.2017 | Дата введения: | 01.12.1977 | Разработан: | Проектстальконструкция Госстроя СССР
| Утверждён: | 31.01.1964 Госстрой СССР (Государственный комитет Совета Министров СССР по делам строительства) (USSR Gosstroy )
| Издан: | ЦИТП Госстроя СССР (CITP, Gosstroy (USSR) 1964 г. )
| Расположен в: |
| Чем заменён: | |
                                          
|