Информационная система
«Ёшкин Кот»

Скачать базу одним архивом
Скачать обновления
История создания базы
Карта сайта

Скачать Типовой проект 902-2-23 Альбом I. Пояснительная записка и чертежи

Дата актуализации: 10.08.2017

Типовой проект 902-2-23

Альбом I. Пояснительная записка и чертежи

Обозначение: Типовой проект 902-2-23
Обозначение англ: 902-2-23
Статус:действует
Название рус.:Альбом I. Пояснительная записка и чертежи
Дата добавления в базу:01.09.2013
Дата актуализации:05.05.2017
Оглавление:ТП 902-2-23-ПЗ-1 Содержание альбома
ТП 902-2-23-ПЗ-2 Заглавный лист
ТП 902-2-23-ПЗ-3 Пояснительная записка
ТП 902-2-23-АС А. Архитектурно-строительные чертежи
ТП 902-2-23-АС-1 Опалубочный чертеж отстойника. План. Разрез
ТП 902-2-23-АС-2 Опалубочный чертеж. Узлы. Сечения
ТП 902-2-23-АС-3 Опалубочный чертеж. Сечения. Закладные элементы М-1÷М-5
ТП 902-2-23-АС-4 Лестница ЛС-1. Спецификация и выборка стали
ТП 902-2-23-АС-5 Компоновка из 4х отстойников. Спецификация железобетонных и стальных элементов
ТП 902-2-23-АС-6 Компоновка из 2х отстойников. Спецификация железобетонных и стальных элементов
ТП 902-2-23-АС-7 Компоновка из 2х отстойников. Спецификация железобетонных и стальных элементов
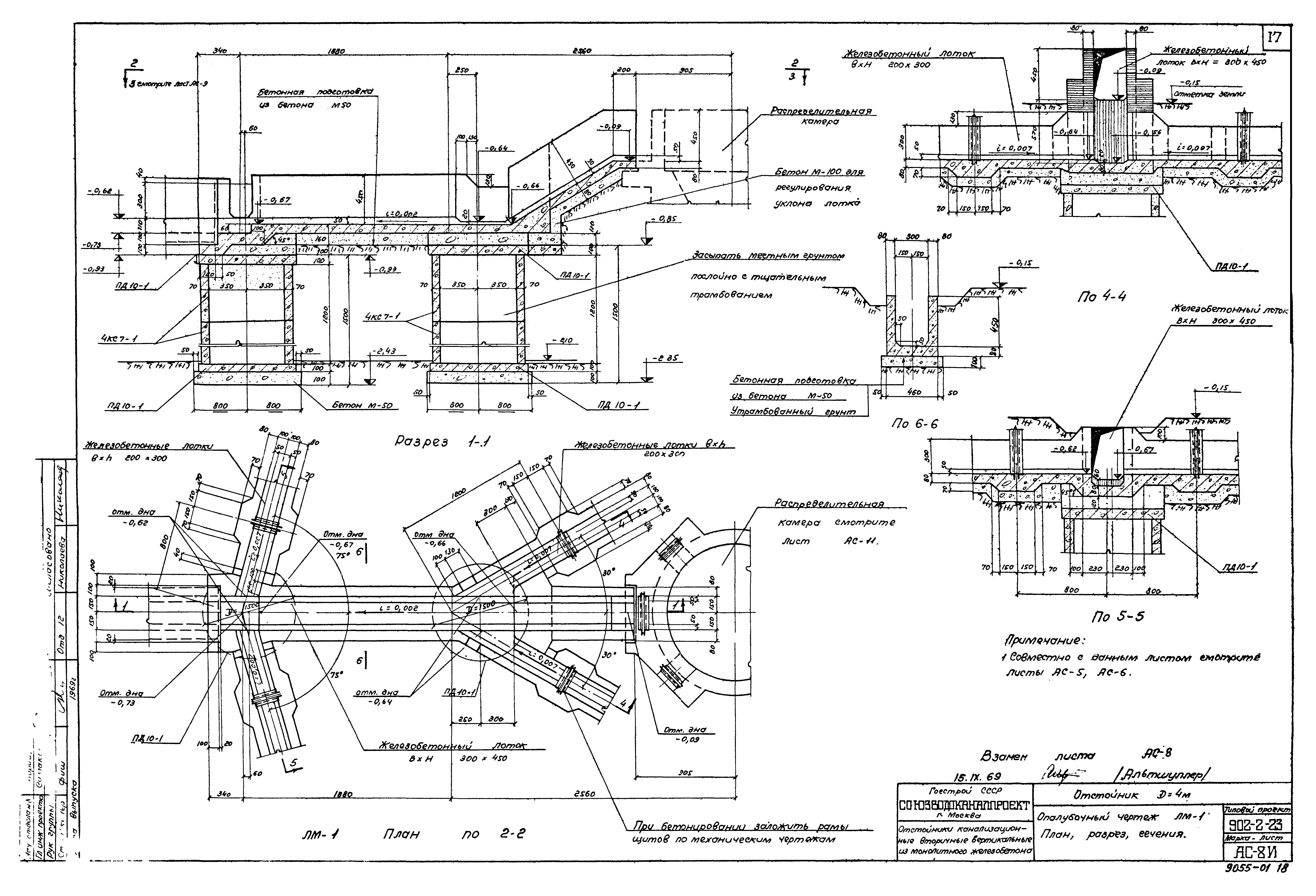
ТП 902-2-23-АС-8 Опалубочный чертеж ЛМ-1. План, разрез, сечения
ТП 902-2-23-АС-9 Опалубочный чертеж ЛМ-2. План, сечения
ТП 902-2-23-АС-10 Опалубочный чертеж ЛМ-3. План, разрез, сечения
ТП 902-2-23-АС-11 Распределительная камера. План, сечения
ТП 902-2-23-АС-12 Иловые колодцы №1,№2
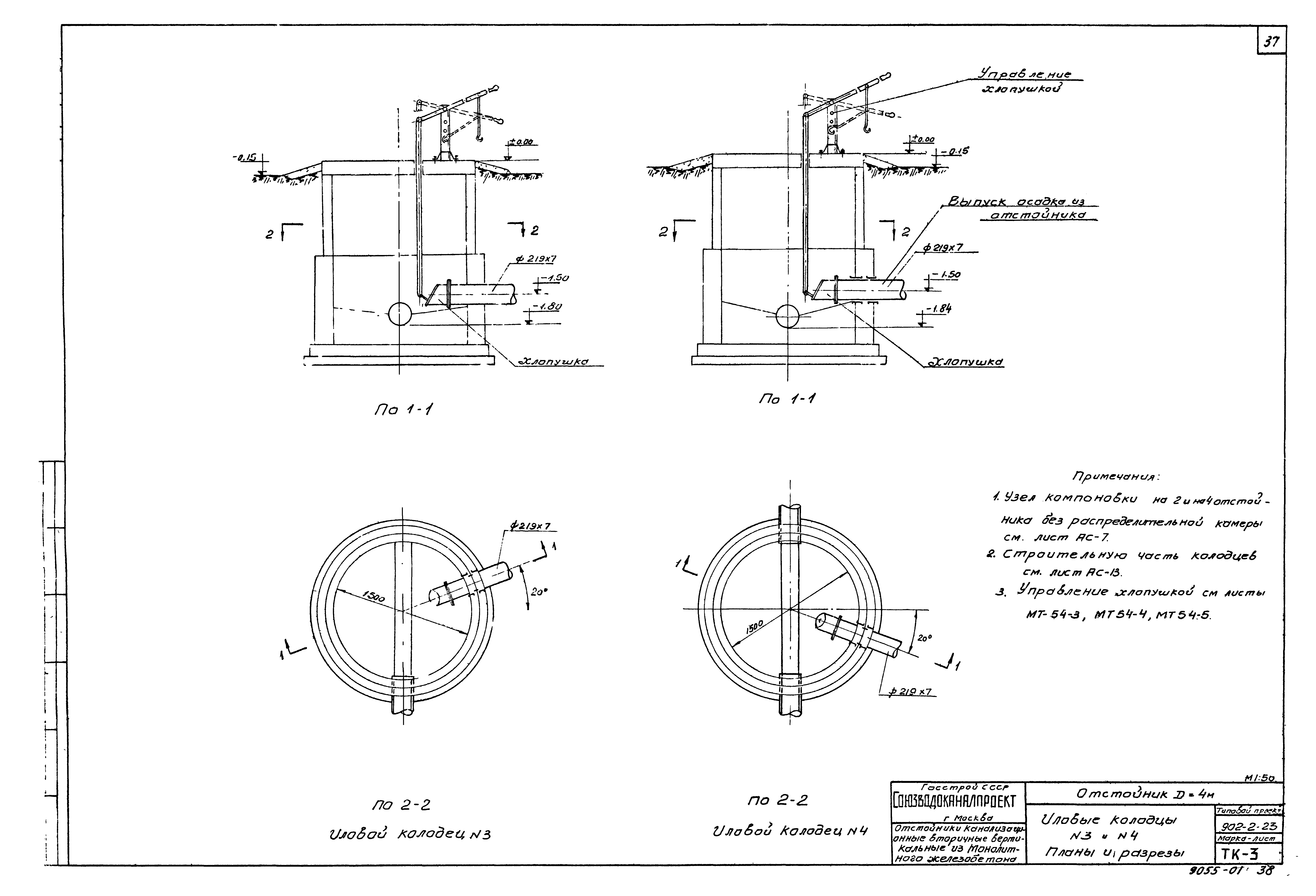
ТП 902-2-23-АС-13 Иловые колодцы №3,№4
ТП 902-2-23-АС-14 Арматурный чертеж отстойника. План и разрез
ТП 902-2-23-АС-15 Арматурный чертеж отстойника. Узлы, спецификация арматуры
ТП 902-2-23-АС-16 Арматурно-опалубочный чертеж. Балка Б-1. Муфта МЛ-1
ТП 902-2-23-АС-17 Арматурно-опалубочный чертеж лотков Л-1,Л-2. Армирование колец К-1÷К-4
ТП 902-2-23-АС-18 Армирование лотка ЛМ-1. Сечения
ТП 902-2-23-АС-19 Армирование лотка ЛМ-2. Сечения
ТП 902-2-23-АС-20 Армирование лотка ЛМ-3. Сечения
ТП 902-2-23-АС-21 Армирование лотка ЛМ-1. Разрез. Спецификация арматуры
ТП 902-2-23-АС-22 Армирование лотка ЛМ-2. Разрезы. Спецификация арматуры
ТП 902-2-23-АС-23 Армирование лотка ЛМ-3. Разрезы. Спецификация арматуры
ТП 902-2-23-АС-24 Распределительная камера. Арматурный чертеж
ТП 902-2-23-АС-25 Распределительная камера. Арматурные сетки и выборка стали
ТП 902-2-23-ТХ Б. Технологические чертежи
ТП 902-2-23-ТХ-1 Общий вид отстойника
ТП 902-2-23-ТХ-2 Иловые колодцы №1 и №2. Планы и разрезы
ТП 902-2-23-ТХ-3 Иловые колодцы №3 и №4. Планы и разрезы
ТП 902-2-23-МТ-54 В. Чертежи нестандартного оборудования
ТП 902-2-23-МТ-54-1 Труба центральная. Общий вид и детали
ТП 902-2-23-МТ-54-2 Труба иловая. Общий вид и детали
ТП 902-2-23-МТ-54-3 Установка управления хлопушкой Ду=200
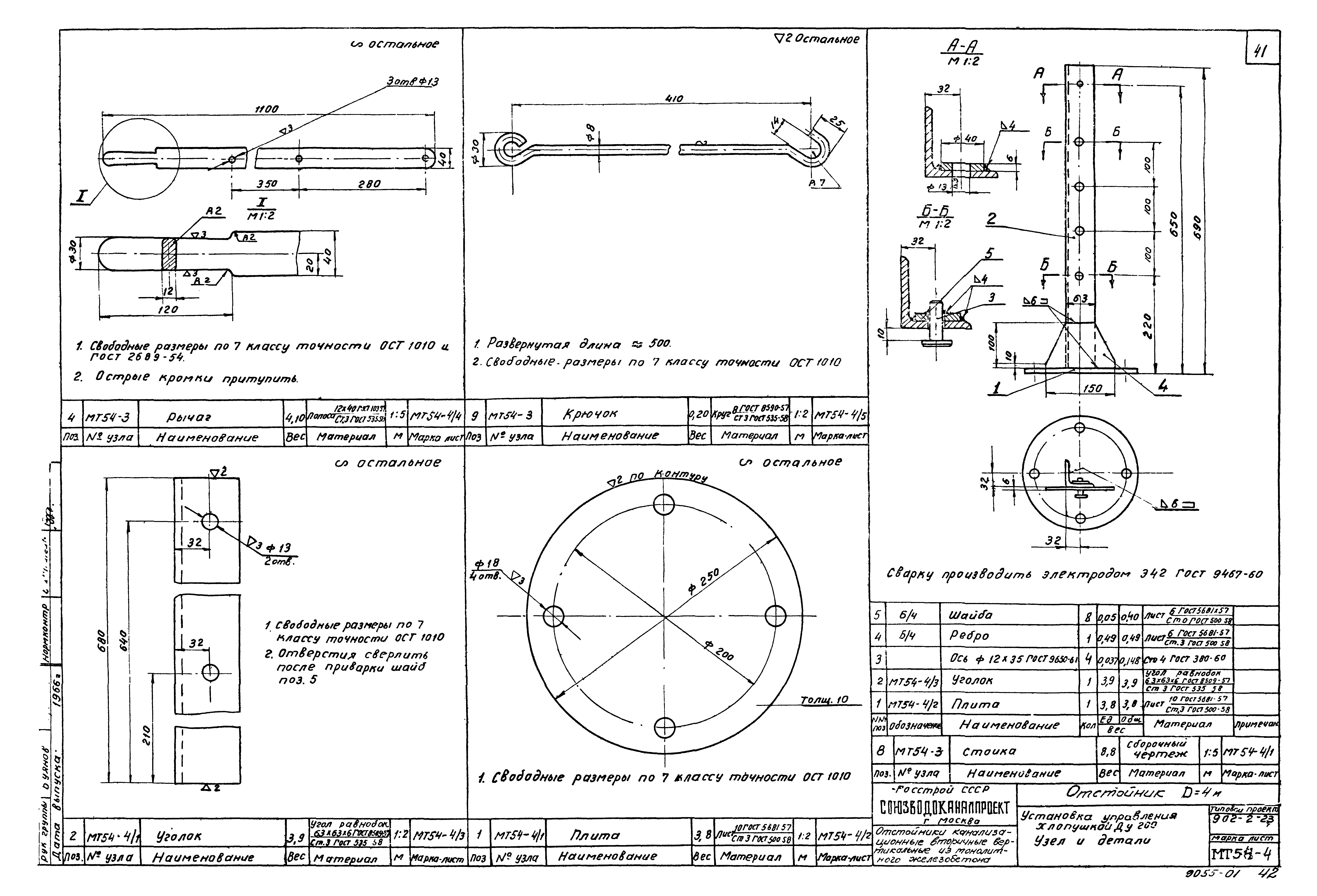
ТП 902-2-23-МТ-54-4 Установка управления хлопушкой Ду=200. Узел и детали
ТП 902-2-23-МТ-54-5 Установка управления хлопушкой Ду=200. Узел и детали
ТП 902-2-23-МТ-54-6 Затвор поверхностный 200х300. Общий вид
ТП 902-2-23-МТ-54-7 Затвор поверхностный 200х300. Щит
ТП 902-2-23-МТ-54-8 Затвор поверхностный 200х300. Щит. Детали. Узлы
ТП 902-2-23-МТ-54-9 Затвор поверхностный 200х300. Рамы
ТП 902-2-23-МТ-54-10 Затвор поверхностный 200х300. Рамы. Детали
ТП 902-2-23-МТ-54-11 Затвор поверхностный 200х300. Рамы. Детали
ТП 902-2-23-МТ-54-12 Затвор поверхностный 300х450 с ручным приводом. Общий вид
ТП 902-2-23-МТ-54-13 Затвор поверхностный 300х450 с ручным приводом. Щит
ТП 902-2-23-МТ-54-14 Затвор поверхностный 300х450 с ручным приводом. Детали
ТП 902-2-23-МТ-54-15 Затвор поверхностный 300х450 с ручным приводом. Рама
ТП 902-2-23-МТ-54-16 Затвор поверхностный 300х450 с ручным приводом. Рама. Детали
ТП 902-2-23-МТ-54-17 Затвор поверхностный 300х450 с ручным приводом. Рама. Детали
ТП 902-2-23-МТ-54-18 Затвор поверхностный 300х450 с ручным приводом. Привод ручной
ТП 902-2-23-МТ-54-19 Затвор поверхностный 300х450 с ручным приводом. Привод ручной. Маховик. Детали
Разработан: Союзводоканалпроект
Утверждён:30.12.1966 Союзводоканалпроект (Soyuzvodokanalproject 194)
Расположен в:Техническая документация Строительство Справочные документы Типовые строительные конструкции, изделия и узлы Общероссийский строительный каталог Промышленные предприятия, здания и сооружения Здания и сооружения санитарно-технические Канализация Сооружения механической очистки Отстойники Отстойники вертикальные вторичные
Типовой проект 902-2-23Типовой проект 902-2-23Типовой проект 902-2-23Типовой проект 902-2-23Типовой проект 902-2-23Типовой проект 902-2-23Типовой проект 902-2-23Типовой проект 902-2-23Типовой проект 902-2-23Типовой проект 902-2-23Типовой проект 902-2-23Типовой проект 902-2-23Типовой проект 902-2-23Типовой проект 902-2-23Типовой проект 902-2-23Типовой проект 902-2-23Типовой проект 902-2-23Типовой проект 902-2-23Типовой проект 902-2-23Типовой проект 902-2-23Типовой проект 902-2-23Типовой проект 902-2-23Типовой проект 902-2-23Типовой проект 902-2-23Типовой проект 902-2-23Типовой проект 902-2-23Типовой проект 902-2-23Типовой проект 902-2-23Типовой проект 902-2-23Типовой проект 902-2-23Типовой проект 902-2-23Типовой проект 902-2-23Типовой проект 902-2-23Типовой проект 902-2-23Типовой проект 902-2-23Типовой проект 902-2-23Типовой проект 902-2-23Типовой проект 902-2-23Типовой проект 902-2-23Типовой проект 902-2-23Типовой проект 902-2-23Типовой проект 902-2-23Типовой проект 902-2-23Типовой проект 902-2-23Типовой проект 902-2-23Типовой проект 902-2-23Типовой проект 902-2-23Типовой проект 902-2-23Типовой проект 902-2-23Типовой проект 902-2-23Типовой проект 902-2-23Типовой проект 902-2-23Типовой проект 902-2-23Типовой проект 902-2-23Типовой проект 902-2-23Типовой проект 902-2-23Типовой проект 902-2-23Типовой проект 902-2-23

© 2013 Ёшкин Кот :-) Карта сайта