| ||||||||||||||||||||||||||||||
Скачать Серия 1.432-4 Выпуск 1. Материалы для проектированияДата актуализации: 10.08.2017
|
| Обозначение: | Серия 1.432-4 |
| Обозначение англ: | Series 1.432-4 |
| Статус: | не действует |
| Название рус.: | Выпуск 1. Материалы для проектирования |
| Дата добавления в базу: | 01.09.2013 |
| Дата актуализации: | 05.05.2017 |
| Дата введения: | 01.12.1977 |
| Область применения: | Данный выпуск содержит материалы для проектирования панельных стен холодильников, а именно: примеры решения фасадов с применением вертикальных и горизонтальных панелей, схемы раскладки панелей в одноэтажных и многоэтажных зданиях, детали крепления панелей к конструкциям каркаса, расчетные данные для вертикальных и горизонтальных цокольных панелей, таблицы для определения толщины теплоизоляции панелей и номенклатуру панелей |
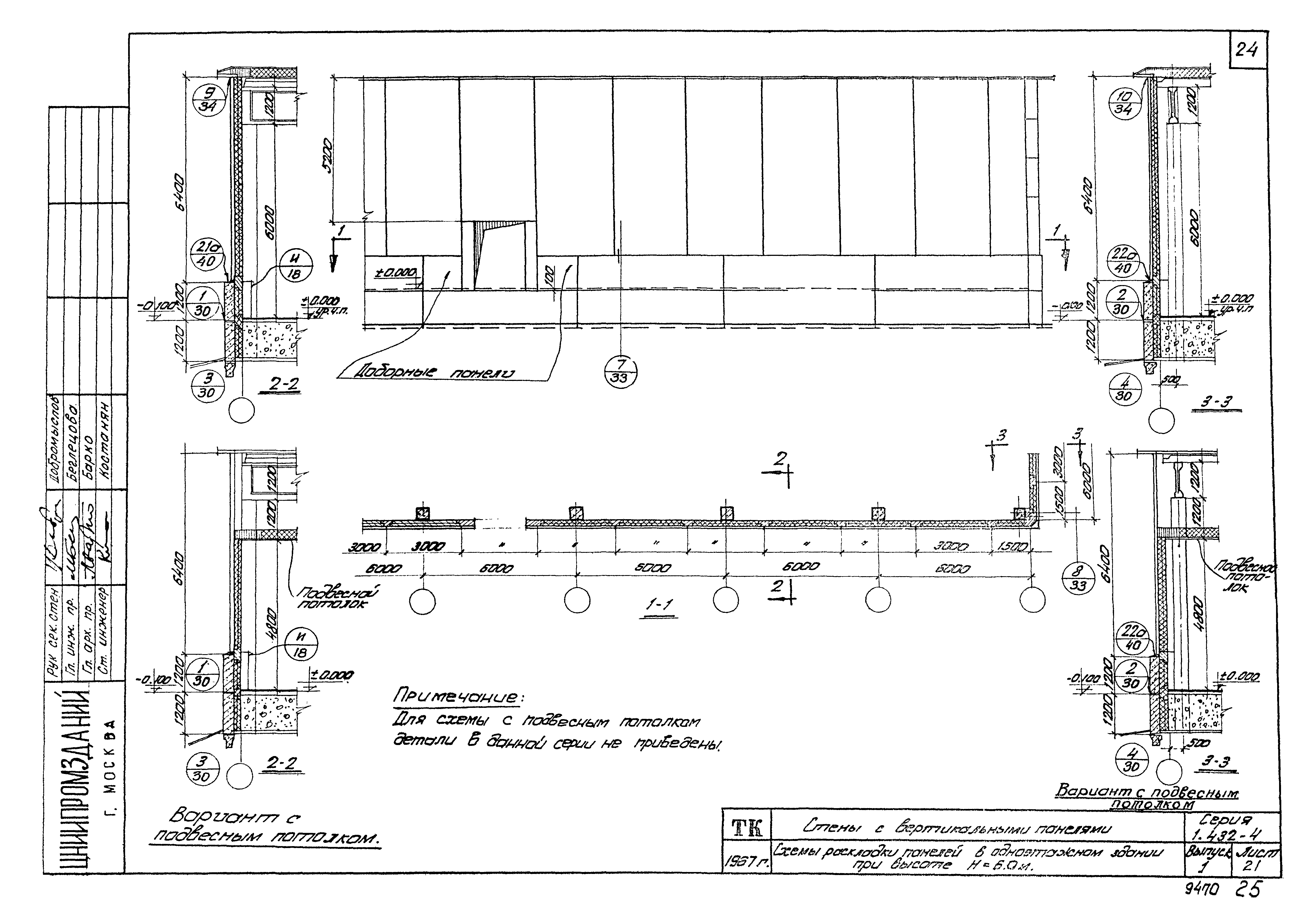
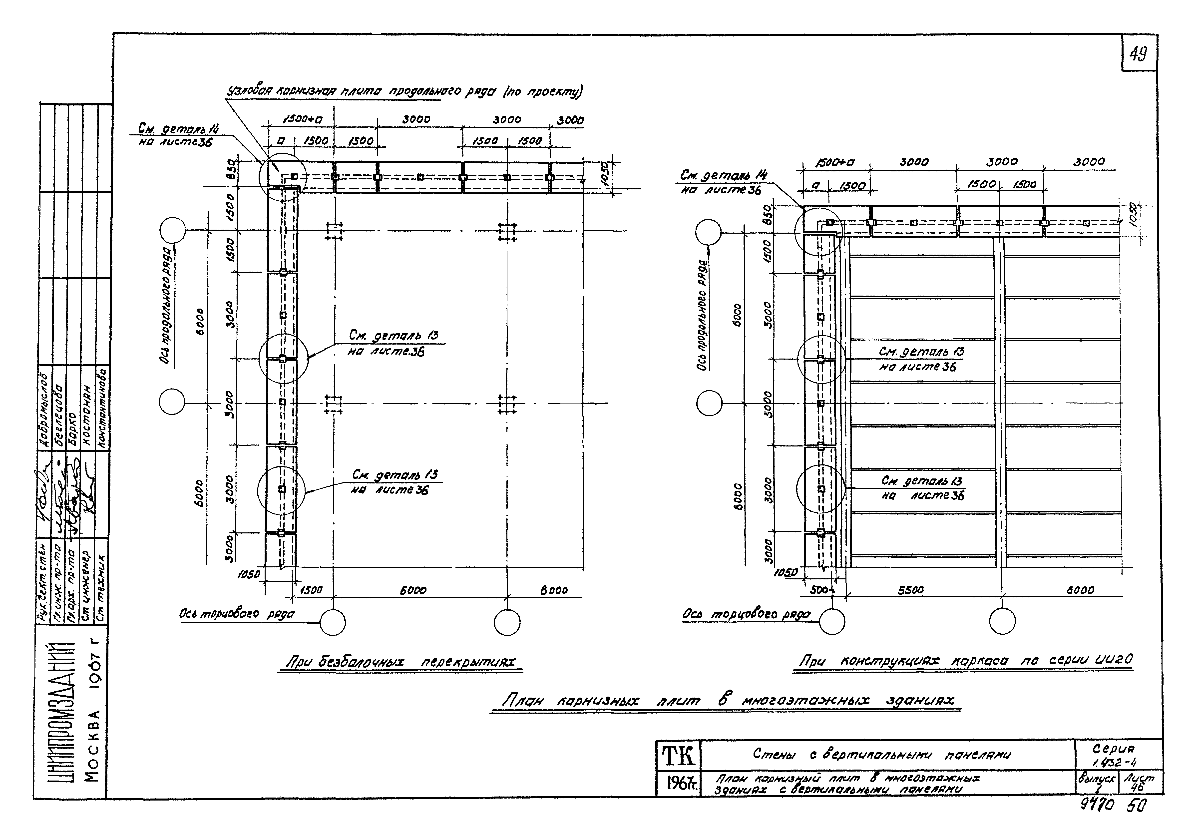
| Оглавление: | 1.432-4 Пояснительная записка 1.432-4 Номенклатура вертикальных панелей и расход материалов 1.432-4 Номенклатура горизонтальных панелей и расход материалов 1.432-4 Номенклатура блоков для углов здания и расход материалов 1.432-4 Таблица требуемых сопротивлений теплопередаче Rо (в степени тр) для стен холодильников 1.432-4 Толщины теплоизоляции в стенах с вертикальными панелями 1.432-4 Толщины теплоизоляции в стенах с вертикальными панелями (при φ=85%) 1.432-4 Толщины теплоизоляции в стенах с вертикальными панелями (при φ=90%) 1.432-4 Таблица расчетных данных 1.432-4 Схема производственного холодильника. Примеры решения фасадов 1.432-4 Схема производственного холодильника. Пример решения фасадов 1.432-4 Детали сопряжения стен 1.432-4 Деталь теплоизоляции элементов крепления 1.432-4 Схемы раскладки вертикальных панелей 1.432-4 Схемы раскладки панелей в стенах 1.432-4 Схемы раскладки панелей в одноэтажных зданиях при высотах Н=3.6 и 4.8 м 1.432-4 Схемы раскладки панелей в одноэтажном здании при высоте Н=6.0 м 1.432-4 Схемы раскладки панелей в многоэтажном здании при безбалочных перекрытиях и высотах этажей Н=4.8 и 6.0 м 1.432-4 Схемы раскладки панелей в многоэтажном здании при безбалочных перекрытиях (при полукапителях) и высотах этажей Н=4.8 и 6.0 м 1.432-4 Схемы раскладки панелей в многоэтажном здании при конструкциях каркаса по серии 20 и высотах этажей 4.8 и 6.0 м 1.432-4 Примеры решения углов здания при вертикальных панелях 1.432-4 Схемы раскладки горизонтальных панелей 1.432-4 Схемы раскладки панелей в одноэтажных зданиях при высотах Н=4.8 м и 6.0 м 1.432-4 Схемы раскладки панелей в многоэтажном здании при конструкции каркаса по серии ИИ20 и высотах этажей Н=4.8 1.432-4 Схемы раскладки панелей в многоэтажном здании при конструкции каркаса по серии ИИ20 и высотах этажей Н=6.0 1.432-4 Примеры решения углов здания при горизонтальных панелях 1.432-4 Детали стен и их крепления 1.432-4 Крепление цокольной панели к колоннам каркаса и опирание ее на фундаментную балку 1.432-4 Крепление цокольной панели к колоннам каркаса и опирание ее на фундаментную балку при наличии платформы 1.432-4 Крепление цокольной панели к колоннам каркаса 1.432-4 Крепление вертикальной панели к цокольной 1.432-4 Крепление вертикальных панелей и карнизных плит одноэтажного здания к плите покрытия 1.432-4 Крепление вертикальных панелей в многоэтажных зданиях с безбалочными конструкциями к плите перекрытия 1.432-4 Крепление вертикальных панелей и карнизных плит многоэтажного здания с безбалочными конструкциями к плите покрытия 1.432-4 Крепление вертикальных панелей многоэтажного здания с конструкциями каркаса по серии ИИ20 1.432-4 Опирание цокольной панели на фундаментную балку 1.432-4 Опирание цокольной панели к колоннам каркаса 1.432-4 Опирание горизонтальных панелей к колоннам каркаса 1.432-4 Опирание горизонтальных панелей и карнизных плит одноэтажного здания к конструкциям покрытия 1.432-4 Опирание горизонтальных панелей и карнизных плит многоэтажного здания к конструкциям покрытия 1.432-4 План карнизных плит в одноэтажном здании с вертикальными панелями 1.432-4 План карнизных плит в многоэтажном здании с вертикальными панелями 1.432-4 План карнизных плит в одноэтажном и многоэтажном зданиях с горизонтальными панелями 1.432-4 Пример решения с вертикальными панелями с теплоизоляцией из пенопласта ПСБ-С 1.432-4 Вертикальная панель с теплоизоляцией из пенопласта ПСБ-С 1.432-4 Пример крепления теплоизоляции из минераловатных плит в панели (с применением уголка МС-3) 1.432-4 Пример крепления теплоизоляции из минераловатных плит в панели (с применением деревянной бобышки) 1.432-4 Деревянный каркас для крепления теплоизоляции 1.432-4 Узлы 1,2 и 3 1.432-4 Пример решения стены с горизонтальными панелями с теплоизоляцией из пенопласта ПСБ-С 1.432-4 Горизонтальная панель с теплоизоляцией из пенопласта ПСБ-С 1.432-4 Конструкция швов между панелями |
| Разработан: | ЦНИИпромзданий |
| Утверждён: | 28.09.1967 Госстрой СССР (Государственный комитет Совета Министров СССР по делам строительства) (USSR Gosstroy ) |
| Расположен в: | |
| Нормативные ссылки: |
|

























































