Скачать Типовой проект 904-1-67.88 Альбом 1. Технология производстваДата актуализации: 10.08.2017 Типовой проект 904-1-67.88
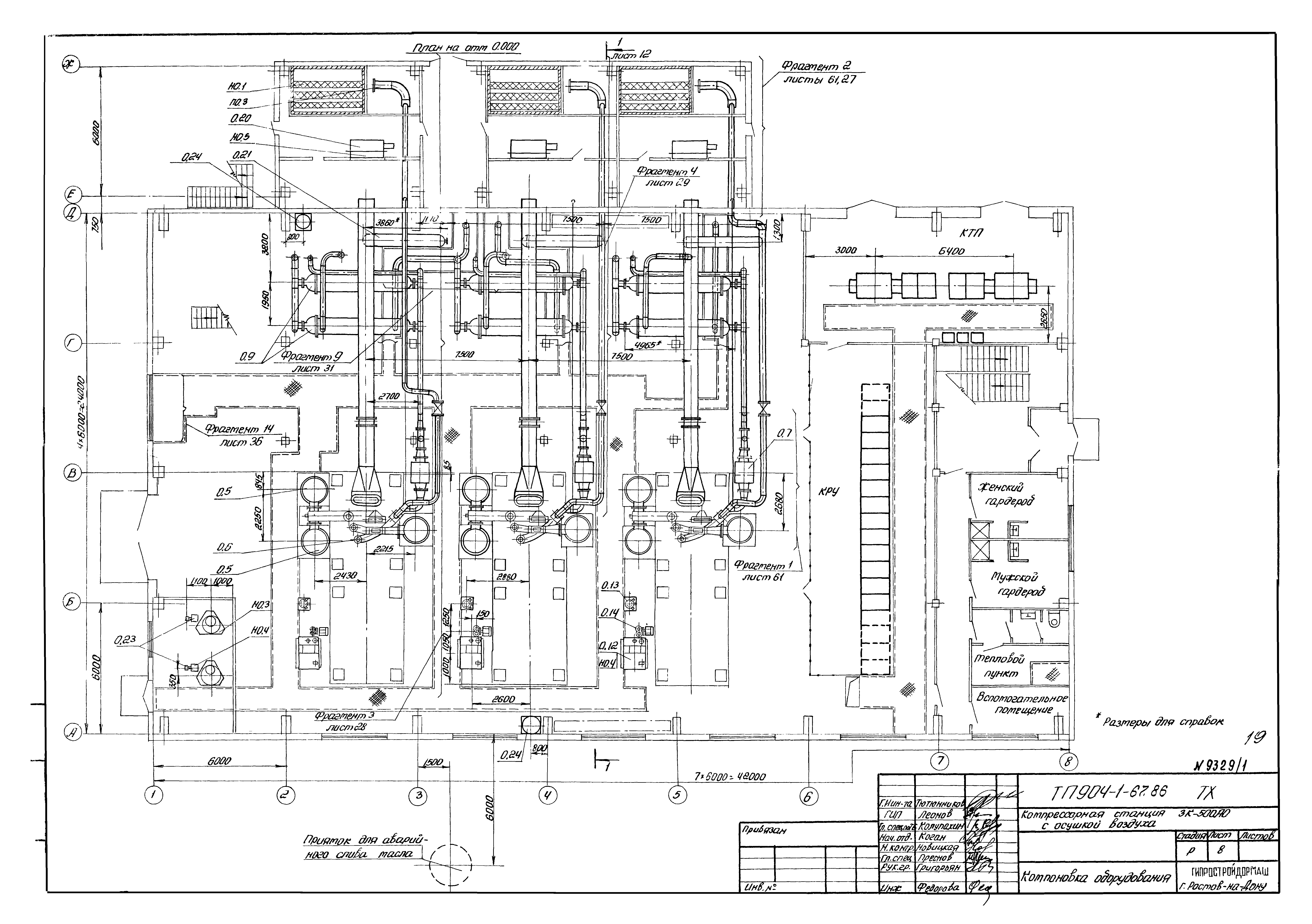
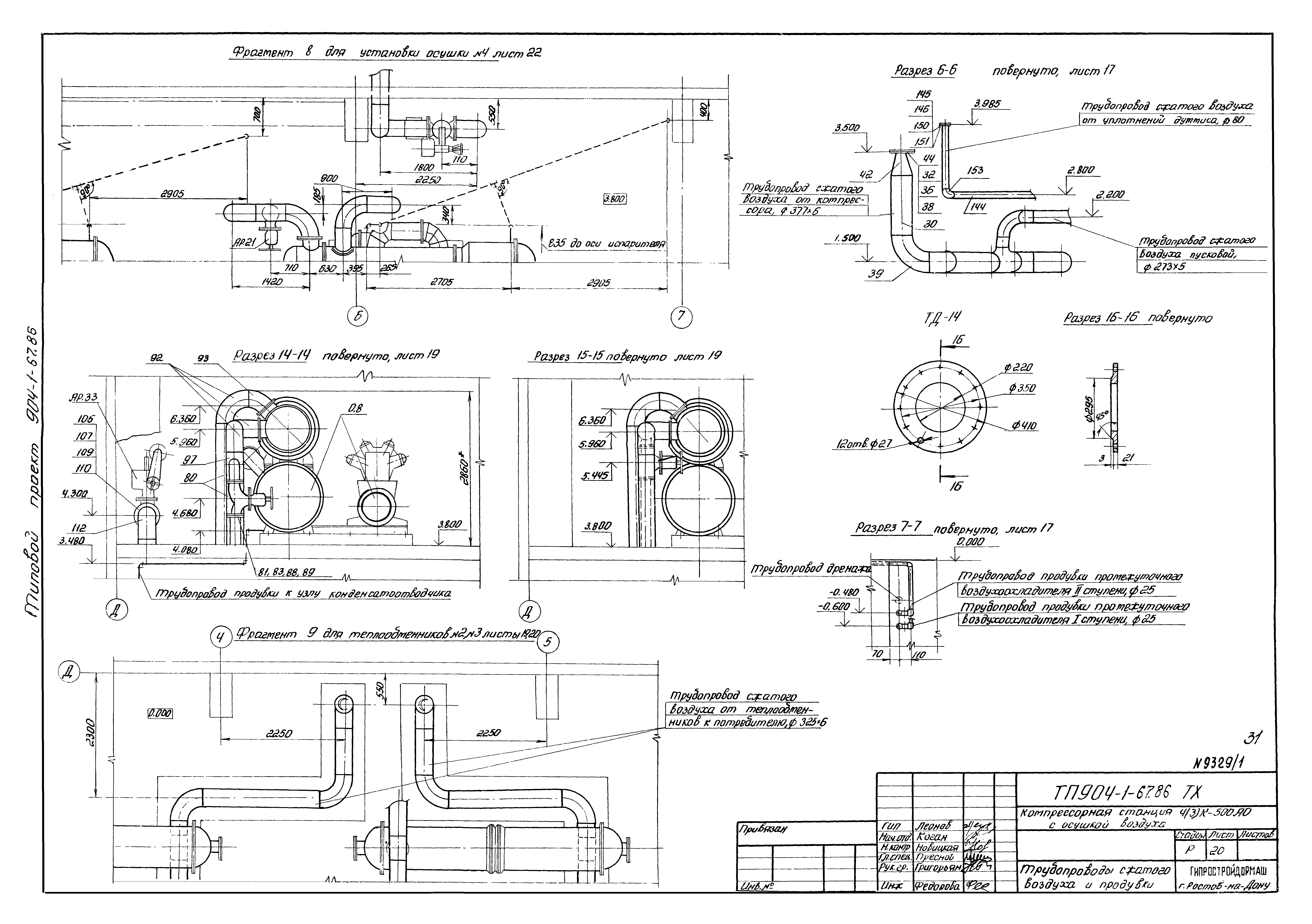
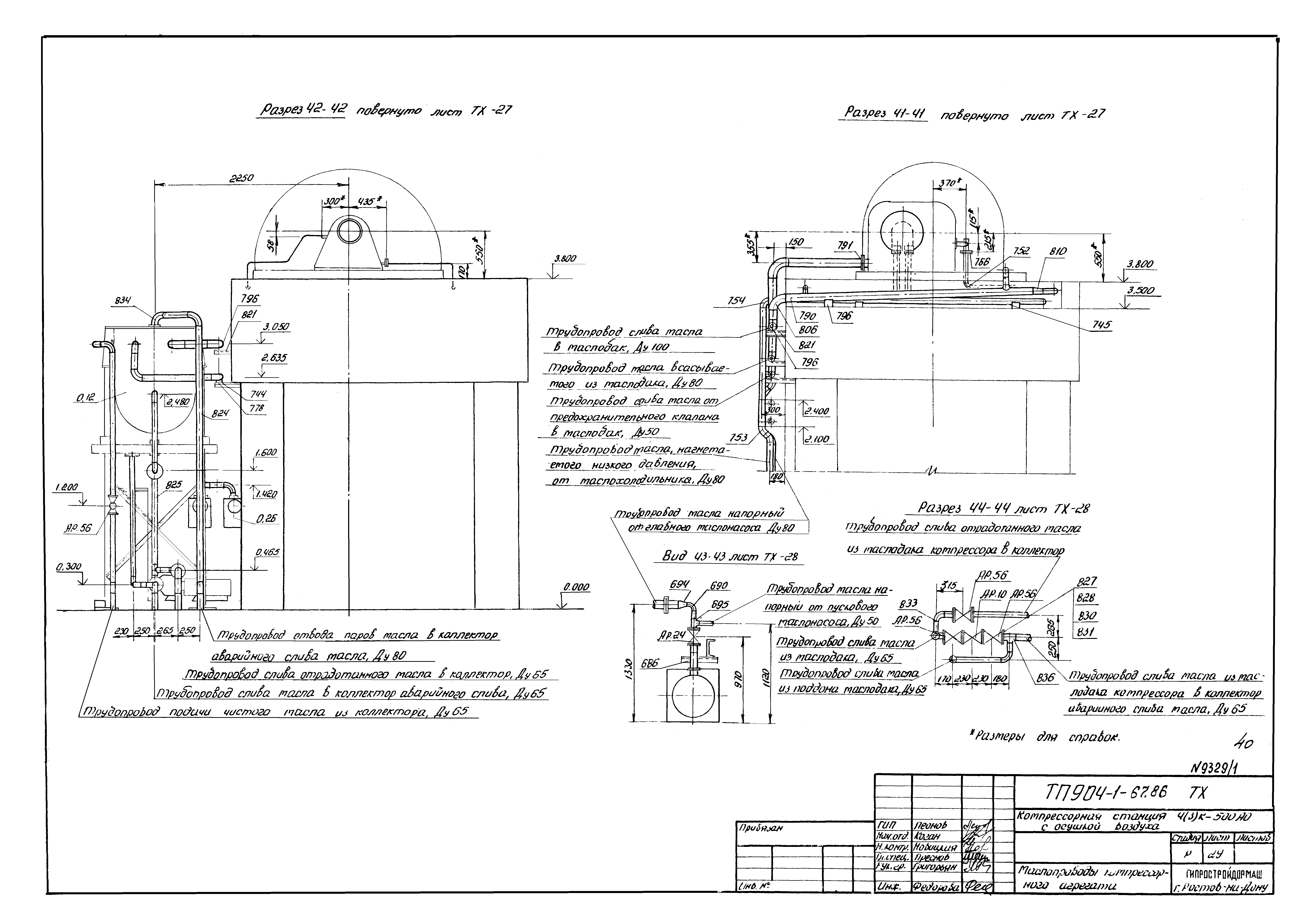
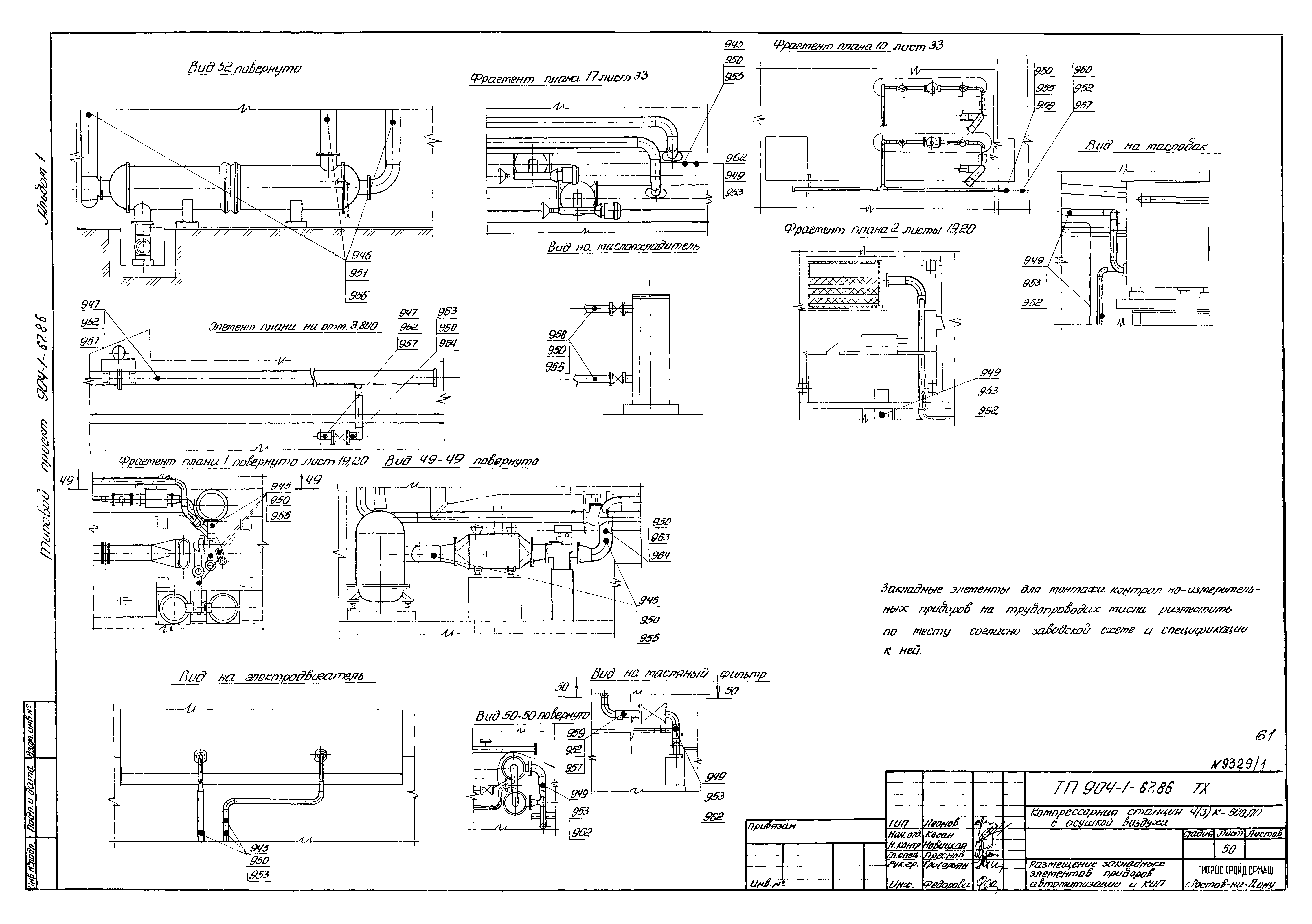
Альбом 1. Технология производстваОбозначение: | Типовой проект 904-1-67.88 | Обозначение англ: | 904-1-67.88 | Статус: | действует | Название рус.: | Альбом 1. Технология производства | Дата добавления в базу: | 01.09.2013 | Дата актуализации: | 05.05.2017 | Оглавление: | ТП 904-1-67.86 Обложка ТП 904-1-67.86 Титульный лист ТП 904-1-67.86-ТХ Содержание ТП 904-1-67.86-ПЗ Пояснительная записка ТП 904-1-67.86-ТХ-1 Общие данные ТП 904-1-67.86-ТХ-2 Схема комбинированная принципиальная компрессорной станции ТП 904-1-67.86-ТХ-3 Схема комбинированная принципиальная компрессорной станции ТП 904-1-67.86-ТХ-4 Схема комбинированная принципиальная воздухо- и водопроводов компрессорного агрегата ТП 904-1-67.86-ТХ-5 Схема комбинированная принципиальная маслопроводов компрессорного агрегата ТП 904-1-67.86-ТХ-6-7 Условные обозначения ТП 904-1-67.86-ТХ-8 Компоновка оборудования ТП 904-1-67.86-ТХ-9 Компоновка оборудования ТП 904-1-67.86-ТХ-10 Компоновка оборудования ТП 904-1-67.86-ТХ-11 Компоновка оборудования ТП 904-1-67.86-ТХ-12 Компоновка оборудования ТП 904-1-67.86-ТХ-13-14 Спецификация оборудования и арматуры ТП 904-1-67.86-ТХ-15-16 План трубопроводов компрессорного агрегата ТП 904-1-67.86-ТХ-15-20 Трубопроводы сжатого воздуха и продувки ТП 904-1-67.86-ТХ-21 Воздух всасывающий ТП 904-1-67.86-ТХ-22-25 Трубопроводы оборотного водоснабжения и дренажа ТП 904-1-67.86-ТХ-26 Трубопроводы горячего водоснабжения и хладана ТП 904-1-67.86-ТХ-27-29 Маслопроводы компрессорного агрегата ТП 904-1-67.86-ТХ-30 Маслопроводы в помещении маслохозяйства ТП 904-1-67.86-ТХ-31-46 Спецификация монтажных материалов трубопроводов ТП 904-1-67.86-ТХ-47-49 Ведомость теплоизоляционных конструкций ТП 904-1-67.86-ТХ-50 Размещение закладных элементов приводов автоматизации и КИП ТП 904-1-67.86 Опросный лист на кран мостовой электрический, управляемый с пола ТП 904-1-67.86 Опросный лист на установку осушки сжатого воздуха ТП 904-1-67.86-ТУ-3,-4 Подставка ТУ-3,-4 ТП 904-1-67.86-ТУ-5,-6,-7,-10,-11 Опора ТУ-5,-6,-7,-10,-11 ТП 904-1-67.86-ТУ-9 Воронка ТУ-9 ТП 904-1-67.86-ТД-33 Конус ТД-33 ТП 904-1-67.86-ТД-13 Фланец ТД-13 ТП 904-1-67.86-ТД-2 Прижимное кольцо ТД-2 ТП 904-1-67.86-ТД-12 Лопатка ТД-12 ТП 904-1-67.86-ТД-7 Переход ТД-7 ТП 904-1-67.86-ТД-8 Переход ТД-8 ТП 904-1-67.86-ТД-6 Переход ТД-6 ТП 904-1-67.86-ТД-1 Прокладка ТД-1 ТП 904-1-67.86-ТД-35 Фланец ТД-35 ТП 904-1-67.86-ТД-36 Фланец ТД-36 ТП 904-1-67.86-ТД-37,-38 Заглушка ТД-37,-38 ТП 904-1-67.86-ТД-39 Переход эксцентрический ТД-39 ТП 904-1-67.86-ПФ.00.000 Патрубок для присоединения воздушного фильтра ТП 904-1-67.86-ПФ.00.000 СБ Патрубок для присоединения воздушного фильтра. Сборочный чертеж ТП 904-1-67.86-ОМ.00.000 Опора под маслобак ТП 904-1-67.86-ОМ.01.000 Поддон ТП 904-1-67.86-ОМ.00.000 СБ Опора под маслобак. Сборочный чертеж ТП 904-1-67.86-ОМ.00.001 Пластина ТП 904-1-67.86-ОМ.00.002 Опора ТП 904-1-67.86-ОМ.01.001 Дно ТП 904-1-67.86-ОМ.01.003 Боковина ТП 904-1-67.86-ОМ.01.000 СБ Поддон. Сборочный чертеж ТП 904-1-67.86-МБ.00.000 ТО Бак для масла. Техническое описание ТП 904-1-67.86-МБ.00.000 Бак для масла ТП 904-1-67.86-МБ.00.001 Штуцер ТП 904-1-67.86-МБ.00.002 Втулка ТП 904-1-67.86-МБ.00.000 СБ Бак для масла. Сборочный чертеж ТП 904-1-67.86-МБ.01.000 Корпус ТП 904-1-67.86-МБ.01.000 СБ Корпус. Сборочный чертеж ТП 904-1-67.86-МБ.01.001 Обечайка ТП 904-1-67.86-МБ.01.002 Крышка нижняя ТП 904-1-67.86-МБ.01.003 Скоба ТП 904-1-67.86-МБ.02.000 Крышка ТП 904-1-67.86-МБ.02.000 СБ Крышка. Сборочный чертеж ТП 904-1-67.86-МБ.02.001 Крышка верхняя ТП 904-1-67.86-МБ.02.002 Трубка дыхательная ТП 904-1-67.86-МБ.03.000 Днище ТП 904-1-67.86-МБ.03.000 СБ Днище. Сборочный чертеж ТП 904-1-67.86-МБ.03.001 Обечайка ТП 904-1-67.86-МБ.04.000 Опора ТП 904-1-67.86-МБ.04.000 СБ Опора. Сборочный чертеж ТП 904-1-67.86-МБ.04.001 Косынка ТП 904-1-67.86-МБ.04.002 Пластина ТП 904-1-67.86-МБ.00.000.ИТ Бак для масла. Исходные требования ТП 904-1-67.86-ГШВ.500.ИТ Глушитель шума всасывания. Исходные требования | Разработан: | Гипростройдормаш
| Утверждён: | 28.03.1986 Минстройдормаш (Minstroydormash 13/86)
| Издан: | ЦИТП Госстроя СССР (CITP, Gosstroy (USSR) 1987 г. )
| Расположен в: |
|
                                                                                 
|