Информационная система
«Ёшкин Кот»

Скачать базу одним архивом
Скачать обновления
История создания базы
Карта сайта

Скачать Типовой проект 902-2-402.86 Альбом III. Архитектурные решения. Конструкции железобетонные. Конструкции металлические. Отопление и вентиляция

Дата актуализации: 10.08.2017

Типовой проект 902-2-402.86

Альбом III. Архитектурные решения. Конструкции железобетонные. Конструкции металлические. Отопление и вентиляция

Обозначение: Типовой проект 902-2-402.86
Обозначение англ: 902-2-402.86
Статус:заменен
Название рус.:Альбом III. Архитектурные решения. Конструкции железобетонные. Конструкции металлические. Отопление и вентиляция
Дата добавления в базу:01.09.2013
Дата актуализации:05.05.2017
Дата введения:01.10.1987
Оглавление:ТП 902-2-402.86 Титульный лист
ТП 902-2-402.86 Содержание
ТП 902-2-402.86-АР Архитектурные решения АР
ТП 902-2-402.86-АР-1 Общие данные
ТП 902-2-402.86-АР-2 План на отм. 0.000. Фрагмент 1
ТП 902-2-402.86-АР-3 План на отм. 3.600. Фрагмент 2
ТП 902-2-402.86-АР-4 Разрез 1-1. План полов. План кровли. Узлы 1,2,3
ТП 902-2-402.86-АР-5 Фасады
ТП 902-2-402.86-АР-6 Схемы элементов заполнения оконных проемов. Узлы 4,5. Спецификация
ТП 902-2-402.86-КЖ Конструкции железобетонные КЖ
ТП 902-2-402.86-КЖ-1 Общие данные
ТП 902-2-402.86-КЖ-2 Схемы расположения фундаментов
ТП 902-2-402.86-КЖ-3 Фундамент ФОМ1. Фрагмент 1. Сечения 1-1÷5-5
ТП 902-2-402.86-КЖ-4 Фундамент ФОМ1,ФОМ2
ТП 902-2-402.86-КЖ-5 Схемы расположения балок покрытия, плит перекрытия на отм. 3.600, плит покрытия
ТП 902-2-402.86-КЖ-6 Спецификация к схемам расположения балок покрытия, плит перекрытия на отм. 3.600, плит покрытия
ТП 902-2-402.86-КЖ-7 Участки монолитные УМ1-УМ3
ТП 902-2-402.86-КЖ-8 Спецификация участков монолитных УМ1-УМ3
ТП 902-2-402.86-КЖ-9 Участок монолитный УМ4
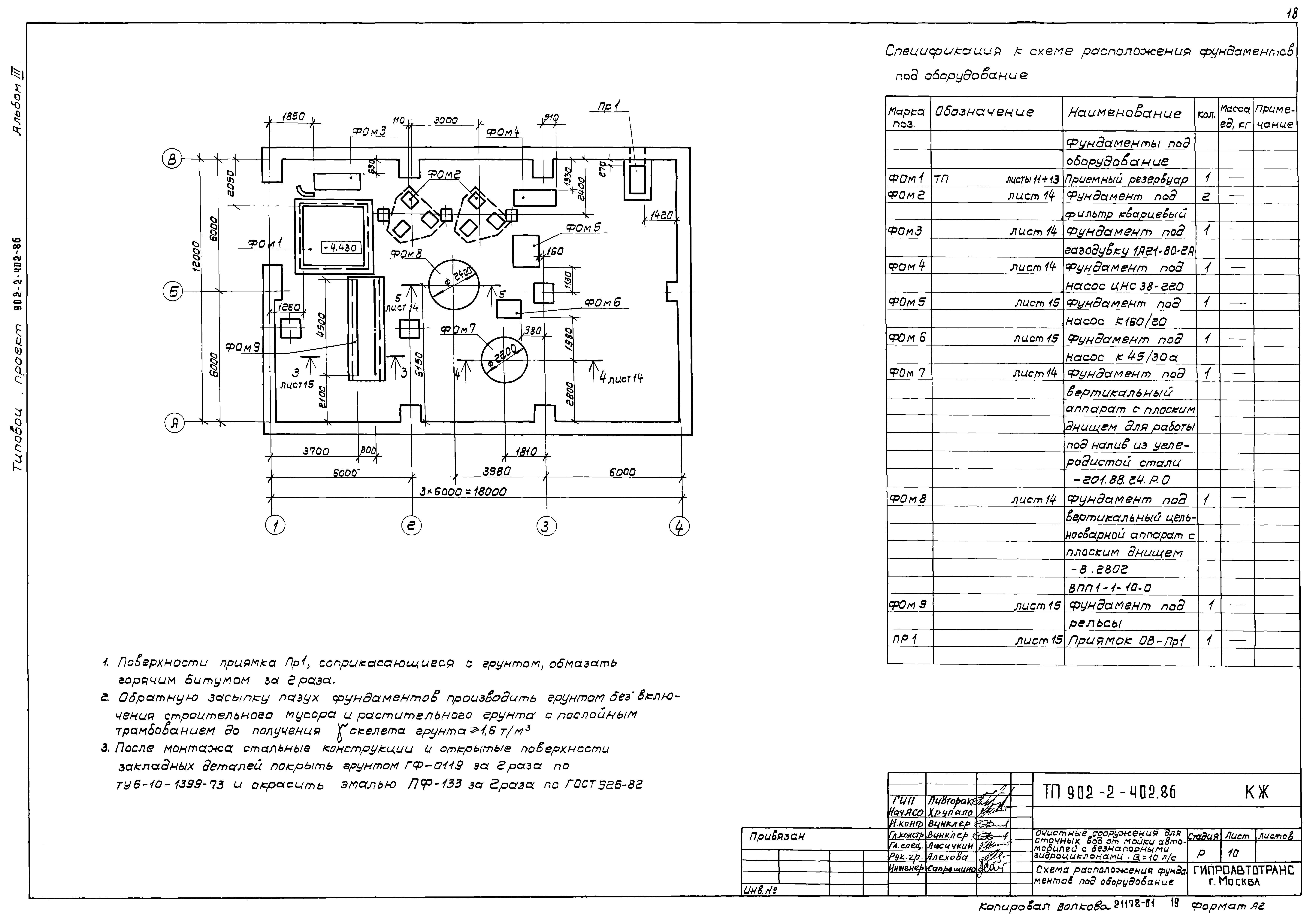
ТП 902-2-402.86-КЖ-10 Схема расположения фундаментов под оборудование
ТП 902-2-402.86-КЖ-11 Фундамент под оборудование ФОМ1. План. Разрезы 1-1,2-2
ТП 902-2-402.86-КЖ-12 Фундамент под оборудование ФОМ1. Днище монолитное ДМ1
ТП 902-2-402.86-КЖ-13 Фундамент под оборудование ФОМ1. Схемы расположения панелей, стен и плит перекрытия
ТП 902-2-402.86-КЖ-14 Фундамент под оборудование ФОМ2-ФОМ4;ФОМ7;ФОМ8
ТП 902-2-402.86-КЖ-15 Фундамент под оборудование ФОМ5,ФОМ6,ФОМ9, приямок ПР1
ТП 902-2-402.86-КМ Конструкции металлические КМ
ТП 902-2-402.86-КМ-1 Общие данные (начало)
ТП 902-2-402.86-КМ-2 Общие данные (продолжение)
ТП 902-2-402.86-КМ-3 Общие данные (окончание)
ТП 902-2-402.86-КМ-4 Схемы расположения элементов площадок на отметках 4.500;3.600;2.700;-2.000
ТП 902-2-402.86-КМ-5 Схемы расположения элементов площадок на отметках 4.500;3.600;2.700;-2.000. Разрезы. Узлы
ТП 902-2-402.86-КМ-6 Схемы расположения подвесных путей, перекрытия площадок на отметках 4.500;2.700;-2.000
ТП 902-2-402.86-ОВ Отопление и вентиляция ОВ
ТП 902-2-402.86-ОВ-1 Общие данные (начало)
ТП 902-2-402.86-ОВ-2 Общие данные (окончание)
ТП 902-2-402.86-ОВ-3 Отопление, теплоснабжение и вентиляция. Планы на отм. 0.000 и 3.600. Фрагмент 1
ТП 902-2-402.86-ОВ-4 Схемы узла управления, системы отопления, теплоснабжения, установки П1 систем вентиляции П1,В1-В3,ВЕ1-ВЕ5
ТП 902-2-402.86-ОВ-5 Установки систем П1;В3
ТП 902-2-402.86 Чертежи общих видов нетиповых конструкций ОВН
ТП 902-2-402.86-ОВН Содержание
ТП 902-2-402.86-ОВН-1 Поддон к стакану ø700 для крышного вентилятора
ТП 902-2-402.86-ОВН-2 Регистр из гладких труб
Разработан: Гипроавтотранс
Утверждён:27.03.1985 Минавтотранс РСФСР (Russian Federation Minavtotrans 55)
Издан: ЦИТП Госстроя СССР (CITP, Gosstroy (USSR) 1984 г. )
Расположен в:Техническая документация Строительство Справочные документы Типовые строительные конструкции, изделия и узлы Общероссийский строительный каталог Промышленные предприятия, здания и сооружения Здания и сооружения санитарно-технические Канализация Сооружения для очистки производственных сточных вод Сооружения для очистки сточных вод от мойки автомобилей
Чем заменён:
Типовой проект 902-2-402.86Типовой проект 902-2-402.86Типовой проект 902-2-402.86Типовой проект 902-2-402.86Типовой проект 902-2-402.86Типовой проект 902-2-402.86Типовой проект 902-2-402.86Типовой проект 902-2-402.86Типовой проект 902-2-402.86Типовой проект 902-2-402.86Типовой проект 902-2-402.86Типовой проект 902-2-402.86Типовой проект 902-2-402.86Типовой проект 902-2-402.86Типовой проект 902-2-402.86Типовой проект 902-2-402.86Типовой проект 902-2-402.86Типовой проект 902-2-402.86Типовой проект 902-2-402.86Типовой проект 902-2-402.86Типовой проект 902-2-402.86Типовой проект 902-2-402.86Типовой проект 902-2-402.86Типовой проект 902-2-402.86Типовой проект 902-2-402.86Типовой проект 902-2-402.86Типовой проект 902-2-402.86Типовой проект 902-2-402.86Типовой проект 902-2-402.86Типовой проект 902-2-402.86Типовой проект 902-2-402.86Типовой проект 902-2-402.86Типовой проект 902-2-402.86Типовой проект 902-2-402.86Типовой проект 902-2-402.86Типовой проект 902-2-402.86Типовой проект 902-2-402.86Типовой проект 902-2-402.86

© 2013 Ёшкин Кот :-) Карта сайта