Информационная система
«Ёшкин Кот»

Скачать базу одним архивом
Скачать обновления
История создания базы
Карта сайта

Скачать Типовой проект 902-2-385.85 Альбом IX. Конструкторская документация флотатора производительностью 20 куб. м в час

Дата актуализации: 10.08.2017

Типовой проект 902-2-385.85

Альбом IX. Конструкторская документация флотатора производительностью 20 куб. м в час

Обозначение: Типовой проект 902-2-385.85
Обозначение англ: 902-2-385.85
Статус:действует
Название рус.:Альбом IX. Конструкторская документация флотатора производительностью 20 куб. м в час
Дата добавления в базу:01.09.2013
Дата актуализации:05.05.2017
Дата введения:01.06.1985
Оглавление:ТП 902-2-385.85 Содержание альбома
ТП 902-2-385.85 ТМ81.00.00.00 Флотатор заводского изготовления производительностью 20 м³/ч
ТП 902-2-385.85 ТМ81.01.00.00 Корпус
ТП 902-2-385.85 ТМ81.01.01.00 Кронштейн
ТП 902-2-385.85 ТМ81.02.00.00 Рама
ТП 902-2-385.85 ТМ81.03.00.00 Смеситель
ТП 902-2-385.85 ТМ81.04.00.00 Змеевик
ТП 902-2-385.85 ТМ81.05.00.00 Механизм сгребания пены
ТП 902-2-385.85 ТМ81.05.01.00 Звездочка Z=32 t=19.05
ТП 902-2-385.85 ТМ81.05.02.00 Звездочка Z=32 t=19.05
ТП 902-2-385.85 ТМ81.05.03.00 Звездочка Z=13 t=19.05
ТП 902-2-385.85 ТМ81.05.04.00 Скребок
ТП 902-2-385.85 ТМ81.05.05.00 Кронштейн
ТП 902-2-385.85 ТМ81.05.06.00 Кронштейн
ТП 902-2-385.85 ТМ81.05.07.00 Кронштейн
ТП 902-2-385.85 ТМ81.05.08.00 Кронштейн
ТП 902-2-385.85 ТМ81.05.09.00 Муфта
ТП 902-2-385.85 ТМ81.05.10.00 Муфта
ТП 902-2-385.85 ТМ81.06.00.00 Бак для коагулянта
ТП 902-2-385.85 ТМ81.07.00.00 Бак напорный емк. 0.4 м³
ТП 902-2-385.85 ТМ81.07.01.00 Цилиндр
ТП 902-2-385.85 ТМ81.07.02.00 Вставка
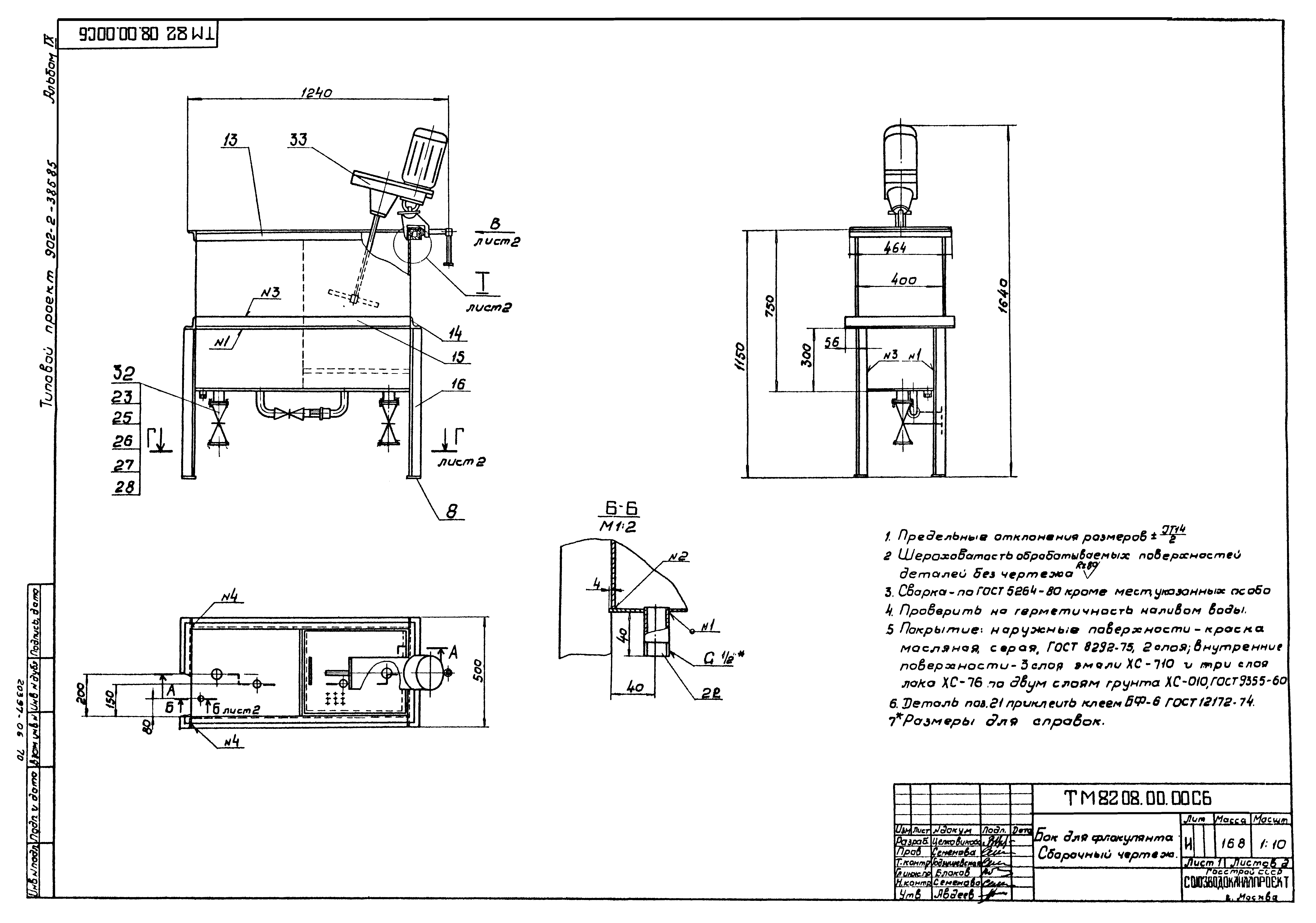
ТП 902-2-385.85 ТМ81.08.00.00 Бак для флокулянта
ТП 902-2-385.85 ТМ81.08.01.00 Сетка
ТП 902-2-385.85 ТМ81.09.00.00 Эжектор
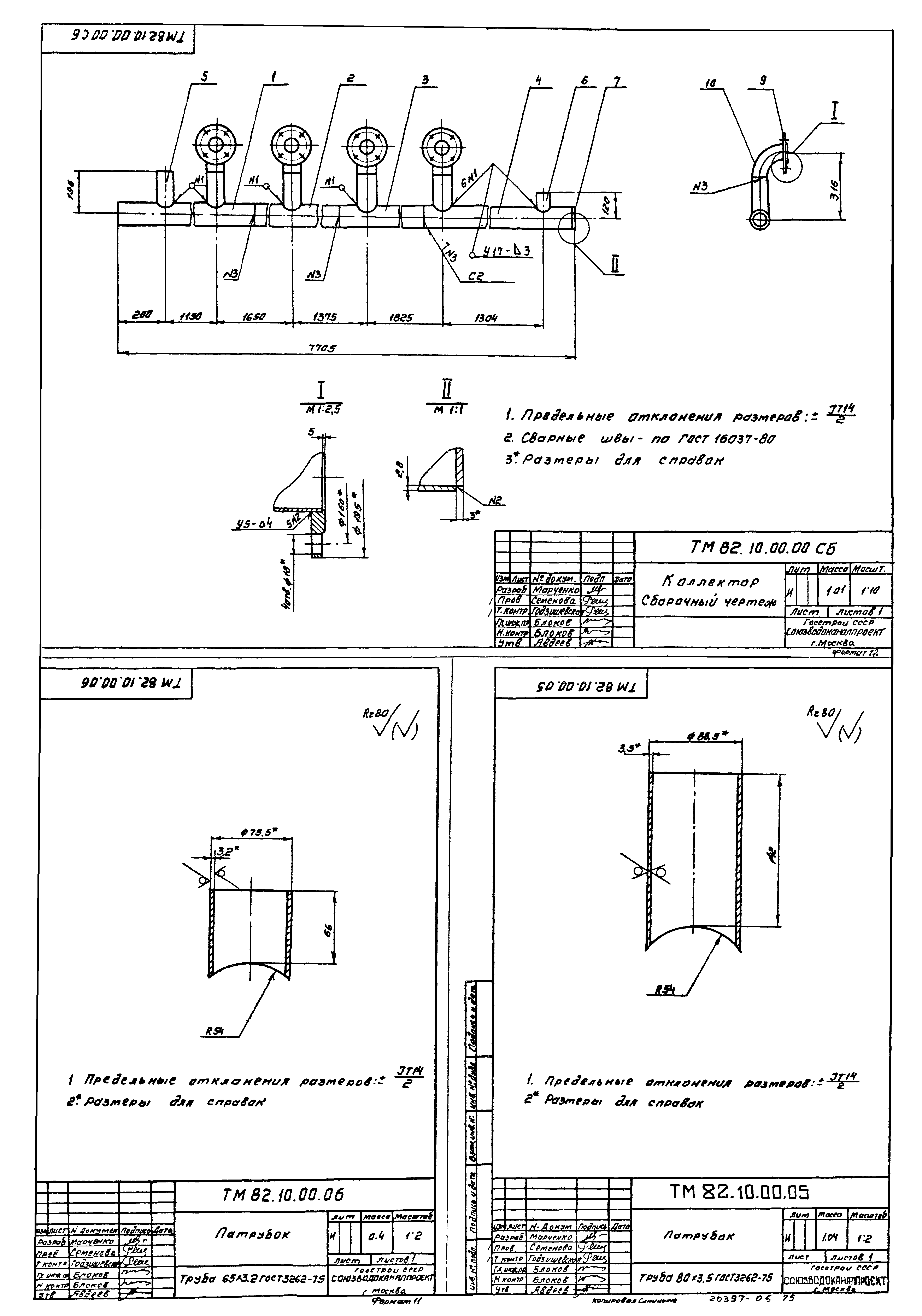
ТП 902-2-385.85 ТМ81.10.00.00 Коллектор
ТП 902-2-385.85 ТМ81.11.00.00 Щит
ТП 902-2-385.85 ТМ81.12.00.00 Щит
ТП 902-2-385.85 ТМ81.13.00.00 Щит
ТП 902-2-385.85 ТМ81.14.00.00 Щит
ТП 902-2-385.85 ТМ81.15.00.00 Щит
ТП 902-2-385.85 ТМ81.16.00.00 Щит
ТП 902-2-385.85 ТМ81.17.00.00 Щит
ТП 902-2-385.85 ТМ81.18.00.00 Боковина
ТП 902-2-385.85 ТМ81.19.00.00 Перекрытие
ТП 902-2-385.85 ТМ81.20.00.00 Труба
ТП 902-2-385.85 ТМ81.21.00.00 Труба
ТП 902-2-385.85 ТМ81.00.00.00 СБ Флотатор заводского изготовления производительностью 10 м³/ч. Сборочный чертеж
ТП 902-2-385.85 ТМ81.00.00.01 Гайка нажимная
ТП 902-2-385.85 ТМ81.00.00.02 Диафрагма
ТП 902-2-385.85 ТМ81.00.00.03 Кронштейн
ТП 902-2-385.85 ТМ81.00.00.04 Кронштейн
ТП 902-2-385.85 ТМ81.00.00.05 Штуцер
ТП 902-2-385.85 ТМ81.00.00.06 Переход
ТП 902-2-385.85 ТМ81.00.00.07 Фланец
ТП 902-2-385.85 ТМ81.00.00.08 Диафрагма
ТП 902-2-385.85 ТМ81.00.00.09 Штуцер
ТП 902-2-385.85 ТМ81.00.00.11 Сгон
ТП 902-2-385.85 ТМ81.00.00.12 Сгон
ТП 902-2-385.85 ТМ81.00.00.13 Линейка
ТП 902-2-385.85 ТМ81.00.00.14 Щиток
ТП 902-2-385.85 ТМ81.00.00.15 Направляющая
ТП 902-2-385.85 ТМ81.00.00.18 Уплотнение
ТП 902-2-385.85 ТМ81.00.00.21 Перемычка
ТП 902-2-385.85 ТМ81.00.00.22 Стойка
ТП 902-2-385.85 ТМ81.00.00.23 Стойка
ТП 902-2-385.85 ТМ81.00.00.24 Стойка
ТП 902-2-385.85 ТМ81.00.00.25 Стойка
ТП 902-2-385.85 ТМ81.00.00.27 Прокладка
ТП 902-2-385.85 ТМ81.00.00.28 Планка
ТП 902-2-385.85 ТМ81.04.00.00 СБ Змеевик. Сборочный чертеж
ТП 902-2-385.85 ТМ81.09.00.04 Сопло
ТП 902-2-385.85 ТМ81.01.00.00 СБ Корпус. Сборочный чертеж
ТП 902-2-385.85 ТМ81.01.00.01 Стенка
ТП 902-2-385.85 ТМ81.01.00.02 Стенка
ТП 902-2-385.85 ТМ81.01.00.03 Стенка
ТП 902-2-385.85 ТМ81.01.00.04 Дно
ТП 902-2-385.85 ТМ81.01.01.00 СБ Кронштейн. Сборочный чертеж
ТП 902-2-385.85 ТМ81.01.01.01 Ребро
ТП 902-2-385.85 ТМ81.01.00.05 Перегородка
ТП 902-2-385.85 ТМ81.01.00.06 Стенка
ТП 902-2-385.85 ТМ81.01.00.07 Дно
ТП 902-2-385.85 ТМ81.01.00.08 Дно
ТП 902-2-385.85 ТМ81.01.00.09 Стенка
ТП 902-2-385.85 ТМ81.01.00.11 Шпилька
ТП 902-2-385.85 ТМ81.01.00.12 Ушко
ТП 902-2-385.85 ТМ81.01.00.13 Планка
ТП 902-2-385.85 ТМ81.01.00.14 Бобышка
ТП 902-2-385.85 ТМ81.01.00.16 Бобышка
ТП 902-2-385.85 ТМ81.01.00.17 Бобышка
ТП 902-2-385.85 ТМ81.05.04.02 Стойка
ТП 902-2-385.85 ТМ81.01.00.18 Сгон
ТП 902-2-385.85 ТМ81.01.00.19 Хомут
ТП 902-2-385.85 ТМ81.01.00.21 Патрубок
ТП 902-2-385.85 ТМ81.01.00.18 Сгон
ТП 902-2-385.85 ТМ81.01.00.38 Косынка
ТП 902-2-385.85 ТМ81.01.00.39 Бобышка
ТП 902-2-385.85 ТМ81.01.00.43 Перегородка
ТП 902-2-385.85 ТМ81.01.00.44 Штуцер
ТП 902-2-385.85 ТМ81.01.00.45 Отвод
ТП 902-2-385.85 ТМ81.02.00.00 СБ Рама. Сборочный чертеж
ТП 902-2-385.85 ТМ81.02.00.01 Перекладина
ТП 902-2-385.85 ТМ81.02.00.02 Петля
ТП 902-2-385.85 ТМ81.02.00.03 Петля
ТП 902-2-385.85 ТМ81.02.00.06 Ребро
ТП 902-2-385.85 ТМ81.03.00.00 СБ Смеситель. Сборочный чертеж
ТП 902-2-385.85 ТМ81.03.00.01 Патрубок
ТП 902-2-385.85 ТМ81.03.00.02 Конус
ТП 902-2-385.85 ТМ81.03.00.03 Цилиндр
ТП 902-2-385.85 ТМ81.03.00.04 Косынка
ТП 902-2-385.85 ТМ81.03.00.05 Лапа
ТП 902-2-385.85 ТМ81.03.00.06 Дно
ТП 902-2-385.85 ТМ81.03.00.07 Патрубок
ТП 902-2-385.85 ТМ81.05.00.00 СБ Механизм сгребания пены. Сборочный чертеж
ТП 902-2-385.85 ТМ81.05.00.01 Вал
ТП 902-2-385.85 ТМ81.05.00.02 Вал
ТП 902-2-385.85 ТМ81.05.00.03 Платик
ТП 902-2-385.85 ТМ81.05.00.04 Валик
ТП 902-2-385.85 ТМ81.05.00.05 Упор
ТП 902-2-385.85 ТМ81.05.04.01 Щека
ТП 902-2-385.85 ТМ81.05.00.07 Лист
ТП 902-2-385.85 ТМ81.05.00.08 Пластина
ТП 902-2-385.85 ТМ81.05.04.00 СБ Скребок. Сборочный чертеж
ТП 902-2-385.85 ТМ81.05.02.00 СБ Звездочка Z=32 t=19.05. Сборочный чертеж
ТП 902-2-385.85 ТМ81.05.07.00 СБ Кронштейн. Сборочный чертеж
ТП 902-2-385.85 ТМ81.05.00.11 Платик
ТП 902-2-385.85 ТМ81.05.02.01 Ступица
ТП 902-2-385.85 ТМ81.05.02.02 Втулка
ТП 902-2-385.85 ТМ81.05.03.01 Втулка
ТП 902-2-385.85 ТМ81.05.05.00 СБ Кронштейн. Сборочный чертеж
ТП 902-2-385.85 ТМ81.05.05.01 Лист
ТП 902-2-385.85 ТМ81.05.05.02 Уголок
ТП 902-2-385.85 ТМ81.05.05.03 Уголок
ТП 902-2-385.85 ТМ81.05.05.04 Уголок
ТП 902-2-385.85 ТМ81.05.06.00 СБ Кронштейн. Сборочный чертеж
ТП 902-2-385.85 ТМ81.05.08.00 СБ Кронштейн. Сборочный чертеж
ТП 902-2-385.85 ТМ81.05.06.01 Бобышка
ТП 902-2-385.85 ТМ81.05.08.01 Втулка
ТП 902-2-385.85 ТМ81.05.08.02 Втулка
ТП 902-2-385.85 ТМ81.05.08.03 Ребро
ТП 902-2-385.85 ТМ81.05.06.02 Втулка
ТП 902-2-385.85 ТМ81.05.06.03 Втулка
ТП 902-2-385.85 ТМ81.05.06.04 Ребро
ТП 902-2-385.85 ТМ81.05.06.05 Ребро
ТП 902-2-385.85 ТМ81.05.01.01 Ступица
ТП 902-2-385.85 ТМ81.05.01.02 Диск
ТП 902-2-385.85 ТМ81.05.06.06 Основание
ТП 902-2-385.85 ТМ81.05.08.04 Ребро
ТП 902-2-385.85 ТМ81.05.07.01 Втулка
ТП 902-2-385.85 ТМ81.05.07.02 Ребро
ТП 902-2-385.85 ТМ81.05.07.03 Ребро
ТП 902-2-385.85 ТМ81.05.07.04 Основание
ТП 902-2-385.85 ТМ81.05.09.00 СБ Муфта. Сборочный чертеж
ТП 902-2-385.85 ТМ81.05.10.00 СБ Муфта. Сборочный чертеж
ТП 902-2-385.85 ТМ81.05.10.01 Полумуфта
ТП 902-2-385.85 ТМ81.05.10.02 Крестовина
ТП 902-2-385.85 ТМ81.05.10.03 Полумуфта
ТП 902-2-385.85 ТМ81.05.09.01 Полумуфта
ТП 902-2-385.85 ТМ81.05.09.02 Крестовина
ТП 902-2-385.85 ТМ81.05.09.03 Полумуфта
ТП 902-2-385.85 ТМ81.06.00.00 СБ Бак для коагулянта. Сборочный чертеж
ТП 902-2-385.85 ТМ81.06.00.01 Дно
ТП 902-2-385.85 ТМ81.06.00.02 Платик
ТП 902-2-385.85 ТМ81.06.00.03 Фланец
ТП 902-2-385.85 ТМ81.06.00.04 Фланец
ТП 902-2-385.85 ТМ81.07.00.00 СБ Бак напорный емк. 0.4 м³. Сборочный чертеж
ТП 902-2-385.85 ТМ81.07.00.01 Днище
ТП 902-2-385.85 ТМ81.07.00.03 Днище
ТП 902-2-385.85 ТМ81.07.01.00 СБ Цилиндр. Сборочный чертеж
ТП 902-2-385.85 ТМ81.07.01.01 Цилиндр
ТП 902-2-385.85 ТМ81.07.00.02 Цилиндр
ТП 902-2-385.85 ТМ81.07.00.04 Сопло
ТП 902-2-385.85 ТМ81.07.00.05 Пятка
ТП 902-2-385.85 ТМ81.07.00.06 Патрубок
ТП 902-2-385.85 ТМ81.07.00.07 Патрубок
ТП 902-2-385.85 ТМ81.07.00.08 Штуцер
ТП 902-2-385.85 ТМ81.07.02.00 СБ Вставка. Сборочный чертеж
ТП 902-2-385.85 ТМ81.07.02.01 Труба
ТП 902-2-385.85 ТМ81.07.02.02 Фланец
ТП 902-2-385.85 ТМ81.08.01.00 СБ Сетка. Сборочный чертеж
ТП 902-2-385.85 ТМ81.08.00.00 СБ Бак для флокулянта. Сборочный чертеж
ТП 902-2-385.85 ТМ81.08.00.01 Дно
ТП 902-2-385.85 ТМ81.08.00.02 Боковина
ТП 902-2-385.85 ТМ81.08.00.03 Колено
ТП 902-2-385.85 ТМ81.08.00.04 Сгон
ТП 902-2-385.85 ТМ81.08.00.05 Платик
ТП 902-2-385.85 ТМ81.08.00.07 Перекладина
ТП 902-2-385.85 ТМ81.08.00.21 Патрубок
ТП 902-2-385.85 ТМ81.09.00.03 Конус выходной
ТП 902-2-385.85 ТМ81.09.00.00 СБ Эжектор. Сборочный чертеж
ТП 902-2-385.85 ТМ81.09.00.01 Конус входной
ТП 902-2-385.85 ТМ81.09.00.02 Корпус
ТП 902-2-385.85 ТМ81.10.00.00 СБ Коллектор. Сборочный чертеж
ТП 902-2-385.85 ТМ81.10.00.05 Патрубок
ТП 902-2-385.85 ТМ81.10.00.06 Патрубок
ТП 902-2-385.85 ТМ81.10.00.01 Труба
ТП 902-2-385.85 ТМ81.10.00.02 Труба
ТП 902-2-385.85 ТМ81.10.00.03 Труба
ТП 902-2-385.85 ТМ81.10.00.04 Труба
ТП 902-2-385.85 ТМ81.11.00.00 СБ Щит. Сборочный чертеж
ТП 902-2-385.85 ТМ81.12.00.00 СБ Щит. Сборочный чертеж
ТП 902-2-385.85 ТМ81.11.00.01 Лист
ТП 902-2-385.85 ТМ81.11.00.02 Ручка
ТП 902-2-385.85 ТМ81.16.00.00 СБ Щит. Сборочный чертеж
ТП 902-2-385.85 ТМ81.16.00.01 Накладка
ТП 902-2-385.85 ТМ81.13.00.00 СБ Щит. Сборочный чертеж
ТП 902-2-385.85 ТМ81.14.00.00 СБ Щит. Сборочный чертеж
ТП 902-2-385.85 ТМ81.15.00.00 СБ Щит. Сборочный чертеж
ТП 902-2-385.85 ТМ81.17.00.00 СБ Щит. Сборочный чертеж
ТП 902-2-385.85 ТМ81.18.00.00 СБ Боковина. Сборочный чертеж
ТП 902-2-385.85 ТМ81.19.00.00 СБ Перекрытие. Сборочный чертеж
ТП 902-2-385.85 ТМ81.05.00.06 Ось
ТП 902-2-385.85 ТМ81.05.00.09 Болт
ТП 902-2-385.85 ТМ81.20.00.00 СБ Труба. Сборочный чертеж
ТП 902-2-385.85 ТМ81.21.00.00 СБ Труба. Сборочный чертеж
ТП 902-2-385.85 ТМ81.00.00.00 ТУ Технические условия
ТП 902-2-385.85 ТМ81.00.00.00 ВП Ведомость покупных изделий
Разработан: Союзводоканалпроект
Утверждён:28.12.1984 Госстрой СССР (Государственный комитет Совета Министров СССР по делам строительства) (USSR Gosstroy 40)
Издан: ЦИТП Госстроя СССР (CITP, Gosstroy (USSR) 1985 г. )
Расположен в:Техническая документация Строительство Справочные документы Типовые строительные конструкции, изделия и узлы Общероссийский строительный каталог Промышленные предприятия, здания и сооружения Здания и сооружения санитарно-технические Канализация Сооружения для очистки производственных сточных вод Флотаторы
Типовой проект 902-2-385.85Типовой проект 902-2-385.85Типовой проект 902-2-385.85Типовой проект 902-2-385.85Типовой проект 902-2-385.85Типовой проект 902-2-385.85Типовой проект 902-2-385.85Типовой проект 902-2-385.85Типовой проект 902-2-385.85Типовой проект 902-2-385.85Типовой проект 902-2-385.85Типовой проект 902-2-385.85Типовой проект 902-2-385.85Типовой проект 902-2-385.85Типовой проект 902-2-385.85Типовой проект 902-2-385.85Типовой проект 902-2-385.85Типовой проект 902-2-385.85Типовой проект 902-2-385.85Типовой проект 902-2-385.85Типовой проект 902-2-385.85Типовой проект 902-2-385.85Типовой проект 902-2-385.85Типовой проект 902-2-385.85Типовой проект 902-2-385.85Типовой проект 902-2-385.85Типовой проект 902-2-385.85Типовой проект 902-2-385.85Типовой проект 902-2-385.85Типовой проект 902-2-385.85Типовой проект 902-2-385.85Типовой проект 902-2-385.85Типовой проект 902-2-385.85Типовой проект 902-2-385.85Типовой проект 902-2-385.85Типовой проект 902-2-385.85Типовой проект 902-2-385.85Типовой проект 902-2-385.85Типовой проект 902-2-385.85Типовой проект 902-2-385.85Типовой проект 902-2-385.85Типовой проект 902-2-385.85Типовой проект 902-2-385.85Типовой проект 902-2-385.85Типовой проект 902-2-385.85Типовой проект 902-2-385.85Типовой проект 902-2-385.85Типовой проект 902-2-385.85Типовой проект 902-2-385.85Типовой проект 902-2-385.85Типовой проект 902-2-385.85Типовой проект 902-2-385.85Типовой проект 902-2-385.85Типовой проект 902-2-385.85Типовой проект 902-2-385.85Типовой проект 902-2-385.85Типовой проект 902-2-385.85Типовой проект 902-2-385.85Типовой проект 902-2-385.85Типовой проект 902-2-385.85Типовой проект 902-2-385.85Типовой проект 902-2-385.85Типовой проект 902-2-385.85Типовой проект 902-2-385.85Типовой проект 902-2-385.85Типовой проект 902-2-385.85Типовой проект 902-2-385.85Типовой проект 902-2-385.85Типовой проект 902-2-385.85Типовой проект 902-2-385.85Типовой проект 902-2-385.85Типовой проект 902-2-385.85Типовой проект 902-2-385.85Типовой проект 902-2-385.85Типовой проект 902-2-385.85Типовой проект 902-2-385.85Типовой проект 902-2-385.85Типовой проект 902-2-385.85Типовой проект 902-2-385.85Типовой проект 902-2-385.85Типовой проект 902-2-385.85Типовой проект 902-2-385.85Типовой проект 902-2-385.85Типовой проект 902-2-385.85Типовой проект 902-2-385.85Типовой проект 902-2-385.85Типовой проект 902-2-385.85

© 2013 Ёшкин Кот :-) Карта сайта