Информационная система
«Ёшкин Кот»

Скачать базу одним архивом
Скачать обновления
История создания базы
Карта сайта

Скачать Типовой проект 407-3-412.86 Альбом III. Открытое распредустройство. Конструкции железобетонные. Наружная канализация

Дата актуализации: 10.08.2017

Типовой проект 407-3-412.86

Альбом III. Открытое распредустройство. Конструкции железобетонные. Наружная канализация

Обозначение: Типовой проект 407-3-412.86
Обозначение англ: 407-3-412.86
Статус:не определен законодательством
Название рус.:Альбом III. Открытое распредустройство. Конструкции железобетонные. Наружная канализация
Дата добавления в базу:01.09.2013
Дата актуализации:05.05.2017
Дата введения:16.07.1986
Оглавление:ТП 407-3-412.86 Титульный лист
ТП 407-3-412.86 Опись альбома
ТП 407-3-412.86-КЖ1 Лист 1 Общие данные
ТП 407-3-412.86-КЖ1 Лист 2 Схема расположения элементов ОРУ
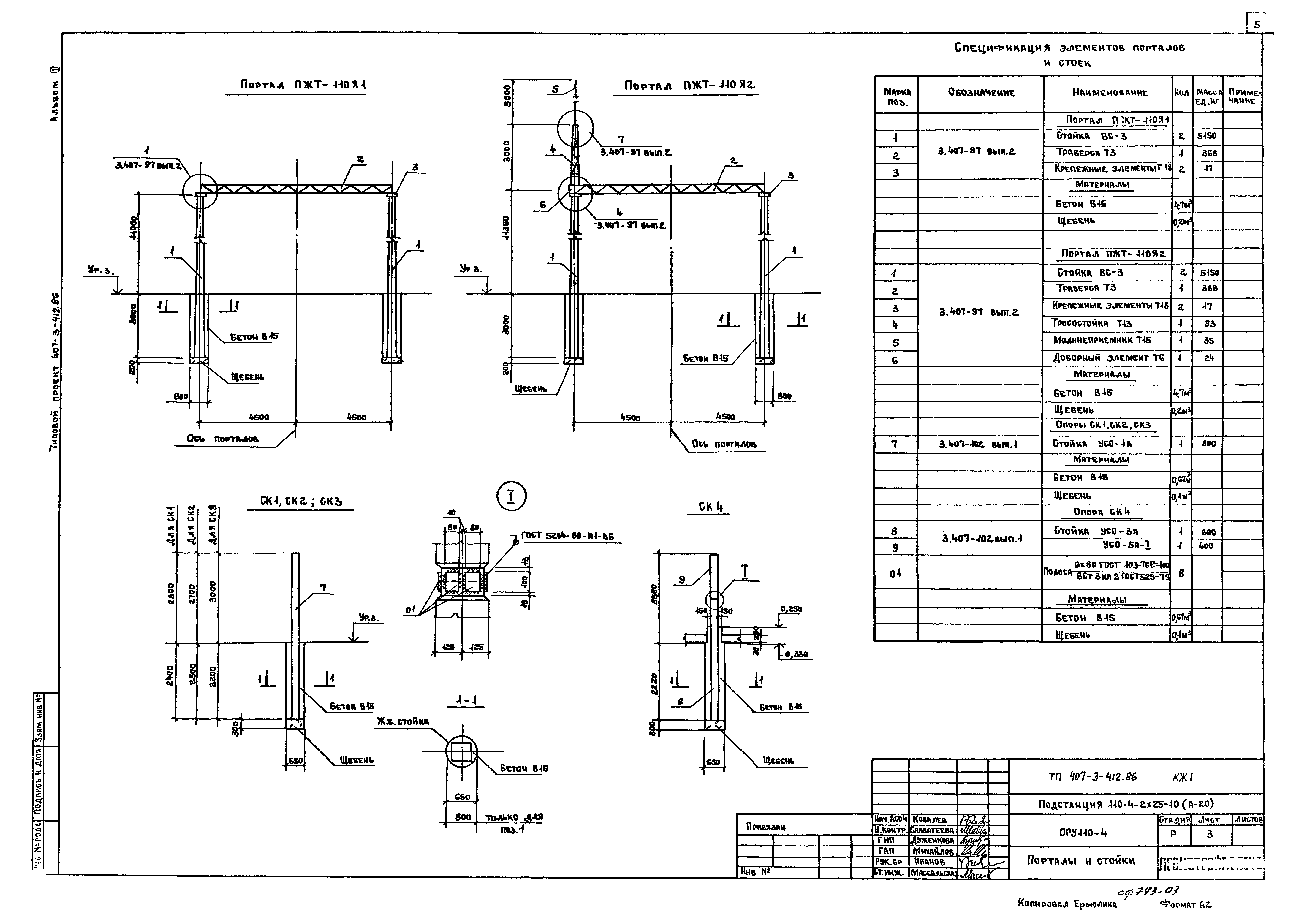
ТП 407-3-412.86-КЖ1 Лист 3 Порталы и стойки
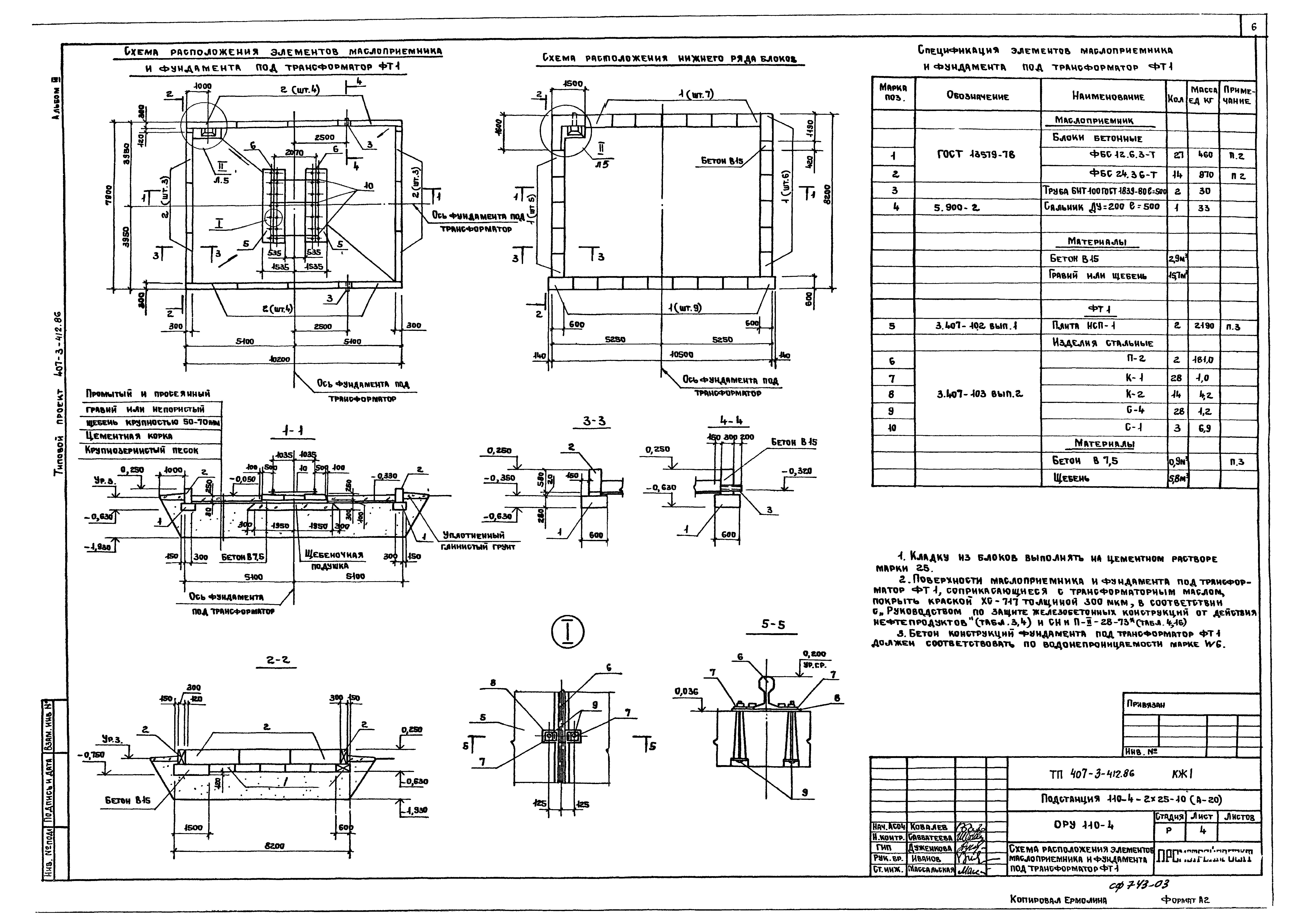
ТП 407-3-412.86-КЖ1 Лист 4 Схема расположения элементов маслоприемника и фундамента под трансформатор ФН
ТП 407-3-412.86-КЖ1 Лист 5 Узел 2. Молниеотвод МЖ-24,3. УМ1
ТП 407-3-412.86-КЖ1 Лист 6 Схема расположения элементов канала. Узел 1
ТП 407-3-412.86-КЖ1 Лист 7 Узлы 2...5
ТП 407-3-412.86-КЖ1 Лист 8 Колодцы для сети К2. Резервуар
ТП 407-3-412.86-КЖ1 Лист 9 Схема расположения элементов ограждения
ТП 407-3-412.86-КЖ1 Лист 10 Виды 1-1...5-5
ТП 407-3-412.86-НВК Лист 1 Общие данные
ТП 407-3-412.86-НВК Лист 2 Генплан, профили системы К2
Разработан: ГПИ Электропроект
Утверждён:16.07.1986 Минмонтажспецстрой СССР (USSR Minmontazhspetsstroy )
Расположен в:Техническая документация Строительство Справочные документы Типовые строительные конструкции, изделия и узлы Общероссийский строительный каталог Промышленные предприятия, здания и сооружения Предприятия, здания и сооружения промышленности и электроэнергетики Электроэнергетика Устройства и подстанции распределительные
Типовой проект 407-3-412.86Типовой проект 407-3-412.86Типовой проект 407-3-412.86Типовой проект 407-3-412.86Типовой проект 407-3-412.86Типовой проект 407-3-412.86Типовой проект 407-3-412.86Типовой проект 407-3-412.86Типовой проект 407-3-412.86Типовой проект 407-3-412.86Типовой проект 407-3-412.86Типовой проект 407-3-412.86Типовой проект 407-3-412.86Типовой проект 407-3-412.86

© 2013 Ёшкин Кот :-) Карта сайта