Информационная система
«Ёшкин Кот»

Скачать базу одним архивом
Скачать обновления
История создания базы
Карта сайта

Скачать Типовой проект 904-1-51 Альбом 8. Строительные конструкции и изделия

Дата актуализации: 10.08.2017

Типовой проект 904-1-51

Альбом 8. Строительные конструкции и изделия

Обозначение: Типовой проект 904-1-51
Обозначение англ: 904-1-51
Статус:действует
Название рус.:Альбом 8. Строительные конструкции и изделия
Дата добавления в базу:01.09.2013
Дата актуализации:05.05.2017
Дата введения:01.05.1982
Оглавление:ТП 904-1-51-КЖИ-ТТ1 Технические требования к изготовлению сборных железобетонных изделий
ТП 904-1-51-КЖИ-ТТ2 Технические требования к изготовлению арматурных, закладных и соединительных изделий
ТП 904-1-51-КЖИ-К7-1 Колонна К7-1
ТП 904-1-51-КЖИ-К7-2 Колонна К7-2
ТП 904-1-51-КЖИ-К72-5-1 Колонна К72-5-1
ТП 904-1-51-КЖИ-К72-5-2,К72-5-6 Колонна (К72-5-2,К72-5-6)
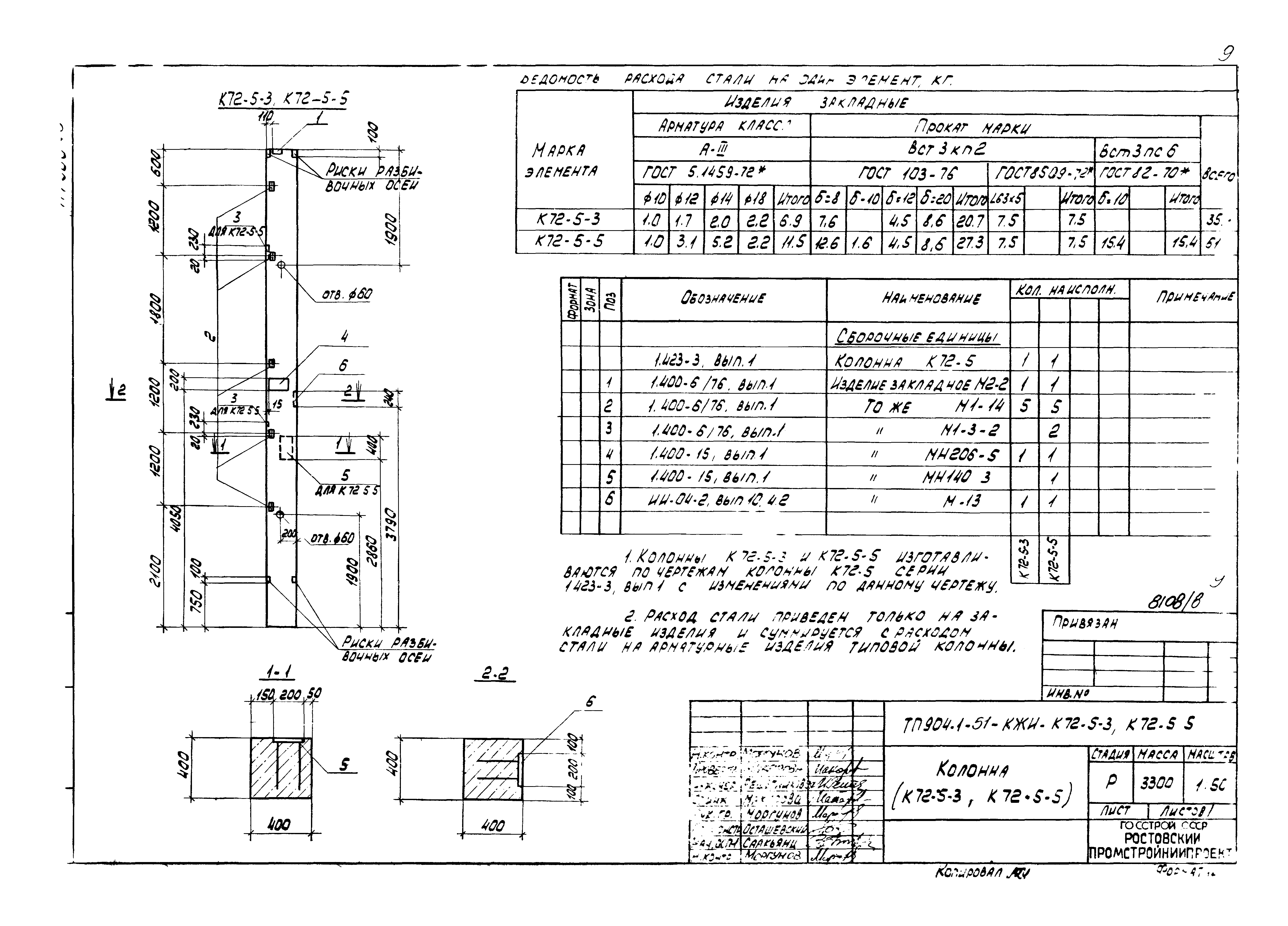
ТП 904-1-51-КЖИ-К72-5-3,К72-5-5 Колонна (К72-5-3,К72-5-5)
ТП 904-1-51-КЖИ-К72-5-4 Колонна К72-5-4
ТП 904-1-51-КЖИ-100 Балка (2БП12-48-1,2БП12-58-1)
ТП 904-1-51-КЖИ-ПС1-1-3 Панель ПС1-1-3
ТП 904-1-51-КЖИ-Р1 Ригель Р1
ТП 904-1-51-КЖИ-Р1 СБ Ригель Р1. Сборочный чертеж
ТП 904-1-51-КЖИ-200 Плита покрытия (ПГ-2ВРIIТ-1,ПГ-3ВРIIТ-1,ПГ-2ВРIIТ-2,ПГ-3ВРIIТ-2,ПГ-2ВРIIТ-3,ПГ-3ВРIIТ-3)
ТП 904-1-51-КЖИ-201 Плита покрытия (ПВЧ-2ВРIIТ-1,ПВ7-2ВРIIТ-1,ПВЧ-3ВРIIТ-1,ПВ7-3ВРIIТ-1,ПВЧ-2ВРIIТ-2,ПВЧ-3ВРIIТ-2)
ТП 904-1-51-КЖИ-П7-3-1 Плита П7-3-1
ТП 904-1-51-КЖИ-П7д-3-1 Плита П7д-3-1
ТП 904-1-51-КЖИ-300 Плита (П7д-3-2,П10д-3-1)
ТП 904-1-51-КЖИ-П7д-3-3 Плита П7д-3-3
ТП 904-1-51-КЖИ-ПС1-1-1 Панель ПС1-1-1
ТП 904-1-51-КЖИ-ПС1-1-2 Панель ПС1-1-2
ТП 904-1-51-КЖИ-ПС2-1-1 Панель ПС2-1-1
ТП 904-1-51-КЖИ-ПС2-1-2 Панель ПС2-1-2
ТП 904-1-51-КЖИ-ПС145.12.20-Я-1 Панель стеновая ПС145.12.20-Я-1
ТП 904-1-51-КЖИ-ПС295.12.20-Я-1 Панель стеновая ПС295.12.20-Я-1
ТП 904-1-51-КЖИ-ПС600.12.20-Я-2-1 Панель стеновая ПС600.12.20-Я-2-1
ТП 904-1-51-КЖИ-ПС600.12.20-Я-2-2 Панель стеновая ПС600.12.20-Я-2-2
ТП 904-1-51-КЖИ-ПС600.12.20-Я-2-3 Панель стеновая ПС600.12.20-Я-2-3
ТП 904-1-51-КЖИ-ПС600.12.20-Я-2-4 Панель стеновая ПС600.12.20-Я-2-4
ТП 904-1-51-КЖИ-ППБ-13/2.54х3.04-1 Панель ППБ-13/2.54х3.04-1
ТП 904-1-51-КЖИ-ППБ-21-8/2.98х3.34-1 Панель ППБ-21-8/2.98х3.34-1
ТП 904-1-51-КЖИ-ППБ-5/5.64х0.69-1 Панель ППБ-5/5.64х0.69-1
ТП 904-1-51-КЖИ-ПГ1 Панель ПГ1
ТП 904-1-51-КЖИ-ПГ2 Панель ПГ2
ТП 904-1-51-КЖИ-ПГ3 Панель ПГ3
ТП 904-1-51-КЖИ-ПГ4 Панель ПГ4
ТП 904-1-51-КЖИ-ПГ5 Панель ПГ5
ТП 904-1-51-КЖИ-ПГ6 Панель ПГ6
ТП 904-1-51-КЖИ-ПГ7 Панель ПГ7
ТП 904-1-51-КЖИ-ПГ8 Панель ПГ8
ТП 904-1-51-КЖИ-ПГ9 Панель ПГ9
ТП 904-1-51-КЖИ-ПГ10 Панель ПГ10
ТП 904-1-51-КЖИ-ПГ11 Панель ПГ11
ТП 904-1-51-КЖИ-ПГ12 Панель ПГ12
ТП 904-1-51-КЖИ-ПГ13 Панель ПГ13
ТП 904-1-51-КЖИ-ПГ14 Панель ПГ14
ТП 904-1-51-КЖИ-ПГ15 Панель ПГ15
ТП 904-1-51-КЖИ-ПГ16 Панель ПГ16
ТП 904-1-51-КЖИ-ПГ17 Панель ПГ17
ТП 904-1-51-КЖИ-ПГ18 Панель ПГ18
ТП 904-1-51-КЖИ-ПГ19 Панель ПГ19
ТП 904-1-51-КЖИ-ПГ20 Панель ПГ20
ТП 904-1-51-КЖИ-С1 Сетка арматурная С1
ТП 904-1-51-КЖИ-С2,С5 Сетка арматурная (С2,С5)
ТП 904-1-51-КЖИ-С3,С4 Сетка арматурная (С3,С4)
ТП 904-1-51-КЖИ-С6,С9 Сетка арматурная (С6,С9)
ТП 904-1-51-КЖИ-С7 Сетка арматурная С7
ТП 904-1-51-КЖИ-С8 Сетка арматурная С8
ТП 904-1-51-КЖИ-С10 Сетка арматурная С10
ТП 904-1-51-КЖИ-С11 Сетка арматурная С11
ТП 904-1-51-КЖИ-С12 Сетка арматурная С12
ТП 904-1-51-КЖИ-С13 Сетка арматурная С13
ТП 904-1-51-КЖИ-С14 Сетка арматурная С14
ТП 904-1-51-КЖИ-С15 Сетка арматурная С15
ТП 904-1-51-КЖИ-С16 Сетка арматурная С16
ТП 904-1-51-КЖИ-С17 Сетка арматурная С17
ТП 904-1-51-КЖИ-С18 Сетка арматурная С18
ТП 904-1-51-КЖИ-С19 Сетка арматурная С19
ТП 904-1-51-КЖИ-С20 Сетка арматурная С20
ТП 904-1-51-КЖИ-С21 Сетка арматурная С21
ТП 904-1-51-КЖИ-С22 Сетка арматурная С22
ТП 904-1-51-КЖИ-С23 Сетка арматурная С23
ТП 904-1-51-КЖИ-С24 Сетка арматурная С24
ТП 904-1-51-КЖИ-С25 Сетка арматурная С25
ТП 904-1-51-КЖИ-С26 Сетка арматурная С26
ТП 904-1-51-КЖИ-С27 Сетка арматурная С27
ТП 904-1-51-КЖИ-С28 Сетка арматурная С28
ТП 904-1-51-КЖИ-С31 Сетка арматурная С31
ТП 904-1-51-КЖИ-КП1 Каркас пространственный КП1
ТП 904-1-51-КЖИ-КР1 Каркас плоский КР1
ТП 904-1-51-КЖИ-МС1 Изделие соединительное МС1
ТП 904-1-51-КЖИ-МС2 Изделие соединительное МС2
ТП 904-1-51-КЖИ-МС3 Изделие соединительное МС3
ТП 904-1-51-КЖИ-МС4 Изделие соединительное МС4
ТП 904-1-51-КЖИ-МС5-МС7 Изделие соединительное (МС5-МС7)
ТП 904-1-51-КЖИ-МС8,МС9,МС10 Изделие соединительное (МС8,МС9,МС10)
ТП 904-1-51-КЖИ-МН1,МН7 Изделие закладное (МН1,МН7)
ТП 904-1-51-КЖИ-МН6 Изделие закладное МН6
ТП 904-1-51-КЖИ-МН2-МН4 Изделие закладное (МН2-МН4)
ТП 904-1-51-КЖИ-МН5 Изделие закладное МН5
ТП 904-1-51-КЖИ-МН8 Изделие закладное МН8
ТП 904-1-51-КЖИ-МН9 Изделие закладное МН9
ТП 904-1-51-КЖИ-МН10,МН11 Изделие закладное (МН10,МН11)
ТП 904-1-51-КЖИ-МН12-МН14 Изделие закладное (МН12-МН14)
ТП 904-1-51-КЖИ-МН15 Изделие закладное МН15
ТП 904-1-51-КЖИ-МН16,МН18 Изделие закладное (МН16,МН18)
ТП 904-1-51-КЖИ-МН17 Изделие закладное МН17
ТП 904-1-51-КЖИ-МН19,МН20 Изделие закладное (МН19,МН20)
ТП 904-1-51-КЖИ-МН21 Изделие закладное МН21
ТП 904-1-51-КЖИ-МН22 Изделие закладное МН22
ТП 904-1-51-КЖИ-МН23 Изделие закладное МН23
ТП 904-1-51-КЖИ-МН24,МН25 Изделие закладное (МН24,МН25)
ТП 904-1-51-КЖИ-МН26 Изделие закладное МН26
ТП 904-1-51-КЖИ-МН27 Изделие закладное МН27
ТП 904-1-51-КЖИ-Щ1 Щит Щ1
ТП 904-1-51-КЖИ-ЩД1,ЩД2 Щит деревянный (ЩД1,ЩД2)
ТП 904-1-51-КЖИ-Р1,Р2 Решетка стальная (Р1,Р2)
ТП 904-1-51-КЖИ-Р3 Решетка стальная Р3
ТП 904-1-51-КЖИ-Р4 Решетка стальная Р4
ТП 904-1-51-КЖИ-Б1 Балка стальная Б1
Разработан: Ростовский Промстройниипроект Госстроя СССР
Утверждён:30.03.1982 Минстройдормаш (Minstroydormash 1/82)
Расположен в:Техническая документация Строительство Справочные документы Типовые строительные конструкции, изделия и узлы Общероссийский строительный каталог Промышленные предприятия, здания и сооружения Здания и сооружения санитарно-технические Воздухоснабжение, вентиляция и кондиционирование воздуха Воздухоснабжение
Типовой проект 904-1-51Типовой проект 904-1-51Типовой проект 904-1-51Типовой проект 904-1-51Типовой проект 904-1-51Типовой проект 904-1-51Типовой проект 904-1-51Типовой проект 904-1-51Типовой проект 904-1-51Типовой проект 904-1-51Типовой проект 904-1-51Типовой проект 904-1-51Типовой проект 904-1-51Типовой проект 904-1-51Типовой проект 904-1-51Типовой проект 904-1-51Типовой проект 904-1-51Типовой проект 904-1-51Типовой проект 904-1-51Типовой проект 904-1-51Типовой проект 904-1-51Типовой проект 904-1-51Типовой проект 904-1-51Типовой проект 904-1-51Типовой проект 904-1-51Типовой проект 904-1-51Типовой проект 904-1-51Типовой проект 904-1-51Типовой проект 904-1-51Типовой проект 904-1-51Типовой проект 904-1-51Типовой проект 904-1-51Типовой проект 904-1-51Типовой проект 904-1-51Типовой проект 904-1-51Типовой проект 904-1-51Типовой проект 904-1-51Типовой проект 904-1-51Типовой проект 904-1-51Типовой проект 904-1-51Типовой проект 904-1-51Типовой проект 904-1-51Типовой проект 904-1-51Типовой проект 904-1-51Типовой проект 904-1-51Типовой проект 904-1-51Типовой проект 904-1-51Типовой проект 904-1-51Типовой проект 904-1-51Типовой проект 904-1-51Типовой проект 904-1-51Типовой проект 904-1-51Типовой проект 904-1-51Типовой проект 904-1-51Типовой проект 904-1-51Типовой проект 904-1-51Типовой проект 904-1-51Типовой проект 904-1-51Типовой проект 904-1-51Типовой проект 904-1-51Типовой проект 904-1-51Типовой проект 904-1-51Типовой проект 904-1-51Типовой проект 904-1-51Типовой проект 904-1-51Типовой проект 904-1-51Типовой проект 904-1-51Типовой проект 904-1-51Типовой проект 904-1-51Типовой проект 904-1-51Типовой проект 904-1-51Типовой проект 904-1-51Типовой проект 904-1-51Типовой проект 904-1-51Типовой проект 904-1-51Типовой проект 904-1-51Типовой проект 904-1-51Типовой проект 904-1-51Типовой проект 904-1-51Типовой проект 904-1-51Типовой проект 904-1-51Типовой проект 904-1-51Типовой проект 904-1-51

© 2013 Ёшкин Кот :-) Карта сайта