Информационная система
«Ёшкин Кот»

Скачать базу одним архивом
Скачать обновления
История создания базы
Карта сайта

Скачать Типовой проект 904-1-51 Альбом 7. Нестандартизированное оборудование. Технологическая часть

Дата актуализации: 10.08.2017

Типовой проект 904-1-51

Альбом 7. Нестандартизированное оборудование. Технологическая часть

Обозначение: Типовой проект 904-1-51
Обозначение англ: 904-1-51
Статус:действует
Название рус.:Альбом 7. Нестандартизированное оборудование. Технологическая часть
Дата добавления в базу:01.09.2013
Дата актуализации:05.05.2017
Дата введения:01.05.1982
Оглавление:ТП 904-1-51 Обложка
ТП 904-1-51 Титульный лист
ТП 904-1-51 Содержание
ТП 904-1-51 ГФ.00.00.00.000 ТУ Фильтр воздушный с глушителем. Технические условия. Листы 1-5
ТП 904-1-51 ГФ.00.00.00.000 Установка фильтра воздушного с глушителем шума. Лист 1
ТП 904-1-51 ГФ.01.00.00.000 Глушитель шума. Листы 1,2
ТП 904-1-51 ГФ.00.00.00.000 СБ Установка фильтра воздушного с глушителем шума. Сборочный чертеж. Лист 1
ТП 904-1-51 ГФ.01.00.00.000 СБ Глушитель шума. Сборочный чертеж. Лист 1
ТП 904-1-51 ГФ.01.01.00.000 СБ Кассета. Сборочный чертеж. Лист 1
ТП 904-1-51 ГФ.01.01.00.000 Кассета. Лист 1
ТП 904-1-51 ГФ.01.02.00.000 Корпус. Листы 1,2
ТП 904-1-51 ГФ.01.01.01.000 Рама. Листы 1,2
ТП 904-1-51 ГФ.01.01.01.000 СБ Рама. Сборочный чертеж. Лист 1
ТП 904-1-51 ГФ.01.02.00.000 СБ Корпус. Сборочный чертеж. Лист 1
ТП 904-1-51 ГФ.01.02.01.000 СБ Обечайка. Сборочный чертеж. Лист 1
ТП 904-1-51 ГФ.01.02.01.000 Обечайка. Лист 1
ТП 904-1-51 ГФ.01.02.02.000 Плита упорная. Лист 1
ТП 904-1-51 ГФ.01.02.02.000 СБ Плита упорная. Сборочный чертеж. Лист 1
ТП 904-1-51 ГФ.01.03.00.000 Конфузор. Лист 1
ТП 904-1-51 ГФ.01.03.00.003 Лист боковой. Лист 1
ТП 904-1-51 ГФ.01.03.00.004 Лист. Лист 1
ТП 904-1-51 ГФ.01.03.00.005 Дно. Лист 1
ТП 904-1-51 ГФ.01.03.00.000 СБ Конфузор. Сборочный чертеж. Лист 1
ТП 904-1-51 ГФ.01.04.00.000 Короб. Лист 1
ТП 904-1-51 ГФ.01.05.00.000 Жалюзийная решетка. Лист 1
ТП 904-1-51 ГФ.01.05.00.000 СБ Жалюзийная решетка. Сборочный чертеж. Лист 1
ТП 904-1-51 ГФ.01.04.00.000 СБ Короб. Сборочный чертеж. Лист 1
ТП 904-1-51 ГФ.02.00.00.000 Опора под глушитель. Лист 1
ТП 904-1-51 ГФ.02.00.00.000 СБ Опора под глушитель. Сборочный чертеж. Лист 1
ТП 904-1-51 ГФ.02.00.00.001 Планка верхняя. Лист 1
ТП 904-1-51 ГФ.02.00.00.002 Планка нижняя Лист 1
ТП 904-1-51 ГФ.03.00.00.000 Фильтр. Листы 1,2
ТП 904-1-51 ГФ.03.01.00.000 Дверка фильтра. Листы 1,2
ТП 904-1-51 ГФ.03.00.00.000 СБ Фильтр. Сборочный чертеж. Лист 1
ТП 904-1-51 ГФ.03.01.00.000 СБ Дверка фильтра. Сборочный чертеж. Лист 1
ТП 904-1-51 ГФ.03.02.00.000 Корпус фильтра. Верхняя часть. Листы 1,2
ТП 904-1-51 ГФ.03.02.00.004 Лист боковой. Лист 1
ТП 904-1-51 ГФ.03.03.00.000 Корпус фильтра. Нижняя часть. Листы 1,2
ТП 904-1-51 ГФ.03.03.00.002 Лист боковой. Лист 1
ТП 904-1-51 ГФ.03.04.00.000 Рамка. Лист 1
ТП 904-1-51 ГФ.03.04.00.000 СБ Рамка. Сборочный чертеж. Лист 1
ТП 904-1-51 ГФ.03.02.00.000 СБ Корпус фильтра. Верхняя часть. Сборочный чертеж. Лист 1
ТП 904-1-51 ГФ.03.03.00.000 СБ Корпус фильтра. Нижняя часть. Сборочный чертеж. Лист 1
ТП 904-1-51 УО.00.000 ТУ Установка очистки трасс сжатого воздуха. Технические условия. Листы 1-4
ТП 904-1-51 УО.00.000 ТО Установка очистки трасс сжатого воздуха. Техническое описание и инструкция по эксплуатации. Листы 1-18
ТП 904-1-51 УО.00.003 Гайка накидная. Лист 1
ТП 904-1-51 УО.00.000 Установка для очистки трасс сжатого воздуха. Листы 1-3
ТП 904-1-51 УО.00.000 СБ Установка для очистки трасс сжатого воздуха. Сборочный чертеж. Листы 1,2
ТП 904-1-51 УО.00.002 Штуцер. Лист 1
ТП 904-1-51 УО.00.001 Коллектор. Лист 1
ТП 904-1-51 УО.01.001 Гайка-сопло. Лист 1
ТП 904-1-51 УО.01.000 Форсунка. Лист 1
ТП 904-1-51 УО.01.000 СБ Форсунка. Сборочный чертеж. Лист 1
ТП 904-1-51 БП.00.000 ТУ Бак продувочный. Технические условия. Листы 1-6
ТП 904-1-51 БП.00.000 Бак продувочный. Листы 1-3
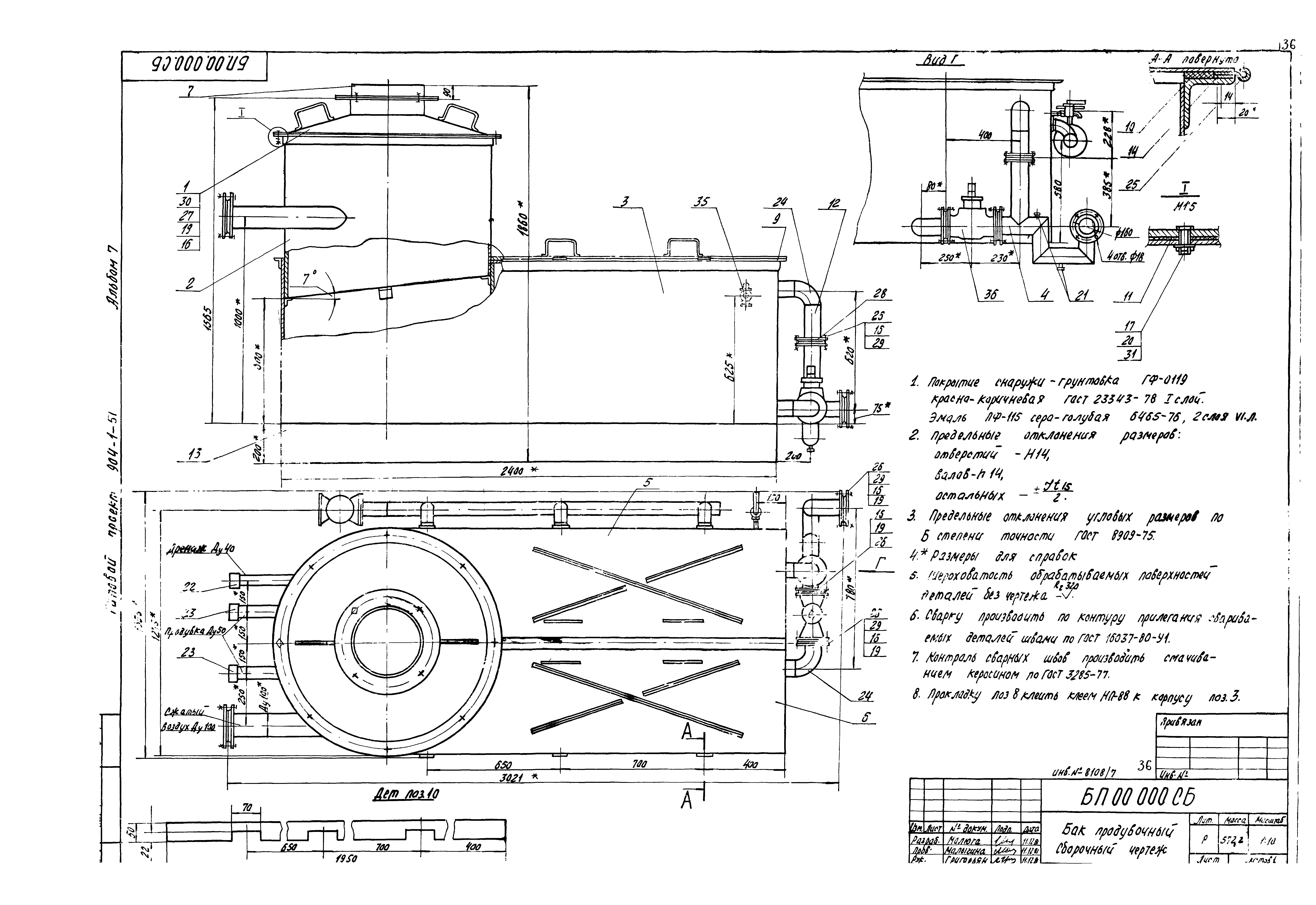
ТП 904-1-51 БП.00.000 СБ Бак продувочный. Сборочный чертеж. Лист 1
ТП 904-1-51 БП.01.000 Крышка. Лист 1
ТП 904-1-51 БП.01.000 СБ Крышка. Сборочный чертеж. Лист 1
ТП 904-1-51 БП.02.001 Днище. Лист 1
ТП 904-1-51 БП.02.000 Корпус. Лист 1
ТП 904-1-51 БП.02.000 СБ Корпус. Сборочный чертеж. Лист 1
ТП 904-1-51 БП.04.000 Отвод. Лист 1
ТП 904-1-51 БП.02.003 Перегородка. Лист 1
ТП 904-1-51 БП.03.000 Корпус. Листы 1-3
ТП 904-1-51 БП.03.000 СБ Корпус. Сборочный чертеж. Лист 1
ТП 904-1-51 БП.04.000 СБ Отвод. Сборочный чертеж. Лист 1
ТП 904-1-51 БП.05.000 Створка. Листы 1,2
ТП 904-1-51 БП.05.000 СБ Створка. Сборочный чертеж. Лист 1
ТП 904-1-51 БП.06.000 Патрубок. Лист 1
ТП 904-1-51 БП.06.000 СБ Патрубок. Сборочный чертеж. Лист 1
ТП 904-1-51 МС.00.000 Маслосборник. Листы 1,2
ТП 904-1-51 МС.00.000 СБ Маслосборник. Сборочный чертеж. Лист 1
ТП 904-1-51 ВП.00.000 ТУ Ванна для промывки ячеек фильтров. Технические условия. Листы 1-3
ТП 904-1-51 ВП.00.000 Ванна для промывки ячеек фильтров. Листы 1,2
ТП 904-1-51 ВП.01.000 Металлоконструкция. Лист 1
ТП 904-1-51 ВП.02.000 Барботер. Лист 1
ТП 904-1-51 ВП.03.000 Поддон. Лист 1
ТП 904-1-51 ВП.00.000 СБ Ванна для промывки ячеек фильтров. Сборочный чертеж. Лист 1
ТП 904-1-51 ВП.01.000 СБ Металлоконструкция. Сборочный чертеж. Лист 1
ТП 904-1-51 ВП.02.000 СБ Барботер. Сборочный чертеж. Лист 1
ТП 904-1-51 ВП.03.000 СБ Поддон. Сборочный чертеж. Лист 1
ТП 904-1-51 ВП.04.000 Крышка. Лист 1
ТП 904-1-51 ВП.04.000 СБ Крышка. Сборочный чертеж. Лист 1
ТП 904-1-51 ВЗ.00.000 ТУ Ванна для зарядки ячеек фильтров V=0.22м³. Технические условия. Листы 1-4
ТП 904-1-51 ВЗ.00.000 Ванна для зарядки ячеек фильтров V=0.22м³. Листы 1,2
ТП 904-1-51 ВЗ.00.000 СБ Ванна для зарядки ячеек фильтров V=0.22м³. Сборочный чертеж. Лист 1
ТП 904-1-51 ВЗ.00.002 Змеевик. Лист 1
ТП 904-1-51 ВЗ.00.004 Фланец. Лист 1
ТП 904-1-51 ВЗ.01.000 Крышка. Лист 1
ТП 904-1-51 ВЗ.01.001 Лист верхний. Лист 1
ТП 904-1-51 ВЗ.01.000 СБ Крышка. Сборочный чертеж. Лист 1
ТП 904-1-51 ВЗ.01.002 Рамка. Лист 1
ТП 904-1-51 ВЗ.01.003 Ручка. Лист 1
ТП 904-1-51 ВЗ.02.000 Металлоконструкция. Лист 1
ТП 904-1-51 ВЗ.02.002 Кронштейн. Лист 1
ТП 904-1-51 ВЗ.02.003 Обечайка. Лист 1
ТП 904-1-51 ВЗ.02.005 Палец. Лист 1
ТП 904-1-51 ВЗ.02.000 СБ Металлоконструкция. Сборочный чертеж. Лист 1
ТП 904-1-51 ВЗ.03.000 Поддон. Лист 1
ТП 904-1-51 ВЗ.03.000 СБ Поддон. Сборочный чертеж. Лист 1
ТП 904-1-51 ВЗ.03.001 Корыто. Лист 1
ТП 904-1-51 С0.00.000 Стол для отстоя ячеек фильтров. Лист 1
ТП 904-1-51 С0.01.000 Бункер. Лист 1
ТП 904-1-51 С0.01.000 СБ Бункер. Сборочный чертеж. Лист 1
ТП 904-1-51 С0.02.000 Металлоконструкция. Лист 1
ТП 904-1-51 С0.00.000 СБ Стол для отстоя ячеек фильтров. Сборочный чертеж. Лист 1
ТП 904-1-51 С0.02.000 СБ Металлоконструкция. Сборочный чертеж. Лист 1
ТП 904-1-51 С0.01.001 Боковина. Лист 1
ТП 904-1-51 С0.01.002 Боковина. Лист 1
ТП 904-1-51 С0.01.003 Патрубок. Лист 1
ТП 904-1-51 БМ.00.000 ТУ Бак расходный для масла V=300 л. Технические условия. Листы 1-4
ТП 904-1-51 БМ.00.000 Бак расходный для масла V=300 л. Листы 1-3
ТП 904-1-51 БМ.01.000 Корпус бака. Лист 1
ТП 904-1-51 БМ.00.000 СБ Бак расходный для масла V=300 л. Сборочный чертеж. Лист 1
ТП 904-1-51 БМ.01.000 СБ Корпус бака. Сборочный чертеж. Лист 1
ТП 904-1-51 БМ.01.003 Лист верхний. Лист 1
ТП 904-1-51 БМ.01.004 Обечайка. Лист 1
ТП 904-1-51 БМ.01.007 Фланец. Лист 1
ТП 904-1-51 БМ.03.000 Крышка. Лист 1
ТП 904-1-51 БМ.03.000 СБ Крышка. Сборочный чертеж. Лист 1
ТП 904-1-51 БМ.03.002 Лист. Лист 1
ТП 904-1-51 БМ.03.003 Ручка. Лист 1
ТП 904-1-51 БР.00.000 ТУ Бак расходный для масла V=50 л. Технические условия. Листы 1-4
ТП 904-1-51 БР.00.000 Бак расходный для масла V=50 л. Листы 1,2
ТП 904-1-51 БР.01.000 Корпус бака. Лист 1
ТП 904-1-51 БР.02.000 Колпачок. Лист 1
ТП 904-1-51 БР.00.000 СБ Бак расходный для масла V=50 л. Сборочный чертеж. Лист 1
ТП 904-1-51 БР.01.000 СБ Корпус бака. Сборочный чертеж. Лист 1
ТП 904-1-51 БР.03.000 Крышка. Лист 1
ТП 904-1-51 БР.03.000 СБ Крышка. Сборочный чертеж. Лист 1
ТП 904-1-51 БР.02.000 СБ Колпачок. Сборочный чертеж. Лист 1
Разработан: Гипростройдормаш
Утверждён:30.03.1982 Минстройдормаш (Minstroydormash 1/82)
Расположен в:Техническая документация Строительство Справочные документы Типовые строительные конструкции, изделия и узлы Общероссийский строительный каталог Промышленные предприятия, здания и сооружения Здания и сооружения санитарно-технические Воздухоснабжение, вентиляция и кондиционирование воздуха Воздухоснабжение
Типовой проект 904-1-51Типовой проект 904-1-51Типовой проект 904-1-51Типовой проект 904-1-51Типовой проект 904-1-51Типовой проект 904-1-51Типовой проект 904-1-51Типовой проект 904-1-51Типовой проект 904-1-51Типовой проект 904-1-51Типовой проект 904-1-51Типовой проект 904-1-51Типовой проект 904-1-51Типовой проект 904-1-51Типовой проект 904-1-51Типовой проект 904-1-51Типовой проект 904-1-51Типовой проект 904-1-51Типовой проект 904-1-51Типовой проект 904-1-51Типовой проект 904-1-51Типовой проект 904-1-51Типовой проект 904-1-51Типовой проект 904-1-51Типовой проект 904-1-51Типовой проект 904-1-51Типовой проект 904-1-51Типовой проект 904-1-51Типовой проект 904-1-51Типовой проект 904-1-51Типовой проект 904-1-51Типовой проект 904-1-51Типовой проект 904-1-51Типовой проект 904-1-51Типовой проект 904-1-51Типовой проект 904-1-51Типовой проект 904-1-51Типовой проект 904-1-51Типовой проект 904-1-51Типовой проект 904-1-51Типовой проект 904-1-51Типовой проект 904-1-51Типовой проект 904-1-51Типовой проект 904-1-51Типовой проект 904-1-51Типовой проект 904-1-51Типовой проект 904-1-51Типовой проект 904-1-51Типовой проект 904-1-51Типовой проект 904-1-51Типовой проект 904-1-51Типовой проект 904-1-51Типовой проект 904-1-51Типовой проект 904-1-51Типовой проект 904-1-51Типовой проект 904-1-51Типовой проект 904-1-51Типовой проект 904-1-51Типовой проект 904-1-51Типовой проект 904-1-51Типовой проект 904-1-51Типовой проект 904-1-51Типовой проект 904-1-51Типовой проект 904-1-51Типовой проект 904-1-51Типовой проект 904-1-51Типовой проект 904-1-51Типовой проект 904-1-51Типовой проект 904-1-51Типовой проект 904-1-51Типовой проект 904-1-51Типовой проект 904-1-51Типовой проект 904-1-51

© 2013 Ёшкин Кот :-) Карта сайта