Информационная система
«Ёшкин Кот»

Скачать базу одним архивом
Скачать обновления
История создания базы
Карта сайта

Скачать Типовой проект 904-1-51 Альбом 5. Архитектурно-строительная и сантехническая части для 4 компрессоров

Дата актуализации: 10.08.2017

Типовой проект 904-1-51

Альбом 5. Архитектурно-строительная и сантехническая части для 4 компрессоров

Обозначение: Типовой проект 904-1-51
Обозначение англ: 904-1-51
Статус:действует
Название рус.:Альбом 5. Архитектурно-строительная и сантехническая части для 4 компрессоров
Дата добавления в базу:01.09.2013
Дата актуализации:05.05.2017
Дата введения:01.05.1982
Оглавление:ТП 904-1-51-АР Содержание альбома
ТП 904-1-51-АР-ПЗ Пояснительная записка
ТП 904-1-51-АР Архитектурные решения
ТП 904-1-51-АР-1 Общие данные (начало)
ТП 904-1-51-АР-2 Общие данные (окончание)
ТП 904-1-51-АР-3 План подземных конструкций
ТП 904-1-51-АР-4 Фрагмент 1. Фундаменты под оборудование ФО2-ФО4
ТП 904-1-51-АР-5 Фундаменты под оборудование ФО5-ФО12. Приямки ПР1;ПР2
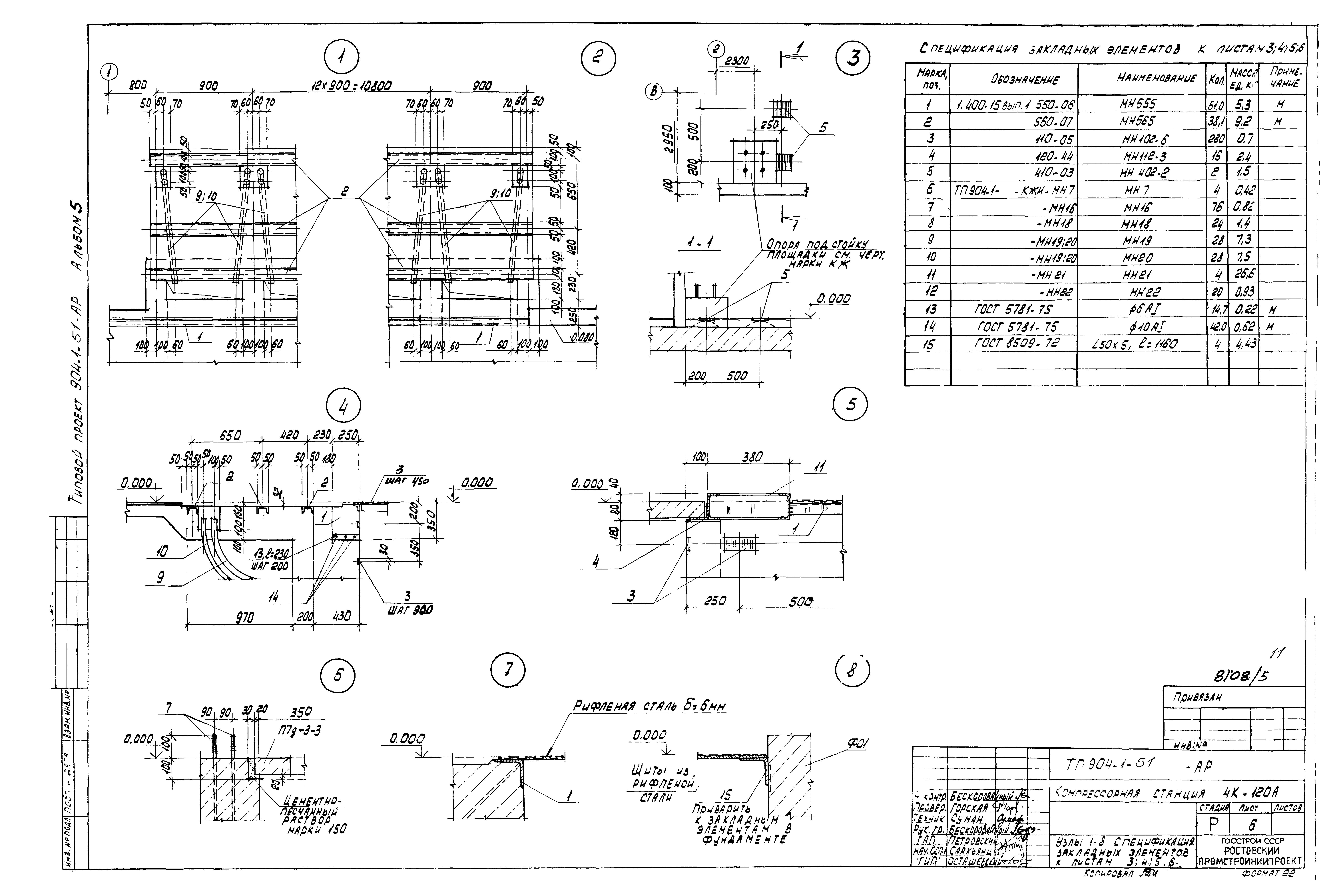
ТП 904-1-51-АР-6 Узлы 1-8. Спецификация закладных элементов к листам 3;4;5;6
ТП 904-1-51-АР-7 План на отм. 0.000
ТП 904-1-51-АР-8 План на отм. 3.600;4.200. Схемы 1;2 расположения щитов перегородок. Узлы 9-16
ТП 904-1-51-АР-9 Разрезы 1-1-3-3
ТП 904-1-51-АР-10 Фасады. План кровли. Схемы заполнения оконных проемов
ТП 904-1-51-АР-11 Маркировочные схемы панелей перегородок (начало)
ТП 904-1-51-АР-12 Маркировочные схемы панелей перегородок (окончание)
ТП 904-1-51-АР-13 Схема расположения опор двойного пола и деревянных щитов
ТП 904-1-51-АР-14 Ведомость отделки помещений. Экспликация полов
ТП 904-1-51-АР-15 КТП. План на отм. - 0.250;0.250. Узлы 1-3
ТП 904-1-51-АР-16 КТП. Сечения 1-1-6-6
ТП 904-1-51-КЖ Конструкции железобетонные
ТП 904-1-51-КЖ-1 Общие данные (начало)
ТП 904-1-51-КЖ-2 Общие данные (продолжение)
ТП 904-1-51-КЖ-3 Общие данные (окончание)
ТП 904-1-51-КЖ-4 Схема расположения элементов фундаментов
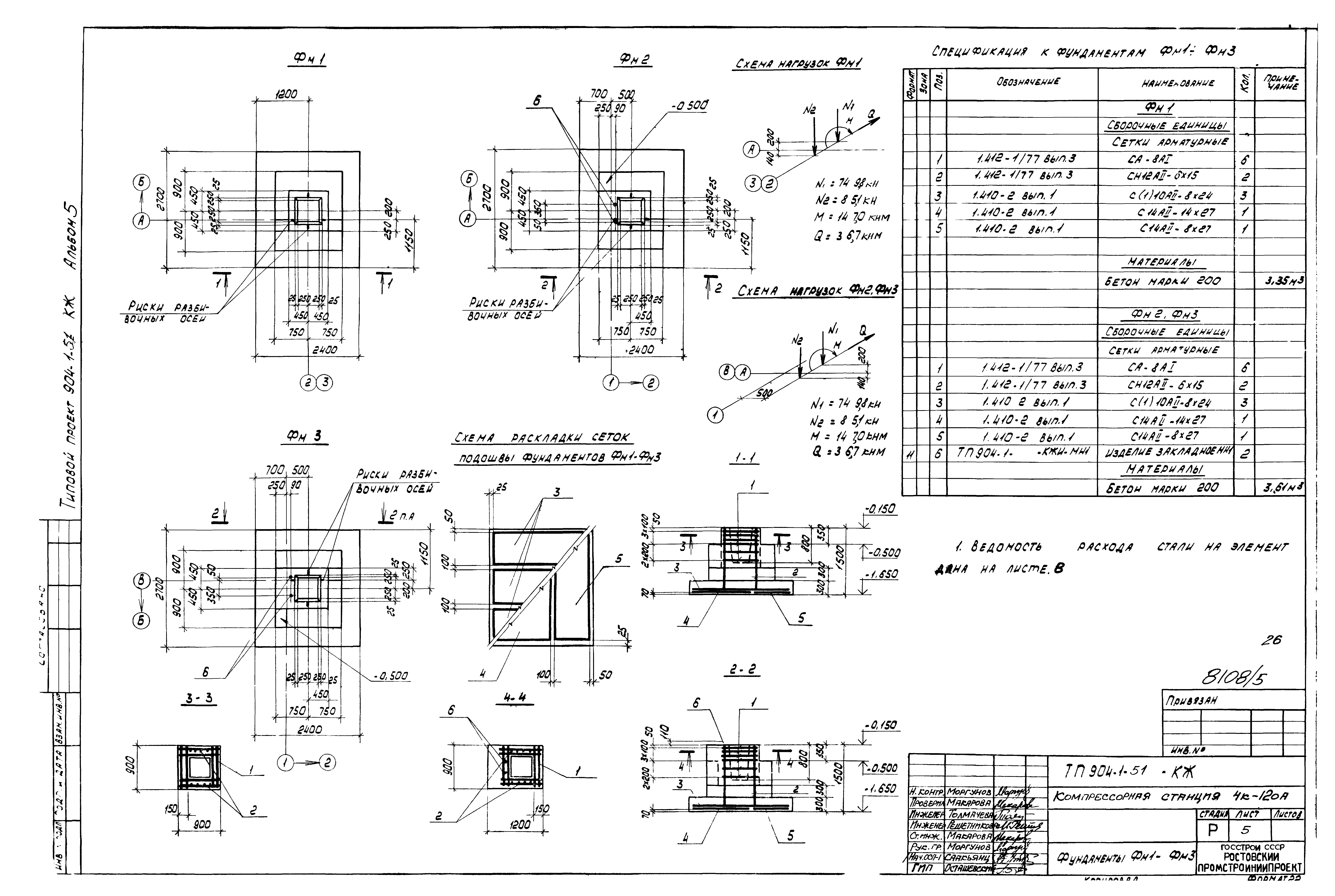
ТП 904-1-51-КЖ-5 Фундаменты ФМ1-ФМ3
ТП 904-1-51-КЖ-6 Фундаменты ФМ4-ФМ6
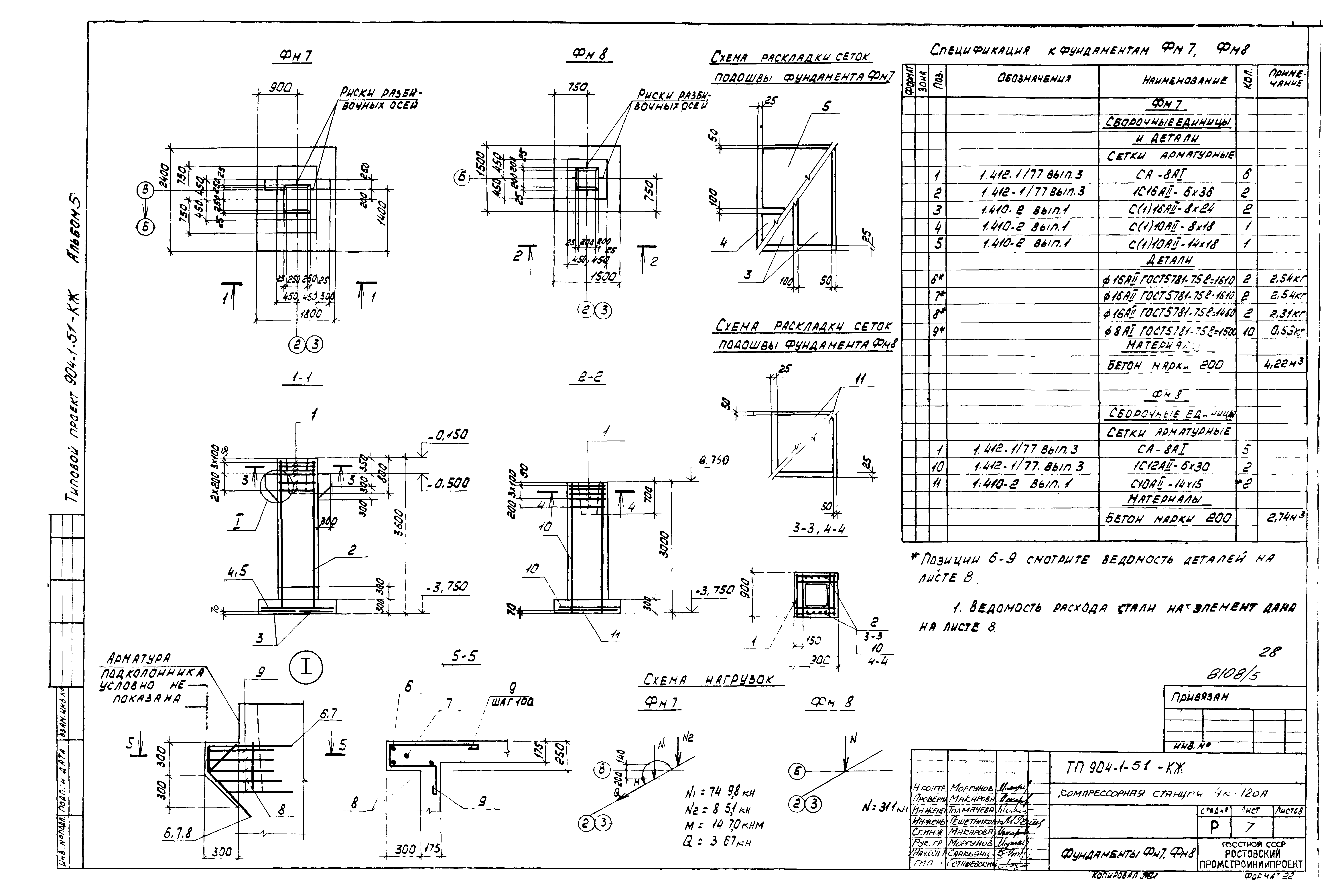
ТП 904-1-51-КЖ-7 Фундаменты ФМ7,ФМ8
ТП 904-1-51-КЖ-8 Фундаменты ФМ9,ФМ10
ТП 904-1-51-КЖ-9 Спецификация. Разрезы 4-4-10-10. Узел 1. Вид 11-11
ТП 904-1-51-КЖ-10 Схемы расположения элементов каркаса балок покрытия, плит покрытия и перекрытия
ТП 904-1-51-КЖ-11 Схемы расположения стеновых панелей
ТП 904-1-51-КЖ-12 Фрагменты 1-13
ТП 904-1-51-КЖ-13 Монолитные участки УМ2-УМ5
ТП 904-1-51-КЖ-14 Схемы расположения элементов подвала
ТП 904-1-51-КЖ-15 Монолитный участок УМ1. Разрезы 1-1-7-7
ТП 904-1-51-КЖ-16 Схемы расположения элементов канала и плит перекрытия в осях Б-В
ТП 904-1-51-КЖ-17 Схемы расположения перекрытия канала и элементов колодца К1. Разрезы 1-1-5-5
ТП 904-1-51-КЖ-18 Спецификация. Ведомости деталей и расхода стали к каналам ПКМ1;ПКМ2;ПКМ3
ТП 904-1-51-КЖ-19 Канал ПКМ1. План. Разрезы 1-1-3-3. Общий вид
ТП 904-1-51-КЖ-20 Канал ПКМ1. Разрезы 1-1;2-2. Схема армирования
ТП 904-1-51-КЖ-21 Каналы ПКМ1;ПКМ2;ПКМ3. Разрезы 4-4-12-12. Схема армирования
ТП 904-1-51-КЖ-22 Монолитный резервуар РЕМ1. Общий вид
ТП 904-1-51-КЖ-23 Монолитный резервуар РЕМ1. Схема армирования
ТП 904-1-51-КЖ-24 Монолитный резервуар РЕМ2. Общий вид
ТП 904-1-51-КЖ-25 Монолитный резервуар РЕМ2. Схема армирования
ТП 904-1-51-КЖ-26 Фундамент ФО1. Спецификация. Ведомости расхода стали и деталей
ТП 904-1-51-КЖ-27 Фундамент ФО1. План. Общий вид
ТП 904-1-51-КЖ-28 Фундамент ФО1. Разрезы 1-1-8-8. Узлы 1,2,3. Общий вид
ТП 904-1-51-КЖ-29 Фундамент ФО1. План. Узлы 1,2. Схема армирования
ТП 904-1-51-КЖ-30 Фундамент ФО1. Разрезы 1-1-9-9. Схема армирования
ТП 904-1-51-КМ Конструкции металлические
ТП 904-1-51-КМ-1 Общие данные
ТП 904-1-51-КМ-2 Техническая спецификация стали (начало)
ТП 904-1-51-КМ-3 Техническая спецификация стали (окончание)
ТП 904-1-51-КМ-4 Техническая спецификация стали на лестницы и площадки
ТП 904-1-51-КМ-5 Схемы расположения балок и щитов перекрытия вокруг компрессора
ТП 904-1-51-КМ-6 Схемы расположения подвесных путей. Схема расположения монорельса
ТП 904-1-51-КМ-7 Площадки на отм. 2.400,3.000
ТП 904-1-51-КМ-8 Схема расположения лестниц и ограждений
ТП 904-1-51-КМ-9 Схема расположения балок под монолитные участки. Схема расположения кронштейнов
ТП 904-1-51-КМ-10 Схема расположения балок и щитов на отм. 4.200
ТП 904-1-51-КМ-11 Схема расположения щитов на отм. 0.000. Щиты
ТП 904-1-51-ВК Внутренние водопровод и канализация
ТП 904-1-51-ВК-1 Общие данные (начало)
ТП 904-1-51-ВК-2 Общие данные (окончание)
ТП 904-1-51-ВК-3 План на отм. 0.000
ТП 904-1-51-ВК-4 Схемы систем
ТП 904-1-51-ВК-5 Насосная станция. План. Разрезы
ТП 904-1-51-ВК-6 Насосная станция. Схемы. Спецификации
ТП 904-1-51-ОВ Отопление и вентиляция
ТП 904-1-51-ОВ-1 Общие данные (начало)
ТП 904-1-51-ОВ-2 Общие данные (продолжение)
ТП 904-1-51-ОВ-3 Общие данные (окончание)
ТП 904-1-51-ОВ-4 План на отм. 0.000. Разрезы 1-1;2-2
ТП 904-1-51-ОВ-5 План на отм. -3.000;3.600;4.200. Разрезы 3-3
ТП 904-1-51-ОВ-6 Схема системы отопления 1. Узел управления 1. Схемы систем В1,ВЕ1
ТП 904-1-51-ОВ-7 Схема системы теплоснабжения установок А1. Узел управления 2
Разработан: Ростовский Промстройниипроект Госстроя СССР
Утверждён:30.03.1982 Минстройдормаш (Minstroydormash 1/82)
Расположен в:Техническая документация Строительство Справочные документы Типовые строительные конструкции, изделия и узлы Общероссийский строительный каталог Промышленные предприятия, здания и сооружения Здания и сооружения санитарно-технические Воздухоснабжение, вентиляция и кондиционирование воздуха Воздухоснабжение
Типовой проект 904-1-51Типовой проект 904-1-51Типовой проект 904-1-51Типовой проект 904-1-51Типовой проект 904-1-51Типовой проект 904-1-51Типовой проект 904-1-51Типовой проект 904-1-51Типовой проект 904-1-51Типовой проект 904-1-51Типовой проект 904-1-51Типовой проект 904-1-51Типовой проект 904-1-51Типовой проект 904-1-51Типовой проект 904-1-51Типовой проект 904-1-51Типовой проект 904-1-51Типовой проект 904-1-51Типовой проект 904-1-51Типовой проект 904-1-51Типовой проект 904-1-51Типовой проект 904-1-51Типовой проект 904-1-51Типовой проект 904-1-51Типовой проект 904-1-51Типовой проект 904-1-51Типовой проект 904-1-51Типовой проект 904-1-51Типовой проект 904-1-51Типовой проект 904-1-51Типовой проект 904-1-51Типовой проект 904-1-51Типовой проект 904-1-51Типовой проект 904-1-51Типовой проект 904-1-51Типовой проект 904-1-51Типовой проект 904-1-51Типовой проект 904-1-51Типовой проект 904-1-51Типовой проект 904-1-51Типовой проект 904-1-51Типовой проект 904-1-51Типовой проект 904-1-51Типовой проект 904-1-51Типовой проект 904-1-51Типовой проект 904-1-51Типовой проект 904-1-51Типовой проект 904-1-51Типовой проект 904-1-51Типовой проект 904-1-51Типовой проект 904-1-51Типовой проект 904-1-51Типовой проект 904-1-51Типовой проект 904-1-51Типовой проект 904-1-51Типовой проект 904-1-51Типовой проект 904-1-51Типовой проект 904-1-51Типовой проект 904-1-51Типовой проект 904-1-51Типовой проект 904-1-51Типовой проект 904-1-51Типовой проект 904-1-51Типовой проект 904-1-51Типовой проект 904-1-51Типовой проект 904-1-51Типовой проект 904-1-51Типовой проект 904-1-51Типовой проект 904-1-51Типовой проект 904-1-51Типовой проект 904-1-51Типовой проект 904-1-51Типовой проект 904-1-51Типовой проект 904-1-51Типовой проект 904-1-51Типовой проект 904-1-51Типовой проект 904-1-51

© 2013 Ёшкин Кот :-) Карта сайта