Скачать Типовой проект 902-9-6 Альбом V. Технологическая и электротехническая частиДата актуализации: 10.08.2017 Типовой проект 902-9-6
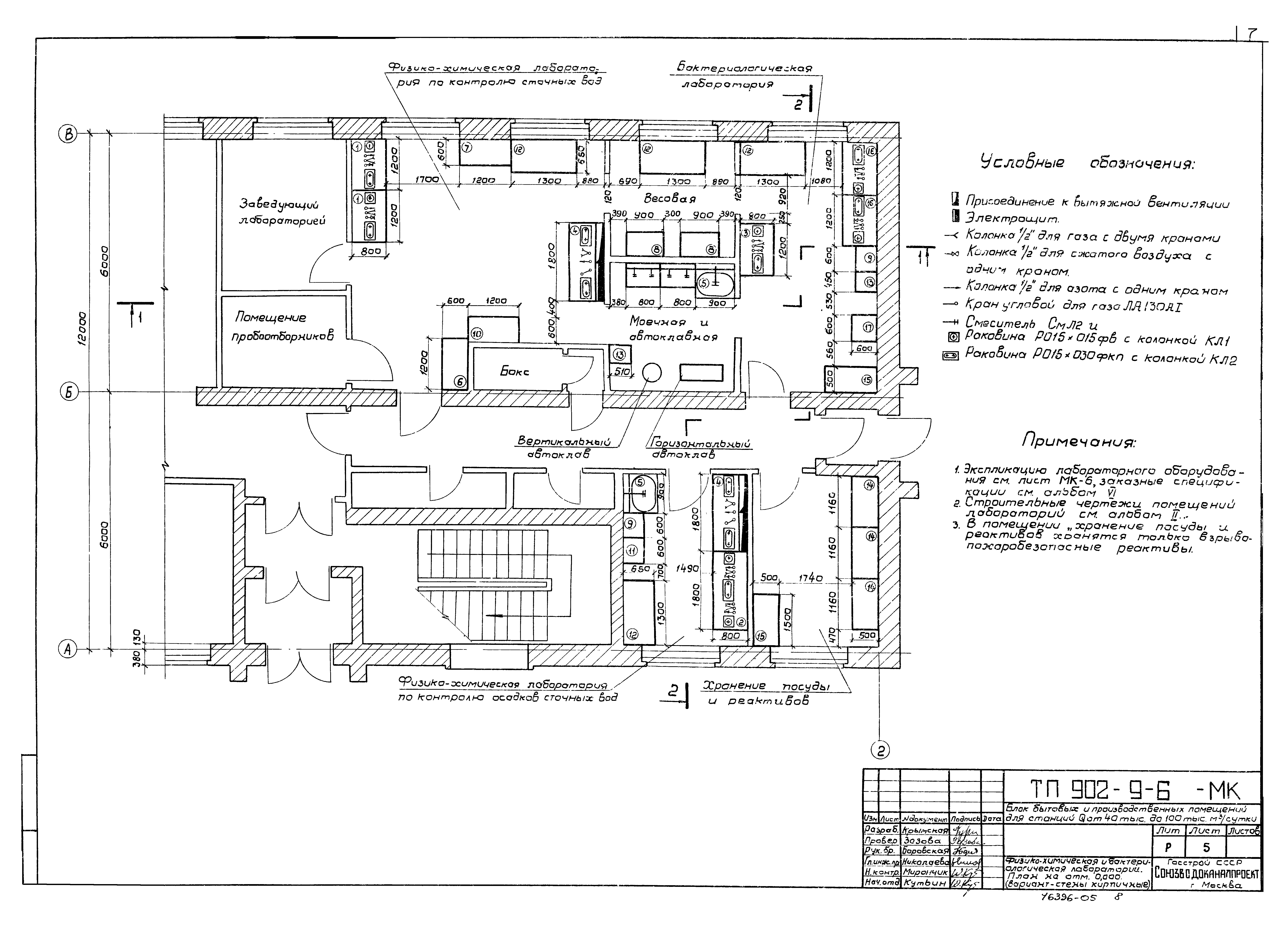
Альбом V. Технологическая и электротехническая частиОбозначение: | Типовой проект 902-9-6 | Обозначение англ: | 902-9-6 | Статус: | действует | Название рус.: | Альбом V. Технологическая и электротехническая части | Дата добавления в базу: | 01.09.2013 | Дата актуализации: | 05.05.2017 | Дата введения: | 30.11.1979 | Оглавление: | ТП 902-9-6 Титульный лист ТП 902-9-6 Содержание альбома ТП 902-9-6-МК Технологическая часть ТП 902-9-6-МК-1 Общие данные (начало) ТП 902-9-6-МК-2 Общие данные (окончание) ТП 902-9-6-МК-3 Физико-химическая и бактериологическая лаборатории. План на отм. 0.000 (вариант - стены панельные) ТП 902-9-6-МК-4 Разрезы 1-1,2-2. Экспликация оборудования ТП 902-9-6-МК-5 Физико-химическая и бактериологическая лаборатории. План на отм. 0.000 (вариант - стены кирпичные) ТП 902-9-6-МК-6 Разрезы 1-1,2-2. Экспликация оборудования ТП 902-9-6-МК-7 Буфет на 12 мест. Монтажный план на отм. 0.000 (вариант - стены панельные) ТП 902-9-6-МК-8 Буфет на 12 мест. Монтажный план на отм. 0.000 (вариант - стены кирпичные) ТП 902-9-6-ЭЛ Электротехническая часть ТП 902-9-6-ЭЛ-1 Общие данные (начало) ТП 902-9-6-ЭЛ-2 Общие данные (продолжение) ТП 902-9-6-ЭЛ-3 Общие данные (окончание) ТП 902-9-6-ЭЛ-4 Принципиальная однолинейная схема сети 380/220 В (начало) ТП 902-9-6-ЭЛ-5 Принципиальная однолинейная схема сети 380/220 В (окончание) ТП 902-9-6-ЭЛ-6 Опросный лист пост ПКУ 15-19 131-54У2 ТП 902-9-6-ЭЛ-7 Опросный лист пост ПКУ 15-19 221-54У2 ТП 902-9-6-ЭЛ-8 Вентилятор 1(2,5,6). Схема принципиальная ТП 902-9-6-ЭЛ-9 Вентилятор 7(8,9). Схема принципиальная ТП 902-9-6-ЭЛ-10 Приточная система. Схема принципиальная ТП 902-9-6-ЭЛ-11 Системы П1(П2). Схема функциональная ТП 902-9-6-ЭЛ-12 Шкаф ШУ1(ШУ4). Схема подключений ТП 902-9-6-ЭЛ-13 Шкаф ШУ3. Схема подключений ТП 902-9-6-ЭЛ-14 Шкаф ШУ5(ШУ2). Схема подключений ТП 902-9-6-ЭЛ-15 План прокладки труб ТП 902-9-6-ЭЛ-16 Схема подключения электрооборудования ТП 902-9-6-ЭЛ-17 Кабельный журнал (начало) ТП 902-9-6-ЭЛ-18 Кабельный журнал (продолжение) ТП 902-9-6-ЭЛ-19 Кабельный журнал (продолжение) ТП 902-9-6-ЭЛ-20 Кабельный журнал (окончание) ТП 902-9-6-ЭЛ-21 Прокладка кабелей на отм. +3.300 ТП 902-9-6-ЭЛ-22 Прокладка кабелей на отм. 0.000 в осях 1-5 ТП 902-9-6-ЭЛ-23 Прокладка кабелей на отм. 0.000 в осях 5-7 ТП 902-9-6-ЭЛ-24 Электрическое освещение. План на отм. 0.000 ТП 902-9-6-ЭЛ-25 Электрическое освещение. План на отм. +3.300 ТП 902-9-6-ЭЛ-26 Ведомости электрооборудования, изделий, материалов и объемов работ (начало) ТП 902-9-6-ЭЛ-27 Ведомости электрооборудования, изделий, материалов и объемов работ (продолжение) ТП 902-9-6-ЭЛ-28 Ведомости электрооборудования, изделий, материалов и объемов работ (окончание) | Разработан: | Союзводоканалпроект
| Утверждён: | 25.06.1979 Союзводоканалпроект (Soyuzvodokanalproject 31)
| Издан: | ЦИТП Госстроя СССР (CITP, Gosstroy (USSR) 1979 г. )
| Расположен в: |
|
                                
|