Информационная система
«Ёшкин Кот»

Скачать базу одним архивом
Скачать обновления
История создания базы
Карта сайта

Скачать Типовой проект 902-2-148 Альбом 1. Архитектурно-строительная часть

Дата актуализации: 10.08.2017

Типовой проект 902-2-148

Альбом 1. Архитектурно-строительная часть

Обозначение: Типовой проект 902-2-148
Обозначение англ: 902-2-148
Статус:не действует
Название рус.:Альбом 1. Архитектурно-строительная часть
Дата добавления в базу:01.09.2013
Дата актуализации:05.05.2017
Дата введения:01.02.1984
Оглавление:ТП 902-2-148 Титульный лист
ТП 902-2-148 Содержание альбома
ТП 902-2-148-ПЗ-1 Пояснительная записка
ТП 902-2-148-ПЗ-2 Пояснительная записка
ТП 902-2-148-АС-1 Заглавный лист
ТП 902-2-148-АС-2 Общие данные по листам марки АС
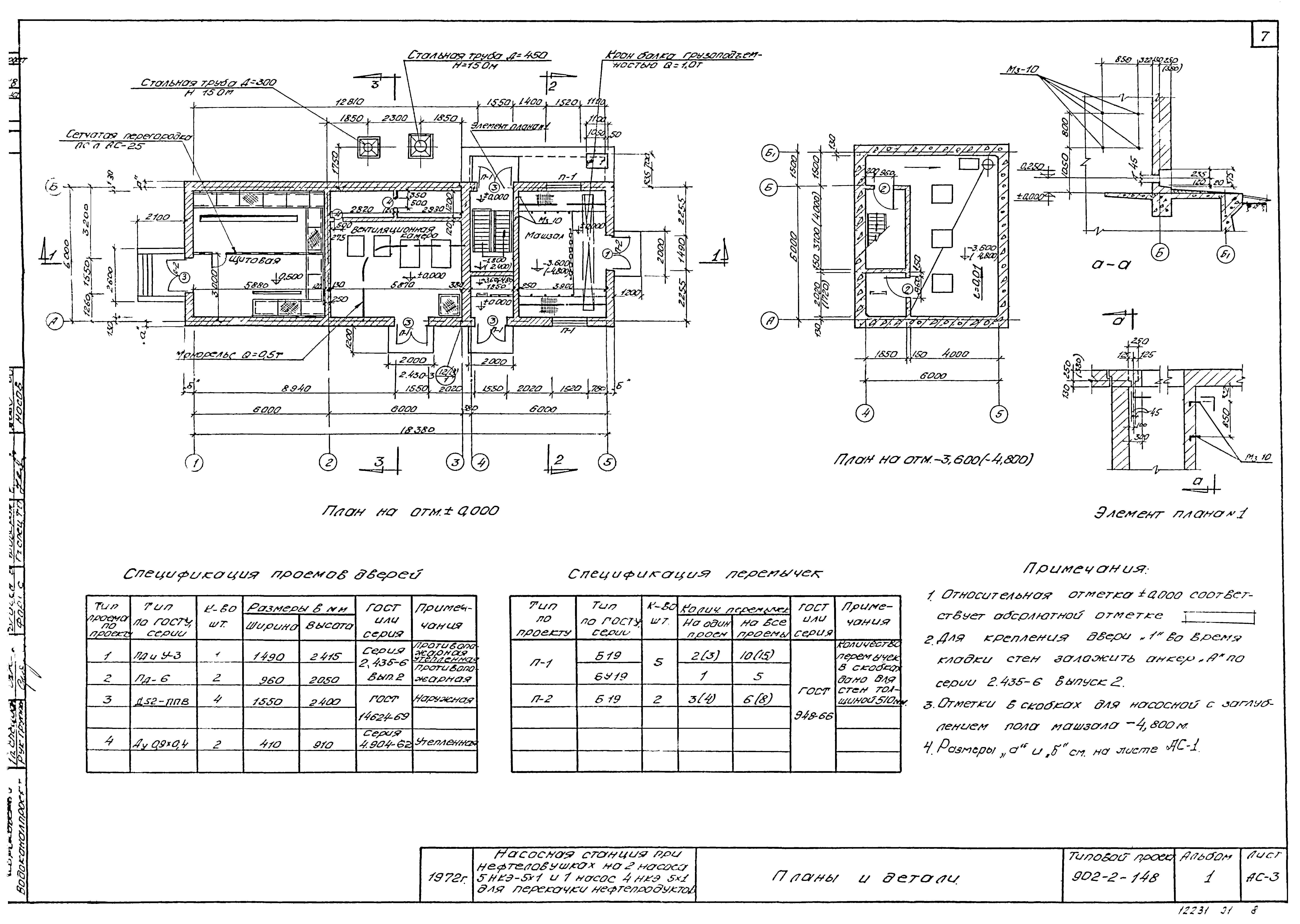
ТП 902-2-148-АС-3 Планы и детали
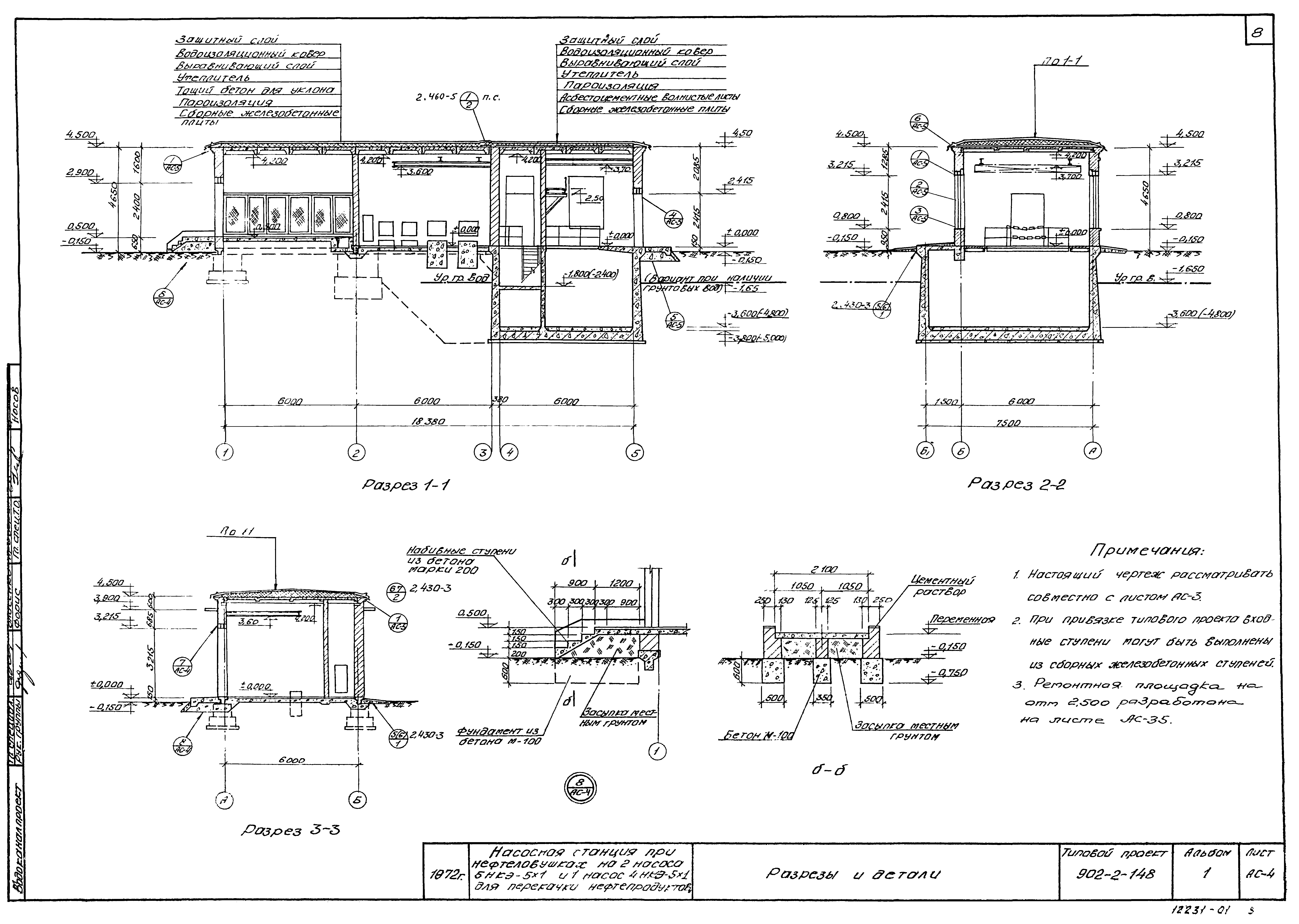
ТП 902-2-148-АС-4 Разрезы и детали
ТП 902-2-148-АС-5 Детали разрезов
ТП 902-2-148-АС-6 Фасады и схемы заполнения оконных проемов
ТП 902-2-148-АС-7 План фундаментов и фундаментных балок. Профили. Фундаменты МФ-1 и МФ-2
ТП 902-2-148-АС-8 Монтажный план плит покрытия. Опалубка и армирование базы под дефлектор НС-1
ТП 902-2-148-АС-9 Отверстия и газовые трубы в стенах надземной части. Защитные козырьки. План расположения и детали
ТП 902-2-148-АС-10 Щитовое помещение. Каналы. Планы и сечения
ТП 902-2-148-АС-11 Щитовое помещение. Каналы. Армирование балок Б-1 и Б-2
ТП 902-2-148-АС-12 Вентиляционная камера. План, разрезы и детали
ТП 902-2-148-АС-13 Фундамент под оборудование
ТП 902-2-148-АС-14 Опалубочный чертеж подземной части. Планы и разрезы 1-1,2-2
ТП 902-2-148-АС-15 Опалубочный чертеж подземной части. Разрезы 3-3,4-4 и детали
ТП 902-2-148-АС-16 Заглубление - 36 м. Армирование стен и днища подземной части. Раскладка сеток и каркасов
ТП 902-2-148-АС-17 Заглубление - 36 м. Армирование стен и днища подземной части. Сетки, каркасы и спецификация арматуры
ТП 902-2-148-АС-18 Заглубление - 48 м. Армирование стен и днища подземной части. Раскладка сеток и каркасов
ТП 902-2-148-АС-19 Заглубление - 48 м. Армирование стен и днища подземной части. Сетки, каркасы и спецификация арматуры
ТП 902-2-148-АС-20 Армирование плит, балок и консолей
ТП 902-2-148-АС-21 Армирование обвязочной балки фундаментов под оборудование. Спецификация арматуры
ТП 902-2-148-АС-22 Армирование перегородки. Раскладка сеток. План и разрезы
ТП 902-2-148-АС-23 Армирование перегородки. Спецификация арматуры
ТП 902-2-148-АС-24 Лестницы и стремянка. План, разрез и детали
ТП 902-2-148-АС-25 Сетчатая перегородка в щитовом помещении. План, разрез и детали
ТП 902-2-148-АС-26 Обслуживающие площадки на отметке ±0.000. Схема раскладки настила. Разрезы и детали
ТП 902-2-148-АС-27 Монорельс и направляющие пути кран-балки. План расположения детали
ТП 902-2-148-АС-28 Монорельс и направляющие пути кран-балки. Марки и спецификация металла
ТП 902-2-148-АС-29 Воздухозаборные трубы. Маркировочный план, детали и фундаменты Ф-7-Ф-9
ТП 902-2-148-АС-30 Воздухозаборные трубы. Марки ТН-325-10 и ТН-450-10
ТП 902-2-148-АС-31 Воздухозаборные трубы. Марки ТВ-325-4.6, ТВ-450-4.6 и М-1,М-2,М-3,М-4
ТП 902-2-148-АС-32 Воздухозаборные трубы. Конструкция растяжек ОТ-1,ОТ-2 и ОТ-3
ТП 902-2-148-АС-33 Металлические щиты, рамы и закладные марки
ТП 902-2-148-АС-34 Закладные марки и спецификация металла
ТП 902-2-148-АС-35 Ремонтная площадка на отм. 2.500. Планы, сечения и детали
Разработан: Институт Харьковский Водоканалпроект Госстроя СССР
Утверждён:23.04.1973 СоюзводоканалНИИпроект (SoyuzvodokanalNIIproject 96)
Расположен в:Техническая документация Строительство Справочные документы Типовые строительные конструкции, изделия и узлы Общероссийский строительный каталог Промышленные предприятия, здания и сооружения Здания и сооружения санитарно-технические Канализация Сооружения для очистки производственных сточных вод Нефтеловушки
Типовой проект 902-2-148Типовой проект 902-2-148Типовой проект 902-2-148Типовой проект 902-2-148Типовой проект 902-2-148Типовой проект 902-2-148Типовой проект 902-2-148Типовой проект 902-2-148Типовой проект 902-2-148Типовой проект 902-2-148Типовой проект 902-2-148Типовой проект 902-2-148Типовой проект 902-2-148Типовой проект 902-2-148Типовой проект 902-2-148Типовой проект 902-2-148Типовой проект 902-2-148Типовой проект 902-2-148Типовой проект 902-2-148Типовой проект 902-2-148Типовой проект 902-2-148Типовой проект 902-2-148Типовой проект 902-2-148Типовой проект 902-2-148Типовой проект 902-2-148Типовой проект 902-2-148Типовой проект 902-2-148Типовой проект 902-2-148Типовой проект 902-2-148Типовой проект 902-2-148Типовой проект 902-2-148Типовой проект 902-2-148Типовой проект 902-2-148Типовой проект 902-2-148Типовой проект 902-2-148Типовой проект 902-2-148Типовой проект 902-2-148Типовой проект 902-2-148Типовой проект 902-2-148Типовой проект 902-2-148

© 2013 Ёшкин Кот :-) Карта сайта