| ||||||||||||||||||||||||||||
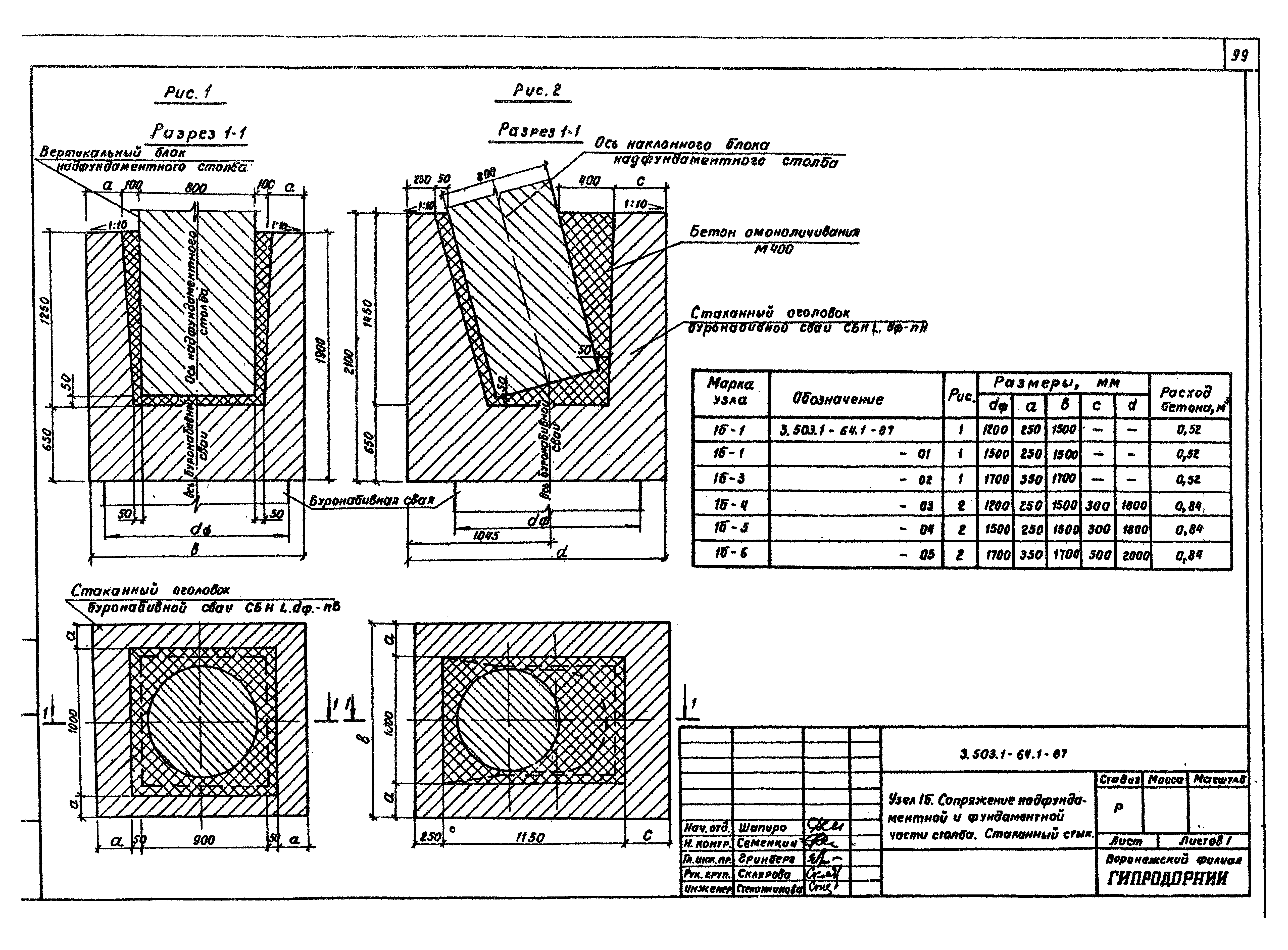
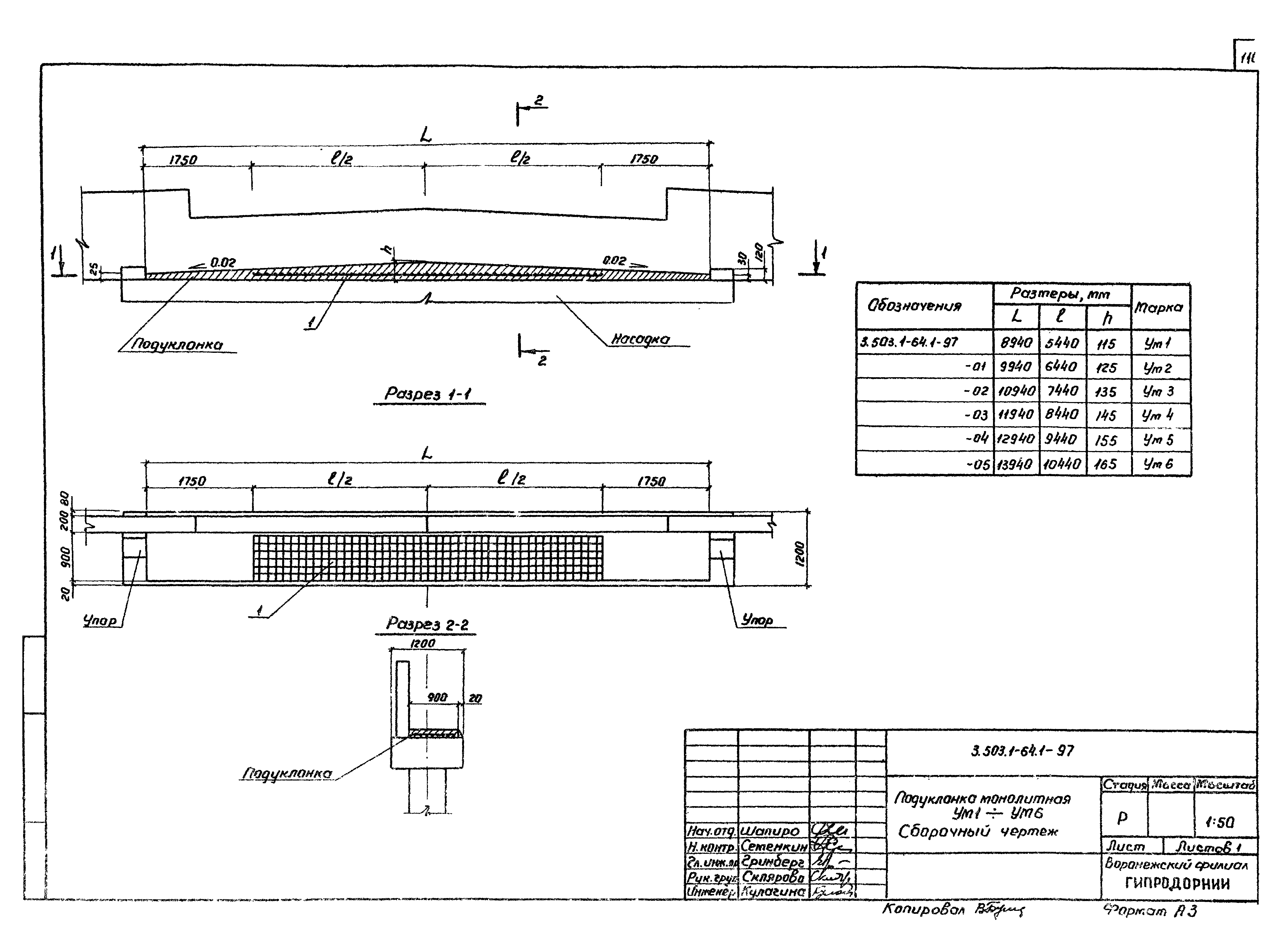
Скачать Серия 3.503.1-64 Выпуск 1. Конструкции крайних опор. Рабочие чертежиДата актуализации: 10.08.2017
|
| Обозначение: | Серия 3.503.1-64 |
| Обозначение англ: | Series 3.503.1-64 |
| Статус: | не действует |
| Название рус.: | Выпуск 1. Конструкции крайних опор. Рабочие чертежи |
| Дата добавления в базу: | 01.09.2013 |
| Дата актуализации: | 05.05.2017 |
| Дата введения: | 01.08.1985 |
| Дата окончания срока действия: | 01.08.1992 |
| Разработан: | Воронежский филиал ГипродорНИИ |
| Утверждён: | 25.07.1985 Министерство автомобильных дорог РСФСР (14) |
| Расположен в: | |
| Чем заменён: |


















































































































