Скачать Типовой проект 902-2-446.88 Альбом II. Технологические, электротехнические решенияДата актуализации: 10.08.2017 Типовой проект 902-2-446.88
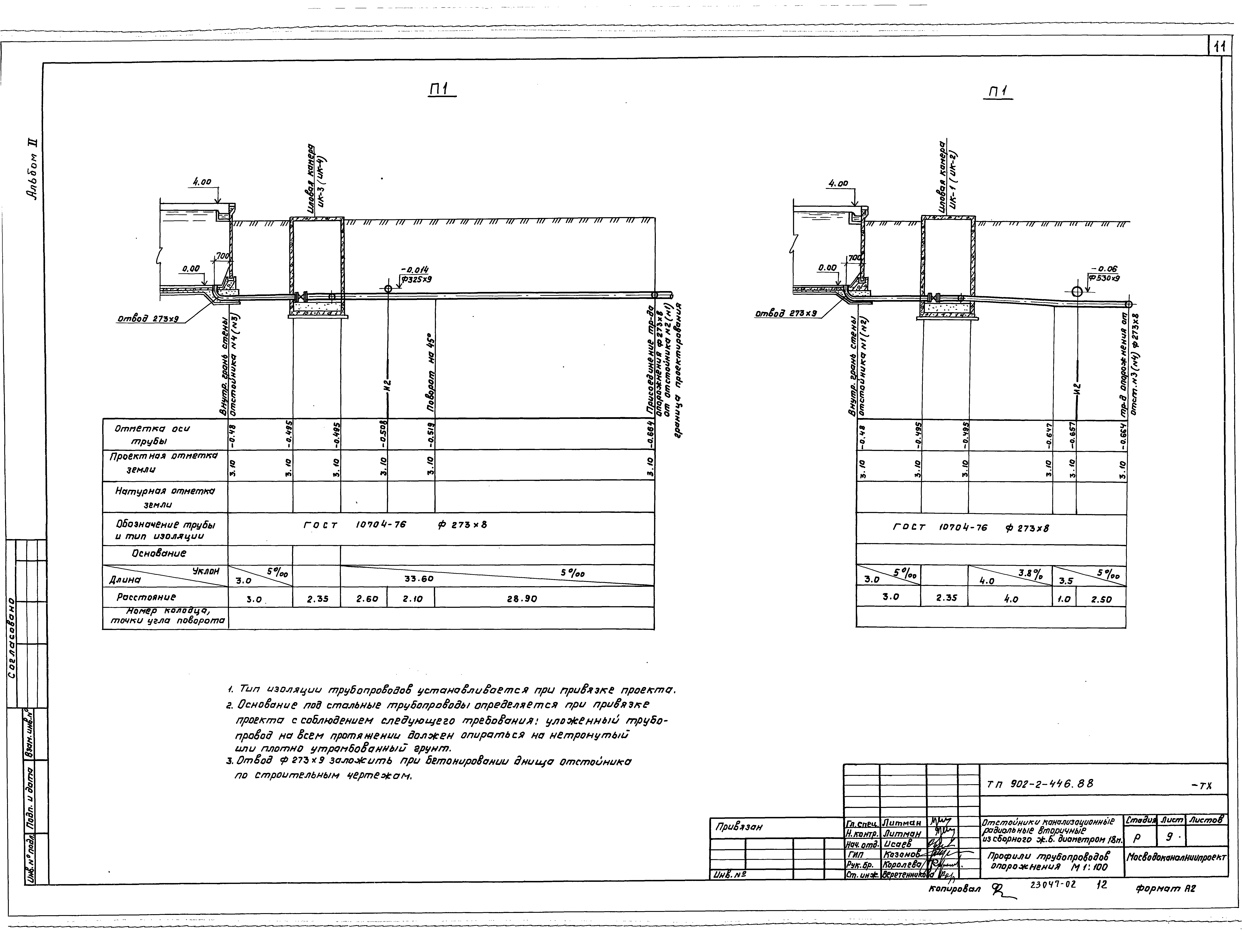
Альбом II. Технологические, электротехнические решенияОбозначение: | Типовой проект 902-2-446.88 | Обозначение англ: | 902-2-446.88 | Статус: | не определен законодательством | Название рус.: | Альбом II. Технологические, электротехнические решения | Дата добавления в базу: | 01.09.2013 | Дата актуализации: | 05.05.2017 | Дата введения: | 25.01.1988 | Разработан: | МосводоканалНИИпроект
| Утверждён: | 24.12.1987 Мосгорисполком (Mosgorispolkom 3)
| Расположен в: |
|
                       
|