Информационная система
«Ёшкин Кот»

Скачать базу одним архивом
Скачать обновления
История создания базы
Карта сайта

Скачать Типовой проект 902-3-57м.87 Альбом III. Архитектурно-строительные решения. Конструкции железобетонные и металлические

Дата актуализации: 10.08.2017

Типовой проект 902-3-57м.87

Альбом III. Архитектурно-строительные решения. Конструкции железобетонные и металлические

Обозначение: Типовой проект 902-3-57м.87
Обозначение англ: 902-3-57м.87
Статус:не определен законодательством
Название рус.:Альбом III. Архитектурно-строительные решения. Конструкции железобетонные и металлические
Дата добавления в базу:01.09.2013
Дата актуализации:05.05.2017
Дата введения:15.12.1986
Оглавление:ТП 902-3-57М87 Содержание альбома
ТП 902-3-57М87-АР Архитектурные решения
ТП 902-3-57М87-АР-1 Общие данные
ТП 902-3-57М87-АР-2 План
ТП 902-3-57М87-АР-3 Разрезы 1-1÷3-3
ТП 902-3-57М87-АР-4 Фасады 1-10;А-Г;10-1;Г-А
ТП 902-3-57М87-АР-5 План отверстий и перемычек. Ведомости отверстий и перемычек. Спецификация перемычек
ТП 902-3-57М87-АР-6 План кровли. План полов. Экспликация полов. Ведомость отделки помещений
ТП 902-3-57М87-КЖ Конструкции железобетонные
ТП 902-3-57М87-КЖ-1 Общие данные (начало)
ТП 902-3-57М87-КЖ-2 Общие данные (окончание)
ТП 902-3-57М87-КЖ-3 Схема расположения свай для производительности 400 м³/сутки
ТП 902-3-57М87-КЖ-4 Схема расположения свай для производительности 700 м³/сутки
ТП 902-3-57М87-КЖ-5 Деталь положения сваи на геологическом разрезе. Спецификация
ТП 902-3-57М87-КЖ-6 Схема расположения монолитных ростверков и фундаментных балок
ТП 902-3-57М87-КЖ-7 Схема расположения монолитных ростверков и фундаментных балок. Узлы 1-8
ТП 902-3-57М87-КЖ-8 Монолитные ростверки РМ1-РМ9. Армирование
ТП 902-3-57М87-КЖ-9 Монолитные ростверки РМ10-РМ25. Армирование
ТП 902-3-57М87-КЖ-10 Монолитные ростверки. Армирование. Спецификация
ТП 902-3-57М87-КЖ-11 Монолитные ростверки. Армирование. Спецификация. Выборка стали
ТП 902-3-57М87-КЖ-12 Схема расположения плит перекрытий и ригелей над подпольем
ТП 902-3-57М87-КЖ-13 Схема расположения плит перекрытия и ригелей над подпольем. Разрезы 1-1÷16-16
ТП 902-3-57М87-КЖ-14 Схема расположения плит перекрытия и ригелей над подпольем. Разрезы 17-17÷20-20
ТП 902-3-57М87-КЖ-15 Схема расположения плит перекрытия и ригелей над подпольем. Монолитные участки. Армирование
ТП 902-3-57М87-КЖ-16 Схема расположения плит перекрытия и ригелей над подпольем. Спецификация
ТП 902-3-57М87-КЖ-17 Схема расположения фундаментов под оборудование и приямков
ТП 902-3-57М87-КЖ-18 Фундаменты под оборудование
ТП 902-3-57М87-КЖ-19 Схема расположения колонн и балок покрытия. Разрезы. Узлы 1;2
ТП 902-3-57М87-КЖ-20 Схема расположения колонн и балок покрытия. Узлы 3-5. Спецификация
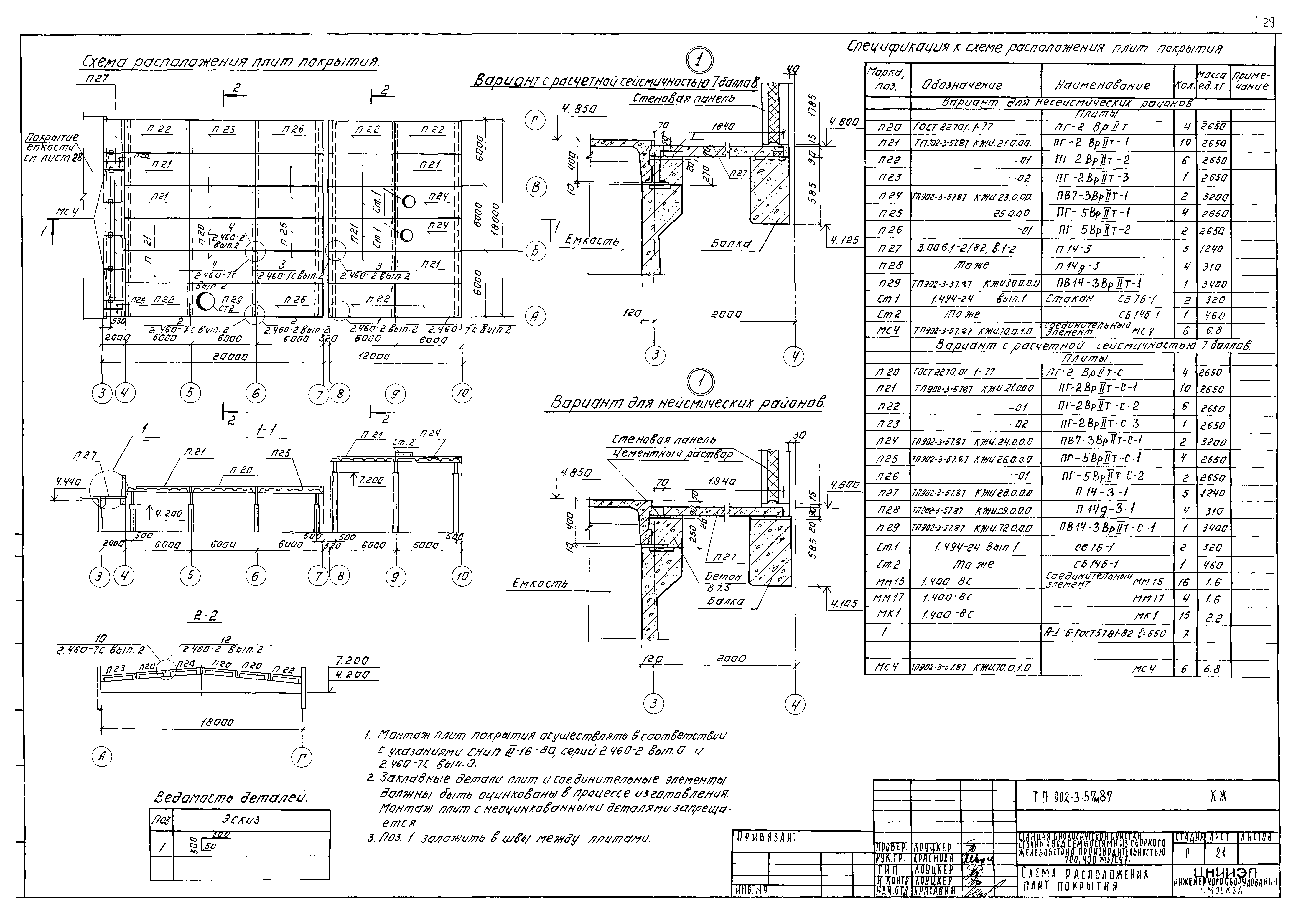
ТП 902-3-57М87-КЖ-21 Схема расположения плит покрытия
ТП 902-3-57М87-КЖ-22 Схема расположения плит перекрытия
ТП 902-3-57М87-КЖ-23 Схема расположения стеновых панелей. Спецификация
ТП 902-3-57М87-КЖ-24 Схема расположения стеновых панелей. Узлы. Спецификация
ТП 902-3-57М87-КЖ-25 Приточная венткамера
ТП 902-3-57М87-КЖ-26 Емкости. Схема расположения стеновых панелей
ТП 902-3-57М87-КЖ-27 Емкости. Схема расположения лотков и обвязочных балок
ТП 902-3-57М87-КЖ-28 Емкости. Схема расположения плит покрытий
ТП 902-3-57М87-КЖ-29 Емкости. Схема расположения стеновых панелей. Разрезы 1-1÷4-4
ТП 902-3-57М87-КЖ-30 Емкости. Узлы 1-5,А
ТП 902-3-57М87-КЖ-31 Емкости. Узлы 6-7. Щиты Щ1;Щ2;Щ3
ТП 902-3-57М87-КЖ-32 Емкости. Спецификация к схемам расположения панелей, лотков и обвязочных балок, плит покрытия
ТП 902-3-57М87-КЖ-33 Емкости. Схема расположения набетонки в отстойнике и илоуплотнители
ТП 902-3-57М87-КЖ-34 Емкости. Днище. Опалубочный чертеж. План. Разрез 1-1
ТП 902-3-57М87-КЖ-35 Емкости. Днище. Опалубочный чертеж. Разрез 2-2÷4-4. Узлы
ТП 902-3-57М87-КЖ-36 Емкости. Днище. Армирование. Схема расположения нижних сеток. Разрез 1-1
ТП 902-3-57М87-КЖ-37 Емкости. Днище. Армирование. Схема расположения верхних сеток. Разрез 2-2
ТП 902-3-57М87-КЖ-38 Емкости. Днище. Армирование. Разрезы 3-3;4-4. Узлы
ТП 902-3-57М87-КЖ-39 Емкости. Днище. Армирование. Спецификации
ТП 902-3-57М87-КЖ-40 Емкости. Монолитные участки УМЕ1-УМЕ12;БМ1. Опалубочный чертеж
ТП 902-3-57М87-КЖ-41 Емкости. Монолитные участки УМЕ1-УМЕ4. Армирование
ТП 902-3-57М87-КЖ-42 Емкости. Монолитные участки УМЕ1-УМЕ12;БМЕ1. Армирование
ТП 902-3-57М87-КЖ-43 Емкости. Монолитные участки УМЕ1-УМЕ12;БМЕ1. Спецификация
ТП 902-3-57М87-КЖ-44 Емкости. Схема расположения утепляющих панелей
ТП 902-3-57М87-КЖ-45 Емкости. Схема расположения утепляющих панелей. Разрезы. Узлы
ТП 902-3-57М87-КЖ-46 Емкости. Схема расположения железобетонного ростверка
ТП 902-3-57М87-КЖ-47 Емкости. Схема расположения железобетонного ростверка. Разрезы 1-1÷4-4. Узлы 1-6
ТП 902-3-57М87-КЖ-48 Емкости. Железобетонный ростверка РМ1-РМ4. Армирование
ТП 902-3-57М87-КЖ-49 Емкости. Схема расположения цементно-песчной стяжки по поддону
ТП 902-3-57М87-КМ Конструкции металлические
ТП 902-3-57М87-КМ-1 Общие данные (начало). Техническая спецификация стали
ТП 902-3-57М87-КМ-2 Общие данные (продолжение). Техническая спецификация стали на типовые конструкции
ТП 902-3-57М87-КМ-3 Общие данные (окончание). Ведомость металлоконструкций по видам профилей
ТП 902-3-57М87-КМ-4 Схема расположения подвесного пути
ТП 902-3-57М87-КМ-5 Схема расположения переходных площадок и лестниц. Разрезы
ТП 902-3-57М87-КМ-6 Схема расположения лестницы и ограждения в осях "8-9" на отм. 3.600. Разрезы. Узлы
ТП 902-3-57М87-КМ-7 Схема расположения переходных площадок и лестниц. Узлы
ТП 902-3-57М87-КМ-8 Схема расположения лестниц и площадок емкостей
ТП 902-3-57М87-КМ-9 Схема расположения опор под трубопроводы. Разрезы
ТП 902-3-57М87-ОС Организация строительства
ТП 902-3-57М87-ОС-1 Схема стройгенплана на возведение наземной части здания
ТП 902-3-57М87-ОС-2 График производства работ (начало)
ТП 902-3-57М87-ОС-3 График производства работ (окончание)
Разработан: ЦНИИЭП инженерного оборудования
Утверждён:15.12.1986 Госгражданстрой (Gosgrazhdanstroy 422)
Издан: ЦИТП Госстроя СССР (CITP, Gosstroy (USSR) 1988 г. )
Расположен в:Техническая документация Строительство Справочные документы Типовые строительные конструкции, изделия и узлы Общероссийский строительный каталог Промышленные предприятия, здания и сооружения Здания и сооружения санитарно-технические Канализация Сооружения доочистки Сооружения биологической очистки сточных вод для трассы БАМ
Типовой проект 902-3-57м.87Типовой проект 902-3-57м.87Типовой проект 902-3-57м.87Типовой проект 902-3-57м.87Типовой проект 902-3-57м.87Типовой проект 902-3-57м.87Типовой проект 902-3-57м.87Типовой проект 902-3-57м.87Типовой проект 902-3-57м.87Типовой проект 902-3-57м.87Типовой проект 902-3-57м.87Типовой проект 902-3-57м.87Типовой проект 902-3-57м.87Типовой проект 902-3-57м.87Типовой проект 902-3-57м.87Типовой проект 902-3-57м.87Типовой проект 902-3-57м.87Типовой проект 902-3-57м.87Типовой проект 902-3-57м.87Типовой проект 902-3-57м.87Типовой проект 902-3-57м.87Типовой проект 902-3-57м.87Типовой проект 902-3-57м.87Типовой проект 902-3-57м.87Типовой проект 902-3-57м.87Типовой проект 902-3-57м.87Типовой проект 902-3-57м.87Типовой проект 902-3-57м.87Типовой проект 902-3-57м.87Типовой проект 902-3-57м.87Типовой проект 902-3-57м.87Типовой проект 902-3-57м.87Типовой проект 902-3-57м.87Типовой проект 902-3-57м.87Типовой проект 902-3-57м.87Типовой проект 902-3-57м.87Типовой проект 902-3-57м.87Типовой проект 902-3-57м.87Типовой проект 902-3-57м.87Типовой проект 902-3-57м.87Типовой проект 902-3-57м.87Типовой проект 902-3-57м.87Типовой проект 902-3-57м.87Типовой проект 902-3-57м.87Типовой проект 902-3-57м.87Типовой проект 902-3-57м.87Типовой проект 902-3-57м.87Типовой проект 902-3-57м.87Типовой проект 902-3-57м.87Типовой проект 902-3-57м.87Типовой проект 902-3-57м.87Типовой проект 902-3-57м.87Типовой проект 902-3-57м.87Типовой проект 902-3-57м.87Типовой проект 902-3-57м.87Типовой проект 902-3-57м.87Типовой проект 902-3-57м.87Типовой проект 902-3-57м.87Типовой проект 902-3-57м.87Типовой проект 902-3-57м.87Типовой проект 902-3-57м.87Типовой проект 902-3-57м.87Типовой проект 902-3-57м.87Типовой проект 902-3-57м.87Типовой проект 902-3-57м.87Типовой проект 902-3-57м.87Типовой проект 902-3-57м.87Типовой проект 902-3-57м.87Типовой проект 902-3-57м.87Типовой проект 902-3-57м.87

© 2013 Ёшкин Кот :-) Карта сайта