Информационная система
«Ёшкин Кот»

Скачать базу одним архивом
Скачать обновления
История создания базы
Карта сайта

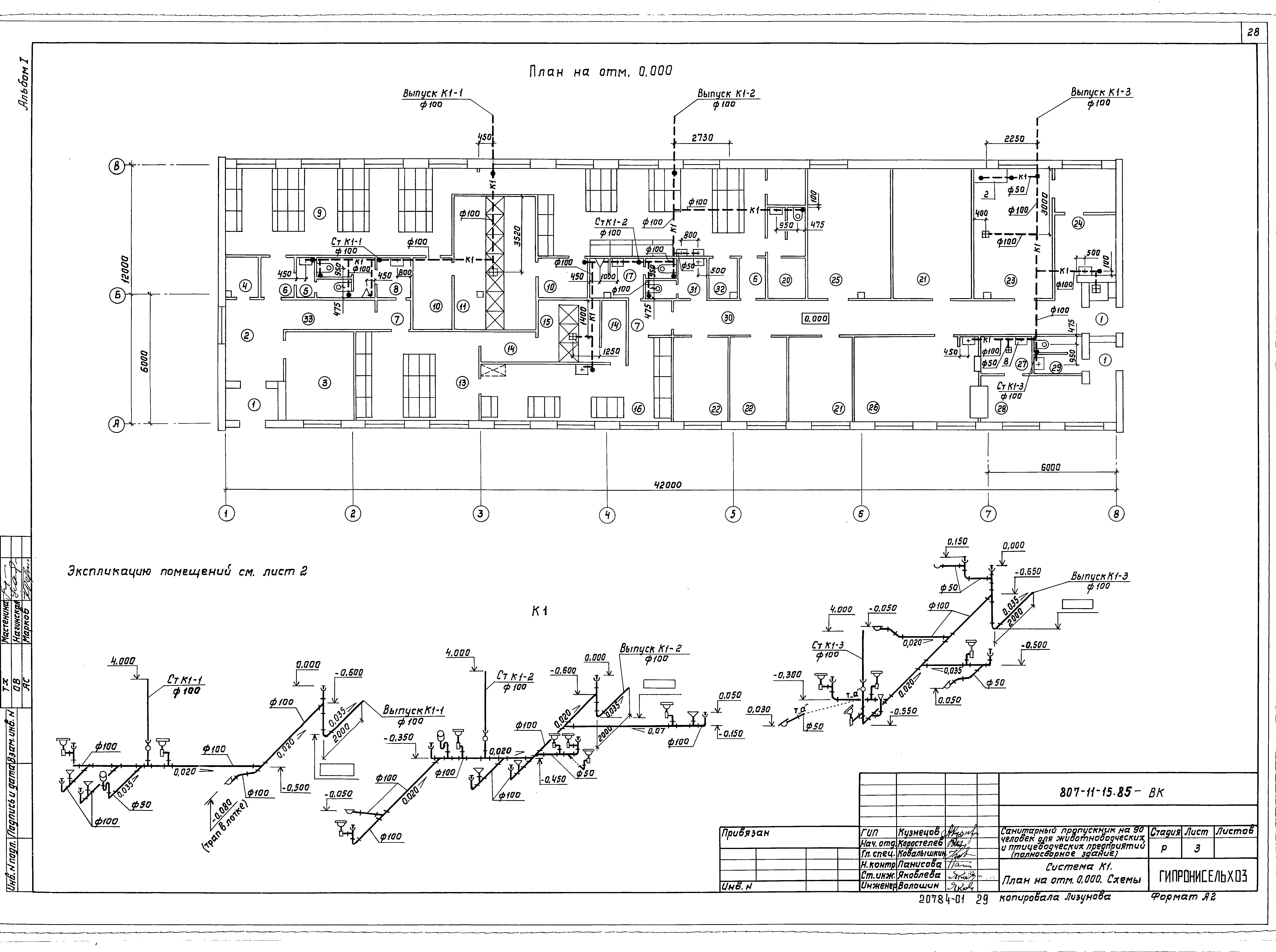
Скачать Типовой проект 807-11-15.85 Альбом I. Пояснительная записка. Технология производства. Архитектурно-строительные решения. Внутренние водопровод и канализация. Отопление и вентиляция. Электротехническая часть. Автоматизация систем отопления и вентиляции. Связь и сигнализация

Дата актуализации: 10.08.2017

Типовой проект 807-11-15.85

Альбом I. Пояснительная записка. Технология производства. Архитектурно-строительные решения. Внутренние водопровод и канализация. Отопление и вентиляция. Электротехническая часть. Автоматизация систем отопления и вентиляции. Связь и сигнализация

Обозначение: Типовой проект 807-11-15.85
Обозначение англ: 807-11-15.85
Статус:не определен законодательством
Название рус.:Альбом I. Пояснительная записка. Технология производства. Архитектурно-строительные решения. Внутренние водопровод и канализация. Отопление и вентиляция. Электротехническая часть. Автоматизация систем отопления и вентиляции. Связь и сигнализация
Дата добавления в базу:01.09.2013
Дата актуализации:05.05.2017
Дата введения:19.07.1984
Разработан: Институт Гипронисельхоз
Утверждён:17.02.1984 Главсельстройпроект Минсельхоза СССР (Glavselstroyproject, USSR Minselkhoz 8-ЭГ)
Расположен в:Техническая документация Строительство Справочные документы Типовые строительные конструкции, изделия и узлы Общероссийский строительный каталог Сельскохозяйственные предприятия, здания и сооружения Здания и сооружения ветеринарные, зоотехнические, агрономические и санпропускники Санпропускники
Типовой проект 807-11-15.85Типовой проект 807-11-15.85Типовой проект 807-11-15.85Типовой проект 807-11-15.85Типовой проект 807-11-15.85Типовой проект 807-11-15.85Типовой проект 807-11-15.85Типовой проект 807-11-15.85Типовой проект 807-11-15.85Типовой проект 807-11-15.85Типовой проект 807-11-15.85Типовой проект 807-11-15.85Типовой проект 807-11-15.85Типовой проект 807-11-15.85Типовой проект 807-11-15.85Типовой проект 807-11-15.85Типовой проект 807-11-15.85Типовой проект 807-11-15.85Типовой проект 807-11-15.85Типовой проект 807-11-15.85Типовой проект 807-11-15.85Типовой проект 807-11-15.85Типовой проект 807-11-15.85Типовой проект 807-11-15.85Типовой проект 807-11-15.85Типовой проект 807-11-15.85Типовой проект 807-11-15.85Типовой проект 807-11-15.85Типовой проект 807-11-15.85Типовой проект 807-11-15.85Типовой проект 807-11-15.85Типовой проект 807-11-15.85Типовой проект 807-11-15.85Типовой проект 807-11-15.85Типовой проект 807-11-15.85Типовой проект 807-11-15.85Типовой проект 807-11-15.85Типовой проект 807-11-15.85Типовой проект 807-11-15.85Типовой проект 807-11-15.85Типовой проект 807-11-15.85Типовой проект 807-11-15.85Типовой проект 807-11-15.85Типовой проект 807-11-15.85Типовой проект 807-11-15.85Типовой проект 807-11-15.85Типовой проект 807-11-15.85Типовой проект 807-11-15.85Типовой проект 807-11-15.85Типовой проект 807-11-15.85Типовой проект 807-11-15.85Типовой проект 807-11-15.85

© 2013 Ёшкин Кот :-) Карта сайта