| ||||||||||||||||||||||||
Скачать Серия 1.436-10 Выпуск 2. Окна из алюминиевых профилей (с термовкладышами) спаренныеДата актуализации: 10.08.2017
|
| Обозначение: | Серия 1.436-10 |
| Обозначение англ: | Series 1.436-10 |
| Статус: | не действует |
| Название рус.: | Выпуск 2. Окна из алюминиевых профилей (с термовкладышами) спаренные |
| Дата добавления в базу: | 01.09.2013 |
| Дата актуализации: | 05.05.2017 |
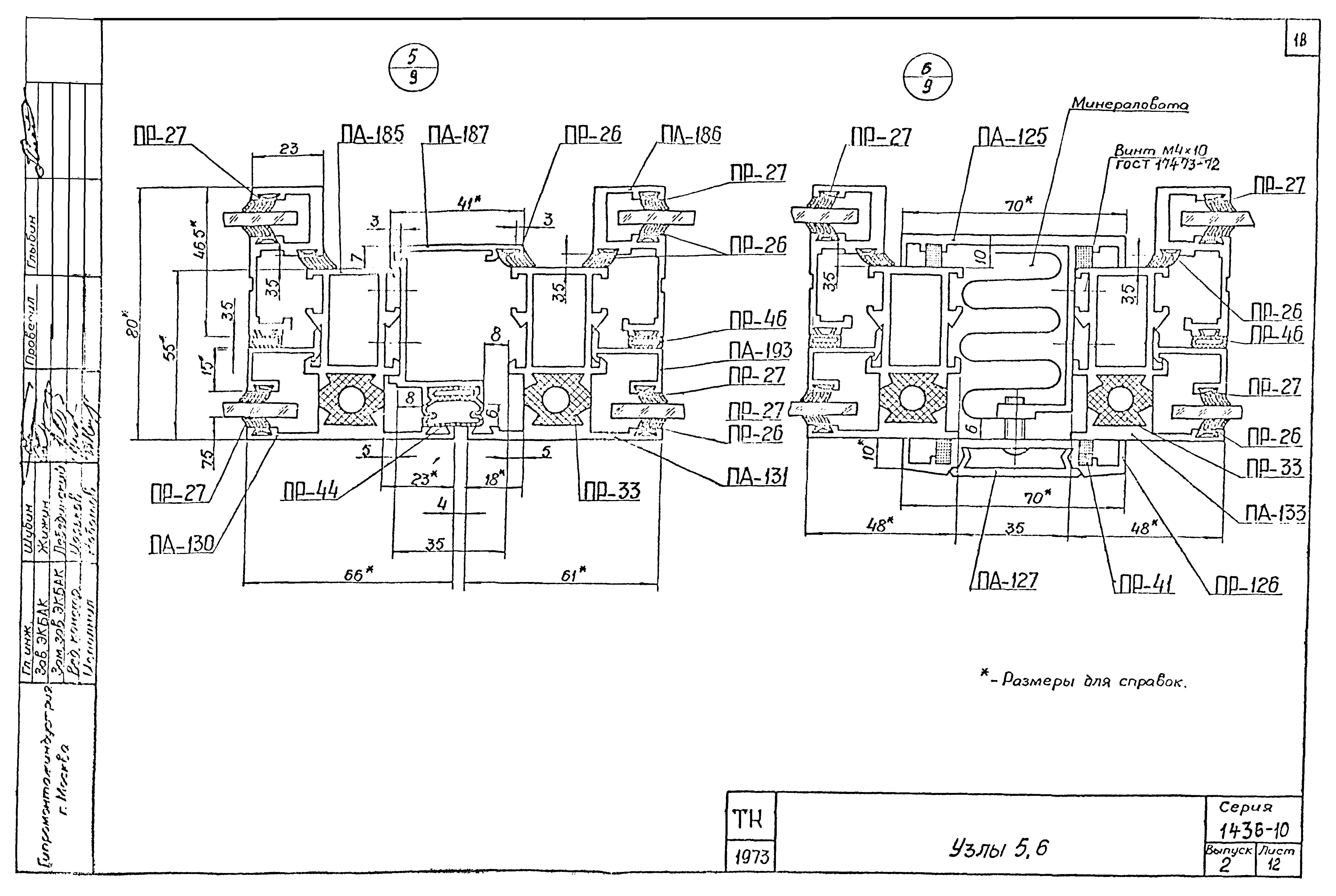
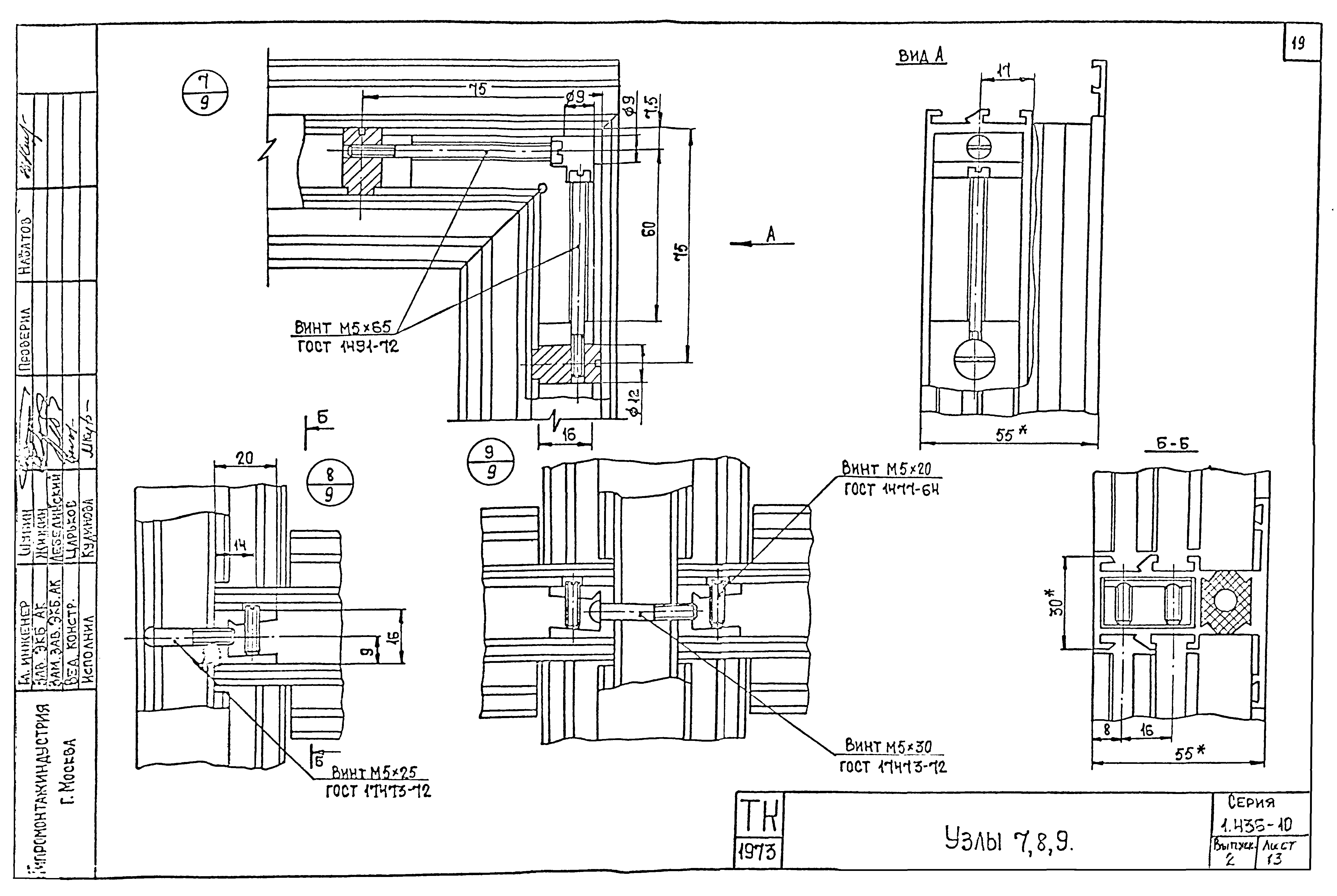
| Оглавление: | 1.436-10 Титульный лист 1.436-10 Содержание 1.436-10 Пояснительная записка. Условное обозначение 1.436-10 Фрагмент фасада 1.436-10 Номенклатура окон 1.436-10 Заполнение проемов по горизонтали 1.436-10 Комплект алюминиевых профилей 1.436-10 Комплект алюминиевых профилей примыкания 1.436-10 Комплект резины 1.436-10 Комбинированные профили 1.436-10 Комплектация алюминиевых профилей 1.436-10 Монтажная схема 1.436-10 Узлы 1,2 1.436-10 Узлы 3,4 1.436-10 Узлы 5,6 1.436-10 Узлы 7,8,9 1.436-10 Узел 10 |
| Разработан: | ЦНИИпромзданий Минмонтажспецстрой СССР Госстрой СССР Гипромонтажиндустрия Минмонтажспецстроя СССР Главспецлегконструкция |
| Утверждён: | 15.01.1974 Госстрой СССР (Государственный комитет Совета Министров СССР по делам строительства) (USSR Gosstroy ) |
| Расположен в: |





















