Скачать Типовой проект 903-2-13 Альбом IV. Генеральный план, инженерные сети. Части: тепломеханическая, архитектурно-строительная, автоматизация, электротехническая, водопровод и канализация, тепловые сетиДата актуализации: 10.08.2017 Типовой проект 903-2-13
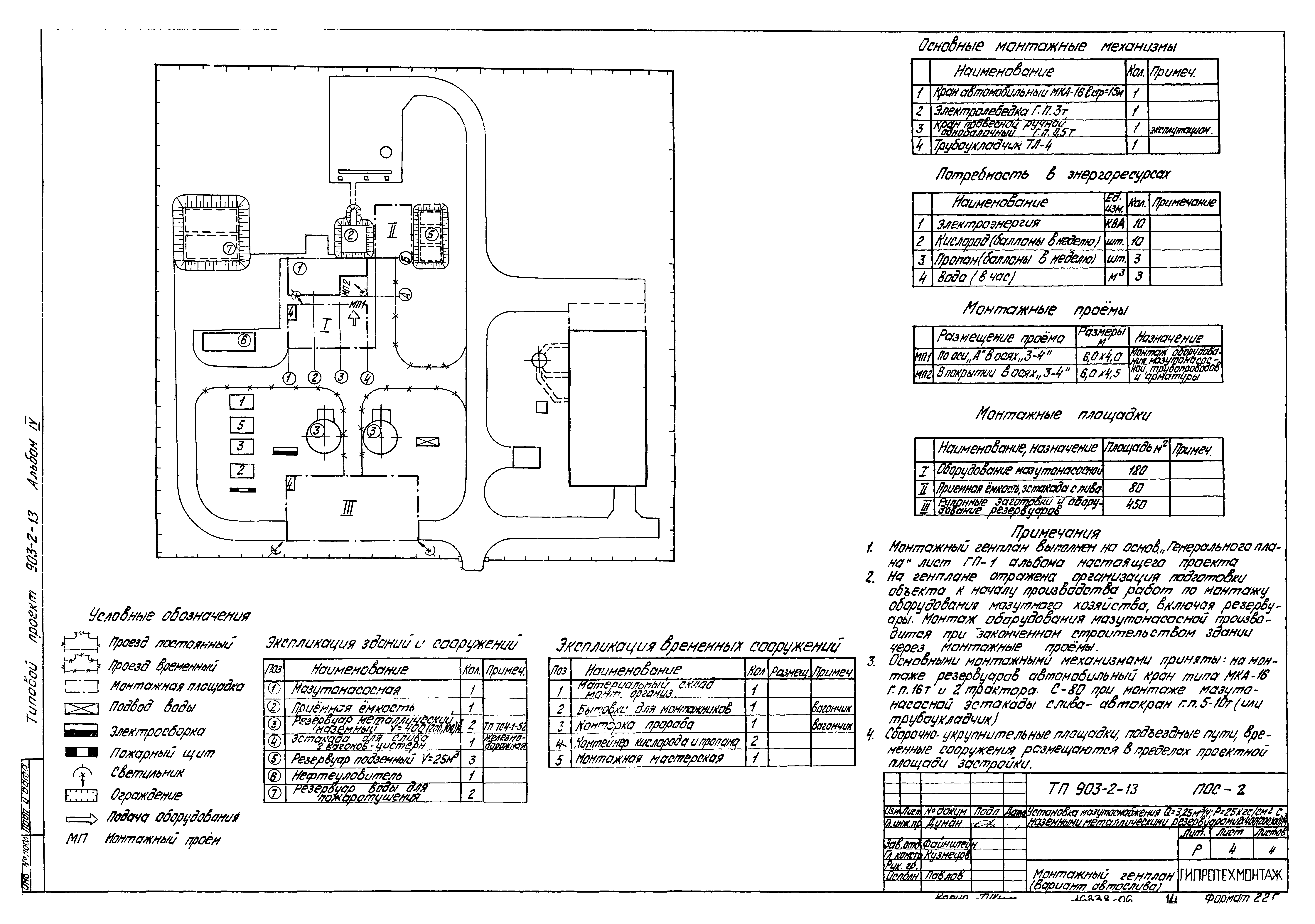
Альбом IV. Генеральный план, инженерные сети. Части: тепломеханическая, архитектурно-строительная, автоматизация, электротехническая, водопровод и канализация, тепловые сетиОбозначение: | Типовой проект 903-2-13 | Обозначение англ: | 903-2-13 | Статус: | не действует | Название рус.: | Альбом IV. Генеральный план, инженерные сети. Части: тепломеханическая, архитектурно-строительная, автоматизация, электротехническая, водопровод и канализация, тепловые сети | Дата добавления в базу: | 01.09.2013 | Дата актуализации: | 05.05.2017 | Дата введения: | 01.11.1979 | Оглавление: | ТП 903-2-13 Содержание альбома ТП 903-2-13 Пояснительная записка ТП 903-2-13-ГП Генеральный план ТП 903-2-13-ГП-1 Генеральный план. (Вариант железнодорожного слива) ТП 903-2-13-ГП-1 Генеральный план. (Вариант автослива) ТП 903-2-13-ПОС Основные положения по производству строительно-монтажных работ ТП 903-2-13-ПОС-1 Лист 1 Пояснительная записка. (Вариант железнодорожного слива) ТП 903-2-13-ПОС-1 Лист 2 Пояснительная записка. Календарный план строительства. (Вариант железнодорожного слива) ТП 903-2-13-ПОС-1 Лист 3 Стройгенплан на стадии монтажа конструкций надземной части здания. (Вариант железнодорожного слива) ТП 903-2-13-ПОС-1 Лист 4 Монтажный генплан. (Вариант железнодорожного слива) ТП 903-2-13-ПОС-2 Лист 1 Пояснительная записка. (Вариант автослива) ТП 903-2-13-ПОС-2 Лист 2 Пояснительная записка. Календарный план строительства. (Вариант автослива) ТП 903-2-13-ПОС-2 Лист 3 Стройгенплан на стадии монтажа конструкций надземной части здания. (Вариант автослива) ТП 903-2-13-ПОС-2 Лист 4 Монтажный генплан. (Вариант автослива) ТП 903-2-13-ТМ Тепломеханическая часть ТП 903-2-13-ТМ Площадочные трубопроводы ТП 903-2-13-ТМ-7/1 Площадочные трубопроводы. Общие данные ТП 903-2-13-ТМ-7/2 Площадочные трубопроводы. Перечень изолируемых поверхностей ТП 903-2-13-ТМ-7/3 Лист 1,2 Площадочные трубопроводы. Трасса паромазутопроводов ТП 903-2-13 Архитектурно-строительная часть ТП 903-2-13-КЖ Конструкции железобетонные ТП 903-2-13-КЖ-1 Эстакада паромазутосливов. Общие данные ТП 903-2-13-КЖ-2 Эстакада паромазутосливов. Маркировочная схема фундаментов ТП 903-2-13-КЖ-3 Эстакада паромазутосливов. Маркировочная схема колонн, балок и траверс ТП 903-2-13-КЖ-4 Эстакада паромазутосливов. Разрезы 2-2÷4-4. Элемент плана № 1. Узлы ТП 903-2-13-КЖ-5 Трасса паромазутопроводов от резервуаров. Маркировочная схема опор ТП 903-2-13-КЖ-6 Трасса паромазутопроводов от резервуаров. Опоры ОП-1÷ОП-5 ТП 903-2-13-КЖИ-В1-1а Вставка В1-1а ТП 903-2-13-КЖИ-МН-1 Закладное изделие МН-1 ТП 903-2-13-КЖИ-Б-1АтV-а Балка Б-1АтV-а ТП 903-2-13-КЖИ-Т1-Т4 Траверсы Т1-Т4 ТП 903-2-13-КЖИ-МН-2,МН-4 Закладные изделия МН-2,МН-4 ТП 903-2-13-КЖИ-МН-7 Закладное изделие МН-7 ТП 903-2-13-КЖИ-МН-2 Закладное изделие МН-2 ТП 903-2-13-КЖИ-МН-5,МН-6 Закладные изделия МН-5,МН-6 ТП 903-2-13-КИП Автоматизация ТП 903-2-13-КИП-12 Общие данные ТП 903-2-13-КИП-13 План расположения. (Резервуары 2х200,100м³) ТП 903-2-13-КИП-14 План расположения. (Резервуары 2х400м³) ТП 903-2-13-Э Электротехническая часть ТП 903-2-13-Э-1 Лист 1,2 Общие данные ТП 903-2-13-Э-2 Внутриплощадочные сети, наружное освещение и слаботочные сети. Вариант с автосливом ТП 903-2-13-Э-3 Внутриплощадочные сети, наружное освещение и слаботочные сети. Вариант с железнодорожным сливом ТП 903-2-13-Э-4 Молниезащита и заземление. Вариант с автосливом ТП 903-2-13-Э-5 Молниезащита и заземление. Вариант с железнодорожным сливом ТП 903-2-13-НКВ Наружные сети водоснабжения и канализации ТП 903-2-13-НКВ-1 Общие данные (начало) ТП 903-2-13-НКВ-2 Общие данные (окончание) ТП 903-2-13-НКВ-3 Генплан с сетями водопровода и канализации ТП 903-2-13-НКВ-4 Генплан с сетями водопровода и канализации ТП 903-2-13-ТС Тепловые сети ТП 903-2-13-ТС-1 Общие данные ТП 903-2-13-ТС-2 План прокладки тепломазутопроводов ТП 903-2-13-ТС-3 Продольный профиль тепломазутопроводов. Разрезы 1-1;2-2 | Разработан: | Латгипропром
| Утверждён: | 08.06.1977 Главпромстройпроект Госстроя СССР (33)
| Расположен в: |
| Чем заменён: | |
                                        
|