Скачать Типовой проект 903-2-13 Альбом III. Резервуарный парк. Части: тепломеханическая, архитектурно-строительная, автоматизация, электротехническая, отопление и вентиляцияДата актуализации: 10.08.2017 Типовой проект 903-2-13
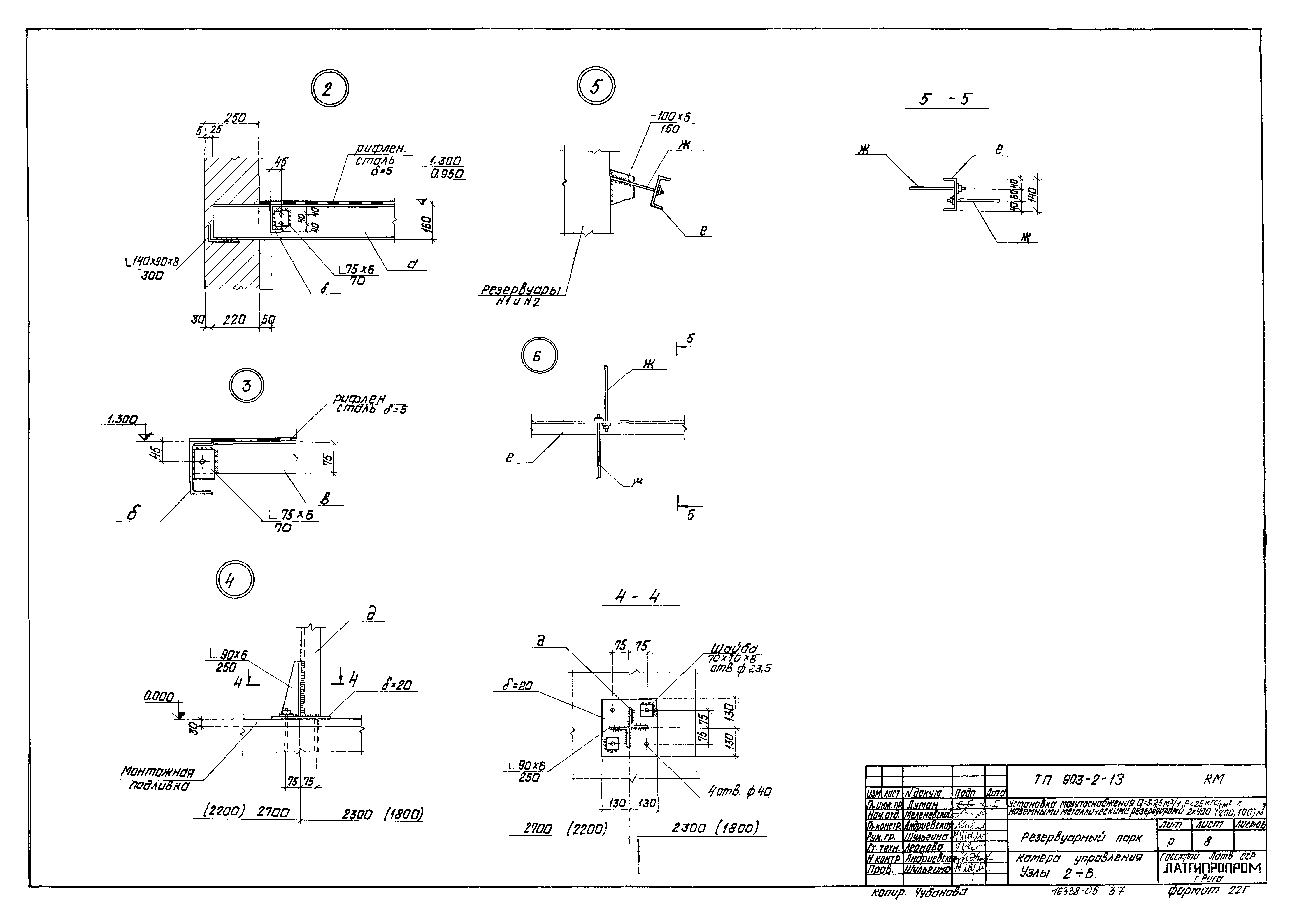
Альбом III. Резервуарный парк. Части: тепломеханическая, архитектурно-строительная, автоматизация, электротехническая, отопление и вентиляцияОбозначение: | Типовой проект 903-2-13 | Обозначение англ: | 903-2-13 | Статус: | не действует | Название рус.: | Альбом III. Резервуарный парк. Части: тепломеханическая, архитектурно-строительная, автоматизация, электротехническая, отопление и вентиляция | Дата добавления в базу: | 01.09.2013 | Дата актуализации: | 05.05.2017 | Дата введения: | 01.11.1979 | Оглавление: | ТП 903-2-13 Содержание альбома ТП 903-2-13 Пояснительная записка ТП 903-2-13-ТМ Тепломеханическая часть ТП 903-2-13-ТМ-6/1 Лист 1 Оборудование мазутных резервуаров ТП 903-2-13-ТМ-6/1 Лист 2 Оборудование мазутных резервуаров. Общие данные (начало) ТП 903-2-13-ТМ-6/1 Лист Оборудование мазутных резервуаров. Общие данные (продолжение) ТП 903-2-13-ТМ-6/1 Лист 1,2 Оборудование мазутных резервуаров. Общие данные (окончание) ТП 903-2-13-ТМ-6/1 Оборудование мазутных резервуаров. Перечень изолируемых поверхностей ТП 903-2-13-ТМ-6/3 Оборудование мазутных резервуаров. Общий вид резервуара V=400м³ ТП 903-2-13-ТМ-6/4 Оборудование мазутных резервуаров. Общий вид резервуара V=200м³ ТП 903-2-13-ТМ-6/5 Оборудование мазутных резервуаров. Общий вид резервуара V=100м³ ТП 903-2-13-ТМ-6/6 Лист 1,2 Оборудование мазутных резервуаров. Трубопроводы местного подогрева, заполнения и рециркуляции резервуара V=400м³ ТП 903-2-13-ТМ-6/7 Лист 1,2 Оборудование мазутных резервуаров. Трубопроводы местного подогрева, заполнения и рециркуляции резервуара V=200м³ ТП 903-2-13-ТМ-6/8 Лист 1,2 Оборудование мазутных резервуаров. Трубопроводы местного подогрева, заполнения и рециркуляции резервуара V=100м³ ТП 903-2-13-ТМ-6/9 Оборудование мазутных резервуаров. Трубопроводы камеры управления арматурой резервуаров V=400,200м³ ТП 903-2-13-ТМ-6/10 Оборудование мазутных резервуаров. Трубопроводы камеры управления арматурой резервуара V=100м³ ТП 903-2-13-ТМ-6/11 Оборудование мазутных резервуаров. Установка вентиляционного патрубка ВП-150 ТП 903-2-13-ТМ-6/12 Оборудование мазутных резервуаров. Установка пробоотборника сниженного ПСР-4 ТП 903-2-13-ТМ-6/13 Оборудование мазутных резервуаров. Установка люка Ду700 с датчиком уровня ДСУ-2М ТП 903-2-13-ТМ-6/14 Оборудование мазутных резервуаров. Установка термометров сопротивления ТП 903-2-13-ТМ-6/15 Оборудование мазутных резервуаров. Установка подогревательного элемента F=3.93² ТП 903-2-13-АР Архитектурно-строительная часть ТП 903-2-13-АР Архитектурно-строительные решения ТП 903-2-13-АР-1 Камера управления. Общие данные ТП 903-2-13-АР-2 Камера управления. Планы, разрез, фасады, узлы ТП 903-2-13-АР-3 Камера управления. Маркировочный план фундаментов резервуаров V=400(200)м³. Разрезы 1-1,2-2,3-3,4-4 ТП 903-2-13-АР-4 Камера управления. Маркировочный план фундаментов резервуаров V=100м³. Разрез 2-2 ТП 903-2-13-КЖИ-МН1,МН2 Закладные изделия МН1,МН2 ТП 903-2-13-КМ Конструкции металлические ТП 903-2-13-КМ-1 Камера управления. Общие данные (начало) ТП 903-2-13-КМ-2 Камера управления. Общие данные (продолжение) ТП 903-2-13-КМ-3 Камера управления. Общие данные (окончание) ТП 903-2-13-КМ-4 Камера управления. Техническая спецификация металла для специализированных заводов для резервуаров емкостью 400,200 м³ ТП 903-2-13-КМ-5 Камера управления. Техническая спецификация металла для специализированных заводов для резервуаров емкостью 100 м³ ТП 903-2-13-КМ-6 Камера управления. Маркировочный план лестниц и площадок камеры управления № 1, план балок покрытия ТП 903-2-13-КМ-7 Камера управления. Маркировочный план лестниц и площадок камеры управления № 2. Узел 1 ТП 903-2-13-КМ-8 Камера управления. Узлы 2-6 ТП 903-2-13-КИП Автоматизация ТП 903-2-13-КИП-10 Общие данные ТП 903-2-13-КИП-11 Схемы функциональная и внешних проводок ТП 903-2-13-Э Электротехническая часть ТП 903-2-13-Э-1 Общие данные ТП 903-2-13-Э-2 План силовой и осветительной электроустановок камер управления ТП 903-2-13-ОВ Отопление и вентиляция ТП 903-2-13-ОВ-1 Камера управления. Общие данные ТП 903-2-13-ОВ-2 Камера управления. Вентиляция. План на отм. 0.000. Фасад Б-А. Схема | Разработан: | Латгипропром
| Утверждён: | 08.06.1977 Главпромстройпроект Госстроя СССР (33)
| Расположен в: |
| Чем заменён: | |
                                          
|