Скачать Типовой проект 903-2-13 Альбом I. Часть 2. Мазутонасосная. Архитектурно-строительная частьДата актуализации: 10.08.2017 Типовой проект 903-2-13
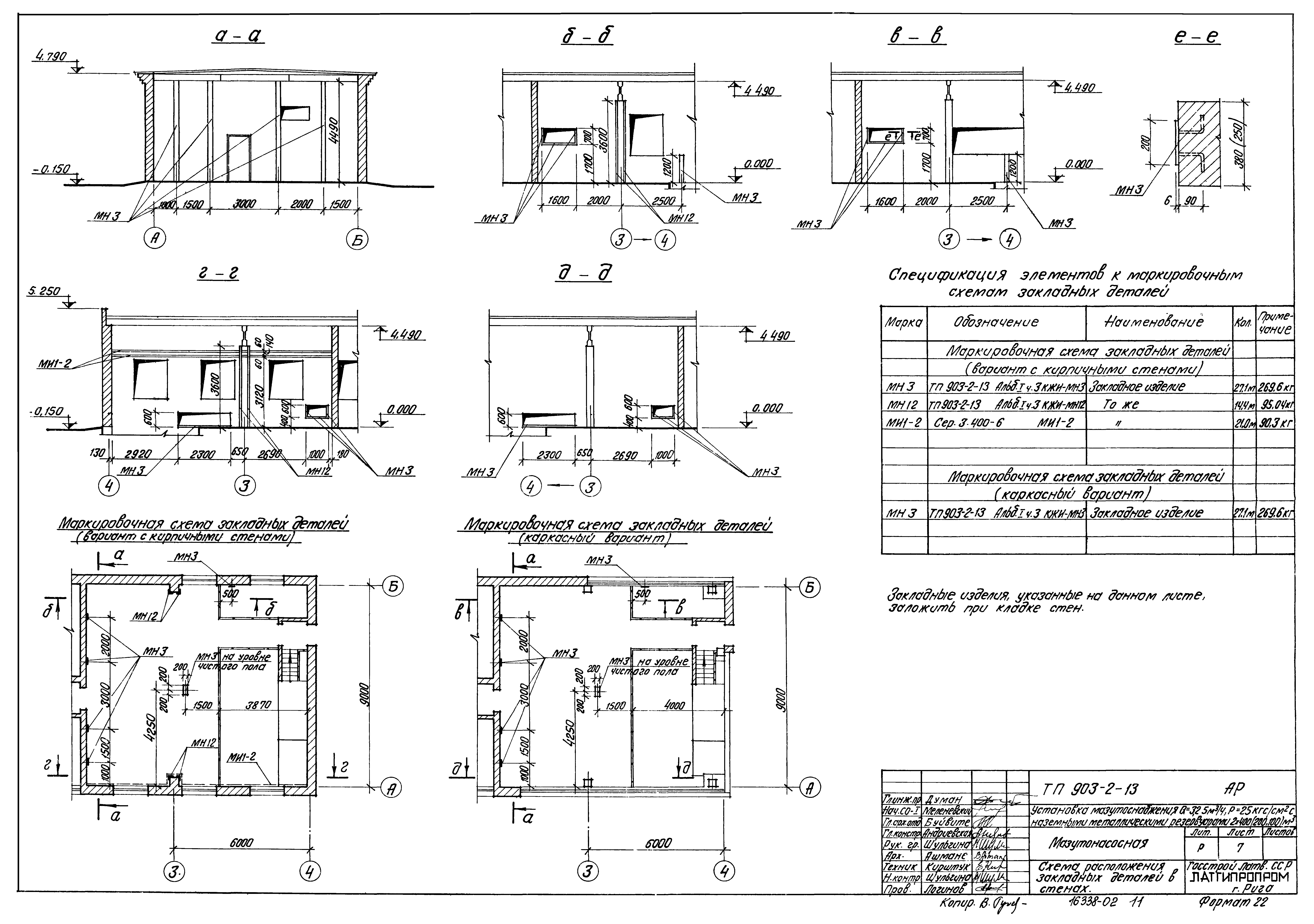
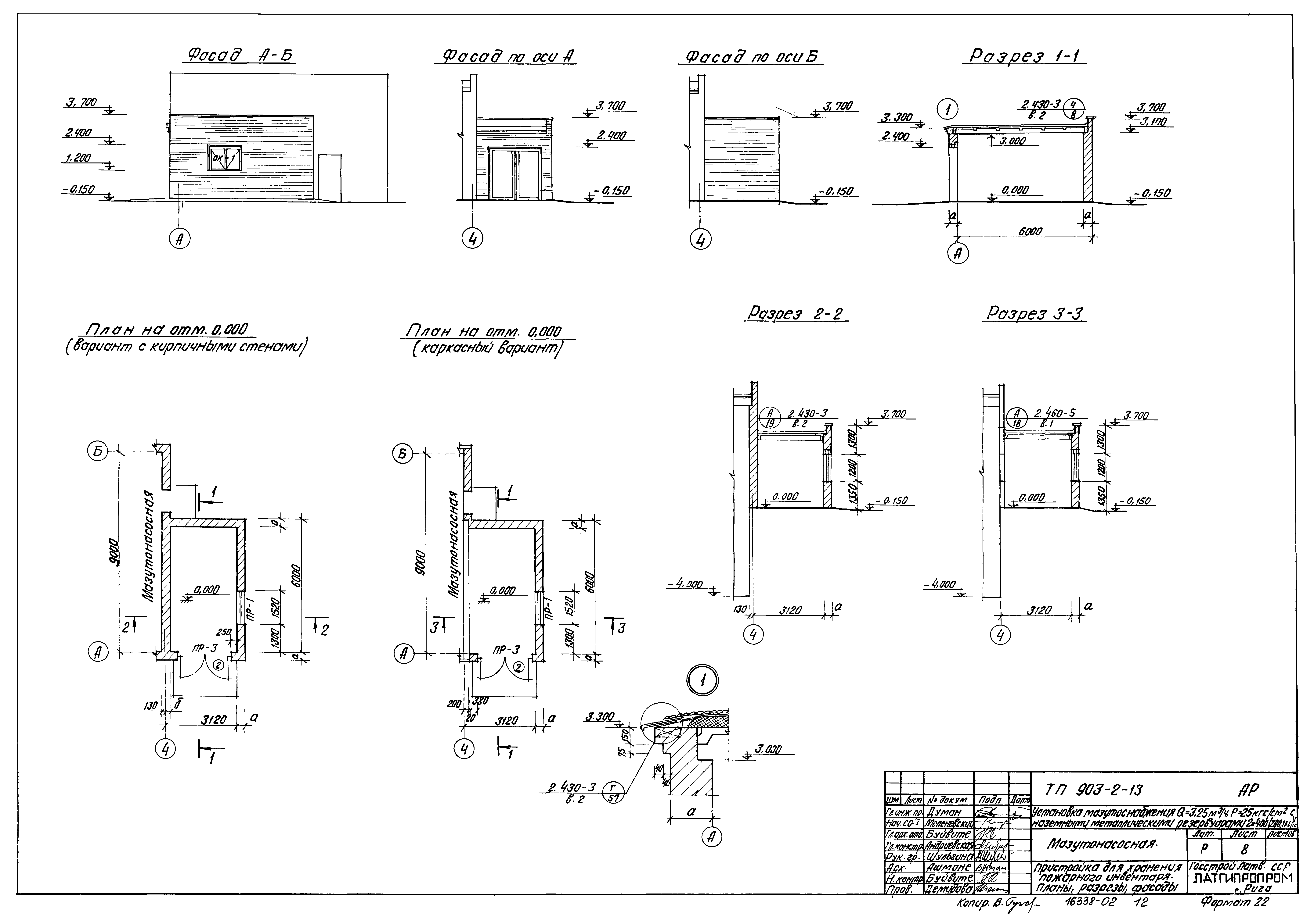
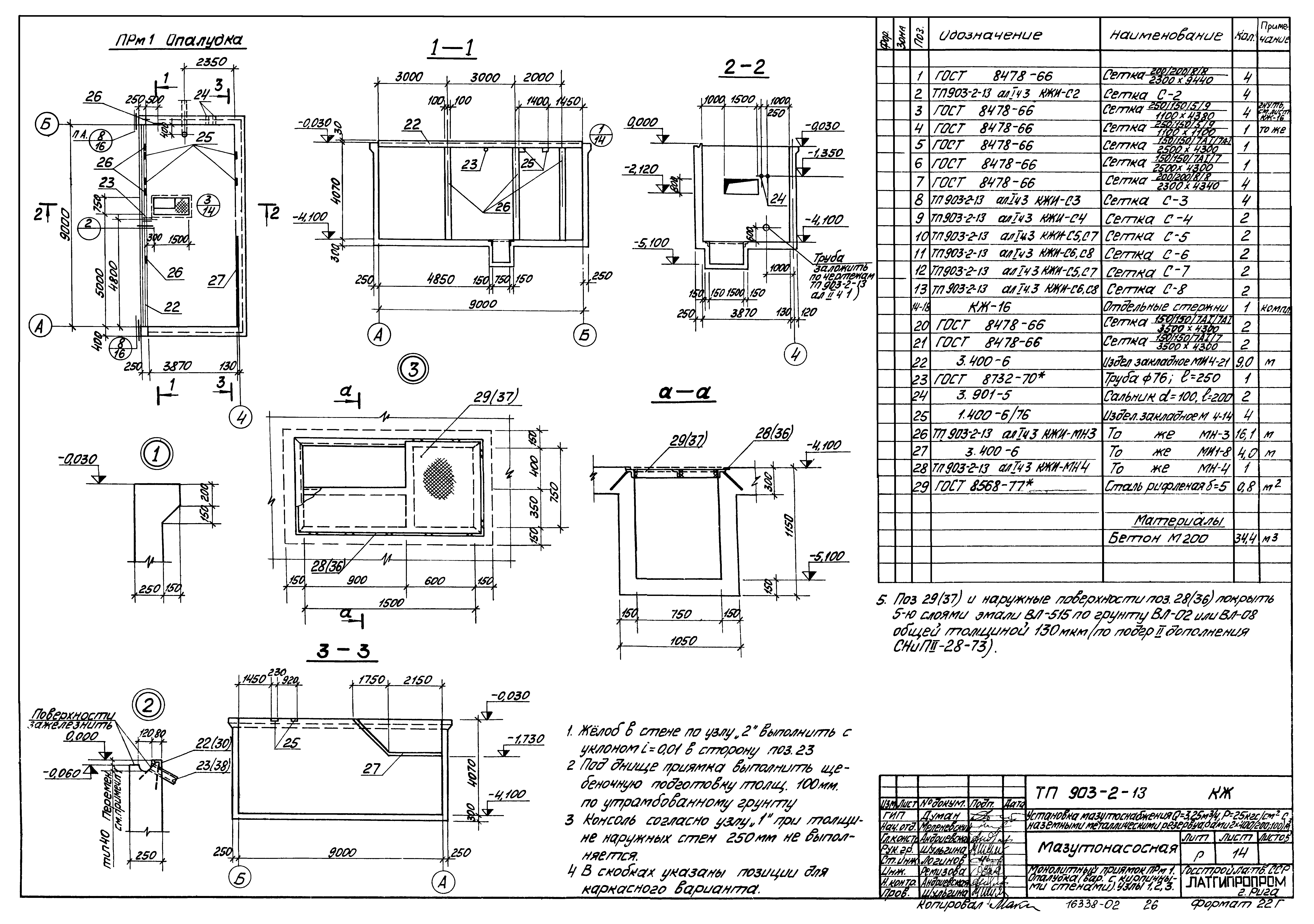
Альбом I. Часть 2. Мазутонасосная. Архитектурно-строительная частьОбозначение: | Типовой проект 903-2-13 | Обозначение англ: | 903-2-13 | Статус: | заменен | Название рус.: | Альбом I. Часть 2. Мазутонасосная. Архитектурно-строительная часть | Дата добавления в базу: | 01.09.2013 | Дата актуализации: | 05.05.2017 | Оглавление: | ТП 903-2-13 Архитектурно-строительная часть ТП 903-2-13 Содержание альбома ТП 903-2-13 Пояснительная записка ТП 903-2-13-АР-1 Общие данные (начало) ТП 903-2-13-АР-2 Общие данные (продолжение) ТП 903-2-13-АР-3 Общие данные (окончание) ТП 903-2-13-АР-4 План на отм. 0.000. Разрезы 1-1;2-2. Фасады. Фрагмент плана 1. (Вариант с кирпичными стенами) ТП 903-2-13-АР-5 План на отм. 0.000. Разрезы 1-1;2-2. Фасады. Фрагмент плана 1. (Каркасный вариант) ТП 903-2-13-АР-6 Планы на отм. -4.000. Разрезы 3-3÷8-8. Схема расположения молниеотвода на кровле ТП 903-2-13-АР-7 Схема расположения закладных деталей в стенах ТП 903-2-13-АР-8 Пристройка для хранения пожарного инвентаря. Планы на отм. 0.000. Разрезы 1-1,2-1,3-3. Фасады ТП 903-2-13-КЖ Конструкции железобетонные ТП 903-2-13-КЖ-1 Общие данные (начало) ТП 903-2-13-КЖ-2 Общие данные (продолжение 1) ТП 903-2-13-КЖ-3 Общие данные (продолжение 2) ТП 903-2-13-КЖ-4 Общие данные (окончание) ТП 903-2-13-КЖ-5 Маркировочная схема фундаментов. (Вариант с кирпичными стенами) ТП 903-2-13-КЖ-6 Маркировочная схема фундаментов. (Каркасный вариант) ТП 903-2-13-КЖ-7 Маркировочная схема фундаментов и фундаментных балок. Узел "6". Сечение 1-1. (Каркасный вариант). Фундамент ФОМ1 ТП 903-2-13-КЖ-8 Монолитные фундаменты ФА1-1и÷ФА1-1г. (Каркасный вариант) ТП 903-2-13-КЖ-9 Монолитные фундаменты ФА1-1д,ФА1-5а,ФА1-5б. (Каркасный вариант) ТП 903-2-13-КЖ-10 Маркировочная схема фундаментов под пристройку для хранения пожарного инвентаря ТП 903-2-13-КЖ-11 Маркировочный план подземных конструкций. (Вариант с кирпичными стенами) ТП 903-2-13-КЖ-12 Маркировочный план подземных конструкций. (Каркасный вариант) ТП 903-2-13-КЖ-13 Подземные конструкции. Разрезы, узлы, сечения ТП 903-2-13-КЖ-14 Монолитный приямок ПРм1. Опалубка (вариант с кирпичными стенами). Узлы 1,2,3 ТП 903-2-13-КЖ-15 Монолитный приямок ПРм1. Армирование (вариант с кирпичными стенами) ТП 903-2-13-КЖ-16 Монолитный приямок ПРм1. Сечение 7-7. Таблицы (вариант с кирпичными стенами). Узлы 4,5,6,7,8 ТП 903-2-13-КЖ-17 Монолитный приямок ПРм1. Опалубка (каркасный вариант) ТП 903-2-13-КЖ-18 Монолитный приямок ПРм1. Армирование (каркасный вариант) ТП 903-2-13-КЖ-19 Монолитный приямок ПРм1. Сечение 8-8,9-9,10-10. Таблицы (каркасный вариант) ТП 903-2-13-КЖ-20 Маркировочные схемы балок, плит покрытия ОП1,ОП2 (вариант с кирпичными стенами) ТП 903-2-13-КЖ-21 Маркировочные схемы колонн, балок и плит покрытия (каркасный вариант) ТП 903-2-13-КЖ-22 Маркировочные схемы стоек фахверка, насадок и опорных столиков (каркасный вариант) ТП 903-2-13-КЖ-23 Маркировочная схема стеновых панелей (каркасный вариант) ТП 903-2-13-КЖ-24 Фрагменты "5-12" (каркасный вариант) ТП 903-2-13-КЖ-25 Маркировочная схема монолитных конструкций в осях "А-Б" и "3-4", ПЛм1. Опалубка и армирование ТП 903-2-13-КЖ-26 Сечение 1-1,3-3 Пм1. Опалубка и армирование ТП 903-2-13-КМ Конструкции металлические ТП 903-2-13-КМ-1 Общие данные (начало) ТП 903-2-13-КМ-2 Общие данные (продолжение 1) ТП 903-2-13-КМ-3 Общие данные (продолжение 2) ТП 903-2-13-КМ-4 Общие данные (окончание) ТП 903-2-13-КМ-5 Техническая спецификация металла для специализированных заводов ТП 903-2-13-КМ-6 Маркировочные схемы путей подвесного транспорта. Опора под кабели ТП 903-2-13-КМ-7 Маркировочный план ограждений и лестницы в осях "А-Б" и "4". План опор. Опоры ОП1,ОП2 ТП 903-2-13-КМ-8 Рамы Р1,Р2 ТП 903-2-13-КМ-9 Рамы Р3,Р4,Р5 ТП 903-2-13-КМ-10 Рама Р6 ТП 903-2-13-КМ-11 Маркировочная схема опор под трубопроводы на кровле ОП1-ОП5 | Разработан: | Латгипропром
| Утверждён: | 08.06.1977 Главпромстройпроект Госстроя СССР (33)
| Расположен в: |
| Чем заменён: | |
                                                
|