Информационная система
«Ёшкин Кот»

Скачать базу одним архивом
Скачать обновления
История создания базы
Карта сайта

Скачать Типовой проект 902-2-235 Альбом I. Архитектурно-строительная часть

Дата актуализации: 10.08.2017

Типовой проект 902-2-235

Альбом I. Архитектурно-строительная часть

Обозначение: Типовой проект 902-2-235
Обозначение англ: 902-2-235
Статус:действует
Название рус.:Альбом I. Архитектурно-строительная часть
Дата добавления в базу:01.09.2013
Дата актуализации:05.05.2017
Оглавление:ТП 902-2-225-ПЗ-1 Содержание альбома
ТП 902-2-225-ПЗ-2,3,4,5 Пояснительная записка
ТП 902-2-225-АС-1 Заглавный лист
ТП 902-2-225-АС-2 Сводные спецификации при Нзагр=4м
ТП 902-2-225-АС-3 Сводные спецификации при Нзагр=3м
ТП 902-2-225-АС-4 Планы на отм. ±0.000 и на отм. -5.400(-4.400)
ТП 902-2-225-АС-5 Разрезы 1-1,2-2,3-3. Детали
ТП 902-2-225-АС-6 Фасады
ТП 902-2-225-АС-7 Монтажный план покрытия. Железобетонные подушки ОП-1,ОП-2
ТП 902-2-225-АС-8 Монтажный план стеновых панелей
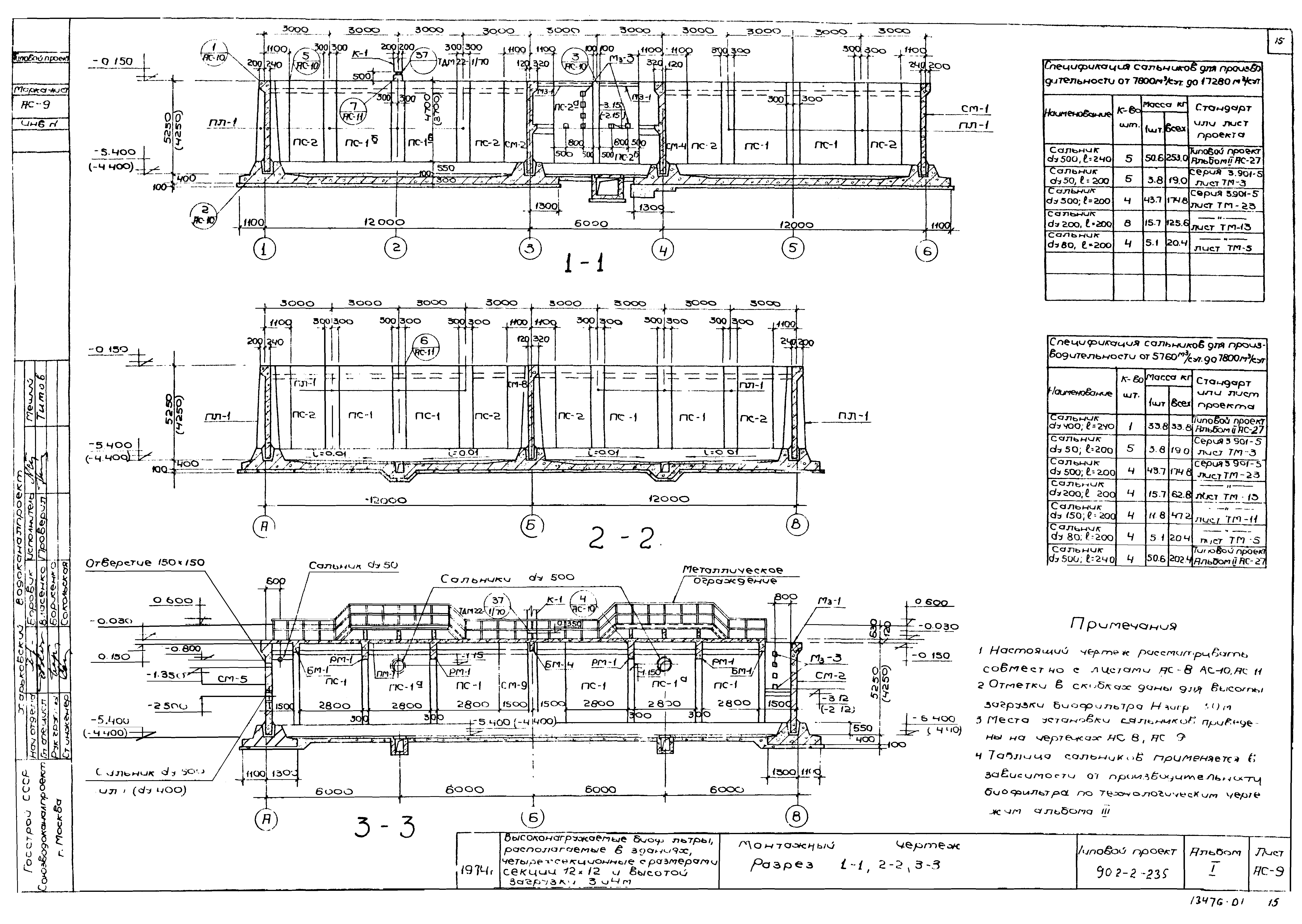
ТП 902-2-225-АС-9 Монтажный чертеж. Разрезы 1-1,2-2,3-3
ТП 902-2-225-АС-10 Монтажные детали "1"-"5". Сечения
ТП 902-2-225-АС-11 Монтажные детали "6","7". Сечения
ТП 902-2-225-АС-12 Монтажный план на отм. -0.030
ТП 902-2-225-АС-13 Опалубочный чертеж. Элемент плана № 1
ТП 902-2-225-АС-14 Опалубочный чертеж. Элемент плана № 1. Разрезы 1-1,2-2. Сечения 3-3÷6-6
ТП 902-2-225-АС-15 Опалубочный чертеж днища. План
ТП 902-2-225-АС-16 Опалубочный чертеж днища. Сечения 1-1÷5-5. Элемент плана № 2
ТП 902-2-225-АС-17 Опалубочный чертеж днища. Сечения 6-6÷12-12
ТП 902-2-225-АС-18 Опалубочный чертеж днища. Детали "1","2". Сечения 13-13÷16-16
ТП 902-2-225-АС-19 Опалубочный чертеж днища. Деталь "3". Сечения 17-17,18-18
ТП 902-2-225-АС-20 Каналы. План, детали "1","2"
ТП 902-2-225-АС-21 Каналы. Сечения 1-1÷6-6
ТП 902-2-225-АС-22 План перекрытия каналов. Сечения 7-7÷10-10
ТП 902-2-225-АС-23 Закладные детали М3-1÷М3-9. патрубок Ду300
ТП 902-2-225-АС-24 Приточная вентиляционная камера. План. Разрезы 1-1,2-2. Сечение 3-3
ТП 902-2-225-АС-25 Приточная вентиляционная камера. Разрезы 4-4,5-5. Летали "1"-"3"
ТП 902-2-225-АС-26 Приточная вентиляционная камера. Металлические рамы Р-1÷Р-4. Спецификация стали
ТП 902-2-225-АС-27 Монтажная схема колосниковых решеток и опор под трубопроводы. План. Разрезы 1-1,2-2
ТП 902-2-225-АС-28 Монтажная схема колосниковых решеток и опор под трубопроводы. Детали "1"-"3". Сечения 3-3,4-4
ТП 902-2-225-АС-29 Опоры под трубопроводы ОТ-1-ОТ-4. Спецификация арматуры
ТП 902-2-225-АС-30 Перекрытие на отм. -0.030. Армирование плиты ПМ-1. Верхние сетки
ТП 902-2-225-АС-31 Перекрытие на отм. -0.030. Армирование плиты ПМ-1. Нижние сетки
ТП 902-2-225-АС-32 Перекрытие на отм. -0.030. Армирование плиты ПМ-1. Сечения и детали
ТП 902-2-225-АС-33 Перекрытие на отм. -0.030. Армирование балок БМ-1÷БМ-4
ТП 902-2-225-АС-34 Перекрытие на отм. -0.030. Армирование балок БМ-5÷БМ-7
ТП 902-2-225-АС-35 Перекрытие на отм. -0.030. Сетки С-1÷С-15
ТП 902-2-225-АС-36 Перекрытие на отм. -0.030. Сетки С-16÷С-25. Каркасы КР-1÷КР-7
ТП 902-2-225-АС-37 Перекрытие на отм. -0.030. Спецификация арматуры
ТП 902-2-225-АС-38 Армирование днища. Раскладка верхних и нижних сеток
ТП 902-2-225-АС-39 Армирование днища. План раскладки каркасов в днище. Сечения 1-1,2-2
ТП 902-2-225-АС-40 Армирование днища. Детали "1"-"6"
ТП 902-2-225-АС-41 Армирование днища. Детали "7";"8". Сечения 4-4÷7-7
ТП 902-2-225-АС-42 Армирование днища. Сечения 8-8÷13-13
ТП 902-2-225-АС-43 Армирование днища. Сетки С-1÷С-11,С-15
ТП 902-2-225-АС-44 Армирование днища. Сетки С-12÷С-14,С-16,с-17. Каркасы КР-1÷КР-4
ТП 902-2-225-АС-45 Армирование днища. Спецификация арматуры при Нзагр=4.0м
ТП 902-2-225-АС-46 Армирование днища. Спецификация арматуры при Нзагр=3.0м
ТП 902-2-225-АС-47 Дозирующий бак. Армирование. Раскладка сеток
ТП 902-2-225-АС-48 Дозирующий бак. Армирование. План. Сечения. Детали
ТП 902-2-225-АС-49 Дозирующий бак. Армирование. Сетки. Спецификация арматуры
ТП 902-2-225-АС-50 Армирование каналов. Плиты П-1,П-2. Спецификация арматуры
ТП 902-2-225-АС-51 Венткамера. Армирование вентиляционного короба и плиты ПМ-2
ТП 902-2-225-АС-52 Колонна К-1. Арматурно-опалубочный чертеж
ТП 902-2-225-АС-53 Колонна К-1. Сетки и каркасы. Спецификация арматуры
ТП 902-2-225-АС-54 Подколонник ОК-1. Армирование. Стеновые панели ПБ1-42-1б,ПБ1-52-1б,ПБ1-42-1в,ПБ1-52-1в. Опалубка
ТП 902-2-225-АС-55 Металлическая площадка ПМ-1. План и сечения. Стремянка С-1а. Спецификация металла
ТП 902-2-225-АС-56 Металлические лестницы и площадки при Нзагр=4.0м. Площадка ПМ-2. Деталь "1"
ТП 902-2-225-АС-57 Металлические лестницы и площадки при Нзагр=3.0м. Площадка ПМ-3. Деталь "1"
ТП 902-2-225-АС-58 Металлические лестницы и площадки. Детали. Металлический щит Щ-1
ТП 902-2-225-АС-59 Наружная лестница. Ограждение
Разработан: Союзводоканалпроект
Утверждён:15.05.1975 Главпромстройпроект Госстроя СССР (26)
Расположен в:Техническая документация Строительство Справочные документы Типовые строительные конструкции, изделия и узлы Общероссийский строительный каталог Промышленные предприятия, здания и сооружения Здания и сооружения санитарно-технические Канализация Сооружения биологической (биохимической) очистки Станции биологической очистки сточных вод
Типовой проект 902-2-235Типовой проект 902-2-235Типовой проект 902-2-235Типовой проект 902-2-235Типовой проект 902-2-235Типовой проект 902-2-235Типовой проект 902-2-235Типовой проект 902-2-235Типовой проект 902-2-235Типовой проект 902-2-235Типовой проект 902-2-235Типовой проект 902-2-235Типовой проект 902-2-235Типовой проект 902-2-235Типовой проект 902-2-235Типовой проект 902-2-235Типовой проект 902-2-235Типовой проект 902-2-235Типовой проект 902-2-235Типовой проект 902-2-235Типовой проект 902-2-235Типовой проект 902-2-235Типовой проект 902-2-235Типовой проект 902-2-235Типовой проект 902-2-235Типовой проект 902-2-235Типовой проект 902-2-235Типовой проект 902-2-235Типовой проект 902-2-235Типовой проект 902-2-235Типовой проект 902-2-235Типовой проект 902-2-235Типовой проект 902-2-235Типовой проект 902-2-235Типовой проект 902-2-235Типовой проект 902-2-235Типовой проект 902-2-235Типовой проект 902-2-235Типовой проект 902-2-235Типовой проект 902-2-235Типовой проект 902-2-235Типовой проект 902-2-235Типовой проект 902-2-235Типовой проект 902-2-235Типовой проект 902-2-235Типовой проект 902-2-235Типовой проект 902-2-235Типовой проект 902-2-235Типовой проект 902-2-235Типовой проект 902-2-235Типовой проект 902-2-235Типовой проект 902-2-235Типовой проект 902-2-235Типовой проект 902-2-235Типовой проект 902-2-235Типовой проект 902-2-235Типовой проект 902-2-235Типовой проект 902-2-235Типовой проект 902-2-235Типовой проект 902-2-235Типовой проект 902-2-235Типовой проект 902-2-235Типовой проект 902-2-235Типовой проект 902-2-235Типовой проект 902-2-235Типовой проект 902-2-235

© 2013 Ёшкин Кот :-) Карта сайта