| ||||||||||||||||||||||||||||
Скачать Серия 3.016.1-4 Выпуск 0. Материалы для проектированияДата актуализации: 10.08.2017
|
| Обозначение: | Серия 3.016.1-4 |
| Обозначение англ: | Series 3.016.1-4 |
| Статус: | не действует |
| Название рус.: | Выпуск 0. Материалы для проектирования |
| Дата добавления в базу: | 01.09.2013 |
| Дата актуализации: | 05.05.2017 |
| Дата окончания срока действия: | 01.05.1987 |
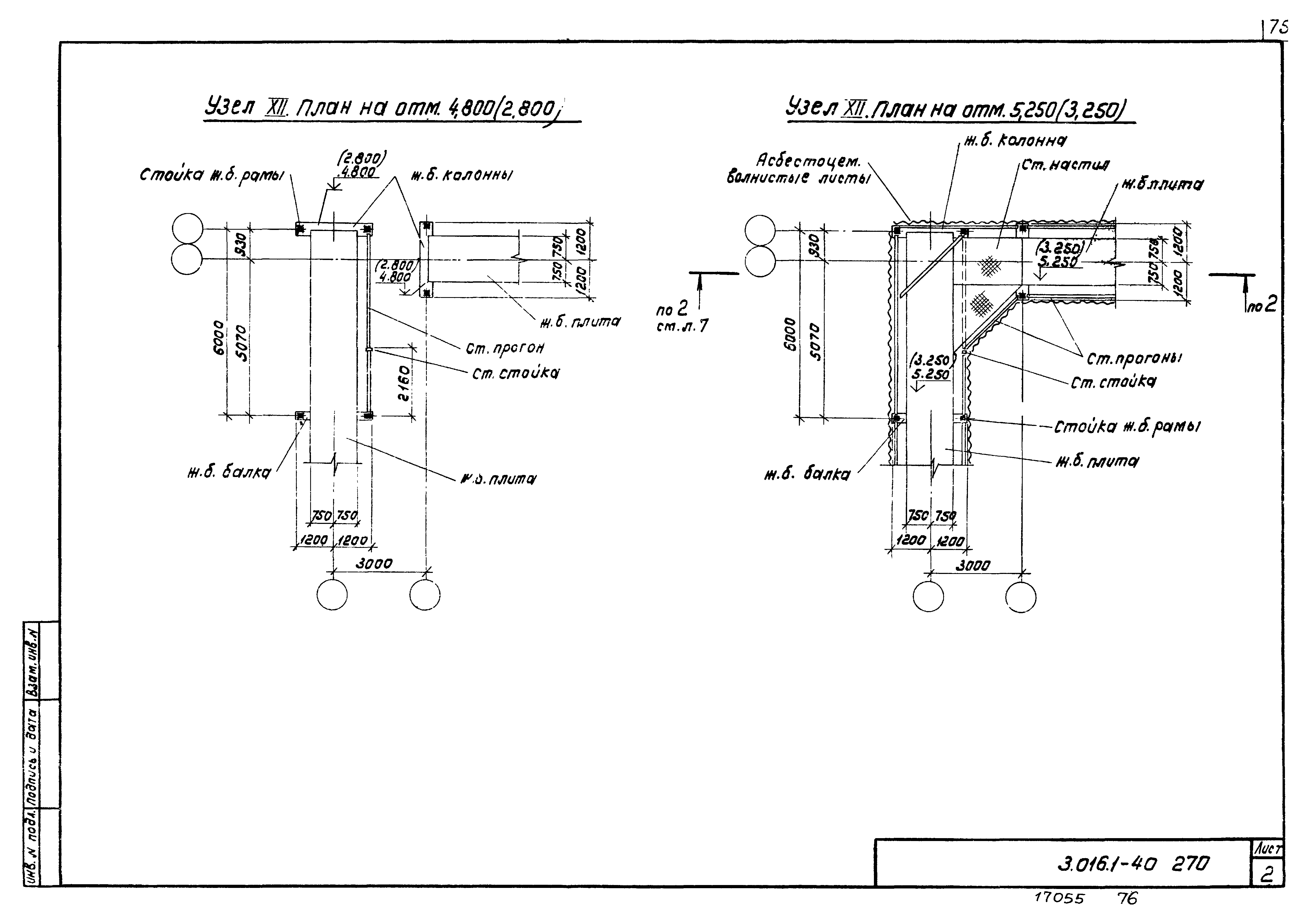
| Оглавление: | 3.016.1-4.0.010 Пояснительная записка 3.016.1-4.0.020 Габаритные схемы кабельных эстакад и галерей 3.016.1-4.0.030 Номенклатура изделий 3.016.1-4.0.040 Схемы расположения прямолинейных участков эстакад. Разрез 1-4. Типы укрытия 1-7 3.016.1-4.0.050 Схемы расположения прямолинейных участков галерей. Фрагменты 1-6. Разрезы 1-9 3.016.1-4.0.060 Схемы расположения элементов эстакад с шагом 6 м с опорами в виде колонн (рядовой шаг). Схема № 1 3.016.1-4.0.070 Схемы расположения элементов эстакад с шагом 6 м с опорами в виде колонн (у температурного шва). Схема № 2 3.016.1-4.0.080 Схемы расположения элементов эстакад с шагом 6 м с опорами в виде свай. Схема № 3,3а 3.016.1-4.0.090 Схемы расположения элементов эстакад с шагом 6 м с опорами в виде столбов (рядовой шаг). Схема № 4 3.016.1-4.0.100 Схемы расположения элементов эстакад с шагом 6 м с опорами в виде столбов (у температурного шва). Схема № 5 3.016.1-4.0.110 Схемы расположения элементов эстакад с шагом 12 м с опорами в виде колонн. Схема № 6,6а 3.016.1-4.0.120 Схемы расположения элементов эстакад с шагом 12 м с опорами в виде свай. Схема № 7,7а 3.016.1-4.0.130 Схемы расположения элементов эстакад с шагом 12 м с опорами в виде столбов. Схема № 8,8а 3.016.1-4.0.140 Схема расположения элементов галерей Г6-48-2,Г6-48-3. Схема № 9 3.016.1-4.0.150 Схема расположения элементов галерей Г6-48-2,Г6-48-3. Схема № 10 3.016.1-4.0.160 Схема расположения элементов галерей Г6-48х2-2,Г6-48х2-3. Схема № 11 3.016.1-4.0.170 Схема расположения элементов галерей Г6-48х2-2,Г6-48х2-3. Схема № 12 3.016.1-4.0.180 Схема расположения элементов галерей Г12-48-2,Г12-48-3. Схема № 13 3.016.1-4.0.190 Схема расположения элементов галерей Г12-48-2,Г12-48-3. Схема № 14 3.016.1-4.0.200 Схема расположения элементов галерей Г12-48х2-2,Г12-48х2-3. Схема № 15 3.016.1-4.0.210 Схема расположения элементов галерей Г12-48х2-2,Г12-48х2-3. Схема № 16 3.016.1-4.0.220 Схема расположения элементов галерей Г18-48-4,Г18-48х2-4. Схема № 17 3.016.1-4.0.230 Схема расположения элементов эстакад ЭК18-30-4;УЭК18-30-4. Схема № 18 3.016.1-4.0.000Д Узлы 1-17 к схемам 1-17 3.016.1-4.0.240 Схемы расположения узлов эстакад и галерей 3.016.1-4.0.250 Узлы эстакад 1-6 3.016.1-4.0.260 Узлы примыкания эстакад и галерей 7-10 3.016.1-4.0.270 Узлы галерей 11-21 |
| Разработан: | Ленинградский Промстройпроект |
| Утверждён: | 06.08.1980 Госстрой СССР (Государственный комитет Совета Министров СССР по делам строительства) (USSR Gosstroy 2/3-288) |
| Расположен в: | |
| Чем заменён: |






















































































