Скачать Типовой проект 505-13/70 Альбом I. Общая пояснительная записка, технологическая часть, архитектурно-строительная часть, санитарно-техническая часть, электрооборудование и соображения по организации строительстваДата актуализации: 10.08.2017 Типовой проект 505-13/70
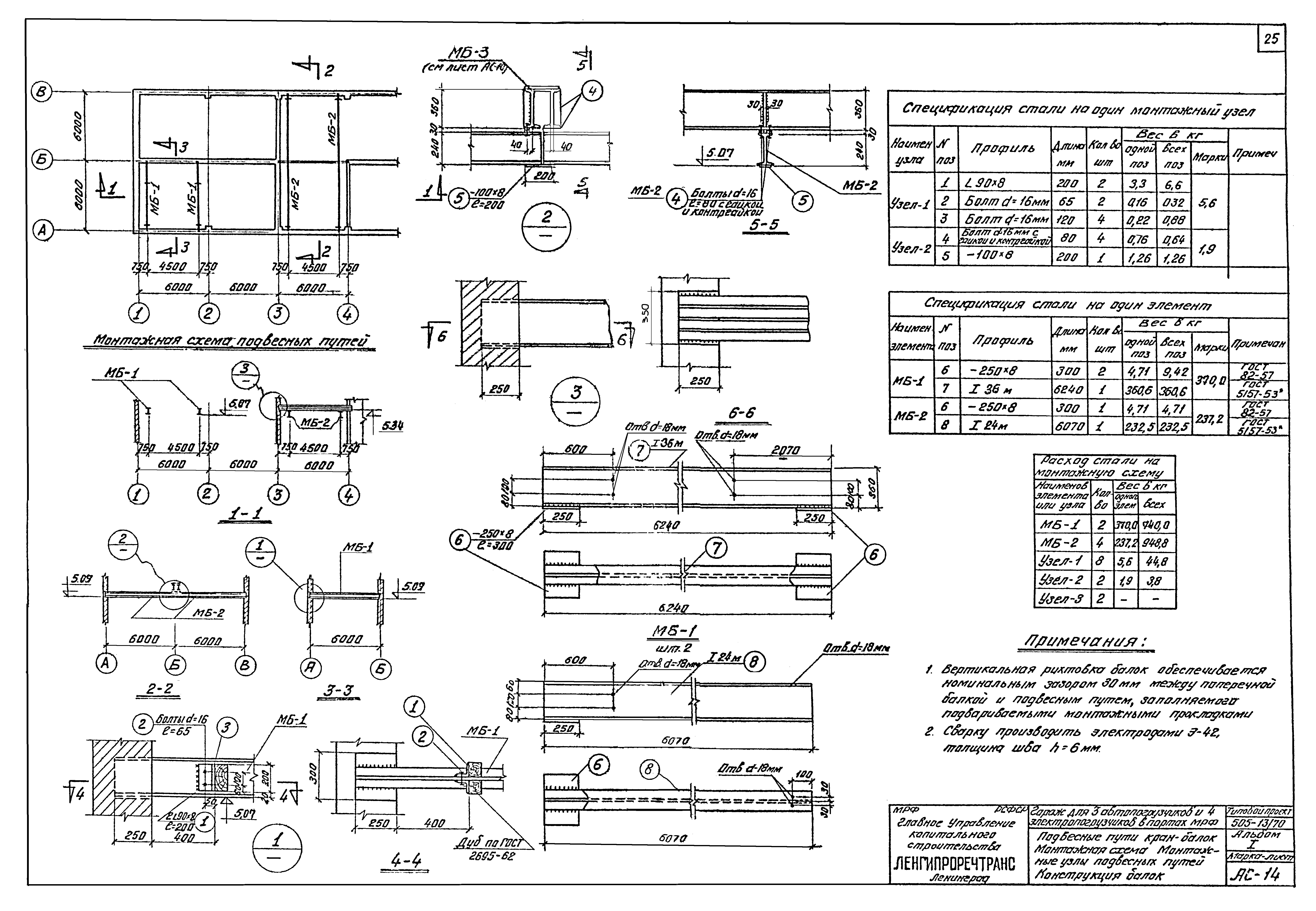
Альбом I. Общая пояснительная записка, технологическая часть, архитектурно-строительная часть, санитарно-техническая часть, электрооборудование и соображения по организации строительстваОбозначение: | Типовой проект 505-13/70 | Обозначение англ: | 505-13/70 | Статус: | действует | Название рус.: | Альбом I. Общая пояснительная записка, технологическая часть, архитектурно-строительная часть, санитарно-техническая часть, электрооборудование и соображения по организации строительства | Дата добавления в базу: | 01.09.2013 | Дата актуализации: | 05.05.2017 | Оглавление: | ТП 505-13/70 Содержание альбома ТП 505-13/70-ПЗ-1 Введение ТП 505-13/70-ПЗ-1 Раздел 1. Технологическая часть ТП 505-13/70-ПЗ-3 Раздел 2. Архитектурно-строительная часть ТП 505-13/70-ПЗ-3 Раздел 3. Санитарно-техническая часть ТП 505-13/70-ПЗ-4 Раздел 4. Электрооборудование и слаботочные устройства ТП 505-13/70-ПЗ-4 Раздел 5. Соображения по организации строительства ТП 505-13/70-ТХ Технологическая часть ТП 505-13/70-ГП-1 Схема генерального плана ТП 505-13/70-ТХ-1 План расстановки технологического оборудования ТП 505-13/70-ТХ-2 Спецификация технологического оборудования ТП 505-13/70-ТХ-3 План, схема разводки и спецификация трубопроводов, электролита, дистиллированной воды и сжатого воздуха ТП 505-13/70-АС Архитектурно-строительная часть ТП 505-13/70-АС-1 Перечень листов АС. Спецификация сварных ж.б. и бетонных элементов ТП 505-13/70-АС-2 Заглавный лист ТП 505-13/70-АС-3 План на отметке ±0.00 и +3.30. Спецификация ТП 505-13/70-АС-4 Разрезы 1-1,2-2. Фасады ТП 505-13/70-АС-5 План фундаментов. Сечения и спецификация ТП 505-13/70-АС-6 Сечения фундаментов. Узлы "1","2","3","4" ТП 505-13/70-АС-7 Ремонтно-осмотровая канава ТП 505-13/70-АС-8 Конструкция подпольных каналов и приямка ТП 505-13/70-АС-9 Монтажная схема покрытия. Узлы. Спецификация ТП 505-13/70-АС-10 Опалубочные чертежи плит покрытия с отверстиями. Металлические балки МБ-3,МБ-4 ТП 505-13/70-АС-11 Перекрытие венткамеры на отм. 3.30 ТП 505-13/70-АС-12 Монтажная схема перемычек и стоек ворот. Конструкция перемычек. Спецификация ТП 505-13/70-АС-13 Козырек входа НКВ-1 ТП 505-13/70-АС-14 Подвесные пути кран-балок. Монтажная схема, монтажные узлы подвесных путей. Конструкция балок ТП 505-13/70-АС-15 Конструкция перегородок венткамеры ТП 505-13/70-АС-16 Конструкция металлического навеса ТП 505-13/70-АС-17 Деревянная эстакада для мойки автопогрузчиков ТП 505-13/70-АС-18 Вариант железобетонной эстакады для мойки автопогрузчиков ТП 505-13/70 Санитарно-техническая часть ТП 505-13/70-ВК-1 Водопровод и канализация ТП 505-13/70-ВК-2 Общие данные по марке "ВК" ТП 505-13/70-ВК-3 План на отм. ±0.00 с сетями водопровода, канализации и централизованного горячего водоснабжения ТП 505-13/70-ВК-4 План на отм. ±0.00 с сетями водопровода, канализации и горячего водоснабжения с местным подогревом воды ТП 505-13/70-ВК-5 Схемы и спецификации холодного и горячего водоснабжения с местным подогревом воды ТП 505-13/70-ВК-6 Схемы и спецификации холодного и централизованного горячего водоснабжения ТП 505-13/70-ВК-7 Разрезы и спецификации канализации ТП 505-13/70-ВК-8 Установка водоподогревателя ТП 505-13/70-ВК-9 Водосборный колодец у моечной эстакады ТП 505-13/70-ВК-10 Грязеотстойник. План и разрезы ТП 505-13/70-ВК-11 Бензиномаслоуловитель ТП 505-13/70-ВК-12 Бензиномаслоуловитель. Детали ТП 505-13/70-ОВ Отопление и вентиляция ТП 505-13/70-ОВ-1 Заглавный лист ТП 505-13/70-ОВ-2 Таблицы воздухообменов и характеристика отопительно-вентиляционного оборудования ТП 505-13/70-ОВ-3 Планы отдаления, вентиляции и горячего водоснабжения ТП 505-13/70-ОВ-4 Разрезы 1-1,2-2,3-3 ТП 505-13/70-ОВ-5 Схемы вентиляционных систем ТП 505-13/70-ОВ-6 Схемы отопления, теплоснабжения калориферов и подогревателей горячего водоснабжения ТП 505-13/70-ОВ-7 Спецификация материалов ТП 505-13/70-ОВ-8 Приточные камеры П-1,П-2 и установка ПР-1,В-1,В-2,В-3 ТП 505-13/70-ОВ-9 Спецификация приточных камер и установок П-1,В-1,В-2,В-3 ТП 505-13/70-ОВ-10 Шланговый отсос для удаления выхлопных газов от двигателей ТП 505-13/70-ЭО Электрооборудование и слаботочные устройства ТП 505-13/70-ЭО-1 План силовой сети ТП 505-13/70-ЭО-2 Схема силовой сети ТП 505-13/70-ЭО-3 Схема силовой сети ТП 505-13/70-ЭО-4 Схема управления и сигнализации работ электроприборов вентсистем ТП 505-13/70-ЭО-5 План и схема сети освещения ТП 505-13/70-ЭО-6 Спецификация для электроосвещения и силового электрооборудования ТП 505-13/70-ЭО-7 Клеммный щиток для зарядки аккумуляторов ТП 505-13/70-СУ-1 План внутренних слаботочных сетей на отм. ±0.00 ТП 505-13/70-СУ-2 Спецификация на слаботочные устройства ТП 505-13/70 Соображения по организации строительства ТП 505-13/70-ПР-1 Схемы монтажа плит покрытия | Разработан: | Ленгипроречтранс
| Утверждён: | 01.05.1971 Министерство речного флота РСФСР
| Издан: | Минский филиал ЦИТП (1974 г. )
| Расположен в: |
|
                                                          
|