| ||||||||||||||||||||||||||
Скачать Типовые материалы для проектирования 904-02-24.86 Альбом I. Пояснительная записка. Принципиальные схемы. Примеры компоновокДата актуализации: 10.08.2017
|
| Обозначение: | Типовые материалы для проектирования 904-02-24.86 |
| Обозначение англ: | 904-02-24.86 |
| Статус: | не действует |
| Название рус.: | Альбом I. Пояснительная записка. Принципиальные схемы. Примеры компоновок |
| Дата добавления в базу: | 01.09.2013 |
| Дата актуализации: | 05.05.2017 |
| Дата введения: | 01.01.1991 |
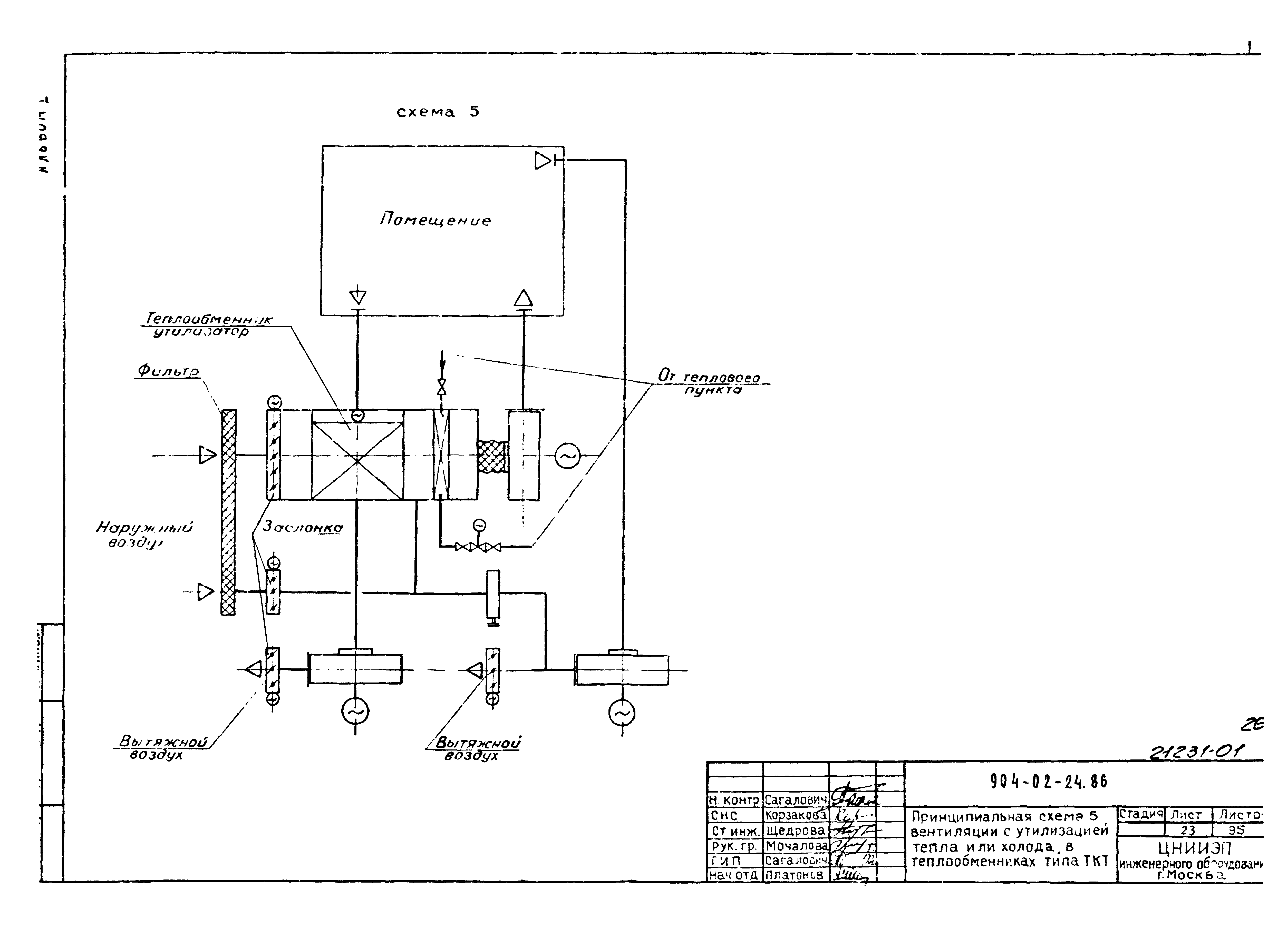
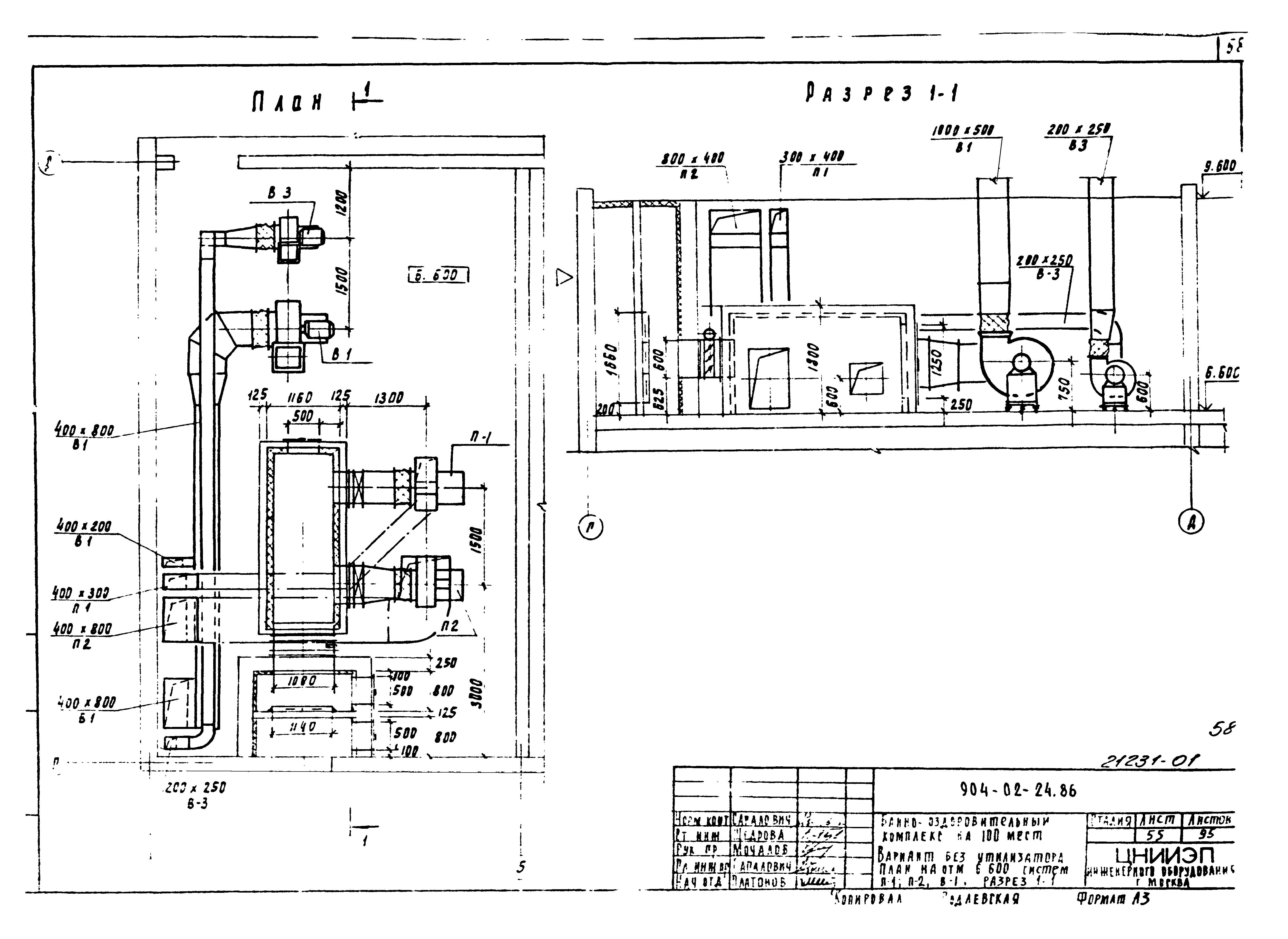
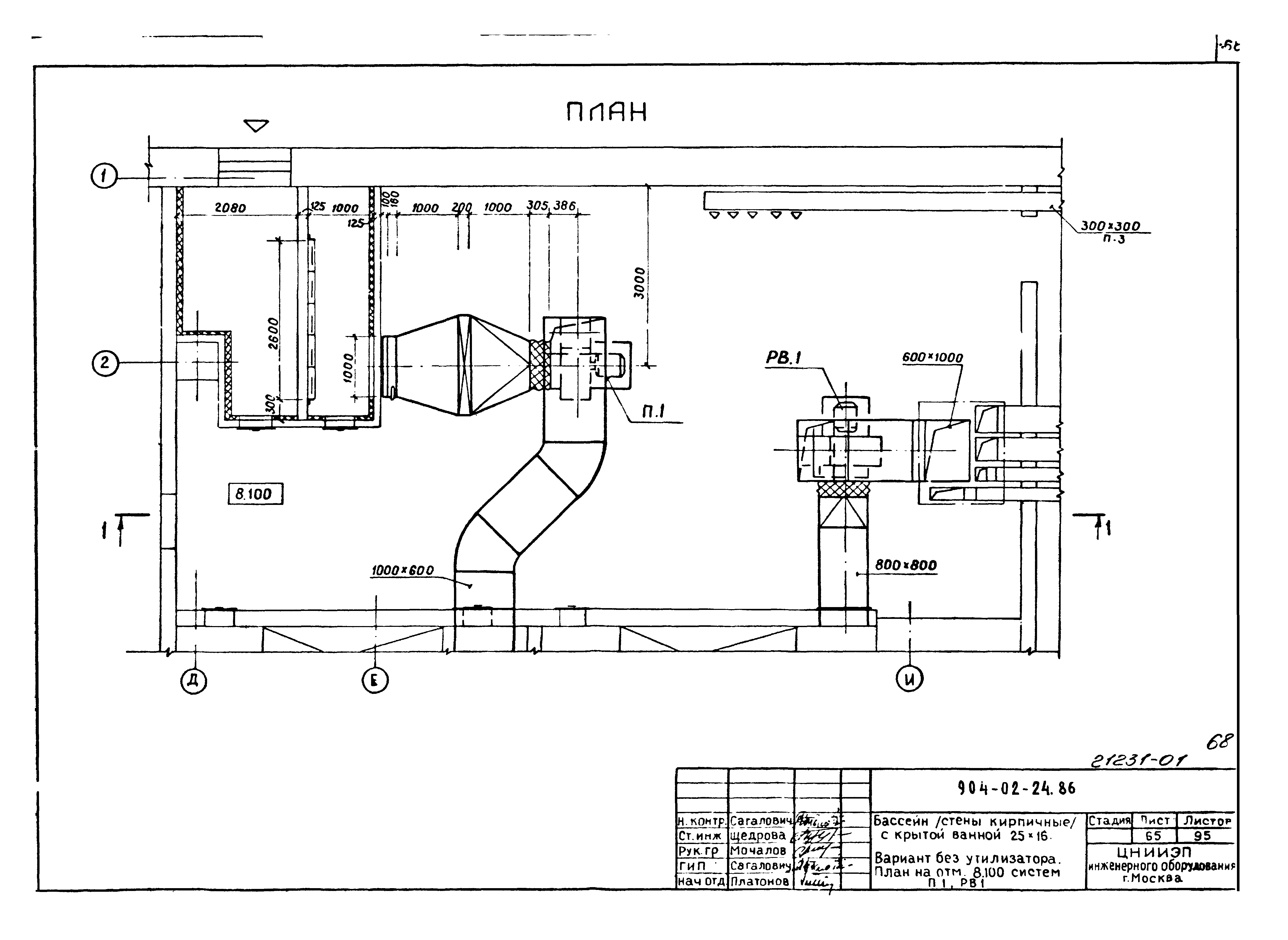
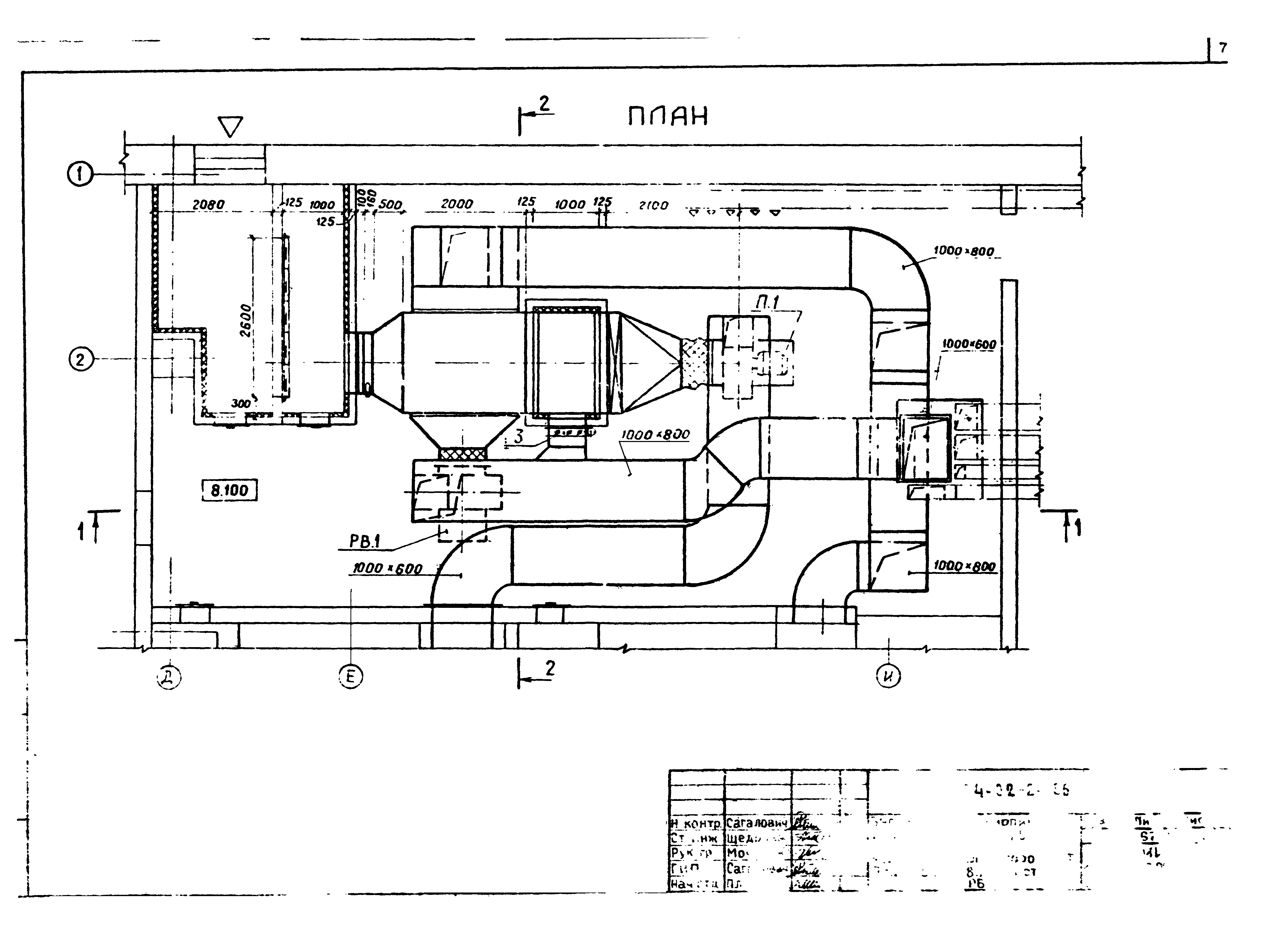
| Оглавление: | ТП 904-02-24.86 Титульный лист ТП 904-02-24.86 Содержание альбома (начало) ТП 904-02-24.86 Содержание альбома (окончание) ТП 904-02-24.86 Пояснительная записка (начало) ТП 904-02-24.86 Пояснительная записка (продолжение) ТП 904-02-24.86 Пояснительная записка (окончание) ТП 904-02-24.86 Габаритные и установочные размеры теплообменников-утилизаторов типа ТКТ ТП 904-02-24.86 Принципиальные схемы 1,2 вентиляции с утилизацией тепла или холода ТП 904-02-24.86 Принципиальные схемы 3,4 вентиляции с утилизацией тепла или холода в теплообменниках типа ТКТ ТП 904-02-24.86 Принципиальные схемы 5 вентиляции с утилизацией тепла или холода в теплообменниках типа ТКТ ТП 904-02-24.86 Схемы 1,2 автоматической защиты Т-У ТКТ от обледенения по температуре трубки ТП 904-02-24.86 Схемы 3,4 автоматической защиты Т-У ТКТ от обледенения по перепаду давления удаляемого утилизационного воздуха ТП 904-02-24.86 Графики и формулы для определения αв и α теплообменников типа ТКТ ТП 904-02-24.86 Аэродинамические характеристики теплообменников типа ТКТ ТП 904-02-24.86 Габаритные и установочные размеры теплообменников-утилизаторов типа ТП ТП 904-02-24.86 Принципиальные схемы 1,2 вентиляции и кондиционирования воздуха с утилизацией тепла или холода в теплообменниках типа ТП ТП 904-02-24.86 Схемы 1,2 предотвращения обмерзания теплообменников типа ТП и автоматического регулирования системы в зимний период ТП 904-02-24.86 Графики определения эффективности теплообмена и теплотехнические характеристики теплообменников типа ТП ТП 904-02-24.86 Графики определения эффективности теплообмена Е и массообмена Еа и зависимость давления насыщенных паров над льдом от температуры ТП 904-02-24.86 Зависимости для оценки опасности обмерзания. Номограмма для определения полусухой поверхности д ТП 904-02-24.86 Графики к примеру теплотехнического расчета теплообменников типа ТП ТП 904-02-24.86 Оценка экономической эффективности систем утилизации тепла вытяжного воздуха в общественных зданиях ТП 904-02-24.86 Бассейн со стенами из кирпича с крытыми ваннами 25х16 и детской. Вариант без утилизатора. План на отм. -5.400 и -4.200 систем ПР-1,ПР-2,РВ-1,РВ-2 ТП 904-02-24.86 Бассейн со стенами из кирпича с крытыми ваннами 25х16 и детской. Вариант без утилизатора. Разрез 4-4 ТП 904-02-24.86 Бассейн со стенами из кирпича с крытыми ваннами 25х16 и детской. Вариант без утилизатора. Разрез 3-3 ТП 904-02-24.86 Бассейн со стенами из кирпича с крытыми ваннами 25х16 и детской. Вариант с утилизатором ТКТ. План на отм. -5.400 систем ПР-1,ПР-2,ВУ-1,ВУ-2,РВ-1,РВ-2 ТП 904-02-24.86 Бассейн со стенами из кирпича с крытыми ваннами 25х16 и детской. Вариант с утилизатором ТКТ. Разрез 1-1 ТП 904-02-24.86 Бассейн со стенами из кирпича с крытыми ваннами 25х16 и детской. Вариант с утилизатором ТКТ. Разрез 2-2 ТП 904-02-24.86 Бассейн со стенами из кирпича с крытыми ваннами 25х16 и детской. Вариант с утилизатором ТКТ. Разрез 3-3 ТП 904-02-24.86 Городской клуб на 300 мест в полносборных конструкциях. Вариант без утилизатора. План на отм. -4.200 систем П1,П2,ВТ31 ТП 904-02-24.86 Городской клуб на 300 мест в полносборных конструкциях. Вариант без утилизатора. План на отм. 4.200 систем П1,ВУ1 ТП 904-02-24.86 Городской клуб на 300 мест в полносборных конструкциях. Вариант с утилизатором ТКТ. Разрез 1-1,2-2,3-3 ТП 904-02-24.86 Городской клуб на 300 мест в полносборных конструкциях. Вариант с утилизатором ТП. План на отм. -4.200 систем П1,ВУ1 ТП 904-02-24.86 Городской клуб на 300 мест в полносборных конструкциях. Вариант с утилизатором ТП. Разрезы 1-1,2-2,3-3 ТП 904-02-24.86 Городской клуб на 300 мест в полносборных конструкциях ТП 904-02-24.86 Банно-оздоровительный комплекс на 100 мест. Вариант без утилизатора. План на отм. 3.300 систем П3,П4,В2 ТП 904-02-24.86 Банно-оздоровительный комплекс на 100 мест. Вариант без утилизатора. Разрез 1-1 ТП 904-02-24.86 Банно-оздоровительный комплекс на 100 мест. Вариант с утилизатором ТКТ. План на отм. 3.300 систем П3,П4,В2 ТП 904-02-24.86 Банно-оздоровительный комплекс на 100 мест. Вариант с утилизатором ТКТ. Разрез 1-1 ТП 904-02-24.86 Банно-оздоровительный комплекс на 100 мест. Вариант с утилизатором ТП. План на отм. 3.300 систем П3,П4,В2 ТП 904-02-24.86 Банно-оздоровительный комплекс на 100 мест. Вариант с утилизатором ТП. Разрез 1-1 ТП 904-02-24.86 Банно-оздоровительный комплекс на 100 мест. Вариант без утилизатора. План на отм. 6.600 систем П-1,П-2,В-1. Разрез 1-1 ТП 904-02-24.86 Банно-оздоровительный комплекс на 100 мест. Вариант с утилизатором ТКТ. План на отм. 6.600 систем П1,П2,В1 ТП 904-02-24.86 Банно-оздоровительный комплекс на 100 мест. Вариант с утилизатором ТКТ. Разрез 1-1,2-2 ТП 904-02-24.86 Банно-оздоровительный комплекс на 100 мест. Вариант с утилизатором ТП. План на отм. 6.600 систем П1,П2,В1 ТП 904-02-24.86 Банно-оздоровительный комплекс на 100 мест. Вариант с утилизатором ТП. Разрез 1-1,2-2 ТП 904-02-24.86 Кинотеатр на 500 мест с фойе и киноплощадкой на 800 мест. Вариант без утилизатора. План на отм. -4.000;-2.450 системы П1 ТП 904-02-24.86 Кинотеатр на 500 мест с фойе и киноплощадкой на 800 мест. Разрез 1-1 для варианта без утилизатора. Разрез 3-3 для варианта с утилизатором ТКТ ТП 904-02-24.86 Кинотеатр на 500 мест с фойе и киноплощадкой на 800 мест. Вариант с утилизатором ТКТ. План на отм. -4.007 и -2.450 систем П-1,ВУ-1 ТП 904-02-24.86 Кинотеатр на 500 мест с фойе и киноплощадкой на 800 мест. Вариант с утилизатором ТКТ. Разрез 2-2 ТП 904-02-24.86 Кинотеатр на 500 мест с фойе и киноплощадкой на 800 мест. Вариант с утилизатором ТКТ. Разрез 1-1 ТП 904-02-24.86 Бассейн (стены кирпичные) с крытой ванной 25х16. Вариант без утилизатора. План на отм. 8.100 систем П1,РВ1 ТП 904-02-24.86 Бассейн (стены кирпичные) с крытой ванной 25х16. Вариант без утилизатора. Разрез 1-1 ТП 904-02-24.86 Бассейн (стены кирпичные) с крытой ванной 25х16. Вариант без утилизатора. План на отм. 8.100 систем П1,РВ1 ТП 904-02-24.86 Бассейн (стены кирпичные) с крытой ванной 25х16. Вариант без утилизатора. Разрез 1-1,2-2 ТП 904-02-24.86 Бассейн (стены кирпичные) с крытой ванной 25х16. Вариант с утилизатором ТП. План на отм. 8.100 систем П1,РВ1 ТП 904-02-24.86 Бассейн (стены кирпичные) с крытой ванной 25х16. Вариант с утилизатором ТП. Разрез 1-1,2-2 ТП 904-02-24.86 Бассейн (стены кирпичные) с крытой ванной 25х16 ТП 904-02-24.86 Двухзальный кинотеатр со стенами из кирпича на 800 и 300 мест. Вариант без утилизатора. План на отм -5.200 систем К-1 ТП 904-02-24.86 Двухзальный кинотеатр со стенами из кирпича на 800 и 300 мест. Вариант без утилизатора. Разрез 1-1 ТП 904-02-24.86 Двухзальный кинотеатр со стенами из кирпича на 800 и 300 мест. Вариант с утилизатором ТКТ. План на отм. -5.200 систем К-1,ВУ-1 ТП 904-02-24.86 Двухзальный кинотеатр со стенами из кирпича на 800 и 300 мест. Вариант с утилизатором ТКТ. Разрезы 1-1,2-2 ТП 904-02-24.86 Двухзальный кинотеатр со стенами из кирпича на 800 и 300 мест. Вариант с утилизатором ТП. План на отм. -5.200 систем К-1,ВУ-1 ТП 904-02-24.86 Двухзальный кинотеатр со стенами из кирпича на 800 и 300 мест. Вариант с утилизатором ТП. Разрез 1-1,2-2 ТП 904-02-24.86 Двухзальный кинотеатр со стенами из кирпича на 800 и 300 мест ТП 904-02-24.86 Комплексное предприятие общественного питания на 150 мест (блок). Вариант без утилизатора. План на отм. -3.600 системы П-1 ТП 904-02-24.86 Комплексное предприятие общественного питания на 150 мест (блок). Вариант с утилизаторам ТКТ. План на отм. -3.600 системы П-1 ТП 904-02-24.86 Комплексное предприятие общественного питания на 150 мест (блок 8). Вариант с утилизаторам ТКТ. Разрезы 1-1,2-2 ТП 904-02-24.86 Комплексное предприятие общественного питания на 150 мест (блок 8). Вариант с утилизаторам ТП. Разрезы 1-1,2-2 ТП 904-02-24.86 Комплексное предприятие общественного питания на 150 мест (блок 8). Вариант с утилизаторам ТП. План на отм. 3.600 системы П-1 ТП 904-02-24.86 Универмаг торговой площадью 1650 кв метров. Вариант без утилизатора. План на отм 7.200 систем П-1,П-2,В-1,В-2 ТП 904-02-24.86 Универмаг торговой площадью 1650 кв метров. Вариант без утилизатора. Разрезы 1-1,2-2 ТП 904-02-24.86 Универмаг торговой площадью 1650 кв метров. Вариант с утилизатором ТКТ. План на отм. 7.200 систем П-1,В-1 ТП 904-02-24.86 Универмаг торговой площадью 1650 кв метров. Вариант с утилизатором ТКТ. Разрезы 1-1,2-2 ТП 904-02-24.86 Пансионат-пионерский лагерь "Москвич" на 1120 мест. Общественный центр. Вариант без утилизатора. План на отм 3.645 систем П1,РВ-1 ТП 904-02-24.86 Пансионат-пионерский лагерь "Москвич" на 1120 мест. Общественный центр. Вариант без утилизатора. План на отм 3.645 систем П2,РВ-2 ТП 904-02-24.86 Пансионат-пионерский лагерь "Москвич" на 1120 мест. Общественный центр. Вариант без утилизатора. Разрезы 1-1,2-2 ТП 904-02-24.86 Пансионат-пионерский лагерь "Москвич" на 1120 мест. Общественный центр. Вариант с утилизатором ТКТ. План на отм. 3.645 систем П1,РВ1 ТП 904-02-24.86 Пансионат-пионерский лагерь "Москвич" на 1120 мест. Общественный центр. Вариант с утилизатором ТКТ. План на отм. 3.645 систем П2,РВ2 ТП 904-02-24.86 Пансионат-пионерский лагерь "Москвич" на 1120 мест. Общественный центр. Вариант с утилизатором ТКТ. Разрез 1-1 ТП 904-02-24.86 Пансионат-пионерский лагерь "Москвич" на 1120 мест. Общественный центр. Вариант с утилизатором ТКТ. Разрез 2-2 ТП 904-02-24.86 Пансионат-пионерский лагерь "Москвич" на 1120 мест. Общественный центр. Вариант с утилизатором ТКТ. Разрез 3-3 |
| Разработан: | ЦНИИЭП иженерного оборудования |
| Утверждён: | 03.03.1986 Госгражданстрой (Gosgrazhdanstroy 70) |
| Расположен в: |



































































































