| ||||||||||||||||||||||||||||||
Скачать Серия 1.466-1/75 Выпуск VII-1. Стальные конструкции фонарей. ЧертежиДата актуализации: 10.08.2017
|
| Обозначение: | Серия 1.466-1/75 |
| Обозначение англ: | Series 1.466-1/75 |
| Статус: | не действует |
| Название рус.: | Выпуск VII-1. Стальные конструкции фонарей. Чертежи |
| Дата добавления в базу: | 01.09.2013 |
| Дата актуализации: | 05.05.2017 |
| Дата введения: | 01.09.1978 |
| Дата окончания срока действия: | 01.04.1988 |
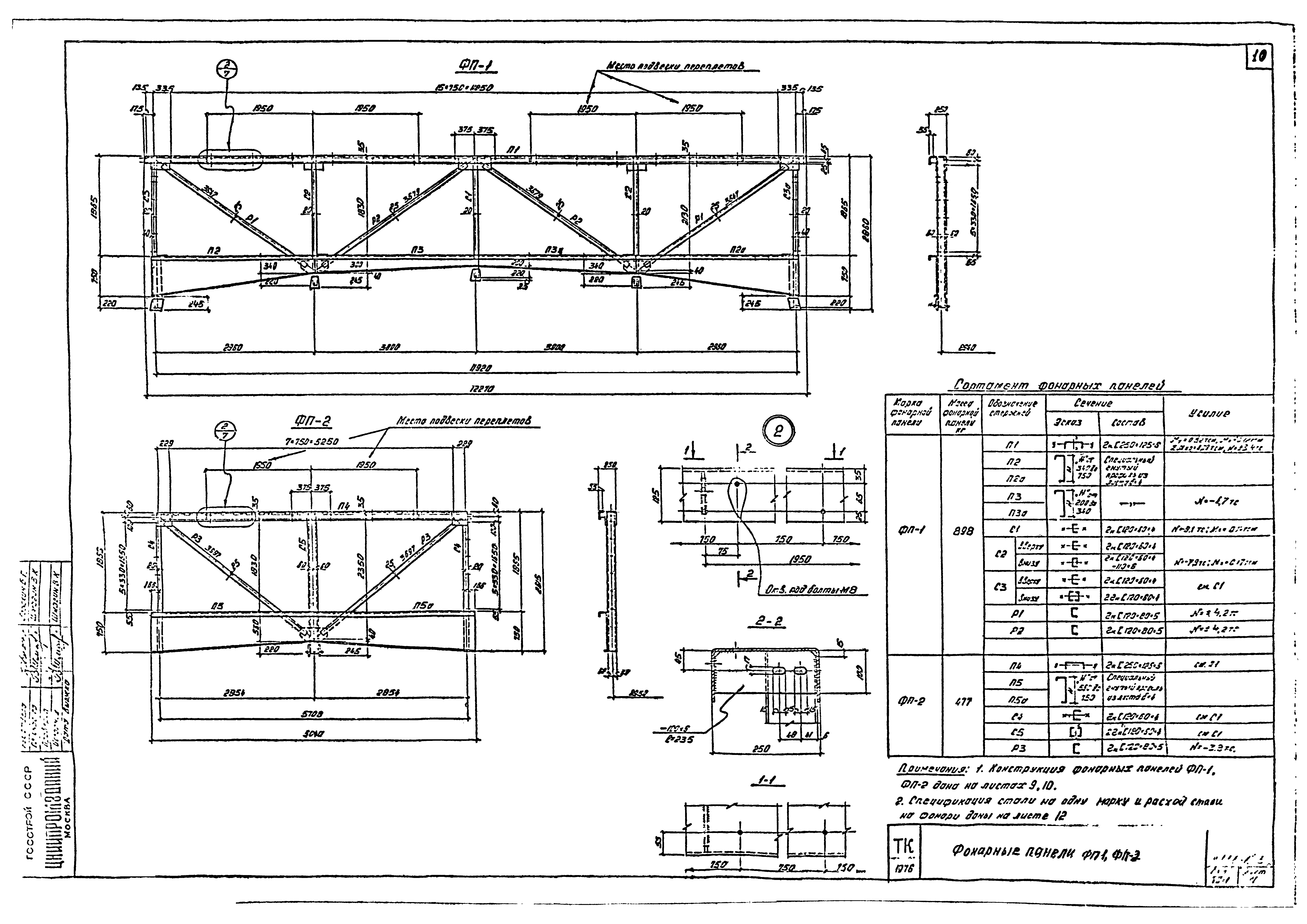
| Оглавление: | 1.466-1/75 Титульный лист 1.466-1/75 Содержание. Пояснительная записка 1.466-1/75 Пояснительная записка 1.466-1/75 Нагрузки 1.466-1/75 Геометрические схемы оболочек. Расположение накладных деталей НД1-НД3 на оболочке 18х30 м 1.466-1/75 Расположение накладных деталей НД1-НД3 на оболочке 18х24 м. Узлы 1.466-1/75 Накладные детали НД1-НД3 1.466-1/75 Монтажные планы фонаря. Узел 1. Таблица отправочных элементов 1.466-1/75 Деталь плана по связям. Планы расположения плит и настила. Узлы 1.466-1/75 Фонарные панели и фермы ФП-1а,ФП-2а,ФФ-1,ФФ-2,ФФ-1с,ФФ-2а 1.466-1/75 Конструкция фонарной панели ФП-1 1.466-1/75 Конструкция фонарной панели ФП-2 1.466-1/75 Конструкция фонарных ферм ФФ-1,ФФ-2 1.466-1/75 Спецификация и расход стали на фонари 1.466-1/75 Зенитный фонарь 3Ф-1 марки ОС-1,М-1,М-2,М-3,М-4,С-1,П-1,У-1 |
| Разработан: | ЦНИИСК им. В.А. Кучеренко ЦНИИпромзданий НИИЖБ НИИСФ Проектный институт № 1 Госстроя СССР |
| Утверждён: | 10.05.1978 Госстрой СССР (Государственный комитет Совета Министров СССР по делам строительства) (USSR Gosstroy 81) |
| Расположен в: | |
| Чем заменён: |
















