Информационная система
«Ёшкин Кот»

Скачать базу одним архивом
Скачать обновления
История создания базы
Карта сайта

Скачать Типовой проект 902-1-87.84 Альбом VI. Подземная часть. Изделия

Дата актуализации: 10.08.2017

Типовой проект 902-1-87.84

Альбом VI. Подземная часть. Изделия

Обозначение: Типовой проект 902-1-87.84
Обозначение англ: 902-1-87.84
Статус:действует
Название рус.:Альбом VI. Подземная часть. Изделия
Дата добавления в базу:01.09.2013
Дата актуализации:05.05.2017
Дата введения:18.04.1984
Оглавление:ТП 902-1-87.84-КЖИ-ДО Содержание листов выпуска
ТП 902-1-87.84-КЖИ-ТТ1 Технические требования к изготовлению сборных железобетонных изделий
ТП 902-1-87.84-КЖИ-ТТ2 Технические требования к изготовлению арматурных и закладных деталей
ТП 902-1-87.84-КЖИ-ПГ78.20.У4Ш-01 Панель перегородочная ПГ78.20.У4Ш-01
ТП 902-1-87.84-КЖИ-ПГ78.20.У4Ш-1-01 Панель перегородочная ПГ78.20.У4Ш-1-01
ТП 902-1-87.84-КЖИ-ПГ78.20.У4Ш-01 СБ Панель перегородочная ПГ78.20.У4Ш-01. Сборочный чертеж
ТП 902-1-87.84-КЖИ-ПГ78.20.У4Ш-1-01 СБ Панель перегородочная ПГ78.20.У4Ш-1-01. Сборочный чертеж
ТП 902-1-87.84-КЖИ-ПГ78.20.Б1Ш-01 Панель перегородочная ПГ78.20.Б1Ш-01
ТП 902-1-87.84-КЖИ-ПГ78.20.Б1Ш-01 СБ Панель перегородочная ПГ78.20.Б1Ш-01. Сборочный чертеж
ТП 902-1-87.84-КЖИ-ПГ78.20.Б1Ш-02 СБ Панель перегородочная ПГ78.20.Б1Ш-02. Сборочный чертеж
ТП 902-1-87.84-КЖИ-ПГ78.20.Б1Ш-03 СБ Панель перегородочная ПГ78.20.Б1Ш-03. Сборочный чертеж
ТП 902-1-87.84-КЖИ-ПГ78.20.Б1Ш-04 СБ Панель перегородочная ПГ78.20.Б1Ш-04. Сборочный чертеж
ТП 902-1-87.84-КЖИ-ВМС1 Ведомость расхода стали
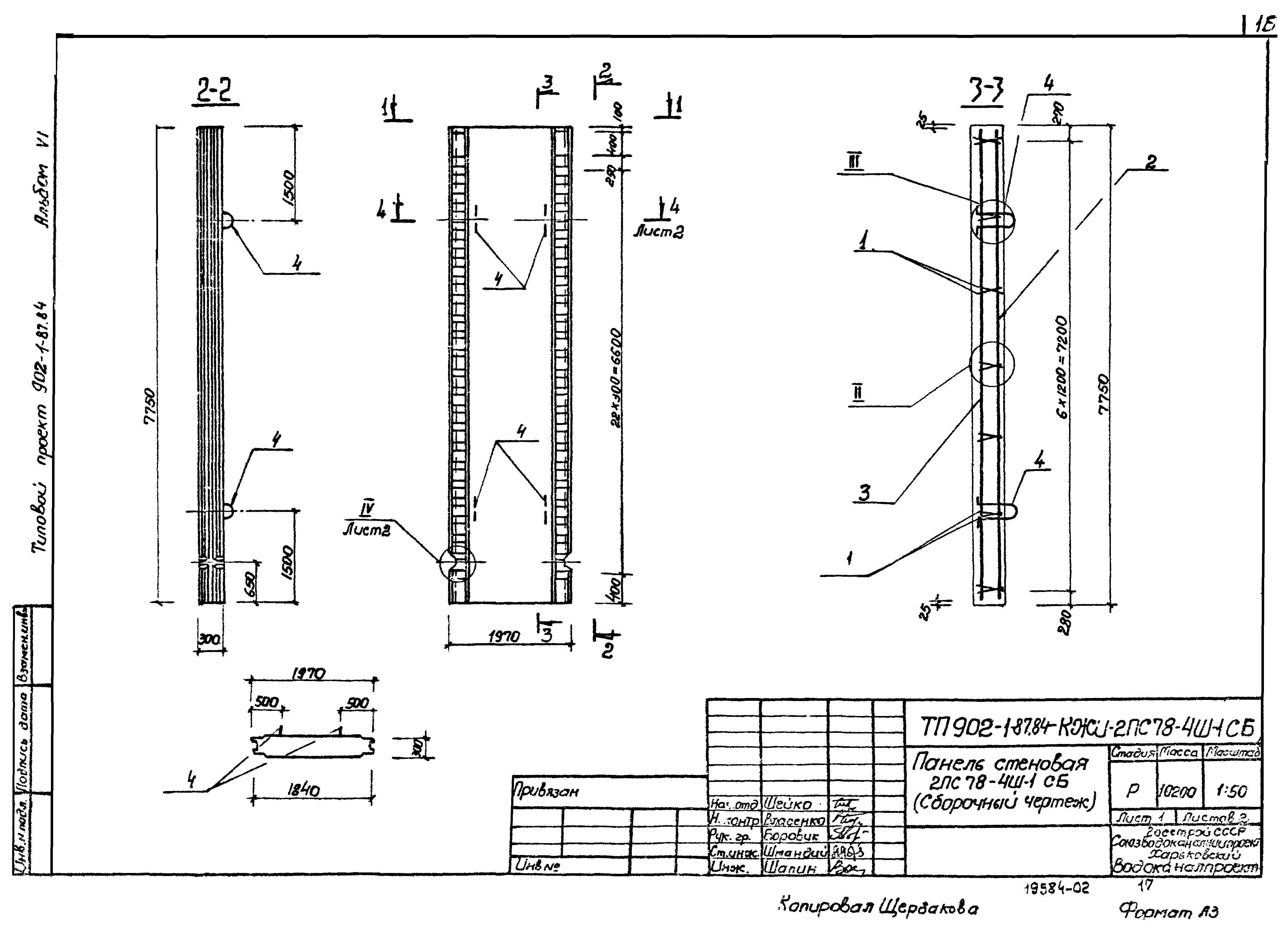
ТП 902-1-87.84-КЖИ-2ПС78-4Ш-1 Панель стеновая 2ПС78-4Ш-1
ТП 902-1-87.84-КЖИ-ВМС2 Ведомость расхода стали
ТП 902-1-87.84-КЖИ-2ПС78-4Ш-1 СБ Панель стеновая 2ПС78-4Ш-1. Сборочный чертеж
ТП 902-1-87.84-КЖИ-2ПС78-4Ш-1-01 Панель стеновая ПС(2ПС78-4Ш-1-01÷2ПС78-4Ш-1-18)
ТП 902-1-87.84-КЖИ-ВМС3 Ведомость расхода стали
ТП 902-1-87.84-КЖИ-2ПС78-4Ш-1-01 СБ Панель стеновая ПС(2ПС78-4Ш-1-01÷2ПС78-4Ш-1-02). Сборочный чертеж
ТП 902-1-87.84-КЖИ-2ПС78-4Ш-1-03 СБ Панель стеновая ПС(2ПС78-4Ш-1-03÷2ПС78-4Ш-1-04). Сборочный чертеж
ТП 902-1-87.84-КЖИ-2ПС78-4Ш-1-05 СБ Панель стеновая ПС(2ПС78-4Ш-1-05÷2ПС78-4Ш-1-06). Сборочный чертеж
ТП 902-1-87.84-КЖИ-2ПС78-4Ш-1-07 СБ Панель стеновая ПС(2ПС78-4Ш-1-07÷2ПС78-4Ш-1-08 2АС78-4Ш-1-09). Сборочный чертеж
ТП 902-1-87.84-КЖИ-2ПС78-4Ш-1-10 СБ Панель стеновая ПС(2ПС78-4Ш-1-10÷2ПС78-4Ш-1-11). Сборочный чертеж
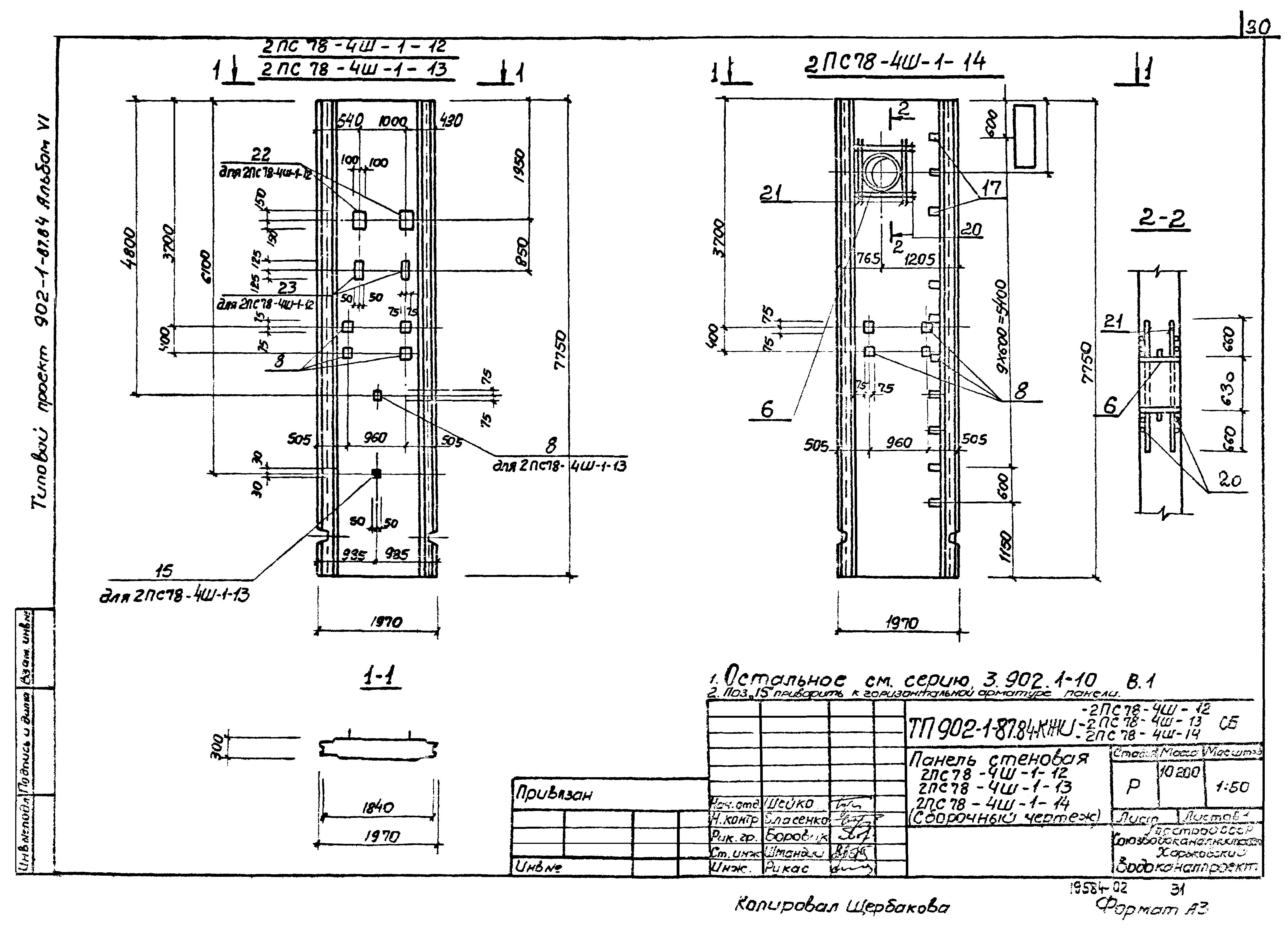
ТП 902-1-87.84-КЖИ-2ПС78-4Ш-1-12 СБ Панель стеновая ПС(2ПС78-4Ш-1-12÷2ПС78-4Ш-1-14). Сборочный чертеж
ТП 902-1-87.84-КЖИ-2ПС78-4Ш-1-15 СБ Панель стеновая ПС(2ПС78-4Ш-1-15÷2ПС78-4Ш-1-16). Сборочный чертеж
ТП 902-1-87.84-КЖИ-2ПС78-4Ш-1-17 СБ Панель стеновая ПС(2ПС78-4Ш-1-17÷2ПС78-4Ш-1-18). Сборочный чертеж
ТП 902-1-87.84-КЖИ-КР3 Каркас плоский КР3
ТП 902-1-87.84-КЖИ-КР4 Каркас плоский КР4
ТП 902-1-87.84-КЖИ-КР5 Каркас плоский КР5
ТП 902-1-87.84-КЖИ-КР6 Каркас плоский КР6
ТП 902-1-87.84-КЖИ-КР7 Каркас плоский КР7
ТП 902-1-87.84-КЖИ-КР8 Каркас плоский КР8
ТП 902-1-87.84-КЖИ-КР9 Каркас плоский КР9
ТП 902-1-87.84-КЖИ-КР10 Каркас плоский КР10
ТП 902-1-87.84-КЖИ-КР11 Каркас плоский КР11
ТП 902-1-87.84-КЖИ-С3 Сетка арматурная С3
ТП 902-1-87.84-КЖИ-КР12 Каркас плоский КР12
ТП 902-1-87.84-КЖИ-КР13 Каркас плоский КР13
ТП 902-1-87.84-КЖИ-КР14 Каркас плоский КР14
ТП 902-1-87.84-КЖИ-МН3 Изделие закладное МН3
ТП 902-1-87.84-КЖИ-С1 Сетка арматурная С1
ТП 902-1-87.84-КЖИ-С2 Сетка арматурная С2
ТП 902-1-87.84-КЖИ-С4 Сетка арматурная С(С4,С5)
ТП 902-1-87.84-КЖИ-С4 СБ Сетка арматурная С(С4,С5). Сборочный чертеж
ТП 902-1-87.84-КЖИ-КР1 Каркас плоский КР1
ТП 902-1-87.84-КЖИ-КР2 Каркас плоский КР2
ТП 902-1-87.84-КЖИ-МС1 Изделие соединительное МС(МС1,МС2,МС3)
ТП 902-1-87.84-КЖИ-МС1 СБ Изделие соединительное МС(МС1,МС2,МС3). Сборочный чертеж
ТП 902-1-87.84-КЖИ-МН4 Изделие закладное МН4
ТП 902-1-87.84-КЖИ-МС4 Изделие соединительное МС4
ТП 902-1-87.84-КЖИ-МС5 Изделие соединительное МС5
ТП 902-1-87.84-КЖИ-МС10 Изделие соединительное МС10
ТП 902-1-87.84-КЖИ-МН1 Изделие закладное МН1
ТП 902-1-87.84-КЖИ-МН2 Изделие закладное МН2
ТП 902-1-87.84-КЖИ-МС6 Изделие соединительное МС(МС6,МС7,МС8,МС9)
ТП 902-1-87.84-КЖИ-МС6 СБ Изделие соединительное МС(МС6,МС7,МС8,МС9). Сборочный чертеж
Разработан: Харьковский Водоканалпроект
Утверждён:05.12.1983 СоюзводоканалНИИпроект (SoyuzvodokanalNIIproject 75)
Расположен в:Техническая документация Строительство Справочные документы Типовые строительные конструкции, изделия и узлы Общероссийский строительный каталог Промышленные предприятия, здания и сооружения Здания и сооружения санитарно-технические Канализация Станции насосные Станции насосные для перекачки бытовых сточных вод
Типовой проект 902-1-87.84Типовой проект 902-1-87.84Типовой проект 902-1-87.84Типовой проект 902-1-87.84Типовой проект 902-1-87.84Типовой проект 902-1-87.84Типовой проект 902-1-87.84Типовой проект 902-1-87.84Типовой проект 902-1-87.84Типовой проект 902-1-87.84Типовой проект 902-1-87.84Типовой проект 902-1-87.84Типовой проект 902-1-87.84Типовой проект 902-1-87.84Типовой проект 902-1-87.84Типовой проект 902-1-87.84Типовой проект 902-1-87.84Типовой проект 902-1-87.84Типовой проект 902-1-87.84Типовой проект 902-1-87.84Типовой проект 902-1-87.84Типовой проект 902-1-87.84Типовой проект 902-1-87.84Типовой проект 902-1-87.84Типовой проект 902-1-87.84Типовой проект 902-1-87.84Типовой проект 902-1-87.84Типовой проект 902-1-87.84Типовой проект 902-1-87.84Типовой проект 902-1-87.84Типовой проект 902-1-87.84Типовой проект 902-1-87.84Типовой проект 902-1-87.84Типовой проект 902-1-87.84Типовой проект 902-1-87.84Типовой проект 902-1-87.84Типовой проект 902-1-87.84Типовой проект 902-1-87.84Типовой проект 902-1-87.84Типовой проект 902-1-87.84Типовой проект 902-1-87.84Типовой проект 902-1-87.84Типовой проект 902-1-87.84Типовой проект 902-1-87.84Типовой проект 902-1-87.84Типовой проект 902-1-87.84Типовой проект 902-1-87.84Типовой проект 902-1-87.84Типовой проект 902-1-87.84

© 2013 Ёшкин Кот :-) Карта сайта