Информационная система
«Ёшкин Кот»

Скачать базу одним архивом
Скачать обновления
История создания базы
Карта сайта

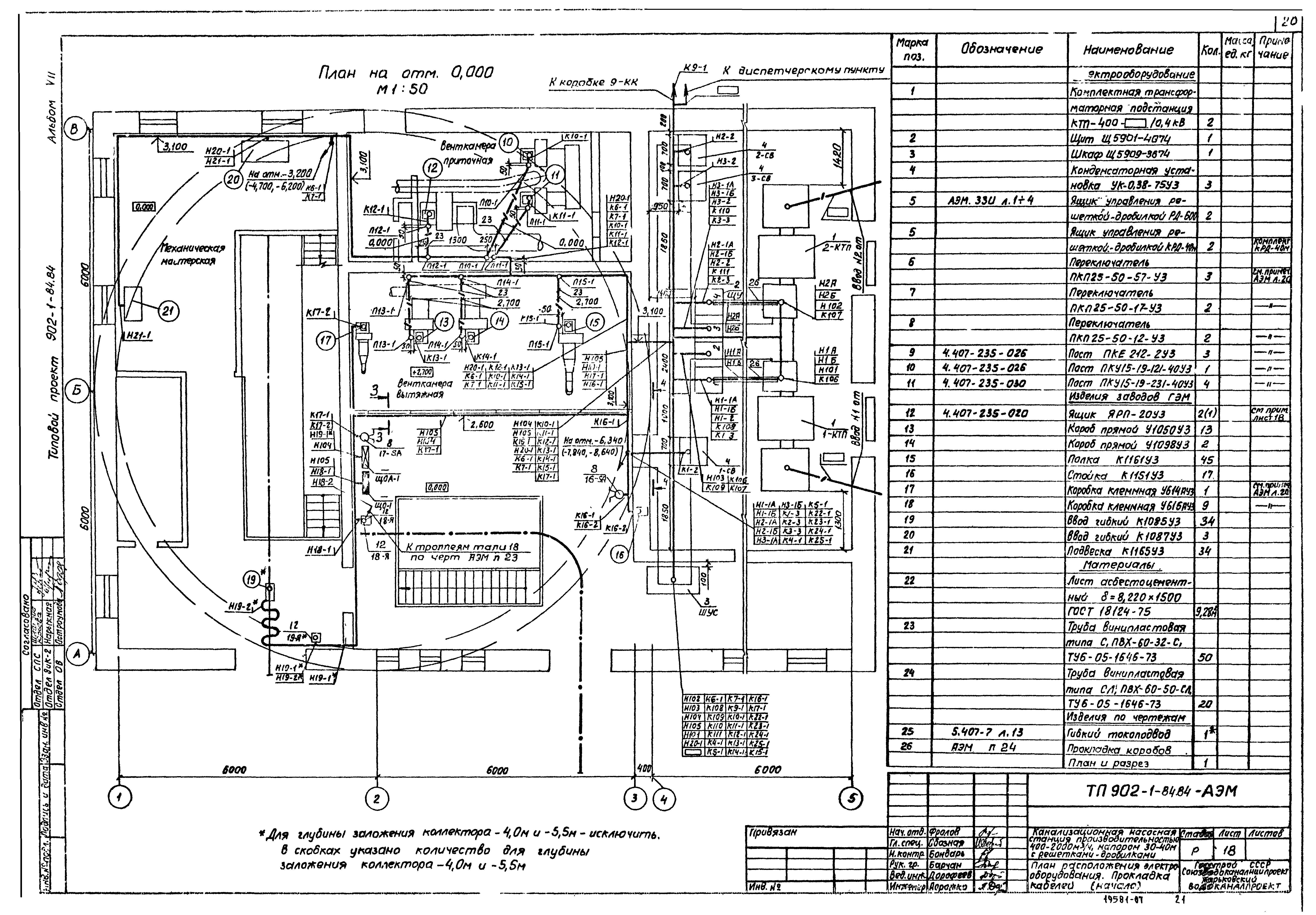
Скачать Типовой проект 902-1-85.84 Альбом VII. Электрооборудование. Автоматизация и технологический контроль (из ТП 902-1-84.84)

Дата актуализации: 10.08.2017

Типовой проект 902-1-85.84

Альбом VII. Электрооборудование. Автоматизация и технологический контроль (из ТП 902-1-84.84)

Обозначение: Типовой проект 902-1-85.84
Обозначение англ: 902-1-85.84
Статус:действует
Название рус.:Альбом VII. Электрооборудование. Автоматизация и технологический контроль (из ТП 902-1-84.84)
Дата добавления в базу:01.09.2013
Дата актуализации:05.05.2017
Дата введения:18.04.1984
Разработан: Харьковский Водоканалпроект
Утверждён:05.12.1983 СоюзводоканалНИИпроект (SoyuzvodokanalNIIproject 75)
Расположен в:Техническая документация Строительство Справочные документы Типовые строительные конструкции, изделия и узлы Общероссийский строительный каталог Промышленные предприятия, здания и сооружения Здания и сооружения санитарно-технические Канализация Станции насосные Станции насосные для перекачки бытовых сточных вод
Типовой проект 902-1-85.84Типовой проект 902-1-85.84Типовой проект 902-1-85.84Типовой проект 902-1-85.84Типовой проект 902-1-85.84Типовой проект 902-1-85.84Типовой проект 902-1-85.84Типовой проект 902-1-85.84Типовой проект 902-1-85.84Типовой проект 902-1-85.84Типовой проект 902-1-85.84Типовой проект 902-1-85.84Типовой проект 902-1-85.84Типовой проект 902-1-85.84Типовой проект 902-1-85.84Типовой проект 902-1-85.84Типовой проект 902-1-85.84Типовой проект 902-1-85.84Типовой проект 902-1-85.84Типовой проект 902-1-85.84Типовой проект 902-1-85.84Типовой проект 902-1-85.84Типовой проект 902-1-85.84Типовой проект 902-1-85.84Типовой проект 902-1-85.84Типовой проект 902-1-85.84Типовой проект 902-1-85.84Типовой проект 902-1-85.84Типовой проект 902-1-85.84Типовой проект 902-1-85.84Типовой проект 902-1-85.84Типовой проект 902-1-85.84Типовой проект 902-1-85.84Типовой проект 902-1-85.84Типовой проект 902-1-85.84Типовой проект 902-1-85.84Типовой проект 902-1-85.84Типовой проект 902-1-85.84

© 2013 Ёшкин Кот :-) Карта сайта