Информационная система
«Ёшкин Кот»

Скачать базу одним архивом
Скачать обновления
История создания базы
Карта сайта

Скачать Типовой проект 902-1-80.83 Альбом III. Архитектурно-строительные решения. Надземная часть. Общие чертежи (из ТП 902-1-78.83)

Дата актуализации: 10.08.2017

Типовой проект 902-1-80.83

Альбом III. Архитектурно-строительные решения. Надземная часть. Общие чертежи (из ТП 902-1-78.83)

Обозначение: Типовой проект 902-1-80.83
Обозначение англ: 902-1-80.83
Статус:действует
Название рус.:Альбом III. Архитектурно-строительные решения. Надземная часть. Общие чертежи (из ТП 902-1-78.83)
Дата добавления в базу:01.09.2013
Дата актуализации:05.05.2017
Дата введения:06.02.1984
Оглавление:ТП 902-1-78.83 Содержание
ТП 902-1-78.83-АР Основной комплект АР
ТП 902-1-78.83-АР-1 Общие данные
ТП 902-1-78.83-АР-2 План на отм. 0.000. Разрезы 1-1;2-2
ТП 902-1-78.83-АР-3 Фасады. Ведомость отделки помещений. Схемы расположения элементов заполнения оконных проемов
ТП 902-1-78.83-АР-4 План кровли. Планы полов. Экспликация полов
ТП 902-1-78.83-АР-5 План вентиляционных отверстий и раскладки закладных для крепления электрокабеля
ТП 902-1-78.83-АР-6 Детали 1-7
ТП 902-1-78.83-АР-7 Детали 8-15
ТП 902-1-78.83-КЖ Основной комплект КЖ
ТП 902-1-78.83-КЖ-1 Общие данные
ТП 902-1-78.83-КЖ-2 Схема расположения плит покрытия и перекрытия на отм. 2.400
ТП 902-1-78.83-КЖ-3 Схема расположения плит перекрытия на отм. 0.000
ТП 902-1-78.83-КЖ-4 Перекрытие на отм. -0.250 РКм1. Общий вид
ТП 902-1-78.83-КЖ-5 Балки БМ1-БМ5,БОМ1-БОМ3. Общие виды и схемы армирования (начало)
ТП 902-1-78.83-КЖ-6 Балки БМ1-БМ5,БОМ1-БОМ3. Общие виды и схемы армирования (продолжение)
ТП 902-1-78.83-КЖ-7 Балки БМ1-БМ5,БОМ1-БОМ3. Общие виды и схемы армирования (окончание)
ТП 902-1-78.83-КЖ-8 Схема расположения фундаментов под оборудование
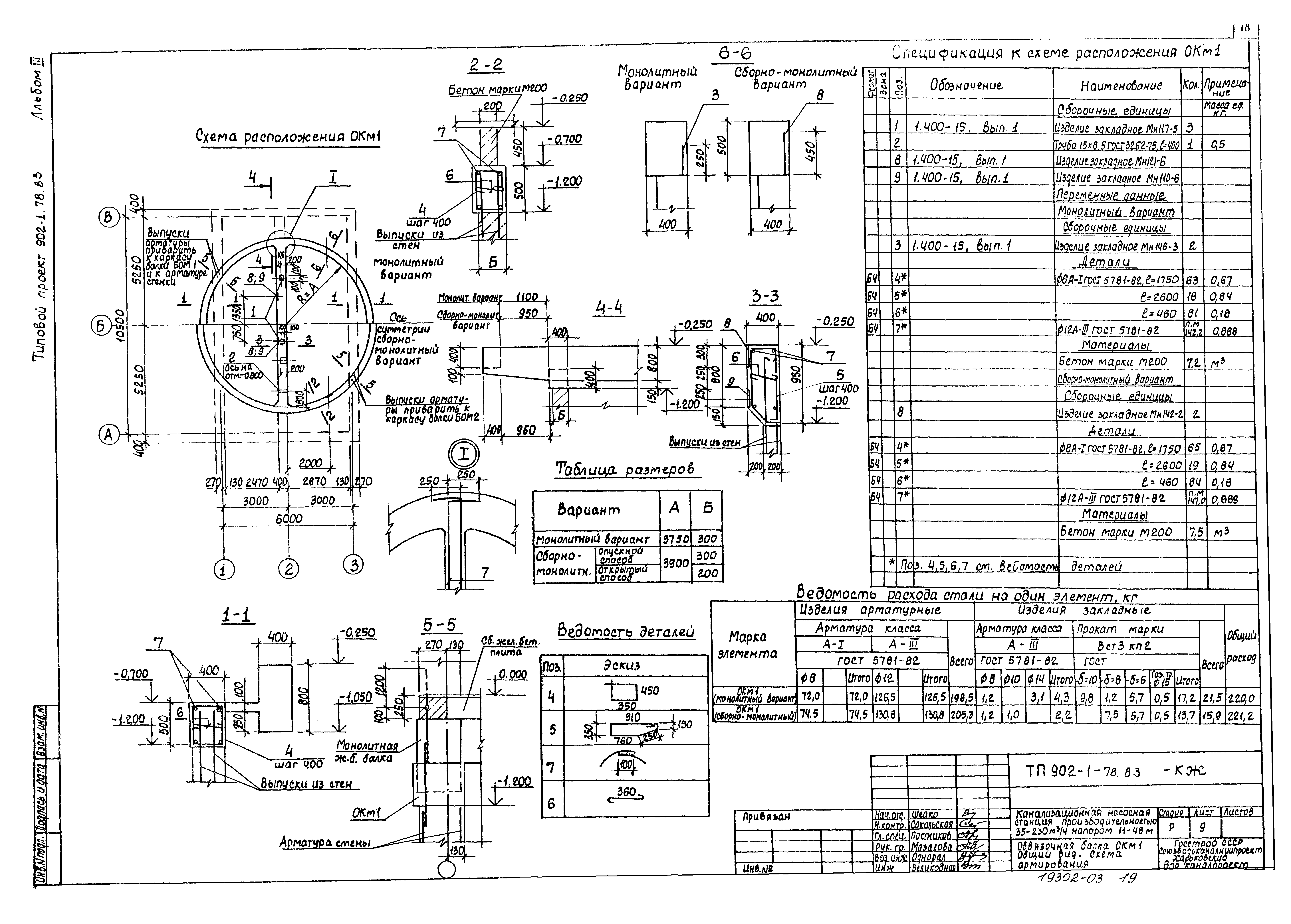
ТП 902-1-78.83-КЖ-9 Обвязочная балка ОКМ1. Общий вид и схема армирования
ТП 902-1-78.83-КЖ-10 Детали гидроизоляции. Установка дренажного приямка
ТП 902-1-78.83-КМ Основной комплект КМ
ТП 902-1-78.83-КМ-1 Общие данные
ТП 902-1-78.83-КМ-2 Схема расположения монорельса в подземной части
ТП 902-1-78.83-КМ-3 Схема расположения путей монорельса
ТП 902-1-78.83-КЖИ Основной комплект КЖИ
ТП 902-1-78.83-КЖИ-ДО Опись документов
ТП 902-1-78.83-КЖИ-То Техническое описание
ТП 902-1-78.83-КЖИ-КР1 Каркас плоский КР(КР1-КР5)
ТП 902-1-78.83-КЖИ-КР1СБ Каркас плоский КР(КР1-КР5). Сборочный чертеж
ТП 902-1-78.83-КЖИ-КР6 Каркас плоский КР6
ТП 902-1-78.83-КЖИ-С1 Сетка арматурная С(С1,С2)
ТП 902-1-78.83-КЖИ-С1 СБ Сетка арматурная С(С1,С2). Сборочный чертеж
ТП 902-1-78.83-КЖИ-С3 Сетка арматурная С(С3-С5)
ТП 902-1-78.83-КЖИ-С3 СБ Сетка арматурная С(С3-С5). Сборочный чертеж
ТП 902-1-78.83-КЖИ-П1 Плиты П1,П2,П4,П5
ТП 902-1-78.83-КЖИ-П6 Плиты П3,П6
ТП 902-1-78.83-КЖИ-П13-а Перемычка ПР13-а
ТП 902-1-78.83-КЖИ-МН1 Изделие закладное МН(МН1-МН3)
ТП 902-1-78.83-КЖИ-МН4 Изделие закладное МН4
ТП 902-1-78.83-КЖИ-МН5 Изделие закладное МН(МН5-МН7)
ТП 902-1-78.83-КЖИ-ОП2 Опора ОП2
Разработан: Харьковский Водоканалпроект
Утверждён:27.10.1983 СоюзводоканалНИИпроект (SoyuzvodokanalNIIproject 59)
Расположен в:Техническая документация Строительство Справочные документы Типовые строительные конструкции, изделия и узлы Общероссийский строительный каталог Промышленные предприятия, здания и сооружения Здания и сооружения санитарно-технические Канализация Станции насосные Станции насосные для перекачки бытовых сточных вод
Типовой проект 902-1-80.83Типовой проект 902-1-80.83Типовой проект 902-1-80.83Типовой проект 902-1-80.83Типовой проект 902-1-80.83Типовой проект 902-1-80.83Типовой проект 902-1-80.83Типовой проект 902-1-80.83Типовой проект 902-1-80.83Типовой проект 902-1-80.83Типовой проект 902-1-80.83Типовой проект 902-1-80.83Типовой проект 902-1-80.83Типовой проект 902-1-80.83Типовой проект 902-1-80.83Типовой проект 902-1-80.83Типовой проект 902-1-80.83Типовой проект 902-1-80.83Типовой проект 902-1-80.83Типовой проект 902-1-80.83Типовой проект 902-1-80.83Типовой проект 902-1-80.83Типовой проект 902-1-80.83Типовой проект 902-1-80.83Типовой проект 902-1-80.83Типовой проект 902-1-80.83Типовой проект 902-1-80.83Типовой проект 902-1-80.83Типовой проект 902-1-80.83

© 2013 Ёшкин Кот :-) Карта сайта