Информационная система
«Ёшкин Кот»

Скачать базу одним архивом
Скачать обновления
История создания базы
Карта сайта

Скачать Типовой проект 705-1-207.86 Альбом I. Пояснительная записка. Технология производства. Архитектурные решения. Конструкции железобетонные. Конструкции металлические. Отопление и вентиляция. Силовое электрооборудование. Автоматизация технологии производства

Дата актуализации: 10.08.2017

Типовой проект 705-1-207.86

Альбом I. Пояснительная записка. Технология производства. Архитектурные решения. Конструкции железобетонные. Конструкции металлические. Отопление и вентиляция. Силовое электрооборудование. Автоматизация технологии производства

Обозначение: Типовой проект 705-1-207.86
Обозначение англ: 705-1-207.86
Статус:не определен законодательством
Название рус.:Альбом I. Пояснительная записка. Технология производства. Архитектурные решения. Конструкции железобетонные. Конструкции металлические. Отопление и вентиляция. Силовое электрооборудование. Автоматизация технологии производства
Дата добавления в базу:01.09.2013
Дата актуализации:05.05.2017
Дата введения:02.12.1986
Оглавление:ТП 705-1-207.86 Содержание альбома
ТП 705-1-207.86-ПЗ Пояснительная записка
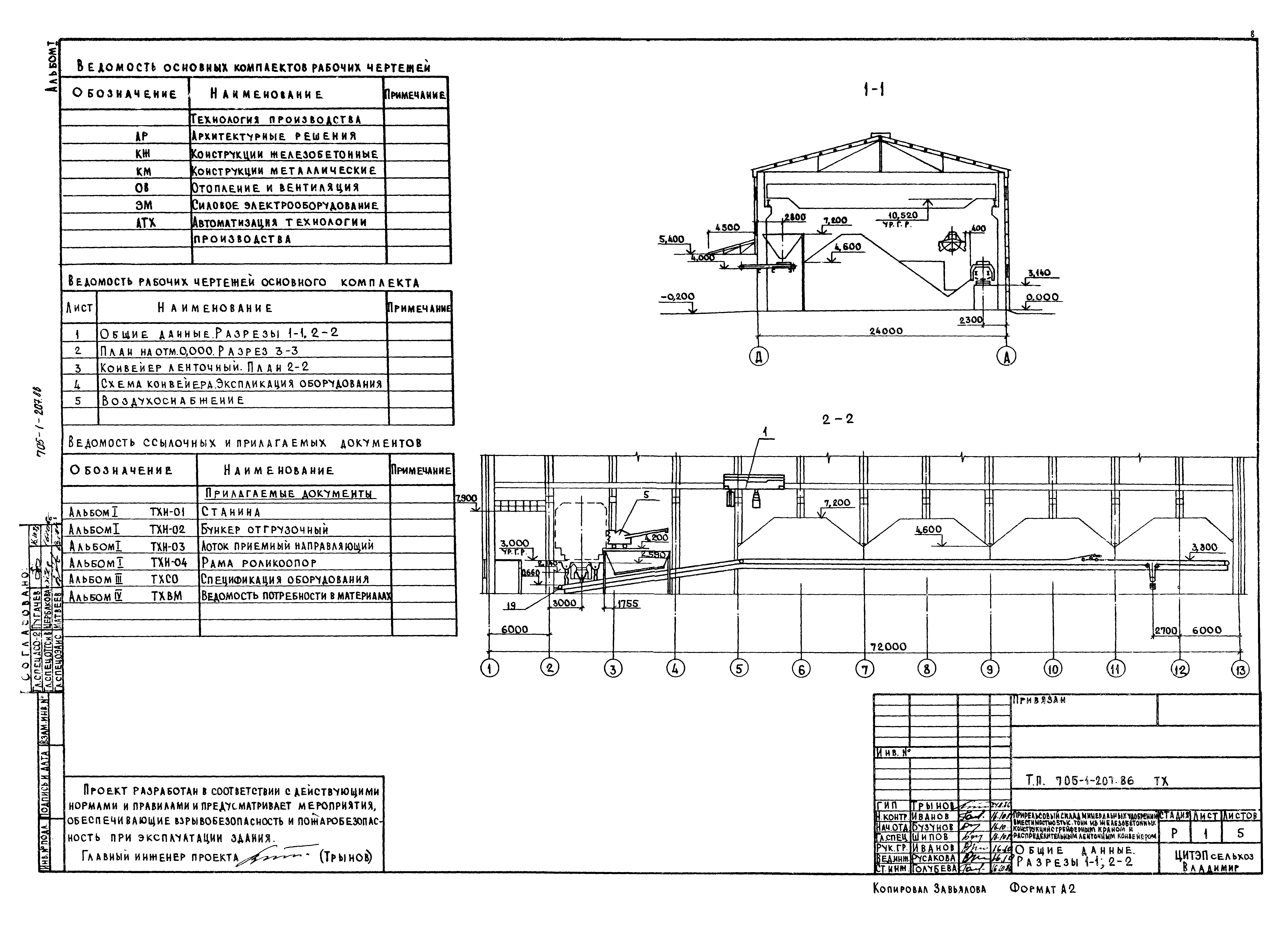
ТП 705-1-207.86-ТХ-1 Общие данные. Разрезы 1-1;2-2
ТП 705-1-207.86-ТХ-2 План на отм. 0.000. Разрез 3-3
ТП 705-1-207.86-ТХ-3 Конвейер ленточный. План 2-2
ТП 705-1-207.86-ТХ-4 Схема конвейера. Экспликация оборудования
ТП 705-1-207.86-ТХ-5 Воздухоснабжение
ТП 705-1-207.86-ТХН-01 Станина. Эскизный чертеж общего вида
ТП 705-1-207.86-ТХН-02 Бункер отгрузочный. Эскизный чертеж общего вида
ТП 705-1-207.86-ТХН-03 Лоток приемный направляющий. Эскизный чертеж общего вида
ТП 705-1-207.86-ТХН-04 Рама роликоопор. Эскизный чертеж общего вида
ТП 705-1-207.86-АР-1 Общие данные
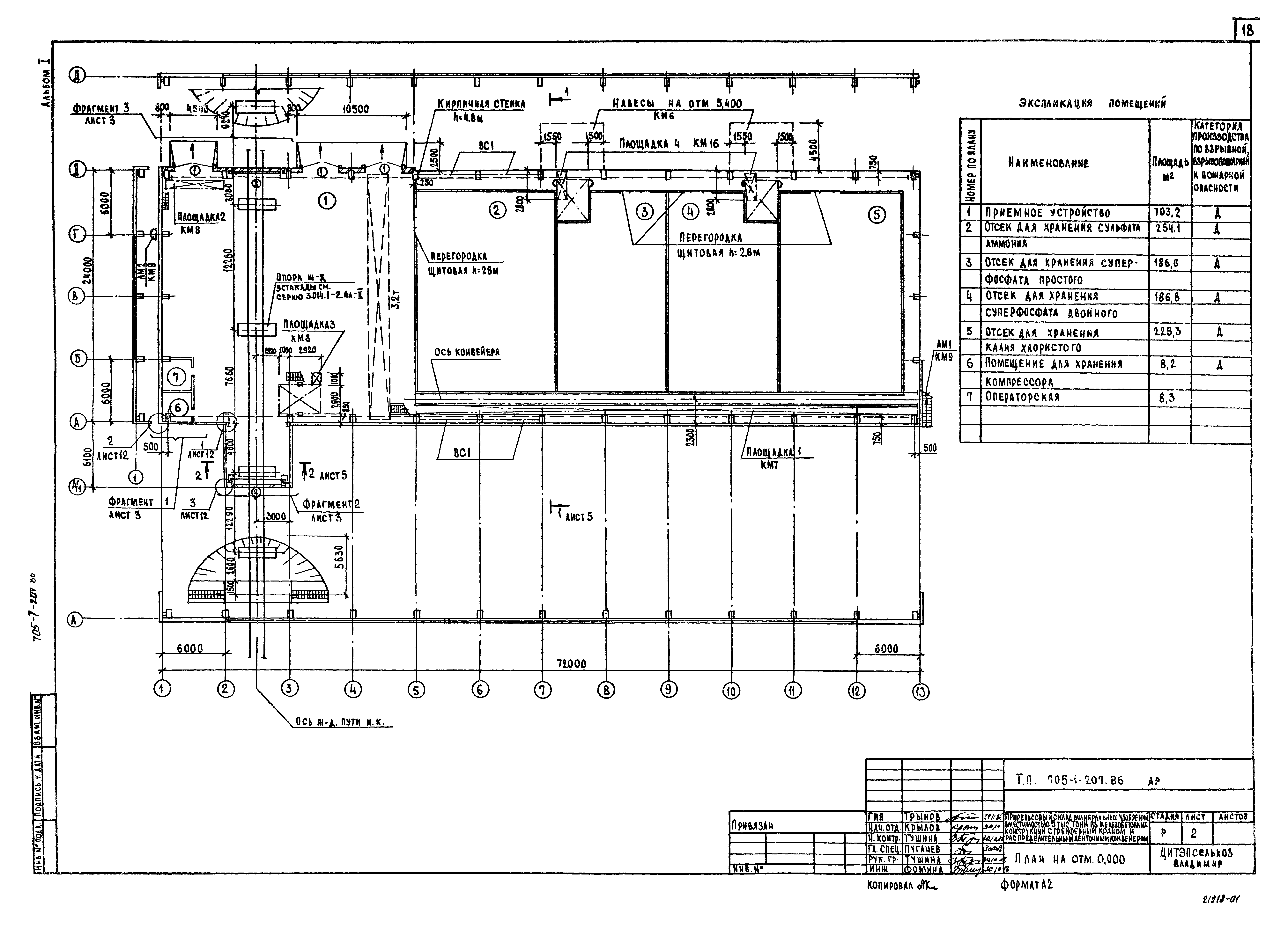
ТП 705-1-207.86-АР-2 План на отм. 0.000
ТП 705-1-207.86-АР-3 Фрагмент 1-3
ТП 705-1-207.86-АР-4 Фасады 1-13,13-1,А/1-Д,Д-А/1
ТП 705-1-207.86-АР-5 Разрезы 1-1,2-2. Схемы расположения асбестоцементных листов, закладных деталей в проеме поз.1 и деревянных коробов
ТП 705-1-207.86-АР-6 Схемы заполнения оконных проемов
ТП 705-1-207.86-АР-7 Схема расположения прогонов и ветровых ригелей по осям А,Д,1,3
ТП 705-1-207.86-АР-8 Схема расположения элементов стен
ТП 705-1-207.86-АР-9 Схема расположения элементов кровли
ТП 705-1-207.86-АР-10 Планы полов на отм. 0.000 и 3.140. Схема расположения деформационных швов
ТП 705-1-207.86-АР-11 Схема расположения ограждений оборудования. План кровли
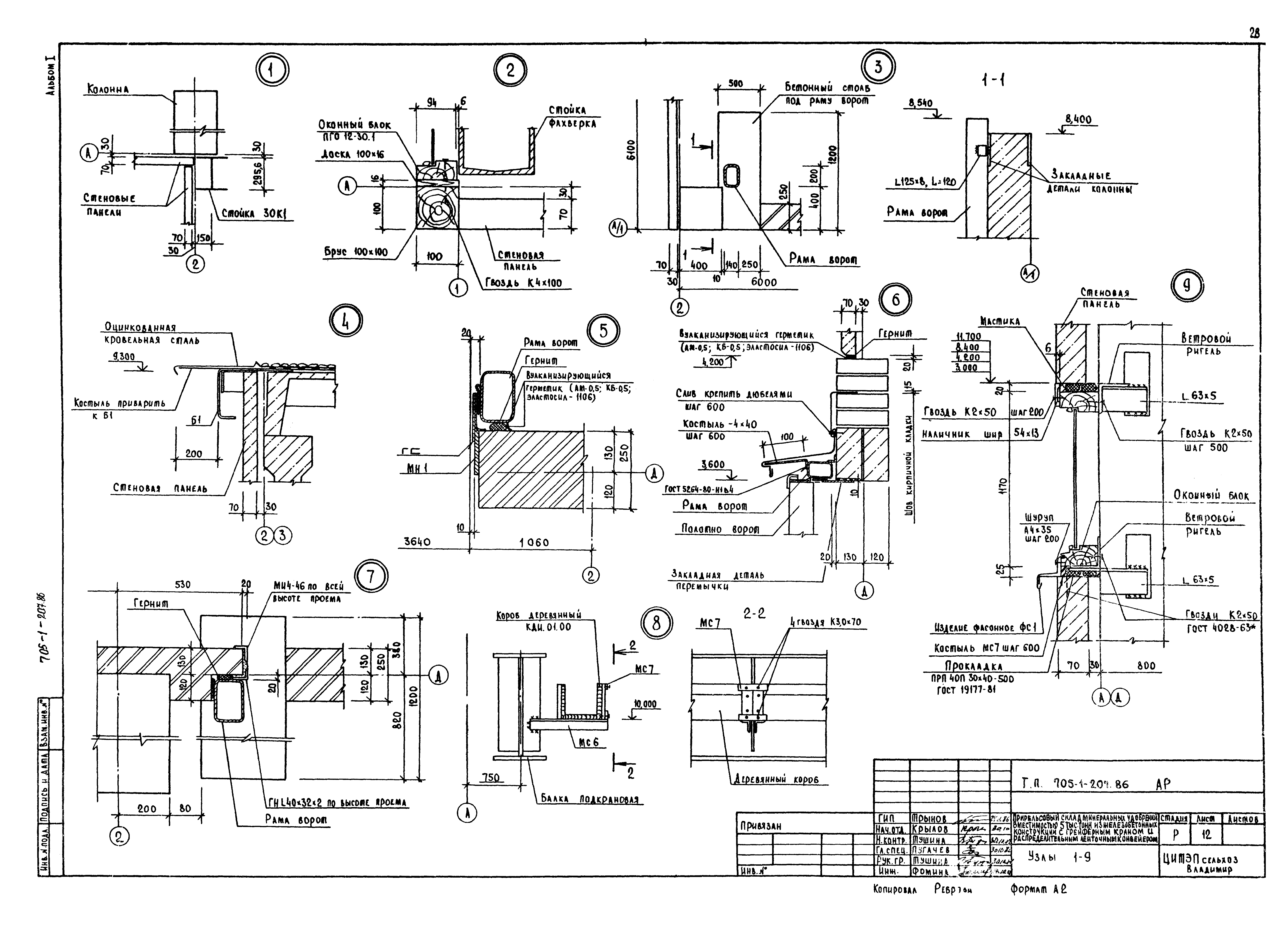
ТП 705-1-207.86-АР-12 Узлы 1-9
ТП 705-1-207.86-АР-13 Узлы 10-18
ТП 705-1-207.86-АР-14 Узлы 19-20
ТП 705-1-207.86-АР-15 Схема расположения деревянных щитов
ТП 705-1-207.86-КЖ-1 Общие данные (начало)
ТП 705-1-207.86-КЖ-2 Общие данные (окончание)
ТП 705-1-207.86-КЖ-3 Схема расположения фундаментов
ТП 705-1-207.86-КЖ-4 Узлы 1-4
ТП 705-1-207.86-КЖ-5 Узлы 5-8
ТП 705-1-207.86-КЖ-6 Фундаменты ФМ1-ФМ4
ТП 705-1-207.86-КЖ-7 Фундаменты ФМ5-ФМ7
ТП 705-1-207.86-КЖ-8 Фундаменты ФМ8-ФМ10
ТП 705-1-207.86-КЖ-9 Схема расположения фундаментов под оборудование. Фундаменты ФОМ1-ФОМ5
ТП 705-1-207.86-КЖ-10 Фундаменты ФОМ6-ФОМ8
ТП 705-1-207.86-КЖ-11 Схема расположения стеновых панелей подпорно-разделительных стен
ТП 705-1-207.86-КЖ-12 Сечения 5-5÷8-8
ТП 705-1-207.86-КЖ-13 Узлы 12-15
ТП 705-1-207.86-КЖ-14 Схема расположения верхних и нижних арматурных сеток монолитной конструкции
ТП 705-1-207.86-КЖ-15 Узлы 12-16. Сечения 1-1÷4-4
ТП 705-1-207.86-КЖ-16 Схема расположения колонн, балок
ТП 705-1-207.86-КЖ-17 Разрезы 1-1÷6-6. Схема расположения плит покрытия
ТП 705-1-207.86-КЖ-18 Узлы 21-27
ТП 705-1-207.86-КЖ-19 Схема расположения подкрановых балок
ТП 705-1-207.86-КЖ-20 Схема расположения стеновых панелей по осям А,Д
ТП 705-1-207.86-КЖ-21 Схема расположения стеновых панелей по осям 1,13,2,3
ТП 705-1-207.86-КЖ-22 Разгрузочная железнодорожная эстакада
ТП 705-1-207.86-КМ-1 Общие данные (начало)
ТП 705-1-207.86-КМ-2 Общие данные (продолжение)
ТП 705-1-207.86-КМ-3 Общие данные (продолжение)
ТП 705-1-207.86-КМ-4 Общие данные (продолжение)
ТП 705-1-207.86-КМ-5 Общие данные (окончание)
ТП 705-1-207.86-КМ-6 Схема расположения ферм, прогонов и связей по верхним и нижним поясам ферм
ТП 705-1-207.86-КМ-7 Схема расположения элементов площадки 1
ТП 705-1-207.86-КМ-8 Схема расположения элементов площадок 2,3
ТП 705-1-207.86-КМ-9 Лестницы ЛМ1,ЛМ2
ТП 705-1-207.86-КМ-10 Узлы 1-5
ТП 705-1-207.86-КМ-11 Узлы 6-13
ТП 705-1-207.86-КМ-12 Узлы 14-17
ТП 705-1-207.86-КМ-13 Узлы 18-21
ТП 705-1-207.86-КМ-14 Узлы 22-26
ТП 705-1-207.86-КМ-15 Узлы 27-31
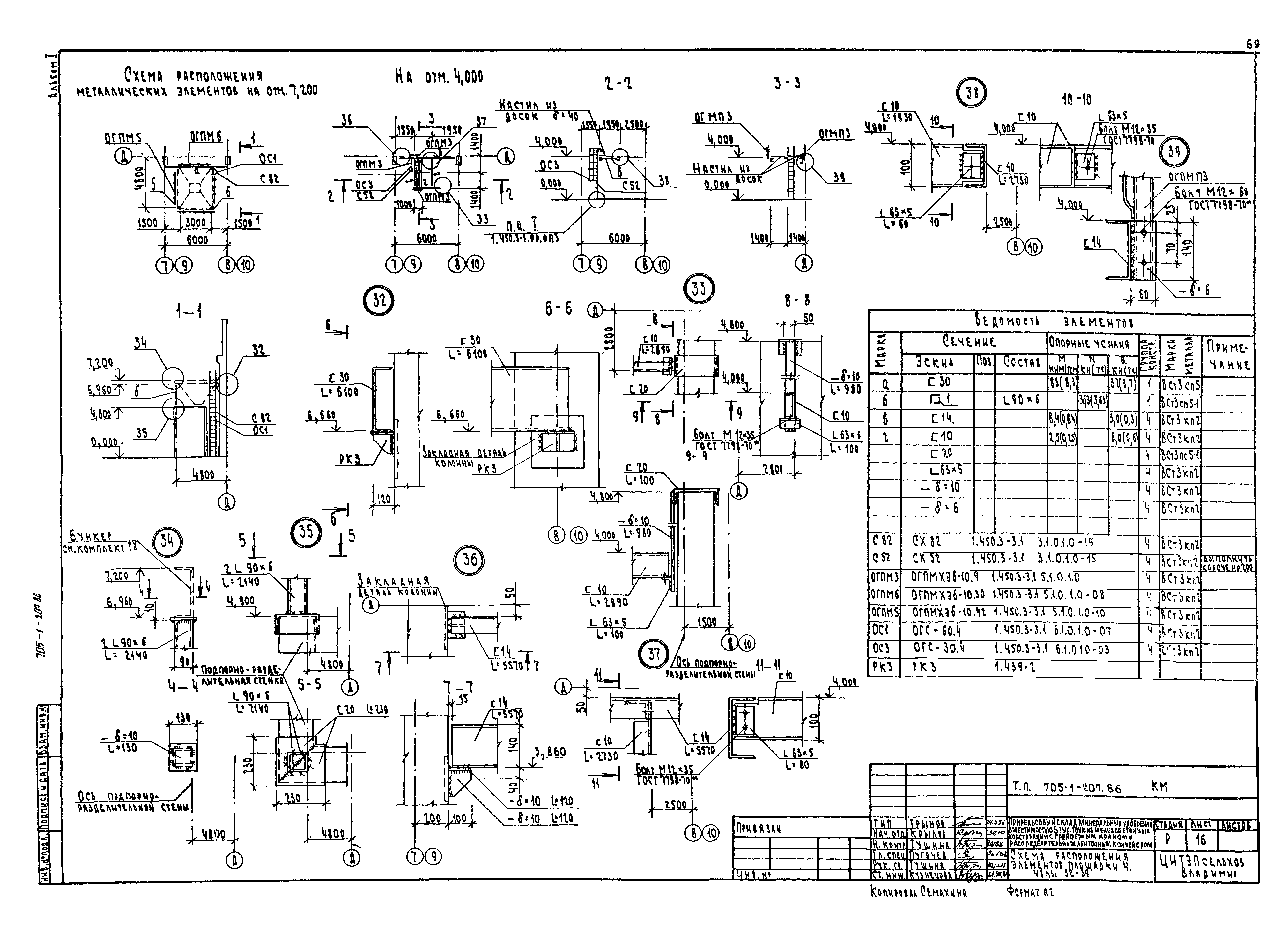
ТП 705-1-207.86-КМ-16 Схема расположения элементов площадки 4. Узлы 32-39
ТП 705-1-207.86-КМ-17 Схема расположения стоек и балок под бункера. Узлы 40-42
ТП 705-1-207.86-ОВ-1 Общие данные
ТП 705-1-207.86-ОВ-2 План на отм. 0.000. Схемы систем В1,В2,ВЕ1,ВЕ2
ТП 705-1-207.86-ОВ-3 Установки систем В1,В2
ТП 705-1-207.86-ЭМ-1 Общие данные
ТП 705-1-207.86-ЭМ-2 Силовое электрооборудование. План на отм. 0.000
ТП 705-1-207.86-ЭМ-3 Силовое электрооборудование. Принципиальная расчетная схема (начало)
ТП 705-1-207.86-ЭМ-4 Силовое электрооборудование. Принципиальная расчетная схема (окончание)
ТП 705-1-207.86-ЭМ-5 Лебедка маневровая ТЛ-86. Привод 1.2. Схема электрическая принципиальная подключения
ТП 705-1-207.86-ЭМ-6 Электрическое освещение. План на отм. 0.000
ТП 705-1-207.86-ЭМ.ВЭК Ведомость электромонтажных конструкций и деталей подлежащих изготовлению в МЭЗ
ТП 705-1-207.86-ЭМ.ВИМ Ведомость изделий и материалов для изготовления электромонтажных конструкций и дет алей МЭЧ
ТП 705-1-207.86-ЭМ.ВР Ведомость объемов строительных монтажных работ по чертежам
ТП 705-1-207.86-АТХ-1 Общие данные
ТП 705-1-207.86-АТХ-2 Схемы предупредительной сигнализации, сигнализации и питания
ТП 705-1-207.86-АТХ-3 Схемы электрические принципиальные управления
ТП 705-1-207.86-АТХ-4 Схема внешних проводок. План расположения
ТП 705-1-207.86-АТХ5.ВО Щит сигнализации. Чертеж общего вида
ТП 705-1-207.86-АТХ5.ЭЧ Щит сигнализации. Схема электрическая соединений
ТП 705-1-207.86-АТХ.ЭЧ Щит сигнализации. Схема электрическая соединений
ТП 705-1-207.86-АТХ5 Щит сигнализации. Технические данные аппаратов
ТП 705-1-207.86-АТХ5.ТБ Щит сигнализации. Таблица перечней надписей
Разработан: Проектный институт ЦИТЭПсельхоз
Утверждён:02.12.1986 Госагропром СССР (USSR Gosagroprom 33-ЭТ)
Расположен в:Техническая документация Строительство Справочные документы Типовые строительные конструкции, изделия и узлы Общероссийский строительный каталог Сельскохозяйственные предприятия, здания и сооружения Предприятия, здания и сооружения по ремонту, техническому обслуживанию, хранению и обеспечению горюче-смазочными материалами сельхозтехники Прирельсовые склады твердых минеральных удобрений
Типовой проект 705-1-207.86Типовой проект 705-1-207.86Типовой проект 705-1-207.86Типовой проект 705-1-207.86Типовой проект 705-1-207.86Типовой проект 705-1-207.86Типовой проект 705-1-207.86Типовой проект 705-1-207.86Типовой проект 705-1-207.86Типовой проект 705-1-207.86Типовой проект 705-1-207.86Типовой проект 705-1-207.86Типовой проект 705-1-207.86Типовой проект 705-1-207.86Типовой проект 705-1-207.86Типовой проект 705-1-207.86Типовой проект 705-1-207.86Типовой проект 705-1-207.86Типовой проект 705-1-207.86Типовой проект 705-1-207.86Типовой проект 705-1-207.86Типовой проект 705-1-207.86Типовой проект 705-1-207.86Типовой проект 705-1-207.86Типовой проект 705-1-207.86Типовой проект 705-1-207.86Типовой проект 705-1-207.86Типовой проект 705-1-207.86Типовой проект 705-1-207.86Типовой проект 705-1-207.86Типовой проект 705-1-207.86Типовой проект 705-1-207.86Типовой проект 705-1-207.86Типовой проект 705-1-207.86Типовой проект 705-1-207.86Типовой проект 705-1-207.86Типовой проект 705-1-207.86Типовой проект 705-1-207.86Типовой проект 705-1-207.86Типовой проект 705-1-207.86Типовой проект 705-1-207.86Типовой проект 705-1-207.86Типовой проект 705-1-207.86Типовой проект 705-1-207.86Типовой проект 705-1-207.86Типовой проект 705-1-207.86Типовой проект 705-1-207.86Типовой проект 705-1-207.86Типовой проект 705-1-207.86Типовой проект 705-1-207.86Типовой проект 705-1-207.86Типовой проект 705-1-207.86Типовой проект 705-1-207.86Типовой проект 705-1-207.86Типовой проект 705-1-207.86Типовой проект 705-1-207.86Типовой проект 705-1-207.86Типовой проект 705-1-207.86Типовой проект 705-1-207.86Типовой проект 705-1-207.86Типовой проект 705-1-207.86Типовой проект 705-1-207.86Типовой проект 705-1-207.86Типовой проект 705-1-207.86Типовой проект 705-1-207.86Типовой проект 705-1-207.86Типовой проект 705-1-207.86Типовой проект 705-1-207.86Типовой проект 705-1-207.86Типовой проект 705-1-207.86Типовой проект 705-1-207.86Типовой проект 705-1-207.86Типовой проект 705-1-207.86Типовой проект 705-1-207.86Типовой проект 705-1-207.86Типовой проект 705-1-207.86Типовой проект 705-1-207.86Типовой проект 705-1-207.86Типовой проект 705-1-207.86Типовой проект 705-1-207.86Типовой проект 705-1-207.86Типовой проект 705-1-207.86Типовой проект 705-1-207.86Типовой проект 705-1-207.86Типовой проект 705-1-207.86Типовой проект 705-1-207.86Типовой проект 705-1-207.86Типовой проект 705-1-207.86Типовой проект 705-1-207.86Типовой проект 705-1-207.86

© 2013 Ёшкин Кот :-) Карта сайта