| ||||||||||||||||||||||||
Скачать Типовые проектные решения 820-4-031.88 Альбом II. Водосбросы на расход воды от 50 до 75 куб. м/с. Строительные решения. Конструкции железобетонныеДата актуализации: 10.08.2017
|
| Обозначение: | Типовые проектные решения 820-4-031.88 |
| Обозначение англ: | 820-4-031.88 |
| Статус: | cправочные материалы, мп, тпр |
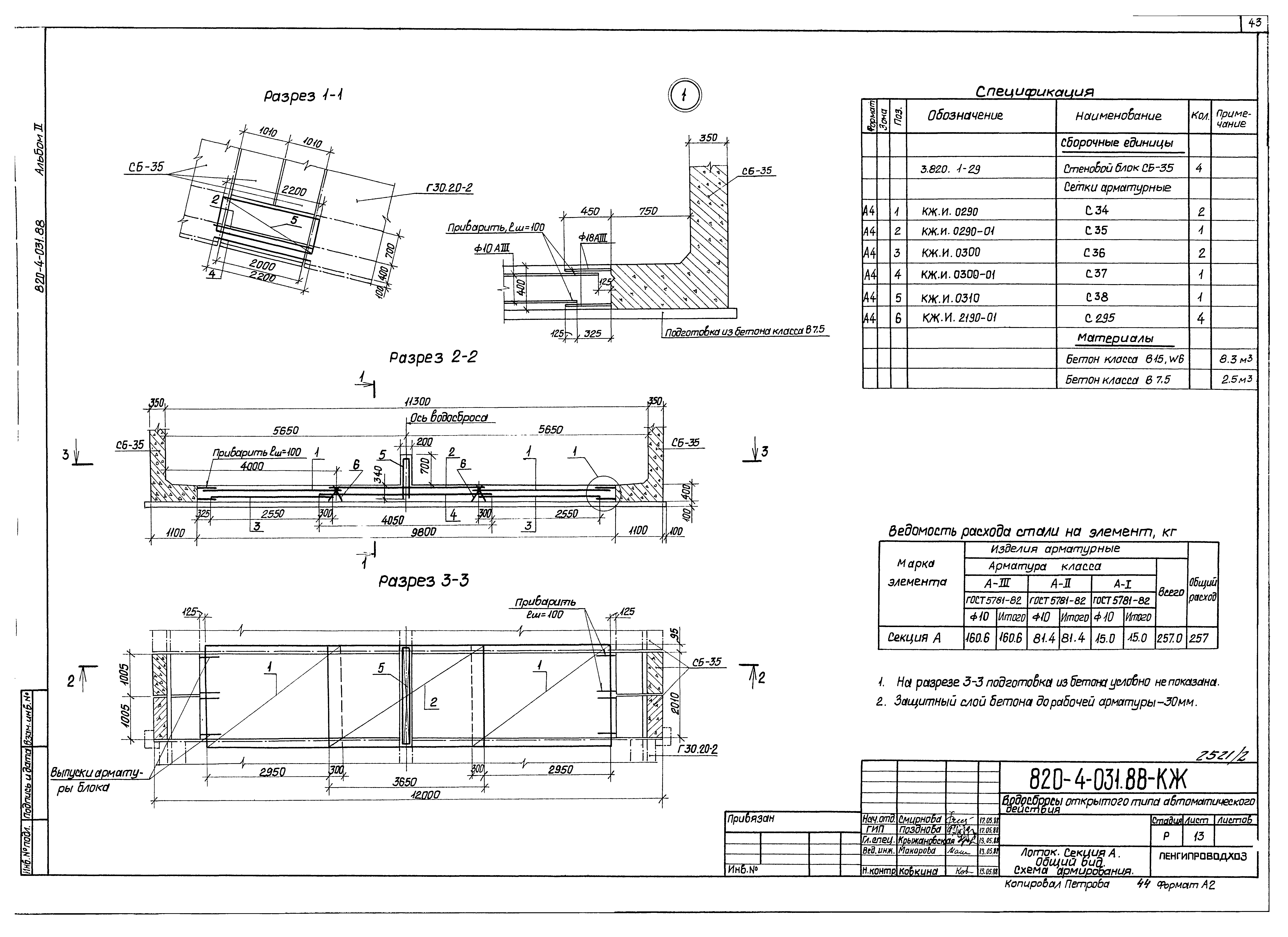
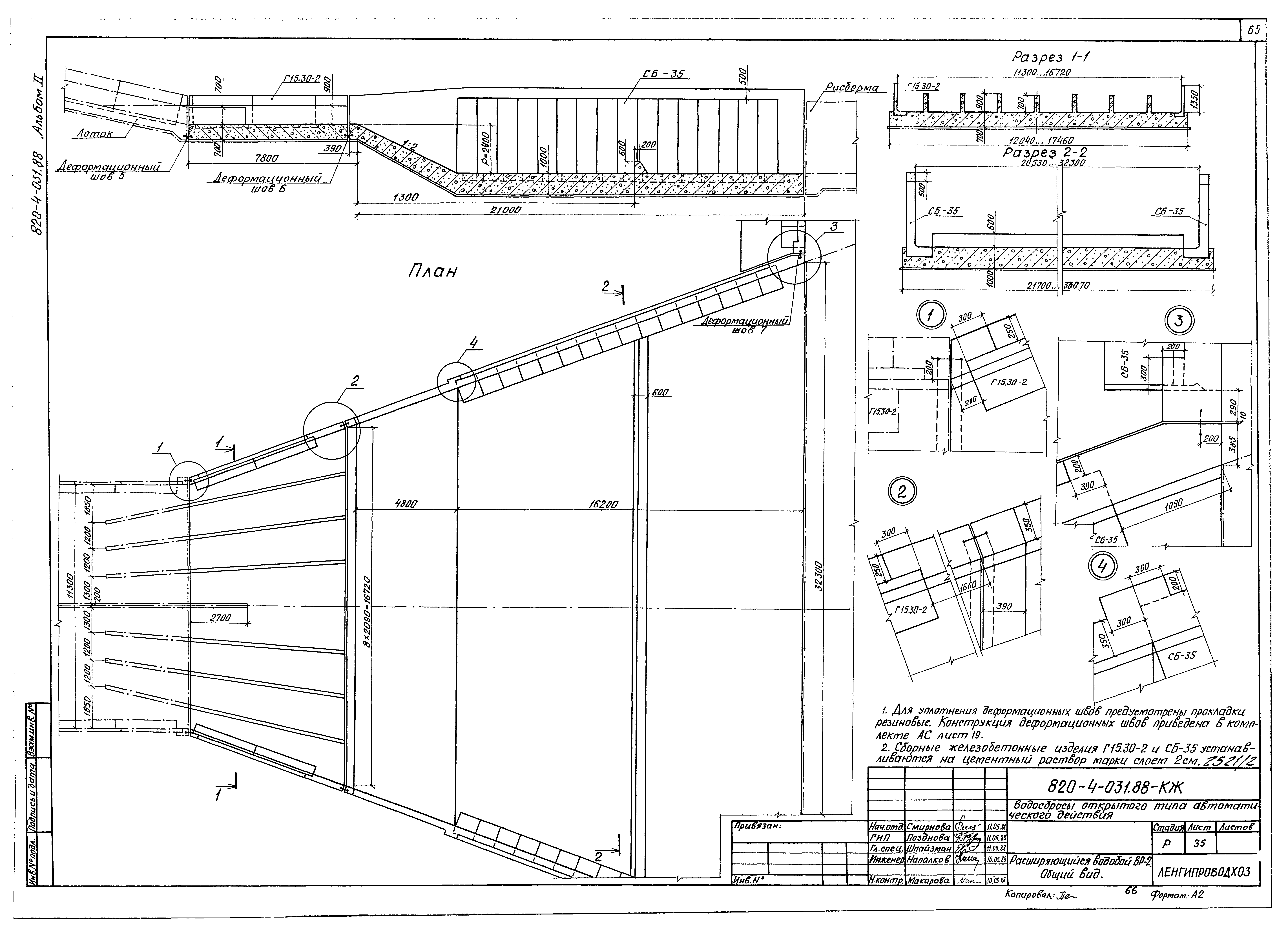
| Название рус.: | Альбом II. Водосбросы на расход воды от 50 до 75 куб. м/с. Строительные решения. Конструкции железобетонные |
| Дата добавления в базу: | 01.09.2013 |
| Дата актуализации: | 05.05.2017 |
| Дата введения: | 01.10.1988 |
| Разработан: | Ленгипроводхоз Минводхоза СССР |
| Утверждён: | 05.05.1988 Минводхоз СССР (USSR Minvodkhoz 761) |
| Расположен в: |

















































































