Информационная система
«Ёшкин Кот»

Скачать базу одним архивом
Скачать обновления
История создания базы
Карта сайта

Скачать Типовой проект 902-1-83.83 Альбом II. Технологические решения. Внутренние водопровод и канализация. Отопление и вентиляция (из ТП 902-1-78.83)

Дата актуализации: 10.08.2017

Типовой проект 902-1-83.83

Альбом II. Технологические решения. Внутренние водопровод и канализация. Отопление и вентиляция (из ТП 902-1-78.83)

Обозначение: Типовой проект 902-1-83.83
Обозначение англ: 902-1-83.83
Статус:действует
Название рус.:Альбом II. Технологические решения. Внутренние водопровод и канализация. Отопление и вентиляция (из ТП 902-1-78.83)
Дата добавления в базу:01.09.2013
Дата актуализации:05.05.2017
Оглавление:ТП 902-1-78.83 Содержание альбома II
ТП 902-1-78.83-НК Основной комплект марки НК
ТП 902-1-78.83-НК-1 Общие данные
ТП 902-1-78.83-НК-2 План на отм. 0.000
ТП 902-1-78.83-НК-3 План
ТП 902-1-78.83-НК-4 Разрез 1-1. Разрез 2-2
ТП 902-1-78.83-НК-5 План приемного резервуара. Разрез 1-1
ТП 902-1-78.83-НК-6 Аксонометрическая схема 1К1Н
ТП 902-1-78.83-НК-7 Спецификация 1К1,1К1Н
ТП 902-1-78.83-НК-8 План на отм. □. Аксонометрические схемы 1В3,1К13,1К13Н
ТП 902-1-78.83-НК-9 Спецификация 1В3,1К13Н,1К13
ТП 902-1-78.83-НКН Общие виды нетиповых конструкций марки НКН
ТП 902-1-78.83-НКН1 Устройство отборное с разделительной мембраной для манометра
ТП 902-1-78.83-НК-12 Патрубок
ТП 902-1-78.83-ВК Основной комплект марки ВК
ТП 902-1-78.83-ВК-1 Общие данные. План. Схемы В1,Т3,К1
ТП 902-1-78.83-ОВ Основной комплект марки ОВ
ТП 902-1-78.83-ОВ-1 Общие данные
ТП 902-1-78.83-ОВ-2 План подземной части и на отм. 0.000. Разрез 1-1, схемы систем П1.1р;П2;В1.1р;В2,В4
ТП 902-1-78.83-ОВ-3 Схемы систем отопления, теплоснабжения установок П1,П1р, теплоснабжения водоподогревателя, узла управления
ТП 902-1-78.83-ОВ-4 Установки систем П1.1р;П2;В1.1р;В2;В4
ТП 902-1-78.83-ОВ-5 Установки систем П1.1р;П2;В1.1р;В2;В4
ТП 902-1-78.83-ОВН Общие виды нетиповых конструкций марки ОВН
ТП 902-1-78.83-ОВН1 Рама для крепления калорифера. Чертеж общего вида
ТП 902-1-78.83-ОВН2 Лючок с заглушкой. Чертеж общего вида
ТП 902-1-78.83-ОВН3 Расширитель. Чертеж общего вида
ТП 902-1-78.83-ОВН4 Зонт. Чертеж общего вида
ТП 902-1-78.83-ОВН5 Вставка редукционная. Чертеж общего вида
ТП 902-1-78.83-ОВН6 Короб распределительный. Чертеж общего вида
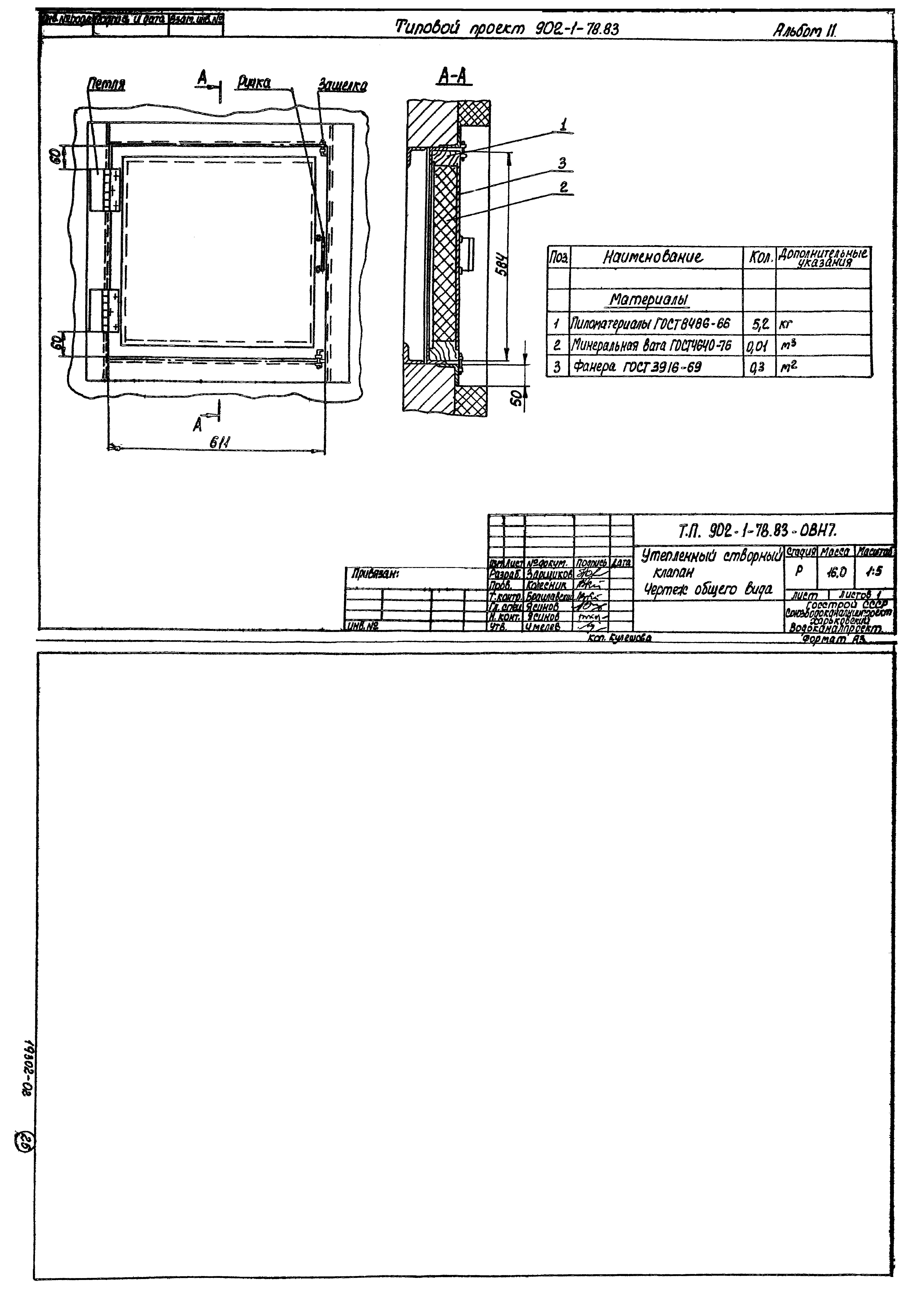
ТП 902-1-78.83-ОВН7 Утепленный створный клапан. Чертеж общего вида
Разработан: Харьковский Водоканалпроект
Утверждён:27.10.1983 СоюзводоканалНИИпроект (SoyuzvodokanalNIIproject 59)
Расположен в:Техническая документация Строительство Справочные документы Типовые строительные конструкции, изделия и узлы Общероссийский строительный каталог Промышленные предприятия, здания и сооружения Здания и сооружения санитарно-технические Канализация Станции насосные Станции насосные для перекачки бытовых сточных вод
Типовой проект 902-1-83.83Типовой проект 902-1-83.83Типовой проект 902-1-83.83Типовой проект 902-1-83.83Типовой проект 902-1-83.83Типовой проект 902-1-83.83Типовой проект 902-1-83.83Типовой проект 902-1-83.83Типовой проект 902-1-83.83Типовой проект 902-1-83.83Типовой проект 902-1-83.83Типовой проект 902-1-83.83Типовой проект 902-1-83.83Типовой проект 902-1-83.83Типовой проект 902-1-83.83Типовой проект 902-1-83.83Типовой проект 902-1-83.83Типовой проект 902-1-83.83Типовой проект 902-1-83.83Типовой проект 902-1-83.83Типовой проект 902-1-83.83Типовой проект 902-1-83.83Типовой проект 902-1-83.83Типовой проект 902-1-83.83Типовой проект 902-1-83.83Типовой проект 902-1-83.83

© 2013 Ёшкин Кот :-) Карта сайта