Информационная система
«Ёшкин Кот»

Скачать базу одним архивом
Скачать обновления
История создания базы
Карта сайта

Скачать Типовой проект 904-1-52.83 Альбом 7. Нестандартизированное оборудование. Технологическая часть

Дата актуализации: 10.08.2017

Типовой проект 904-1-52.83

Альбом 7. Нестандартизированное оборудование. Технологическая часть

Обозначение: Типовой проект 904-1-52.83
Обозначение англ: 904-1-52.83
Статус:действует
Название рус.:Альбом 7. Нестандартизированное оборудование. Технологическая часть
Дата добавления в базу:01.09.2013
Дата актуализации:05.05.2017
Дата введения:20.04.1983
Оглавление:ТП 904-1-52.83 Обложка
ТП 904-1-52.83 Титульный лист
ТП 904-1-52.83 Содержание
ТП 904-1-52.83-ГФ.00.00.00.000.ТУ Фильтр воздушный с глушителем. Технические условия. Листы 1-5
ТП 904-1-52.83-ГФ.00.00.00.000 Установка фильтра воздушного с глушителем шума. Лист 1
ТП 904-1-52.83-ГФ.01.00.00.000 Глушитель шума. Листы 1,2
ТП 904-1-52.83-ГФ.00.00.00.000 Установка фильтра воздушного с глушителем шума. Сборочный чертеж. Лист 1
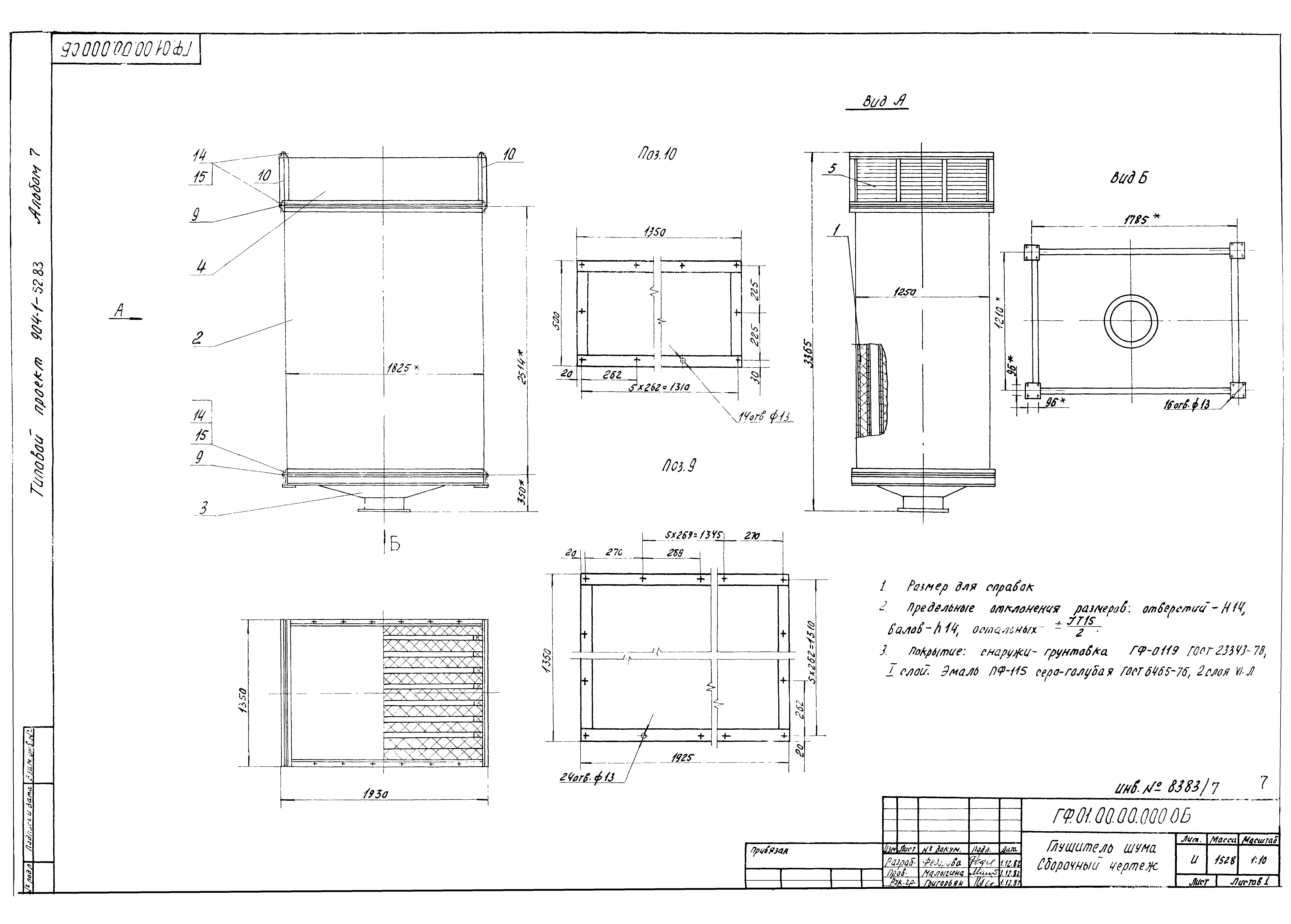
ТП 904-1-52.83-ГФ.01.00.00.000СБ Глушитель шума. Сборочный чертеж. Лист 1
ТП 904-1-52.83-ГФ.01.01.00.000СБ Кассета. Сборочный чертеж. Лист 1
ТП 904-1-52.83-ГФ.01.01.00.000 Кассета. Лист 1
ТП 904-1-52.83-ГФ.01.02.00.000 Корпус. Листы 1,2
ТП 904-1-52.83-ГФ.01.01.01.000 Рама. Листы 1,2
ТП 904-1-52.83-ГФ.01.01.01.000СБ Рама. Сборочный чертеж. Лист 1
ТП 904-1-52.83-ГФ.01.02.00.000СБ Корпус. Сборочный чертеж. Лист 1
ТП 904-1-52.83-ГФ.01.02.01.000СБ Обечайка. Сборочный чертеж. Лист 1
ТП 904-1-52.83-ГФ.01.02.01.000 Обечайка. Лист 1
ТП 904-1-52.83-ГФ.01.02.02.000 Плита упорная. Лист 1
ТП 904-1-52.83-ГФ.01.02.02.000СБ Плита упорная. Лист 1
ТП 904-1-52.83-ГФ.01.03.00.000 Конфузор. Лист 1
ТП 904-1-52.83-ГФ.01.03.00.003 Лист боковой. Лист 1
ТП 904-1-52.83-ГФ.01.03.00.004 Лист. Лист 1
ТП 904-1-52.83-ГФ.01.03.00.005 Дно. Лист 1
ТП 904-1-52.83-ГФ.01.03.00.000СБ Конфузор. Сборочный чертеж. Лист 1
ТП 904-1-52.83-ГФ.01.04.00.000 Короб. Лист 1
ТП 904-1-52.83-ГФ.01.05.00.000 Жалюзийная решетка. Лист 1
ТП 904-1-52.83-ГФ.01.05.00.000СБ Жалюзийная решетка. Сборочный чертеж. Лист 1
ТП 904-1-52.83-ГФ.01.04.00.000СБ Короб. Сборочный чертеж. Лист 1
ТП 904-1-52.83-ГФ.02.00.00.000 Опора под глушитель. Лист 1
ТП 904-1-52.83-ГФ.02.00.00.000СБ Опора под глушитель. Сборочный чертеж. Лист 1
ТП 904-1-52.83-ГФ.02.00.00.001 Планка верхняя. Лист 1
ТП 904-1-52.83-ГФ.02.00.00.002 Планка нижняя. Лист 1
ТП 904-1-52.83-ГФ.03.00.00.000 Фильтр. Листы 1,2
ТП 904-1-52.83-ГФ.03.01.00.000 Дверка фильтра. Листы 1,2
ТП 904-1-52.83-ГФ.03.00.00.000СБ Фильтр. Сборочный чертеж. Лист 1
ТП 904-1-52.83-ГФ.03.01.00.000СБ Дверка фильтра. Сборочный чертеж. Лист 1
ТП 904-1-52.83-ГФ.03.02.00.000 Корпус фильтра. Верхняя часть. Листы 1,2
ТП 904-1-52.83-ГФ.03.02.00.004 Лист боковой. Лист 1
ТП 904-1-52.83-ГФ.03.03.00.000 Корпус фильтра. Нижняя часть. Листы 1,2
ТП 904-1-52.83-ГФ.03.03.00.002 Лист боковой. Лист 1
ТП 904-1-52.83-ГФ.03.04.00.000 Рамка. Лист 1
ТП 904-1-52.83-ГФ.03.04.00.000СБ Рамка. Сборочный чертеж. Лист 1
ТП 904-1-52.83-ГФ.03.02.00.000СБ Корпус фильтра. Верхняя часть. Сборочный чертеж. Лист 1
ТП 904-1-52.83-ГФ.03.03.00.000СБ Корпус фильтра. Нижняя часть. Сборочный чертеж. Лист 1
ТП 904-1-52.83-УО.00.000ТУ Установка очистки трасс сжатого воздуха. Технические условия. Листы 1-4
ТП 904-1-52.83-УО.00.000ТО Установка очистки трасс сжатого воздуха. Техническое описание и инструкция по эксплуатации. Листы 1-18
ТП 904-1-52.83-УО.00.003 Гайка накидная. Лист 1
ТП 904-1-52.83-УО.00.000 Установка для очистки трасс сжатого воздуха. Листы 1-3
ТП 904-1-52.83-УО.00.000СБ Установка для очистки трасс сжатого воздуха. Сборочный чертеж. Листы 1,2
ТП 904-1-52.83-УО.00.002 Штуцер. Лист 1
ТП 904-1-52.83-УО.00.001 Коллектор. Лист 1
ТП 904-1-52.83-УО.01.001 Гайка-сопло. Лист 1
ТП 904-1-52.83-УО.01.000 Форсунка. Лист 1
ТП 904-1-52.83-УО.01.000СБ Форсунка. Сборочный чертеж. Лист 1
ТП 904-1-52.83-БП.00.000.ТУ Бак продувочный. Технические условия. Листы 1-6
ТП 904-1-52.83-БП.00.000 Бак продувочный. Листы 1-3
ТП 904-1-52.83-БП.00.000СБ Бак продувочный. Сборочный чертеж. Лист 1
ТП 904-1-52.83-БП.01.000 Крышка. Лист 1
ТП 904-1-52.83-БП.01.000СБ Крышка. Сборочный чертеж. Лист 1
ТП 904-1-52.83-БП.02.001 Днище. Лист 1
ТП 904-1-52.83-БП.02.000 Корпус. Лист 1
ТП 904-1-52.83-БП.02.000СБ Корпус. Сборочный чертеж. Лист 1
ТП 904-1-52.83-БП.04.000 Отвод. Лист 1
ТП 904-1-52.83-БП.02.003 Перегородка. Лист 1
ТП 904-1-52.83-БП.03.000 Корпус. Листы 1-3
ТП 904-1-52.83-БП.03.000СБ Корпус. Сборочный чертеж. Лист 1
ТП 904-1-52.83-БП.04.000СБ Отвод. Сборочный чертеж. Лист 1
ТП 904-1-52.83-БП.05.000 Створка. Листы 1,2
ТП 904-1-52.83-БП.05.000СБ Створка. Сборочный чертеж. Лист 1
ТП 904-1-52.83-БП.06.000 Патрубок. Лист 1
ТП 904-1-52.83-БП.06.000СБ Патрубок. Сборочный чертеж. Лист 1
ТП 904-1-52.83-МС.00.000 Маслосборник. Листы 1,2
ТП 904-1-52.83-МС.00.000 Маслосборник. Сборочный чертеж. Лист 1
ТП 904-1-52.83-ВП.00.000.ТУ Ванна для промывки ячеек фильтров. Технические условия. Листы 1-3
ТП 904-1-52.83-ВП.00.000 Ванна для промывки ячеек фильтров. Листы 1,2
ТП 904-1-52.83-ВП.01.000 Металлоконструкция. Лист 1
ТП 904-1-52.83-ВП.02.000 Барботер. Лист 1
ТП 904-1-52.83-ВП.03.000 Поддон. Лист 1
ТП 904-1-52.83-ВП.00.000СБ Ванна для промывки ячеек фильтров. Сборочный чертеж. Лист 1
ТП 904-1-52.83-ВП.01.000СБ Металлоконструкция. Сборочный чертеж. Лист 1
ТП 904-1-52.83-ВП.02.000СБ Барботер. Сборочный чертеж. Лист 1
ТП 904-1-52.83-ВП.03.000СБ Поддон. Сборочный чертеж. Лист 1
ТП 904-1-52.83-ВП.04.000 Крышка. Лист 1
ТП 904-1-52.83-ВП.04.000СБ Крышка. Сборочный чертеж. Лист 1
ТП 904-1-52.83-ВЗ.00.000ТУ Ванна для зарядки ячеек фильтров V=0.22м³. Технические условия. Листы 1-4
ТП 904-1-52.83-ВЗ.00.000 Ванна для зарядки ячеек фильтров V=0.22м³. Листы 1,2
ТП 904-1-52.83-ВЗ.00.000СБ Ванна для зарядки ячеек фильтров V=0.22м³. Сборочный чертеж. Лист 1
ТП 904-1-52.83-ВЗ.00.002 Змеевик. Лист 1
ТП 904-1-52.83-ВЗ.00.004 Фланец. Лист 1
ТП 904-1-52.83-ВЗ.01.000 Крышка. Лист 1
ТП 904-1-52.83-ВЗ.01.001 Лист верхний. Лист 1
ТП 904-1-52.83-ВЗ.01.000СБ Крышка. Сборочный чертеж. Лист 1
ТП 904-1-52.83-ВЗ.01.002 Рамка. Лист 1
ТП 904-1-52.83-ВЗ.01.003 Ручка. Лист 1
ТП 904-1-52.83-ВЗ.02.000 Металлоконструкция. Лист 1
ТП 904-1-52.83-ВЗ.02.002 Кронштейн. Лист 1
ТП 904-1-52.83-ВЗ.02.003 Обечайка. Лист 1
ТП 904-1-52.83-ВЗ.02.005 Палец. Лист 1
ТП 904-1-52.83-ВЗ.02.000СБ Металлоконструкция. Сборочный чертеж. Лист 1
ТП 904-1-52.83-ВЗ.03.000 Поддон. Лист 1
ТП 904-1-52.83-ВЗ.03.000СБ Поддон. Сборочный чертеж. Лист 1
ТП 904-1-52.83-ВЗ.03.001 Корыто. Лист 1
ТП 904-1-52.83-СО.00.000 Стол для отстоя ячеек фильтров. Лист 1
ТП 904-1-52.83-СО.01.000 Бункер. Лист 1
ТП 904-1-52.83-СО.01.000СБ Бункер. Сборочный чертеж. Лист 1
ТП 904-1-52.83-СО.02.000 Металлоконструкция. Лист 1
ТП 904-1-52.83-СО.00.000СБ Стол отстоя ячеек фильтров. Сборочный чертеж. Лист 1
ТП 904-1-52.83-СО.02.000СБ Металлоконструкция. Сборочный чертеж. Лист 1
ТП 904-1-52.83-СО.01.001 Боковина. Лист 1
ТП 904-1-52.83-СО.01.002 Боковина. Лист 1
ТП 904-1-52.83-СО.01.003 Патрубок. Лист 1
ТП 904-1-52.83-БМ.00.000ТУ Бак расходный для масла V>3000. Технические условия. Листы 1-4
ТП 904-1-52.83-БМ.00.000ТУ Бак расходный для масла V>3000л. Листы 1-3
ТП 904-1-52.83-БМ.01.000 Корпус бака. Лист 1
ТП 904-1-52.83-БМ.00.000СБ Бак расходный для масла V>3000л. Сборочный чертеж. Лист 1
ТП 904-1-52.83-БМ.01.000СБ Корпус бака. Сборочный чертеж. Лист 1
ТП 904-1-52.83-БМ.01.003 Лист верхний. Лист 1
ТП 904-1-52.83-БМ.01.004 Обечайка. Лист 1
ТП 904-1-52.83-БМ.01.007 Фланец. Лист 1
ТП 904-1-52.83-БМ.03.000 Крышка. Лист 1
ТП 904-1-52.83-БМ.03.000СБ Крышка. Сборочный чертеж. Лист 1
ТП 904-1-52.83-БМ.03.002 Лист. Лист 1
ТП 904-1-52.83-БМ.03.003 Ручка. Лист 1
ТП 904-1-52.83-БР.00.000ТУ Бак расходный для масла V=50л. Технические условия. Листы 1-4
ТП 904-1-52.83-БР.00.000 Бак расходный для масла V=50л. Листы 1,2
ТП 904-1-52.83-БР.01.000 Корпус бака. Лист 1
ТП 904-1-52.83-БР.02.000 Колпачок. Лист 1
ТП 904-1-52.83-БР.00.000СБ Бак расходный для масла V=50л. Сборочный чертеж. Лист 1
ТП 904-1-52.83-БР.01.000СБ Корпус бака. Сборочный чертеж. Лист 1
ТП 904-1-52.83-БР.03.000 Крышка. Лист 1
ТП 904-1-52.83-БР.03.000СБ Крышка. Сборочный чертеж. Лист 1
ТП 904-1-52.83-БР.02.000СБ Колпачок. Сборочный чертеж. Лист 1
Разработан: Гипростройдормаш
Утверждён:02.03.1983 Минстройдормаш (Minstroydormash 6/83)
Расположен в:Техническая документация Строительство Справочные документы Типовые строительные конструкции, изделия и узлы Общероссийский строительный каталог Промышленные предприятия, здания и сооружения Здания и сооружения санитарно-технические Воздухоснабжение, вентиляция и кондиционирование воздуха Воздухоснабжение
Типовой проект 904-1-52.83Типовой проект 904-1-52.83Типовой проект 904-1-52.83Типовой проект 904-1-52.83Типовой проект 904-1-52.83Типовой проект 904-1-52.83Типовой проект 904-1-52.83Типовой проект 904-1-52.83Типовой проект 904-1-52.83Типовой проект 904-1-52.83Типовой проект 904-1-52.83Типовой проект 904-1-52.83Типовой проект 904-1-52.83Типовой проект 904-1-52.83Типовой проект 904-1-52.83Типовой проект 904-1-52.83Типовой проект 904-1-52.83Типовой проект 904-1-52.83Типовой проект 904-1-52.83Типовой проект 904-1-52.83Типовой проект 904-1-52.83Типовой проект 904-1-52.83Типовой проект 904-1-52.83Типовой проект 904-1-52.83Типовой проект 904-1-52.83Типовой проект 904-1-52.83Типовой проект 904-1-52.83Типовой проект 904-1-52.83Типовой проект 904-1-52.83Типовой проект 904-1-52.83Типовой проект 904-1-52.83Типовой проект 904-1-52.83Типовой проект 904-1-52.83Типовой проект 904-1-52.83Типовой проект 904-1-52.83Типовой проект 904-1-52.83Типовой проект 904-1-52.83Типовой проект 904-1-52.83Типовой проект 904-1-52.83Типовой проект 904-1-52.83Типовой проект 904-1-52.83Типовой проект 904-1-52.83Типовой проект 904-1-52.83Типовой проект 904-1-52.83Типовой проект 904-1-52.83Типовой проект 904-1-52.83Типовой проект 904-1-52.83Типовой проект 904-1-52.83Типовой проект 904-1-52.83Типовой проект 904-1-52.83Типовой проект 904-1-52.83Типовой проект 904-1-52.83Типовой проект 904-1-52.83Типовой проект 904-1-52.83Типовой проект 904-1-52.83Типовой проект 904-1-52.83Типовой проект 904-1-52.83Типовой проект 904-1-52.83Типовой проект 904-1-52.83Типовой проект 904-1-52.83Типовой проект 904-1-52.83Типовой проект 904-1-52.83Типовой проект 904-1-52.83Типовой проект 904-1-52.83Типовой проект 904-1-52.83Типовой проект 904-1-52.83Типовой проект 904-1-52.83Типовой проект 904-1-52.83Типовой проект 904-1-52.83Типовой проект 904-1-52.83Типовой проект 904-1-52.83Типовой проект 904-1-52.83Типовой проект 904-1-52.83

© 2013 Ёшкин Кот :-) Карта сайта