Информационная система
«Ёшкин Кот»

Скачать базу одним архивом
Скачать обновления
История создания базы
Карта сайта

Скачать Типовой проект 904-1-52.83 Альбом 5. Архитектурно-строительная и сантехническая части

Дата актуализации: 10.08.2017

Типовой проект 904-1-52.83

Альбом 5. Архитектурно-строительная и сантехническая части

Обозначение: Типовой проект 904-1-52.83
Обозначение англ: 904-1-52.83
Статус:действует
Название рус.:Альбом 5. Архитектурно-строительная и сантехническая части
Дата добавления в базу:01.09.2013
Дата актуализации:05.05.2017
Дата введения:20.04.1983
Оглавление:ТП 904-1-52.83-АР Содержание альбома
ТП 904-1-52.83-АР-ПЗ Пояснительная записка
ТП 904-1-52.83-АР Архитектурные решения
ТП 904-1-52.83-АР-1 Общие данные (начало)
ТП 904-1-52.83-АР-2 Общие данные (окончание)
ТП 904-1-52.83-АР-3 Схема расположения подземных конструкций для 4К-120А
ТП 904-1-52.83-АР-4 Схема расположения подземных конструкций для 2К-120А
ТП 904-1-52.83-АР-5 Канал КН2. Сечения 4-4-12-12. Узлы 1-3
ТП 904-1-52.83-АР-6 Фундаменты под оборудование ФОМ3-ФОМ9
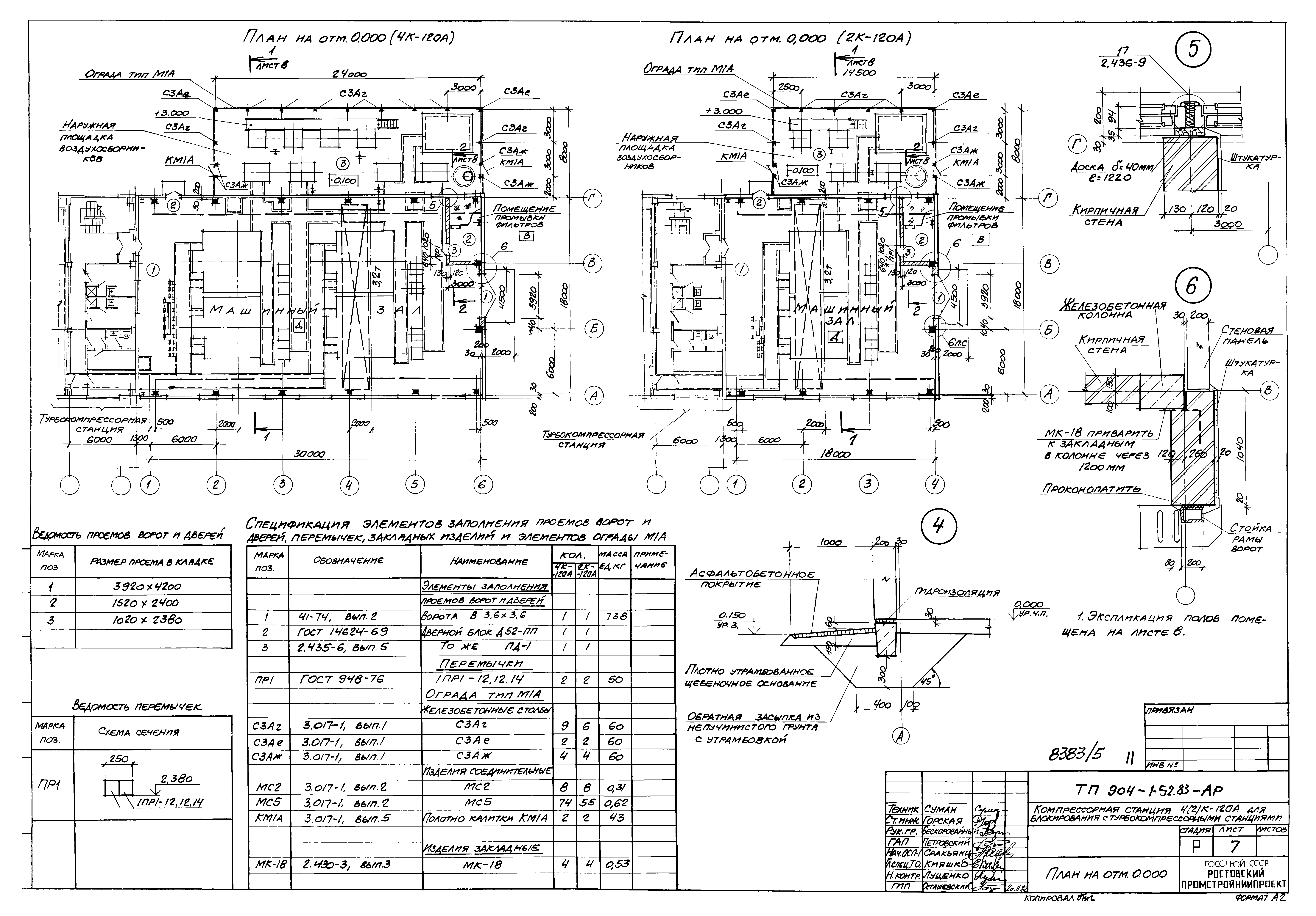
ТП 904-1-52.83-АР-7 План на отм. 0.000
ТП 904-1-52.83-АР-8 Разрезы 1-1-2-2. План кровли. Экспликация полов. Ведомость отделки помещений
ТП 904-1-52.83-АР-9 Фасады
ТП 904-1-52.83-КЖ Конструкции железобетонные
ТП 904-1-52.83-КЖ-1 Общие данные (начало)
ТП 904-1-52.83-КЖ-2 Общие данные (продолжение)
ТП 904-1-52.83-КЖ-3 Общие данные (окончание)
ТП 904-1-52.83-КЖ-4 Схема расположения элементов фундаментов для 4К-120А
ТП 904-1-52.83-КЖ-5 Схема расположения элементов фундаментов для 2К-120А
ТП 904-1-52.83-КЖ-6 Фундаменты ФМ1,ФМ4,ФМ5,ФМ8
ТП 904-1-52.83-КЖ-7 Фундаменты ФМ2,ФМ3,ФМ6,ФМ7
ТП 904-1-52.83-КЖ-8 Схемы расположения колонн, балок покрытия, плит покрытия и перекрытия (начало)
ТП 904-1-52.83-КЖ-9 Схемы расположения колонн, балок покрытия, плит покрытия и перекрытия (окончание)
ТП 904-1-52.83-КЖ-10 Схемы расположения стеновых панелей
ТП 904-1-52.83-КЖ-11 Фрагменты 1-12
ТП 904-1-52.83-КЖ-12 Фундаменты ФОМ1,ФОМ2. Спецификация
ТП 904-1-52.83-КЖ-13 Фундаменты ФОМ1,ФОМ2. Общий вид
ТП 904-1-52.83-КЖ-14 Фундаменты ФОМ1,ФОМ2. Разрезы 1-1-8-8. Общий вид
ТП 904-1-52.83-КЖ-15 Фундаменты ФОМ1,ФОМ2. Ведомости деталей и расхода стали. Вид 9-9,10-10. Узлы 1-4. Общий вид
ТП 904-1-52.83-КЖ-16 Фундаменты ФОМ1,ФОМ2. ФОМ1. Схема армирования
ТП 904-1-52.83-КЖ-17 Фундаменты ФОМ1,ФОМ2. ФОМ2. Узлы 4,5. Схема армирования
ТП 904-1-52.83-КЖ-18 Фундаменты ФОМ1,ФОМ2. Разрезы 1-1-9-9. Схема армирования
ТП 904-1-52.83-КЖ-19 Монолитный приямок ПРм1. Общий вид
ТП 904-1-52.83-КЖ-20 Монолитный приямок ПРм1. Схема армирования
ТП 904-1-52.83-КЖ-21 Схемы расположения элементов канала КН1 для 4К-120А (начало)
ТП 904-1-52.83-КЖ-22 Схемы расположения элементов канала КН1 для 4К-120А (окончание)
ТП 904-1-52.83-КЖ-23 Схемы расположения элементов канала КН1 для 2К-120А
ТП 904-1-52.83-КЖ-24 Сечения 1-1-13-13. Спецификация
ТП 904-1-52.83-КЖ-25 Спецификация к каналам КЛМ1-КЛМ4, участкам монолитным УМ1-УМ3
ТП 904-1-52.83-КЖ-26 Спецификация к участкам монолитным УМ4-УМ6. Ведомость деталей и расхода стали
ТП 904-1-52.83-КЖ-27 Каналы КЛМ1,КЛМ2. Участок монолитный УМ1
ТП 904-1-52.83-КЖ-28 Каналы КЛМ3,КЛМ4. Участки монолитные УМ2-УМ6
ТП 904-1-52.83-КЖ-29 Канал КЛМ5 для 4К-120А. Общий вид (начало)
ТП 904-1-52.83-КЖ-30 Канал КЛМ5 для 4К-120А. Общий вид (продолжение)
ТП 904-1-52.83-КЖ-31 Канал КЛМ5 для 4К-120А. Общий вид (окончание)
ТП 904-1-52.83-КЖ-32 Канал КЛМ5 для 4К-120А. Схема армирования (начало)
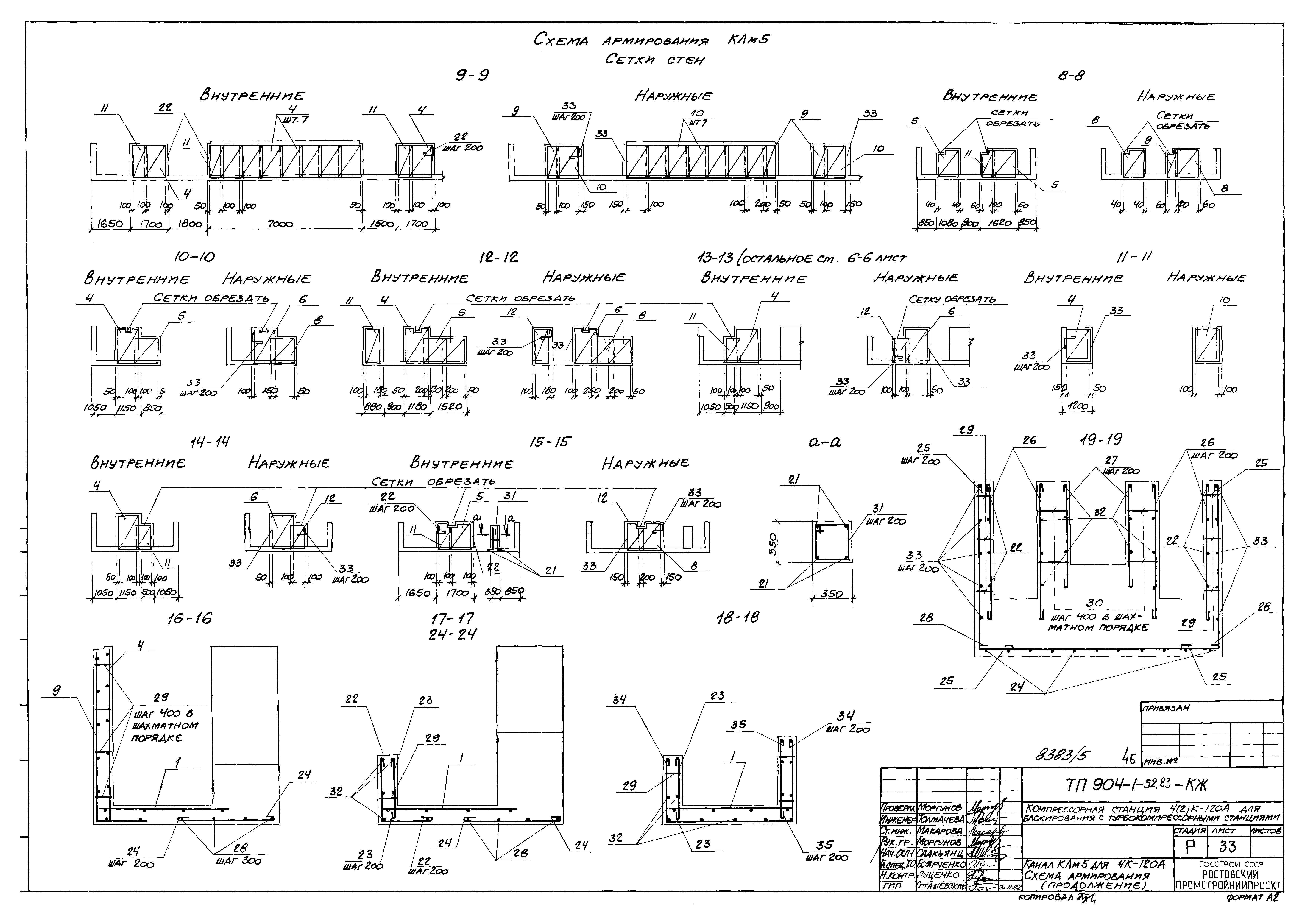
ТП 904-1-52.83-КЖ-33 Канал КЛМ5 для 4К-120А. Схема армирования (продолжение)
ТП 904-1-52.83-КЖ-34 Канал КЛМ5 для 4К-120А. Схема армирования (окончание)
ТП 904-1-52.83-КЖ-35 Канал КЛМ5 для 2К-120А. Общий вид (начало)
ТП 904-1-52.83-КЖ-36 Канал КЛМ5 для 2К-120А. Общий вид (окончание)
ТП 904-1-52.83-КЖ-37 Канал КЛМ5 для 2К-120А. Схема армирования (начало)
ТП 904-1-52.83-КЖ-38 Канал КЛМ5 для 2К-120А. Схема армирования (окончание)
ТП 904-1-52.83-КЖ-39 Каналы КЛМ6-КЛМ9, участки монолитные УМ7-УМ9 для 4К-120А. Спецификация
ТП 904-1-52.83-КЖ-40 Каналы КЛМ6-КЛМ9 для 4К-120А. Общий вид
ТП 904-1-52.83-КЖ-41 Каналы КЛМ6-КЛМ8 для 4К-120А. Схема армирования
ТП 904-1-52.83-КЖ-42 Схема армирования канала КЛМ9, участки монолитные УМ7-УМ9 для 4К-120А
ТП 904-1-52.83-КЖ-43 Каналы КЛМ6,КЛМ7 для 3К-120А (начало)
ТП 904-1-52.83-КЖ-44 Каналы КЛМ6,КЛМ7 для 3К-120А (окончание)
ТП 904-1-52.83-КЖ-45 Схема расположения элементов колодцев К1,К2
ТП 904-1-52.83-КМ Конструкции металлические
ТП 904-1-52.83-КМ-1 Общие данные
ТП 904-1-52.83-КМ-2 Техническая спецификация металла на объект (начало) 4К-120А
ТП 904-1-52.83-КМ-3 Техническая спецификация металла на объект (окончание) 4К-120А
ТП 904-1-52.83-КМ-4 Техническая спецификация металла на лестницы 4К-120А
ТП 904-1-52.83-КМ-5 Техническая спецификация металла на объект (начало) 2К-120А
ТП 904-1-52.83-КМ-6 Техническая спецификация металла на объект (окончание) 2К-120А
ТП 904-1-52.83-КМ-7 Техническая спецификация металла на лестницы 2К-120А
ТП 904-1-52.83-КМ-8 Схема расположения балок и щитов вокруг компрессора
ТП 904-1-52.83-КМ-9 Схема расположения подвесных путей. Площадка на отм. 2.400. Схема расположения балок на отм. 4.640,4.800
ТП 904-1-52.83-КМ-10 Схема расположения кронштейнов
ТП 904-1-52.83-КМ-11 Площадка на отм. 3.000. Схема расположения пожарной лестницы
ТП 904-1-52.83-КМ-12 Схема расположения опор трубопровода. Щиты Щ1-Щ6
ТП 904-1-52.83-ВК Внутренние водопровод и канализация
ТП 904-1-52.83-ВК-1 Общие данные
ТП 904-1-52.83-ВК-2 План на отм. 0.000 для 4К-120А
ТП 904-1-52.83-ВК-3 План на отм. 0.000 для 2К-120А
ТП 904-1-52.83-ВК-4 Схемы систем В1,Т3,К1,К3
ТП 904-1-52.83-ОВ-1 Общие данные (начало)
ТП 904-1-52.83-ОВ-2 Общие данные (продолжение)
ТП 904-1-52.83-ОВ-3 Общие данные (окончание)
ТП 904-1-52.83-ОВ-4 План на отм. 0.000 для 4К-120А
ТП 904-1-52.83-ОВ-5 План на отм. 0.000 для 2К-120А. Разрез 2-2. Схема системы В2
ТП 904-1-52.83-ОВ-6 Разрез 1-1. Система производственного пароснабжения. Узел управления
ТП 904-1-52.83-ОВ-7 Система отопления и теплоснабжения установок А1 для 4К-120А
ТП 904-1-52.83-ОВ-8 Система отопления и теплоснабжения установок А1 для 2К-120А. Узел управления 1
Разработан: Ростовский Промстройниипроект Госстроя СССР
Утверждён:02.03.1983 Минстройдормаш (Minstroydormash 6/83)
Расположен в:Техническая документация Строительство Справочные документы Типовые строительные конструкции, изделия и узлы Общероссийский строительный каталог Промышленные предприятия, здания и сооружения Здания и сооружения санитарно-технические Воздухоснабжение, вентиляция и кондиционирование воздуха Воздухоснабжение
Типовой проект 904-1-52.83Типовой проект 904-1-52.83Типовой проект 904-1-52.83Типовой проект 904-1-52.83Типовой проект 904-1-52.83Типовой проект 904-1-52.83Типовой проект 904-1-52.83Типовой проект 904-1-52.83Типовой проект 904-1-52.83Типовой проект 904-1-52.83Типовой проект 904-1-52.83Типовой проект 904-1-52.83Типовой проект 904-1-52.83Типовой проект 904-1-52.83Типовой проект 904-1-52.83Типовой проект 904-1-52.83Типовой проект 904-1-52.83Типовой проект 904-1-52.83Типовой проект 904-1-52.83Типовой проект 904-1-52.83Типовой проект 904-1-52.83Типовой проект 904-1-52.83Типовой проект 904-1-52.83Типовой проект 904-1-52.83Типовой проект 904-1-52.83Типовой проект 904-1-52.83Типовой проект 904-1-52.83Типовой проект 904-1-52.83Типовой проект 904-1-52.83Типовой проект 904-1-52.83Типовой проект 904-1-52.83Типовой проект 904-1-52.83Типовой проект 904-1-52.83Типовой проект 904-1-52.83Типовой проект 904-1-52.83Типовой проект 904-1-52.83Типовой проект 904-1-52.83Типовой проект 904-1-52.83Типовой проект 904-1-52.83Типовой проект 904-1-52.83Типовой проект 904-1-52.83Типовой проект 904-1-52.83Типовой проект 904-1-52.83Типовой проект 904-1-52.83Типовой проект 904-1-52.83Типовой проект 904-1-52.83Типовой проект 904-1-52.83Типовой проект 904-1-52.83Типовой проект 904-1-52.83Типовой проект 904-1-52.83Типовой проект 904-1-52.83Типовой проект 904-1-52.83Типовой проект 904-1-52.83Типовой проект 904-1-52.83Типовой проект 904-1-52.83Типовой проект 904-1-52.83Типовой проект 904-1-52.83Типовой проект 904-1-52.83Типовой проект 904-1-52.83Типовой проект 904-1-52.83Типовой проект 904-1-52.83Типовой проект 904-1-52.83Типовой проект 904-1-52.83Типовой проект 904-1-52.83Типовой проект 904-1-52.83Типовой проект 904-1-52.83Типовой проект 904-1-52.83Типовой проект 904-1-52.83Типовой проект 904-1-52.83Типовой проект 904-1-52.83Типовой проект 904-1-52.83Типовой проект 904-1-52.83Типовой проект 904-1-52.83Типовой проект 904-1-52.83Типовой проект 904-1-52.83Типовой проект 904-1-52.83Типовой проект 904-1-52.83Типовой проект 904-1-52.83Типовой проект 904-1-52.83Типовой проект 904-1-52.83Типовой проект 904-1-52.83Типовой проект 904-1-52.83Типовой проект 904-1-52.83Типовой проект 904-1-52.83

© 2013 Ёшкин Кот :-) Карта сайта