Скачать Типовой проект 903-1-174 Альбом VIII. Силовое электрооборудование, электроснабжение, связь и сигнализацияДата актуализации: 10.08.2017 Типовой проект 903-1-174
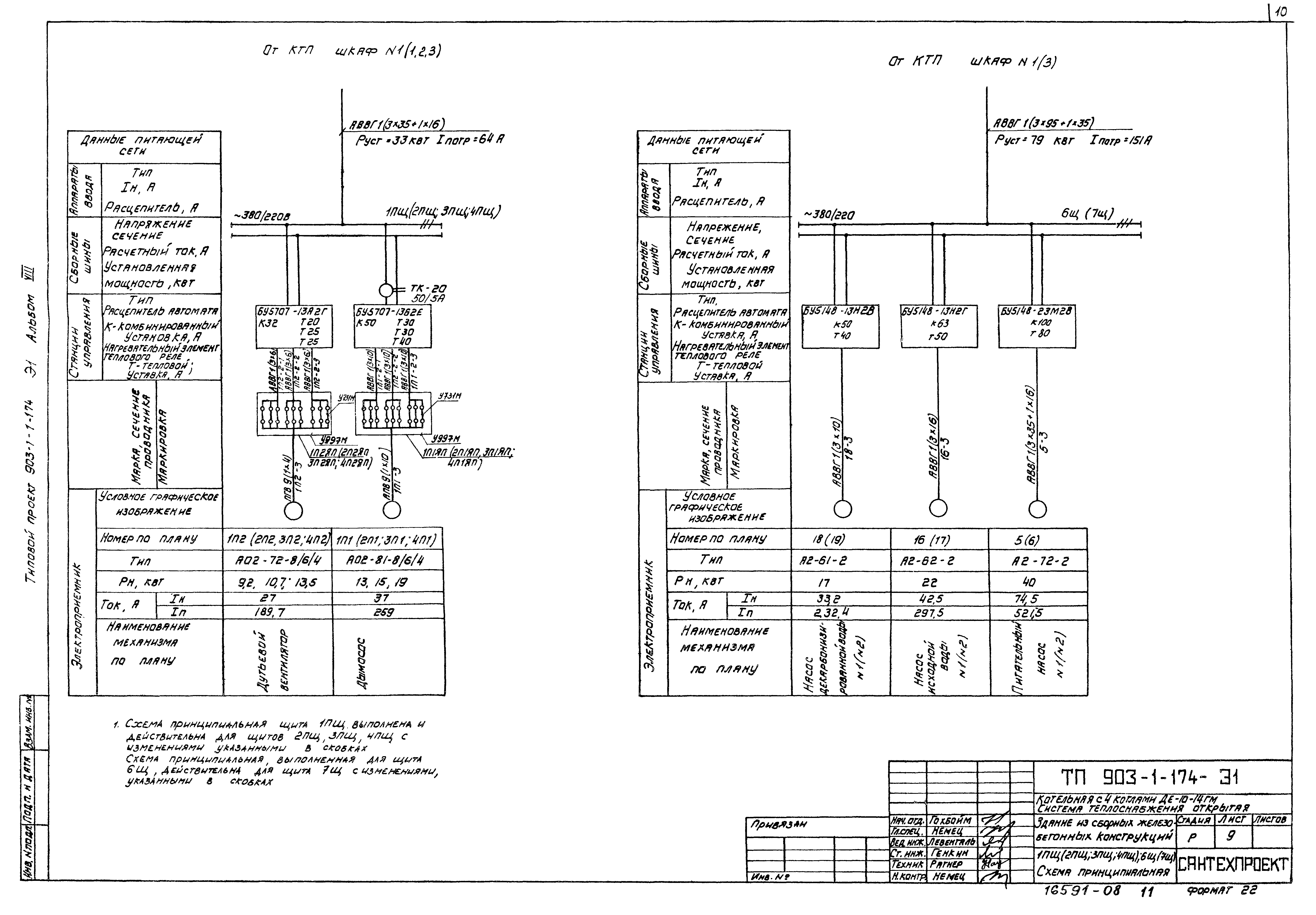
Альбом VIII. Силовое электрооборудование, электроснабжение, связь и сигнализацияОбозначение: | Типовой проект 903-1-174 | Обозначение англ: | 903-1-174 | Статус: | не действует | Название рус.: | Альбом VIII. Силовое электрооборудование, электроснабжение, связь и сигнализация | Дата добавления в базу: | 01.09.2013 | Дата актуализации: | 05.05.2017 | Дата введения: | 01.11.1987 | Оглавление: | ТП 903-1-174-Э1-1 Электроснабжение, силовое электрооборудование, электроосвещение. Общие данные ТП 903-1-174-Э1-2,3 Пояснительная записка ТП 903-1-174-Э1-4 Схема принципиальная питающей сети ТП 903-1-174-Э1-5 Комплектная трансформаторная подстанция 2КТП-400-6(10)-0.4/0.23-124. Армэлектрозавода. Опросный лист для заказа ТП 903-1-174-Э1-6 Трансформаторная подстанция и ЩСУ. Установочный чертеж. Заземление ТП 903-1-174-Э1-7 1ШР. Схема принципиальная ТП 903-1-174-Э1-8 2ШР.3ШР. Схема принципиальная ТП 903-1-174-Э1-9 1ПЩ(2ПЩ,3ПЩ,4ПЩ),6Щ(7Щ). Схема принципиальная ТП 903-1-174-Э1-10 5Щ. Схема принципиальная ТП 903-1-174-Э1-11-13 Кабельный журнал ТП 903-1-174-Э1-14,15 Планы силовой сети ТП 903-1-174-Э1-16,17 Трубозаготовительная ведомость ТП 903-1-174-Э1-18 Таблица заполнения труб кабелями ТП 903-1-174-Э1-19,20 План трубной раскладки ТП 903-1-174-Э1-21 План наружных кабельных сетей ТП 903-1-174-Э1-22 План сети электроосвещения на отм. 0.000 в осях 1-7 ТП 903-1-174-Э1-23 План сети электроосвещения на отм. 0.000 в осях 7-11 ТП 903-1-174-Э1-24 План групповой сети электроосвещения площадок котла ДЕ-10-14ГМ ТП 903-1-174-Э1-25 План сети электроосвещения площадок крупноблочных установок ТП 903-1-174-Э1-26 План и расчетная схема питающей сети электроосвещения. Таблица щитков освещения ТП 903-1-174-Э1-27 План и расчетная схема сети наружного освещения ТП 903-1-174-Э1-28 Устройство связи и сигнализации ТП 903-1-174-Э1-29-31 Уточненная ведомость изделий и материалов, поставляемых заказчиком и предприятием-заказчиком ТП 903-1-174-Э1-32 Уточненная ведомость изделий и материалов, поставляемых Генподрядчиком и электромонтажной организацией ТП 903-1-174-Э1-33 Ведомость объемов электромонтажных и строительных работ ТП 903-1-174-Э1-34 Эскизы общего вида кнопочных постов ПКУ-15 | Разработан: | ГПИ Сантехпроект Госстроя СССР Минмонтажспецстрой СССР Проектный институт №2 ЦНИИпроектстальконструкция Госстроя
| Утверждён: | 20.11.1979 ГПИ Сантехпроект (180)
| Расположен в: |
| Заменяет собой: | | Чем заменён: | |
                                   
|