| ||||||||||||||||||||||||||
Скачать Альбом 84 Дренажи для осушения городских территорий и защиты подземных сооруженийДата актуализации: 10.08.2017
|
| Обозначение: | Альбом 84 |
| Обозначение англ: | 84 |
| Статус: | действует |
| Название рус.: | Дренажи для осушения городских территорий и защиты подземных сооружений |
| Дата добавления в базу: | 01.09.2013 |
| Дата актуализации: | 05.05.2017 |
| Область применения: | Альбом предназначается для проектирования трубчатых горизонтальных дренажей, устраиваемых для понижения уровня грунтовых вод на городской территории и для защиты подземных сооружений от подтопления грунтовыми водами. |
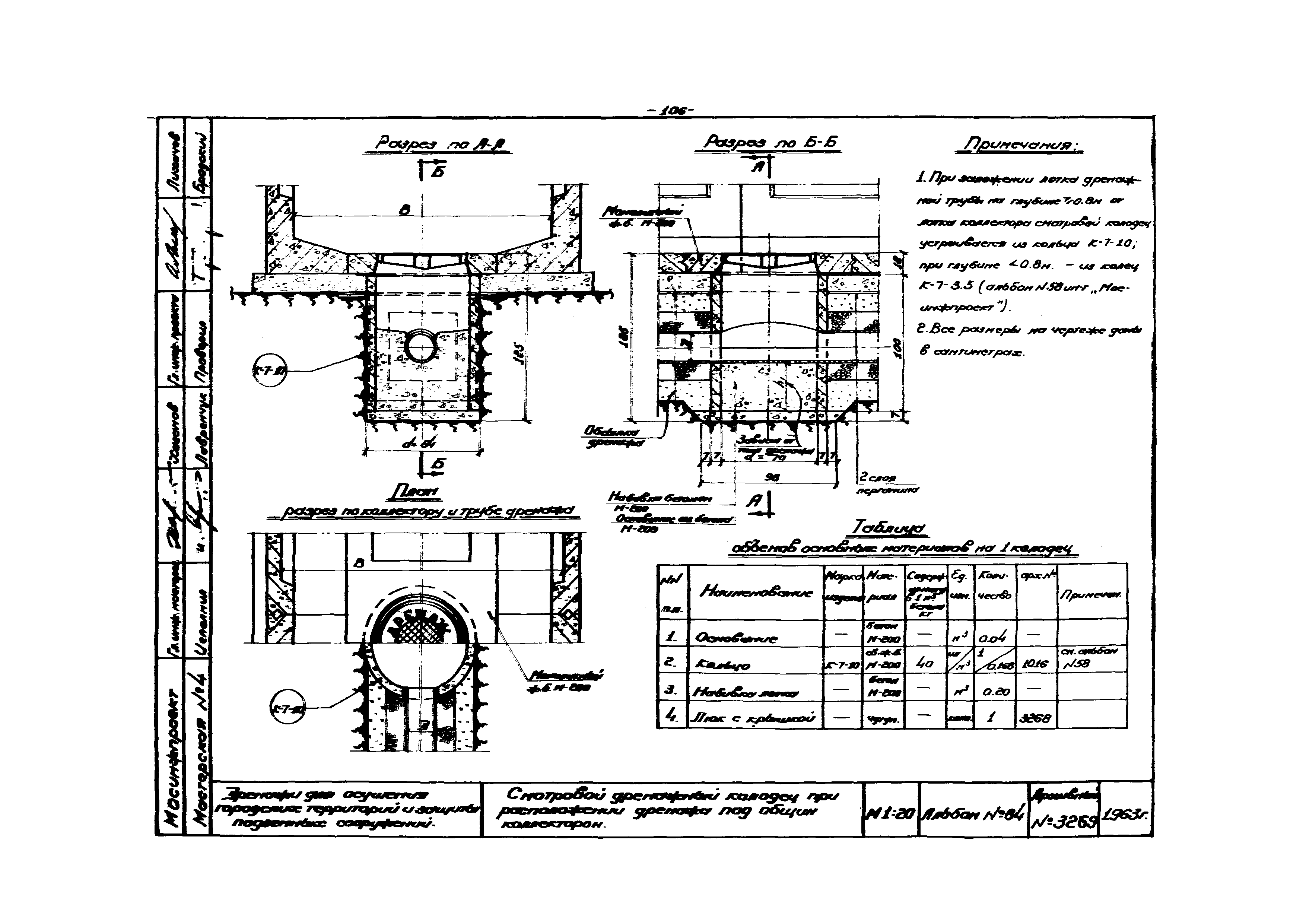
| Оглавление: | Заглавный лист Титульный лист Содержание альбома Продолжение Пояснительная записка Продолжение 1 часть. Расчеты дренажей Гидрогеологические расчеты дренажей Продолжение График № 1 зависимости коэффициентов "μ" и "W" и их соотношении от коэффициента фильтрации "К" График № 2 для определения радиуса депрессии кольцевых и пластовых дренажей График № 3 для определения радиуса депрессии кольцевых и пластовых дренажей График № 4 для определения радиуса депрессии линейных дренажей Вспомогательные графики №5,№6,№7 для расчетов кольцевых дренажей Вспомогательные графики №8,№9,№10 Вспомогательные графики №11 и таблица значений In/1-ехр(-πх/m)/ и коэффициент короткости "α" Гидравлические расчеты дренажей Таблицы для гидравического расчета Гидравлические расчеты дренажей Подбор состава дренажных обсыпок Типы фильтров Границы гранулометрического состава материалов дренажных обсыпок и принятые обозначения График для подбора состава внутреннего слоя обсыпки (тип 1) График для подбора состава внутреннего слоя обсыпки (тип 2) График для подбора состава внутреннего слоя обсыпки (тип 3) График для подбора состава внешнего слоя обсыпки График для подбора состава однослойной обсыпки (для суглинков) График для подбора состава пластового дренажа Таблицы стоимости устройства дренажей Требования к материалам дренажных обсыпок 2 часть. Типовые конструкции А. Дренажи в отдельных траншеях Дренаж несовершенного типа с однослойной обсыпкой прямоугольной формы в траншее с креплениями Дренаж несовершенного типа с однослойной обсыпкой трапецеидальной формы в траншее с креплениями Дренаж несовершенного типа с однослойной обсыпкой прямоугольной формы в траншее с откосами Дренаж несовершенного типа с однослойной обсыпкой трапецеидальной формы в траншее с откосами Дренаж несовершенного типа с однослойной обсыпкой шестигранной формы в траншее с откосами Дренаж несовершенного типа с неполной 2х слойной обсыпкой прямоугольной формы в траншее с креплениями Дренаж несовершенного типа с неполной 2х слойной обсыпкой трапецеидальной формы в траншее с креплениями Дренаж несовершенного типа с неполной 2х слойной обсыпкой прямоугольной формы в траншее с откосами Дренаж несовершенного типа с неполной 2х слойной обсыпкой трапецеидальной формы в траншее с откосами Дренаж несовершенного типа с неполной 2х слойной обсыпкой шестигранной формы в траншее с откосами Дренаж несовершенного типа с 2х слойной обсыпкой прямоугольной формы в траншее с креплениями Дренаж несовершенного типа с 2х слойной обсыпкой прямоугольной формы в траншее с откосами Дренаж несовершенного типа с 2х слойной обсыпкой трапецеидальной формы в траншее с откосами Дренаж совершенного типа с однослойной обсыпкой прямоугольной формы в траншее с креплениями Дренаж совершенного типа с однослойной обсыпкой трапецеидальной формы в траншее с креплениями Дренаж совершенного типа с однослойной обсыпкой прямоугольной формы в траншее с откосами Дренаж несовершенного типа с однослойной обсыпкой трапецеидальной формы в траншее с откосами Дренаж несовершенного типа с 2х слойной обсыпкой прямоугольной формы в траншее с креплениями Дренаж несовершенного типа с 2х слойной обсыпкой трапецеидальной формы в траншее с креплениями Дренаж совершенного типа с 2х слойной обсыпкой прямоугольной формы в траншее с откосами Дренаж несовершенного типа с 2х слойной обсыпкой трапецеидальной формы в траншее с откосами Дренаж совершенного типа из керамических канализационных труб с однослойной обсыпкой трапецеидальной формы в траншее с креплениями Дренаж совершенного типа из керамических канализационных труб с однослойной обсыпкой трапецеидальной формы в траншее с откосами Дренаж совершенного типа из керамических канализационных труб с однослойной обсыпкой прямоугольной формы в траншее с креплениями Дренаж совершенного типа из керамических канализационных труб с однослойной обсыпкой прямоугольной формы в траншее с откосами Б. Дренажи в совмещенных с водостоком траншеях Дренаж с однослойной обсыпкой прямоугольной формы, расположенный над водостоком Дренаж с однослойной обсыпкой трапецеидальной формы, расположенный над водостоком Дренаж с неполной 2х слойной обсыпкой прямоугольной формы, расположенный над водостоком Дренаж с неполной 2х слойной обсыпкой трапецеидальной формы, расположенный над водостоком Дренаж с 2х слойной обсыпкой прямоугольной формы, расположенный над водостоком Дренаж с 2х слойной обсыпкой трапецеидальной формы, расположенный над водостоком В. Дренажные устройства на водостоках Дренажные устройства с однослойной обсыпкой трапецеидальной формы на водостоках из круглых железобетонных труб с плоскими торцами Дренажные устройства с неполной 2х слойной обсыпкой трапецеидальной формы на водостоках из круглых железобетонных труб с плоскими торцами Дренажные устройства с 2х слойной обсыпкой трапецеидальной формы на водостоках из круглых железобетонных труб с плоскими торцами Дренажные устройства с однослойной обсыпкой прямоугольной формы на водостоках из круглых железобетонных труб с раструбами Дренажные устройства с неполной 2х слойной обсыпкой прямоугольной формы на водостоках из круглых железобетонных труб с раструбами Г. Дренажи коллекторов подземных сооружений Дренаж коллектора подземных сооружений (расположенный по оси) несовершенного типа с однослойной обсыпкой прямоугольной формы без пласта Дренаж коллектора подземных сооружений (расположенный по оси) несовершенного типа с однослойной обсыпкой трапецеидальной формы без пласта Дренаж коллектора подземных сооружений (расположенный по оси) несовершенного типа с однослойной обсыпкой прямоугольной формы с пластом Дренаж коллектора подземных сооружений (расположенный по оси) несовершенного типа с однослойной обсыпкой трапецеидальной формы с пластом Дренаж коллектора подземных сооружений (расположенный по оси) несовершенного типа с 2х слойной обсыпкой прямоугольной формы с пластом Дренаж коллектора подземных сооружений (расположенный по оси) несовершенного типа с 2х слойной обсыпкой трапецеидальной формы с пластом Дренаж коллектора подземных сооружений (расположенный по оси) совершенного типа с 2х слойной обсыпкой прямоугольной формы с пластом Дренаж коллектора подземных сооружений (расположенный по оси) совершенного типа с 2х слойной обсыпкой трапецеидальной формы с пластом Дренаж коллектора подземных сооружений (расположенный сбоку) несовершенного типа с однослойной обсыпкой прямоугольной формы без пласта Дренаж коллектора подземных сооружений (расположенный сбоку) несовершенного типа с однослойной обсыпкой трапецеидальной формы без пласта Дренаж коллектора подземных сооружений (расположенный сбоку) несовершенного типа с однослойной обсыпкой прямоугольной формы с пластом Дренаж коллектора подземных сооружений (расположенный сбоку) несовершенного типа с однослойной обсыпкой трапецеидальной формы с пластом Дренаж коллектора подземных сооружений (расположенный сбоку) несовершенного типа с 2х слойной обсыпкой прямоугольной формы с пластом Дренаж коллектора подземных сооружений (расположенный сбоку) несовершенного типа с 2х слойной обсыпкой трапецеидальной формы с пластом Дренаж коллектора подземных сооружений (расположенный сбоку) совершенного типа с 2х слойной обсыпкой прямоугольной формы с пластом Дренаж коллектора подземных сооружений (расположенный сбоку) совершенного типа с 2х слойной обсыпкой трапецеидальной формы с пластом Схема размеров и таблица объемов для дренажей коллекторов подземных сооружений, прокладываемых в траншее с креплениями Д. Дренажи каналов теплосети Дренаж канала теплосети несовершенного типа с однослойной обсыпкой прямоугольной формы тез пласта Дренаж канала теплосети несовершенного типа с однослойной обсыпкой трапецеидальной формы без пласта Дренаж канала теплосети несовершенного типа с однослойной обсыпкой прямоугольной формы с пластом Дренаж канала теплосети несовершенного типа с однослойной обсыпкой трапецеидальной формы с пластом Дренаж канала теплосети несовершенного типа с 2х слойной обсыпкой прямоугольной формы с пластом Дренаж канала теплосети несовершенного типа с 2х слойной обсыпкой трапецеидальной формы с пластом Дренаж канала теплосети совершенного типа с 2х слойной обсыпкой прямоугольной формы с пластом Дренаж канала теплосети совершенного типа с 2х слойной обсыпкой трапецеидальной формы с пластом Схема размеров и таблица объемов для дренажей каналов теплосети, прокладываемых в траншее с креплениями Е. Пристенные дренажи Пристенный дренаж прямоугольной формы Пристенный дренаж трапецеидальной формы Ж. Детали дренажей Трубы асбестоцементные, водоприемные отверстия и заделка стыков Трубы керамические канализационные, водоприемные отверстия и заделка стыков Смотровой дренажный колодец Люк чугунный для смотрового дренажного колодца. Внутренняя предохранительная крышка. Обратный клапан Смотровой дренажный колодец при расположении дренажа по общим коллекторам З. Принципиальные схемы Принципиальная схема совмещенной прокладки водостока и дренажа с устройством фильтрующей призмы Принципиальная схема совмещенной прокладки водостока и дренажа без устройства фильтрующей призмы Пластовый дренаж канала теплосети Принципиальная схема устройства пластового дренажа для защиты подвального помещения или подполья здания с ленточными фундаментами Принципиальная схема устройства пластового дренажа для защиты подвального помещения или подполья здания с поперечными ленточными фундаментами Принципиальная схема дренажа подполья здания с фундаментами на свайных ростверках Принципиальная схема дренажа пешеходных тоннелей |
| Разработан: | Мосинжпроект |
| Утверждён: | 12.12.1963 Мосинжпроект (Mosinzhproject 289) |
| Расположен в: |

















































































































