Скачать Типовой проект 902-3-48.86 Альбом II. Технологическая, санитарно-техническая, архитектурно-строительная частиДата актуализации: 10.08.2017 Типовой проект 902-3-48.86
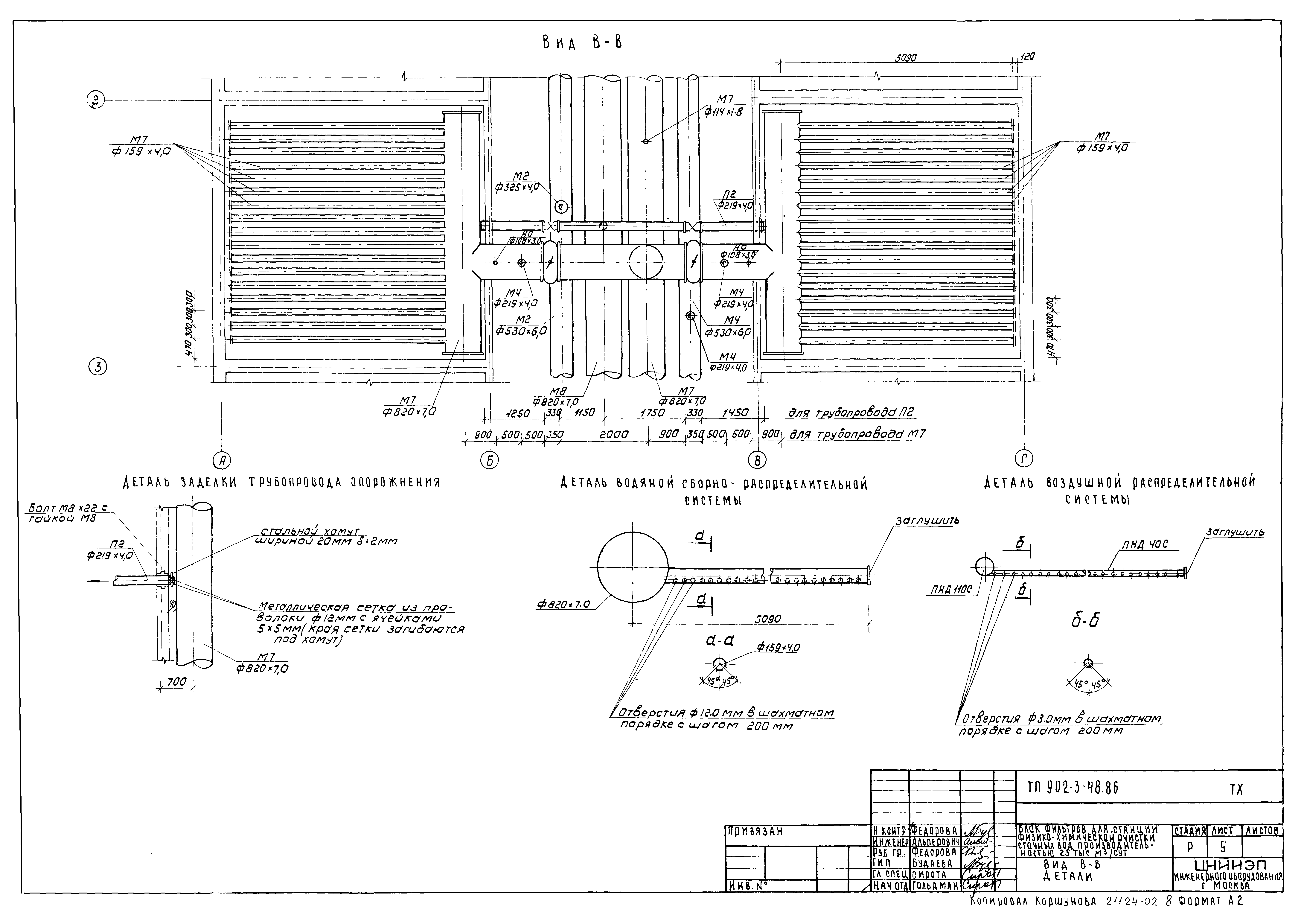
Альбом II. Технологическая, санитарно-техническая, архитектурно-строительная частиОбозначение: | Типовой проект 902-3-48.86 | Обозначение англ: | 902-3-48.86 | Статус: | не определен законодательством | Название рус.: | Альбом II. Технологическая, санитарно-техническая, архитектурно-строительная части | Дата добавления в базу: | 01.09.2013 | Дата актуализации: | 05.05.2017 | Дата введения: | 12.12.1985 | Оглавление: | ТП 902-3-48.86 Содержание альбома ТП 902-3-48.86-ТХ Технологическая часть ТП 902-3-48.86-ТХ-1 Общие данные ТП 902-3-48.86-ТХ-2 План ТП 902-3-48.86-ТХ-3 Разрезы 1-1;2-2 ТП 902-3-48.86-ТХ-4 Вид А-А. Вид Б-Б ТП 902-3-48.86-ТХ-5 Вид В-В. Детали ТП 902-3-48.86-ТХ-6 Разрез 3-3 ТП 902-3-48.86-ТХ-7 Разрезы 4-4;5-5 ТП 902-3-48.86-ТХ-8 Аксонометрические схемы трубопроводов М2;М4 ТП 902-3-48.86-ТХ-9 Аксонометрические схемы трубопроводов М7;М8 ТП 902-3-48.86-ТХ-10 Аксонометрические схемы трубопроводов АО;П2 ТП 902-3-48.86-ОВ Отопление и вентиляция ТП 902-3-48.86-ОВ-1 Общие данные ТП 902-3-48.86-ОВ-2 План на отм. -1.250 ТП 902-3-48.86-ОВ-3 План на отм. 2.200 ТП 902-3-48.86-ОВ-4 Схема системы отопления. Схемы систем вентиляции В1;ВЕ1-ВЕ4 ТП 902-3-48.86-ОВ-5 Установка системы В1 ТП 902-3-48.86-ОВН-1 Воздуховод из асбестоцементных листов. Узлы соединений ТП 902-3-48.86-ОВН-2 Конструкция трубопроводов ТП 902-3-48.86-АР Архитектурные решения ТП 902-3-48.86-АР-1 Общие данные ТП 902-3-48.86-АР-2 Разрез 1-1;2-2. План на отм. -1.250 ТП 902-3-48.86-АР-3 План на отм. 2.200 ТП 902-3-48.86-АР-4 Фасады 1-8;8-1;А-Г;Г-А. Схема заполнения оконных проемов ТП 902-3-48.86-АР-5 План и экспликация полов. Ведомость отделки помещений. Ведомость проемов ворот и дверей. Спецификация элементов заполнения проемов. Ведомость и спецификация перемычек ТП 902-3-48.86-КЖ Конструкции железобетонные ТП 902-3-48.86-КЖ-1 Общие данные ТП 902-3-48.86-КЖ-2 Схема расположения фундаментов и подпорных стен ТП 902-3-48.86-КЖ-3 Схема расположения фундаментов и подпорных стен. Разрезы 1-1÷7-7 ТП 902-3-48.86-КЖ-4 Схема расположения фундаментов и подпорных стен. Разрезы 8-8÷15-15 ТП 902-3-48.86-КЖ-5 Фильтры. Схемы расположения стеновых панелей и лотков ТП 902-3-48.86-КЖ-6 Фильтры. Схемы расположения стеновых панелей и лотков. Разрезы 1-1÷5-5 ТП 902-3-48.86-КЖ-7 Фильтры. Схемы расположения стеновых панелей и лотков. Узлы 1-3. Разрезы 6-6÷11-11 ТП 902-3-48.86-КЖ-8 Фильтры. Днище. Опалубочный чертеж ТП 902-3-48.86-КЖ-9 Фильтры. Днище. Армирование ТП 902-3-48.86-КЖ-10 Фильтры. Монолитные участки стен. Опалубочный чертеж ТП 902-3-48.86-КЖ-11 Фильтры. Монолитные участки стен. Армирование ТП 902-3-48.86-КЖ-12 Фильтры. Схемы расположения балок, плит покрытия и щитов на отм. 3.250 ТП 902-3-48.86-КЖ-13 Фильтры. Схемы расположения балок, плит покрытия и щитов на отм. 3.250. Узлы 1-7 ТП 902-3-48.86-КЖ-14 Схемы расположения плит покрытия на отм. 2.640, 6.600 ТП 902-3-48.86-КМ Конструкции металлические ТП 902-3-48.86-КМ-1 Общие данные (начало). Техническая спецификация стали ТП 902-3-48.86-КМ-2 Общие данные (продолжение). Техническая спецификация стали на типовые конструкции ТП 902-3-48.86-КМ-3 Общие данные (окончание). Ведомость металлоконструкций по видам профилей ТП 902-3-48.86-КМ-4 Схема расположения подвесного пути ТП 902-3-48.86-КМ-5 Схема расположения металлических балок площадок на отм. 0.000; 2.200. Разрез 1-1 ТП 902-3-48.86-КМ-6 Схема расположения металлических балок площадок на отм. 0.000; 2.200. Разрезы 2-2;3-3. Узлы 1-7 | Разработан: | ЦНИИЭП иженерного оборудования
| Утверждён: | 05.11.1984 Госгражданстрой (Gosgrazhdanstroy 320)
| Расположен в: |
|
                                           
|