Информационная система
«Ёшкин Кот»

Скачать базу одним архивом
Скачать обновления
История создания базы
Карта сайта

Скачать Типовой проект 902-3-46.85 Альбом IV. Электротехническая часть. Автоматизация

Дата актуализации: 10.08.2017

Типовой проект 902-3-46.85

Альбом IV. Электротехническая часть. Автоматизация

Обозначение: Типовой проект 902-3-46.85
Обозначение англ: 902-3-46.85
Статус:не определен законодательством
Название рус.:Альбом IV. Электротехническая часть. Автоматизация
Дата добавления в базу:01.09.2013
Дата актуализации:05.05.2017
Дата введения:05.10.1985
Оглавление:ТП 902-3-46.85-ЭМ Электрическая часть
ТП 902-3-46.85-ЭМ-1 Общие данные
ТП 902-3-46.85-ЭМ-2 Схема электрическая принципиальная распределительной сети ~380/220 В
ТП 902-3-46.85-ЭМ-3 Схема электрическая принципиальная управления задвижками М1-М12;М13-М16;М17-М24;М25-М32
ТП 902-3-46.85-ЭМ-4 Схема подключения электрооборудования. Шкафы РТ301,РТ302,РТ303,РТ304
ТП 902-3-46.85-ЭМ-5 Схема подключения электрооборудования. Пускатель КМВ-1. Сводка кабелей и проводов, учтенных кабельным журналом
ТП 902-3-46.85-ЭМ-6 Кабельный журнал. Лист 1
ТП 902-3-46.85-ЭМ-7 Кабельный журнал. Лист 2
ТП 902-3-46.85-ЭМ-8 Кабельный журнал. Лист 3
ТП 902-3-46.85-ЭМ-9 Размещение электрооборудования и прокладка кабеля. Спецификация
ТП 902-3-46.85-ЭМ-10 Размещение электрооборудования и прокладка кабеля. План на отм:-1.150;0.000;1.450;2.890
ТП 902-3-46.85-ЭМ-11 Размещение электрооборудования и прокладка кабеля. План на отм:-1.150;0.000;1.450;2.890
ТП 902-3-46.85-АТХ Автоматизация и технологический контроль
ТП 902-3-46.85-АТХ-1 Общие данные
ТП 902-3-46.85-АТХ-2 Схема функциональная технологического процесса
ТП 902-3-46.85-АТХ-3 Схема подключения приборов и устройств технологического контроля
ТП 902-3-46.85-АТХ-4 Размещение приборов и устройств технологического контроля. Спецификация
ТП 902-3-46.85-АТХ-5 Размещение приборов и устройств технологического контроля и прокладка кабеля. План на отм: 0.000;1.450
ТП 902-3-46.85-ЭО Электрическое освещение
ТП 902-3-46.85-ЭО-1 Общие данные
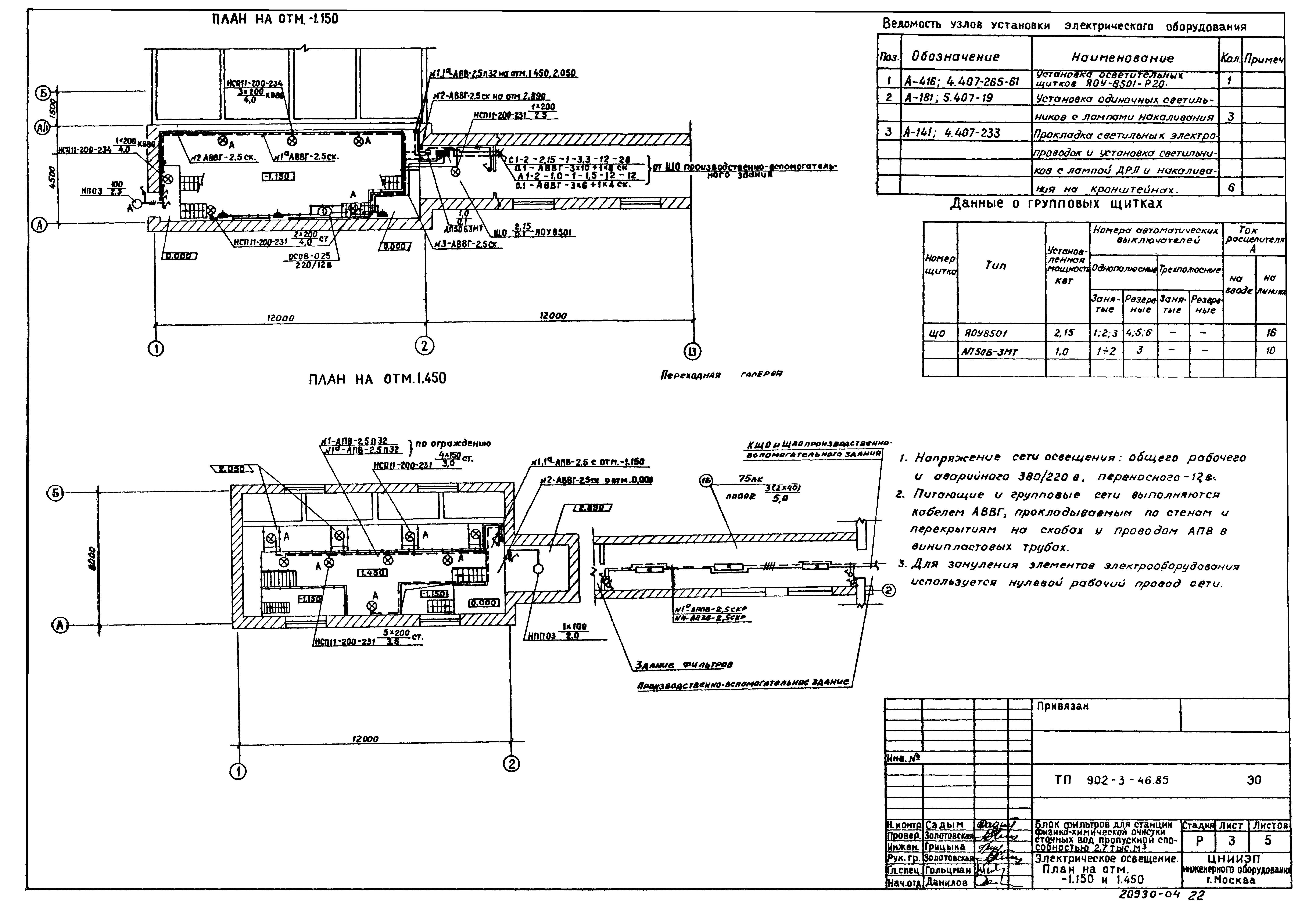
ТП 902-3-46.85-ЭО-2 Электрическое освещение. План на отм:-1.150 и 1.450
ТП 902-3-46.85-ЭО-3 Электрическое освещение. План на отм:-1.150 и 1.450
ТП 902-3-46.85-ЭО-4 Электрическое освещение. План на отм:-1.150 и 1.450
ТП 902-3-46.85-ЭО-5 Электрическое освещение. План на отм:-1.150 и 1.450
Разработан: ЦНИИЭП иженерного оборудования
Утверждён:21.08.1985 Госгражданстрой (Gosgrazhdanstroy 252)
Расположен в:Техническая документация Строительство Справочные документы Типовые строительные конструкции, изделия и узлы Общероссийский строительный каталог Промышленные предприятия, здания и сооружения Здания и сооружения санитарно-технические Канализация Сооружения для очистки производственных сточных вод Станции физико-химической очистки
Типовой проект 902-3-46.85Типовой проект 902-3-46.85Типовой проект 902-3-46.85Типовой проект 902-3-46.85Типовой проект 902-3-46.85Типовой проект 902-3-46.85Типовой проект 902-3-46.85Типовой проект 902-3-46.85Типовой проект 902-3-46.85Типовой проект 902-3-46.85Типовой проект 902-3-46.85Типовой проект 902-3-46.85Типовой проект 902-3-46.85Типовой проект 902-3-46.85Типовой проект 902-3-46.85Типовой проект 902-3-46.85Типовой проект 902-3-46.85Типовой проект 902-3-46.85Типовой проект 902-3-46.85Типовой проект 902-3-46.85Типовой проект 902-3-46.85Типовой проект 902-3-46.85Типовой проект 902-3-46.85Типовой проект 902-3-46.85Типовой проект 902-3-46.85

© 2013 Ёшкин Кот :-) Карта сайта