Скачать Типовой проект 902-2-346 Альбом VII. Нестандартизированное оборудование. Затворы щитовые, установка сигнализатора уровня осадка и фасонные частиДата актуализации: 10.08.2017 Типовой проект 902-2-346
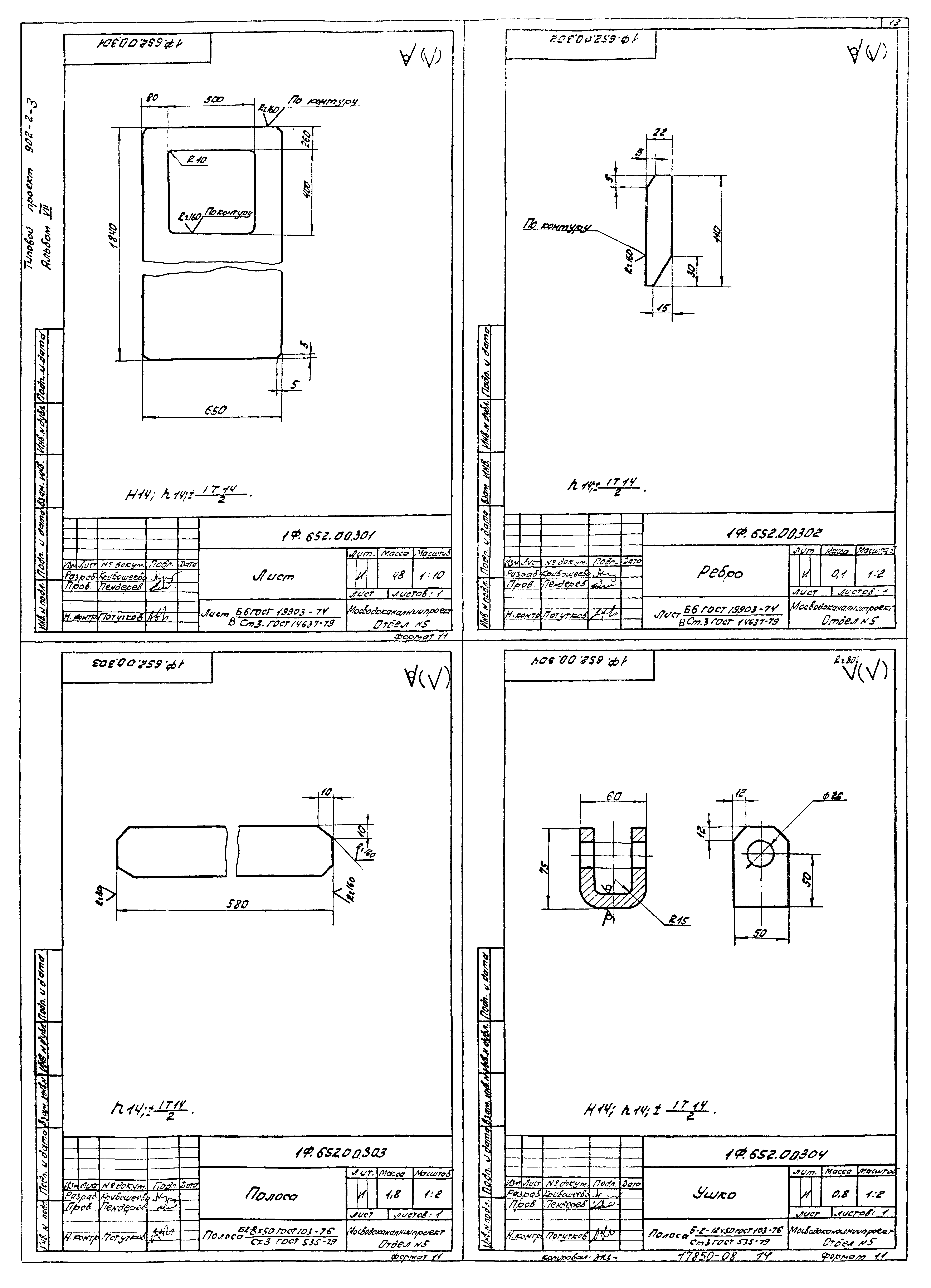
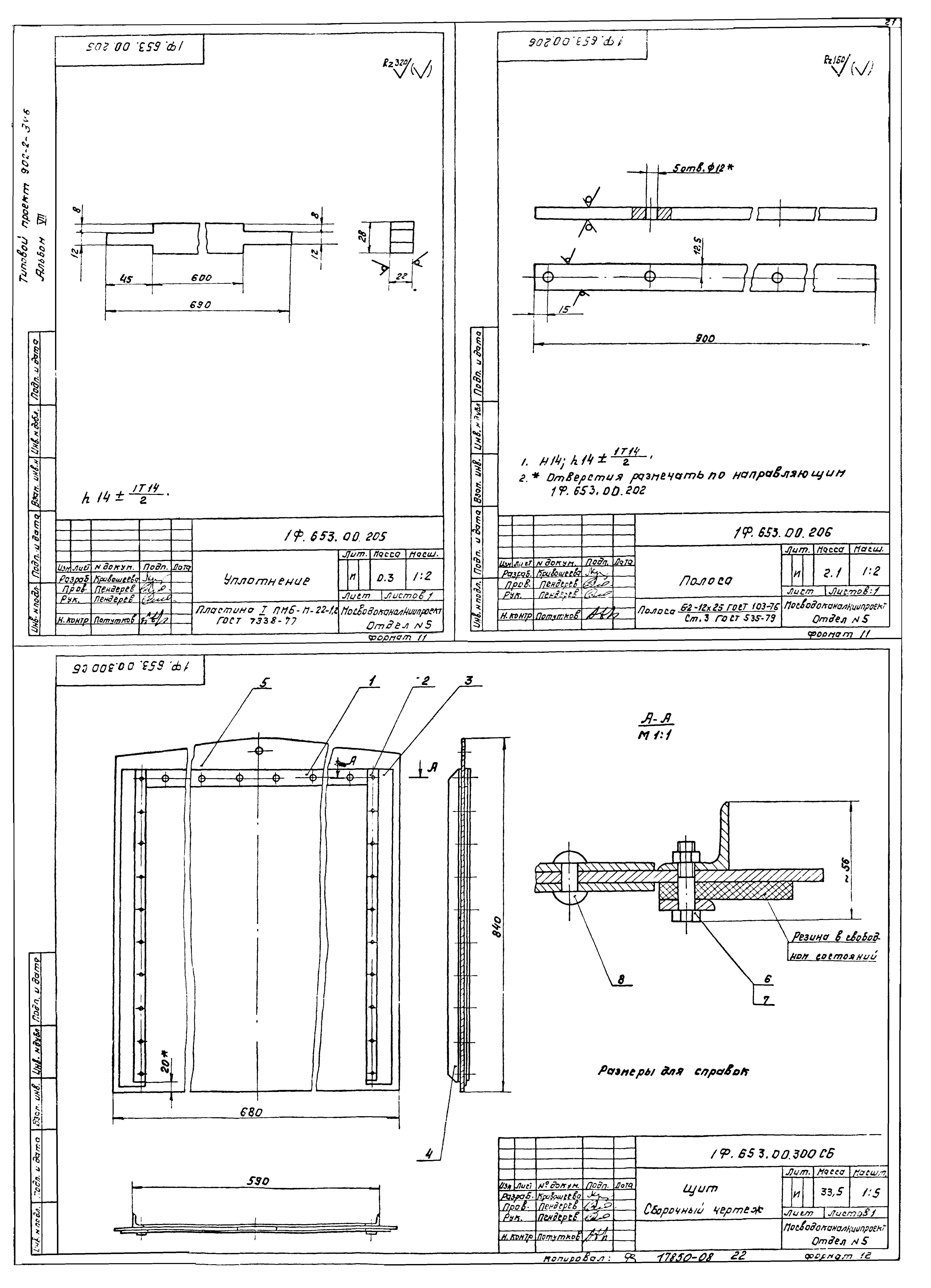
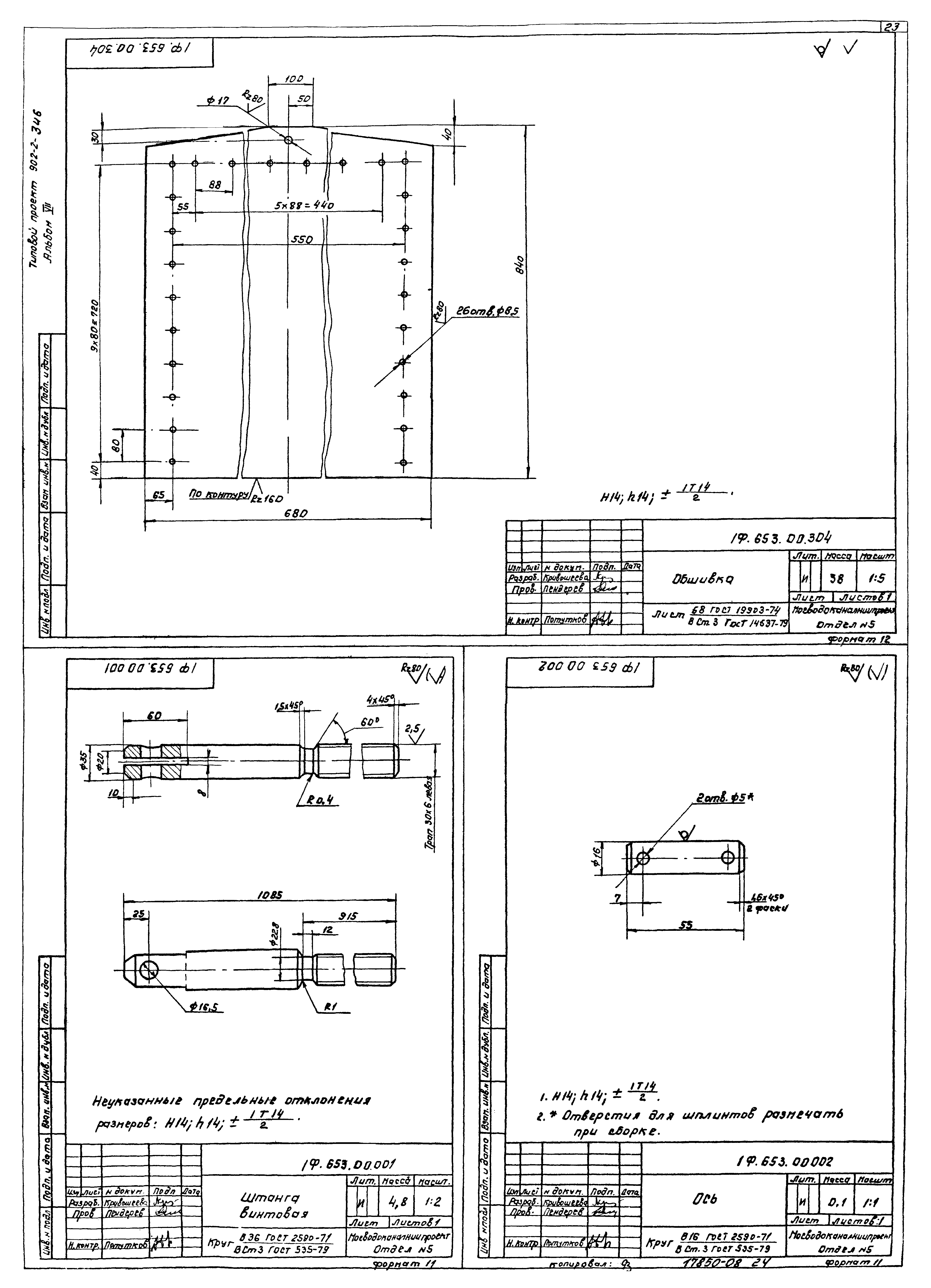
Альбом VII. Нестандартизированное оборудование. Затворы щитовые, установка сигнализатора уровня осадка и фасонные частиОбозначение: | Типовой проект 902-2-346 | Обозначение англ: | 902-2-346 | Статус: | не действует | Название рус.: | Альбом VII. Нестандартизированное оборудование. Затворы щитовые, установка сигнализатора уровня осадка и фасонные части | Дата добавления в базу: | 01.09.2013 | Дата актуализации: | 05.05.2017 | Оглавление: | ТП 902-2-346 Титульный лист ТП 902-2-346 Содержание альбома ТП 902-2-346 1Ф.652.00.000 СБ Затвор плоский регулирующий с водосливом шириной 500 мм. Сборочный чертеж. Лист 1 ТП 902-2-346 1Ф.652.00.000 СБ Затвор плоский регулирующий с водосливом шириной 500 мм. Сборочный чертеж. Лист 2 ТП 902-2-346 1Ф.652.00.000 Затвор плоский регулирующий с водосливом шириной 500 мм. Спецификация. Лист 1-2 ТП 902-2-346 1Ф.652.00.100 СБ Подпятник. Сборочный чертеж ТП 902-2-346 1Ф.652.00.100 Подпятник. Спецификация. Лист 1-2 ТП 902-2-346 1Ф.652.00.110 СБ Основание. Сборочный чертеж ТП 902-2-346 1Ф.652.00.110 Основание. Спецификация ТП 902-2-346 1Ф.652.00.120 Корпус. Спецификация ТП 902-2-346 1Ф.652.00.120 СБ Корпус. Сборочный чертеж ТП 902-2-346 1Ф.652.00.121 Фланец ТП 902-2-346 1Ф.652.00.122 Фланец ТП 902-2-346 1Ф.652.00.101 Втулка кулачковая ТП 902-2-346 1Ф.652.00.102 Гайка ТП 902-2-346 1Ф.652.00.103 Кольцо ТП 902-2-346 1Ф.652.00.200 СБ Рама затвора. Сборочный чертеж ТП 902-2-346 1Ф.652.00.200 Рама затвора. Спецификация. Лист 1-2 ТП 902-2-346 1Ф.652.00.210 СБ Корпус рамы. Сборочный чертеж. ТП 902-2-346 1Ф.652.00.210 Корпус рамы. Спецификация ТП 902-2-346 1Ф.652.00.211 Стенка ТП 902-2-346 1Ф.652.00.212 Направляющая ТП 902-2-346 1Ф.652.00.213 Анкер ТП 902-2-346 1Ф.652.00.201 Анкер ТП 902-2-346 1Ф.652.00.202 Поперечина ТП 902-2-346 1Ф.652.00.203 Вставка ТП 902-2-346 1Ф.652.00.300 Щит с водосливом ТП 902-2-346 1Ф.652.00.301 Лист ТП 902-2-346 1Ф.652.00.302 Ребро ТП 902-2-346 1Ф.652.00.303 Полоса ТП 902-2-346 1Ф.652.00.304 Ушко ТП 902-2-346 1Ф.652.00.400 Колпак ТП 902-2-346 1Ф.652.00.401 Фланец ТП 902-2-346 1Ф.652.00.001 Штанга винтовая ТП 902-2-346 1Ф.652.00.002 Ось ТП 902-2-346 1Ф.653.00.000 СБ Затвор плоский поверхностный 600х800 с ручным приводом. Сборочный чертеж. Лист 1 ТП 902-2-346 1Ф.653.00.000 СБ Затвор плоский поверхностный 600х800 с ручным приводом. Сборочный чертеж. Лист 2 ТП 902-2-346 1Ф.653.00.000 Затвор плоский поверхностный 600х800 с ручным приводом. Спецификация ТП 902-2-346 1Ф.653.00.003 Ограждение ТП 902-2-346 1Ф.653.00.100 СБ Привод ручной. Сборочный чертеж ТП 902-2-346 1Ф.653.00.100 Привод ручной. Спецификация ТП 902-2-346 1Ф.653.00.101 Гайка подъемная ТП 902-2-346 1Ф.653.00.102 Шпилька ТП 902-2-346 1Ф.653.00.103 Пластина ТП 902-2-346 1Ф.653.00.200 Рама затвора. Спецификация. Лист 1-2 ТП 902-2-346 1Ф.653.00.200 СБ Рама затвора. Сборочный чертеж ТП 902-2-346 1Ф.653.00.201 Угольник ТП 902-2-346 1Ф.653.00.202 Направляющая ТП 902-2-346 1Ф.653.00.203 Полоса анкерная ТП 902-2-346 1Ф.653.00.204 Поперечина ТП 902-2-346 1Ф.653.00.205 Уплотнение ТП 902-2-346 1Ф.653.00.206 Полоса ТП 902-2-346 1Ф.653.00.300 СБ Щит. Сборочный чертеж ТП 902-2-346 1Ф.653.00.300 Щит. Спецификация ТП 902-2-346 1Ф.653.00.301 Полоса ТП 902-2-346 1Ф.653.00.302 Уплотнение ТП 902-2-346 1Ф.653.00.303 Стойка ТП 902-2-346 1Ф.653.00.304 Обшивка ТП 902-2-346 1Ф.653.00.001 Штанга винтовая ТП 902-2-346 1Ф.653.00.002 Ось ТП 902-2-346 3Р.73.000 СБ Установка сигнализатора уровня ила с фотосопротивлением. Сборочный чертеж ТП 902-2-346 3Р.73.000 Установка сигнализатора уровня ила с фотосопротивлением. Спецификация ТП 902-2-346 3Р.73.100 СБ Корпус. Сборочный чертеж ТП 902-2-346 3Р.73.100 Корпус. Спецификация ТП 902-2-346 3Р.73.101 Труба ТП 902-2-346 3Р.73.102 Конус ТП 902-2-346 3Р.73.200 Скоба закладная ТП 902-2-346 3Р.73.201 Шпилька ТП 902-2-346 3Р.73.202 Упор ТП 902-2-346 3Р.73.203 Скоба ТП 902-2-346 3Р.73.300 Прижим ТП 902-2-346 3Р.73.301 Полоса ТП 902-2-346 3Р.73.001 Пластина опорная ТП 902-2-346 6С.53.127.000 Тройник L=38º 530х10-325х9 ТП 902-2-346 6С.53.127.001 Патрубок ТП 902-2-346 6С.53.128.000 Тройник 426х9-630х9. Спецификация ТП 902-2-346 6С.53.128.000 СБ Тройник 426х9-630х9. Сборочный чертеж ТП 902-2-346 6С.53.128.001 Патрубок ТП 902-2-346 6С.53.128.002 Конус ТП 902-2-346 6С.53.128.003 Отросток | Разработан: | МосводоканалНИИпроект
| Утверждён: | 01.10.1981 МосводоканалНИИпроект (203)
| Расположен в: |
|
                            
|