Информационная система
«Ёшкин Кот»

Скачать базу одним архивом
Скачать обновления
История создания базы
Карта сайта

Скачать Типовой проект 902-2-346 Альбом I. Технологическая часть

Дата актуализации: 10.08.2017

Типовой проект 902-2-346

Альбом I. Технологическая часть

Обозначение: Типовой проект 902-2-346
Обозначение англ: 902-2-346
Статус:не действует
Название рус.:Альбом I. Технологическая часть
Дата добавления в базу:01.09.2013
Дата актуализации:05.05.2017
Оглавление:ТП 902-2-346-ТХ Общие данные
ТП 902-2-346-ТХ План группы отстойников М1:200
ТП 902-2-346-ТХ Отстойник №1. План, разрез М1:100
ТП 902-2-346-ТХ Распределительная чаша. Планы, разрезы М1:50
ТП 902-2-346-ТХ Иловая камера отстойника №1(№4). Планы, разрезы М1:50
ТП 902-2-346-ТХ Иловая камера отстойника №2(№3). Планы, разрезы М1:50
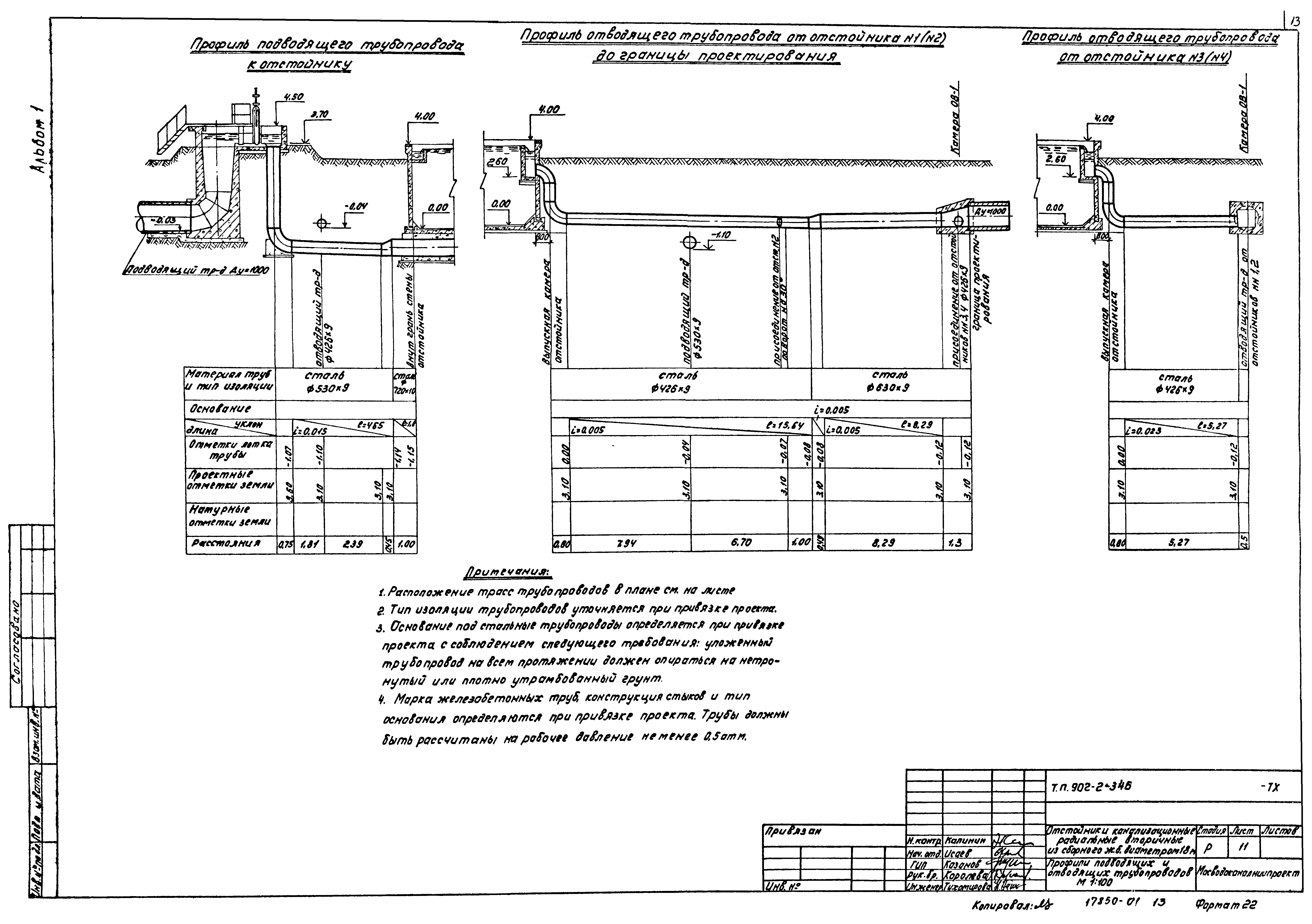
ТП 902-2-346-ТХ Профили подводящих и отводящих трубопроводов М1:100
ТП 902-2-346-ТХ Профили трубопроводов возвратного активного ила М1:100
ТП 902-2-346-ТХ Профили трубопроводов опорожнения М1:100
Разработан: МосводоканалНИИпроект
Утверждён:01.10.1981 МосводоканалНИИпроект (203)
Расположен в:Техническая документация Строительство Справочные документы Типовые строительные конструкции, изделия и узлы Общероссийский строительный каталог Промышленные предприятия, здания и сооружения Здания и сооружения санитарно-технические Канализация Сооружения механической очистки Отстойники Отстойники радиальные вторичные
Типовой проект 902-2-346Типовой проект 902-2-346Типовой проект 902-2-346Типовой проект 902-2-346Типовой проект 902-2-346Типовой проект 902-2-346Типовой проект 902-2-346Типовой проект 902-2-346Типовой проект 902-2-346Типовой проект 902-2-346Типовой проект 902-2-346Типовой проект 902-2-346Типовой проект 902-2-346Типовой проект 902-2-346Типовой проект 902-2-346Типовой проект 902-2-346

© 2013 Ёшкин Кот :-) Карта сайта