| ||||||||||||||||||||||||||||||
Скачать Серия 3.015-2 Выпуск II-3. Сборные железобетонные колонны для эстакад типов IVк; Vк; IVж; Vж. Рабочие чертежиДата актуализации: 10.08.2017
|
| Обозначение: | Серия 3.015-2 |
| Обозначение англ: | Series 3.015-2 |
| Статус: | не действует |
| Название рус.: | Выпуск II-3. Сборные железобетонные колонны для эстакад типов IVк; Vк; IVж; Vж. Рабочие чертежи |
| Дата добавления в базу: | 01.09.2013 |
| Дата актуализации: | 05.05.2017 |
| Дата введения: | 01.10.1974 |
| Дата окончания срока действия: | 01.08.1979 |
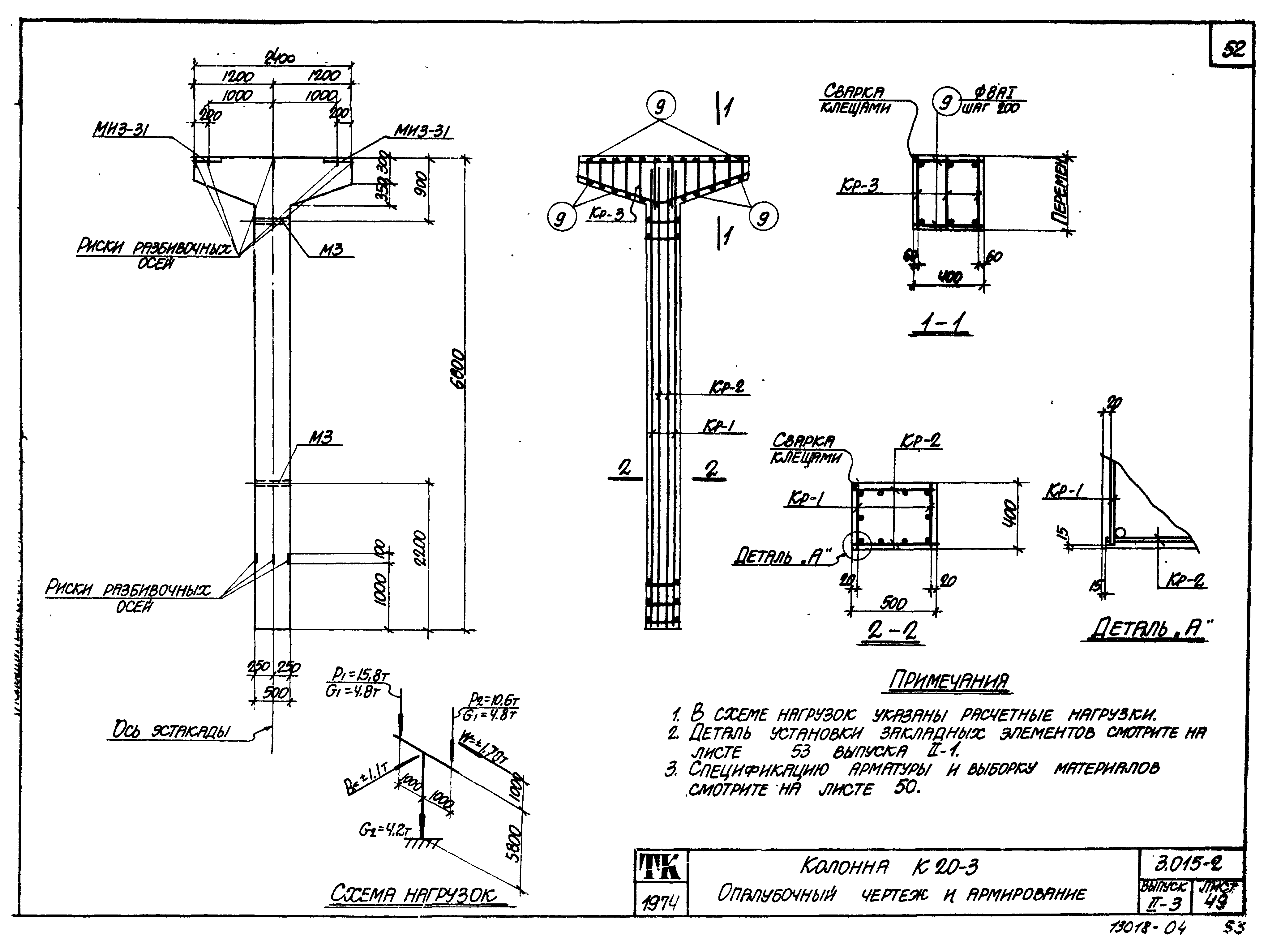
| Оглавление: | 3.015-2 Содержание 3.015-2 Лист 1. Колонна К15-1. Опалубочный чертеж и армирование 3.015-2 Лист 2. Колонна К15-1. Спецификация арматуры и выборка материалов 3.015-2 Лист 3. Колонна К15-2. Опалубочный чертеж и армирование 3.015-2 Лист 4. Колонна К15-2. Спецификация арматуры и выборка материалов 3.015-2 Лист 5. Колонна К15-3. Опалубочный чертеж и армирование 3.015-2 Лист 6. Колонна К15-3. Спецификация арматуры и выборка материалов 3.015-2 Лист 7. Колонна К15-4. Опалубочный чертеж и армирование 3.015-2 Лист 8. Колонна К15-4. Спецификация арматуры и выборка материалов 3.015-2 Лист 9. Колонна К15-5. Опалубочный чертеж и армирование 3.015-2 Лист 10. Колонна К15-5. Спецификация арматуры и выборка материалов 3.015-2 Лист 11. Колонна К15-6. Опалубочный чертеж и армирование 3.015-2 Лист 12. Колонна К15-6. Спецификация арматуры и выборка материалов 3.015-2 Лист 13. Колонна К16-1. Опалубочный чертеж и армирование 3.015-2 Лист 14. Колонна К16-1. Спецификация арматуры и выборка материалов 3.015-2 Лист 15. Колонна К16-2. Опалубочный чертеж и армирование 3.015-2 Лист 16. Колонна К16-2. Спецификация арматуры и выборка материалов 3.015-2 Лист 17. Колонна К16-3. Опалубочный чертеж и армирование 3.015-2 Лист 18. Колонна К16-3. Спецификация арматуры и выборка материалов 3.015-2 Лист 19. Колонна К16-4. Опалубочный чертеж и армирование 3.015-2 Лист 20. Колонна К16-4. Спецификация арматуры и выборка материалов 3.015-2 Лист 21. Колонна К17-1. Опалубочный чертеж и армирование 3.015-2 Лист 22. Колонна К17-1. Спецификация арматуры и выборка материалов 3.015-2 Лист 23. Колонна К18-1. Опалубочный чертеж и армирование 3.015-2 Лист 24. Колонна К18-1. Спецификация арматуры и выборка материалов 3.015-2 Лист 25. Колонна К18-2. Опалубочный чертеж и армирование 3.015-2 Лист 26. Колонна К18-2. Спецификация арматуры и выборка материалов 3.015-2 Лист 27. Колонна К18-3. Опалубочный чертеж и армирование 3.015-2 Лист 28. Колонна К18-3. Спецификация арматуры и выборка материалов 3.015-2 Лист 29. Колонна К18-4. Опалубочный чертеж и армирование 3.015-2 Лист 30. Колонна К18-4. Спецификация арматуры и выборка материалов 3.015-2 Лист 31. Колонна К18-5. Опалубочный чертеж и армирование 3.015-2 Лист 32. Колонна К18-5. Спецификация арматуры и выборка материалов 3.015-2 Лист 33. Колонна К18-6. Опалубочный чертеж и армирование 3.015-2 Лист 34. Колонна К18-6. Спецификация арматуры и выборка материалов 3.015-2 Лист 35. Колонна К19-1. Опалубочный чертеж и армирование 3.015-2 Лист 36. Колонна К19-1. Спецификация арматуры и выборка материалов 3.015-2 Лист 37. Колонна К19-2. Опалубочный чертеж и армирование 3.015-2 Лист 38. Колонна К19-2. Спецификация арматуры и выборка материалов 3.015-2 Лист 39. Колонна К19-3. Опалубочный чертеж и армирование 3.015-2 Лист 40. Колонна К19-3. Спецификация арматуры и выборка материалов 3.015-2 Лист 41. Колонна К19-4. Опалубочный чертеж и армирование 3.015-2 Лист 42. Колонна К19-4. Спецификация арматуры и выборка материалов 3.015-2 Лист 43. Колонна К19-5. Опалубочный чертеж и армирование 3.015-2 Лист 44. Колонна К19-5. Спецификация арматуры и выборка материалов 3.015-2 Лист 45. Колонна К20-1. Опалубочный чертеж и армирование 3.015-2 Лист 46. Колонна К20-1. Спецификация арматуры и выборка материалов 3.015-2 Лист 47. Колонна К20-2. Опалубочный чертеж и армирование 3.015-2 Лист 48. Колонна К20-2. Спецификация арматуры и выборка материалов 3.015-2 Лист 49. Колонна К20-3. Опалубочный чертеж и армирование 3.015-2 Лист 50. Колонна К20-3. Спецификация арматуры и выборка материалов 3.015-2 Лист 51. Колонна К20-4. Опалубочный чертеж и армирование 3.015-2 Лист 52. Колонна К20-4. Спецификация арматуры и выборка материалов 3.015-2 Лист 53. Колонна К20-5. Опалубочный чертеж и армирование 3.015-2 Лист 54. Колонна К20-5. Спецификация арматуры и выборка материалов 3.015-2 Лист 55. Колонна К20-6. Опалубочный чертеж и армирование 3.015-2 Лист 56. Колонна К20-6. Спецификация арматуры и выборка материалов 3.015-2 Лист 57. Колонна К21-1. Опалубочный чертеж и армирование 3.015-2 Лист 58. Колонна К21-1. Спецификация арматуры и выборка материалов 3.015-2 Лист 59. Колонна К21-2. Опалубочный чертеж и армирование 3.015-2 Лист 60. Колонна К21-2. Спецификация арматуры и выборка материалов 3.015-2 Лист 61. Колонна К21-3. Опалубочный чертеж и армирование 3.015-2 Лист 62. Колонна К21-3. Спецификация арматуры и выборка материалов 3.015-2 Лист 63. Колонна К21-4. Опалубочный чертеж и армирование 3.015-2 Лист 64. Колонна К21-4. Спецификация арматуры и выборка материалов 3.015-2 Лист 65. Колонна К21-5. Опалубочный чертеж и армирование 3.015-2 Лист 66. Колонна К21-5. Спецификация арматуры и выборка материалов 3.015-2 Лист 67. Колонна К22-1. Опалубочный чертеж и армирование 3.015-2 Лист 68. Колонна К22-1. Спецификация арматуры и выборка материалов 3.015-2 Лист 69. Колонна К22-2. Опалубочный чертеж и армирование 3.015-2 Лист 70. Колонна К22-2. Спецификация арматуры и выборка материалов 3.015-2 Лист 71. Колонна К23-1. Опалубочный чертеж и армирование 3.015-2 Лист 72. Колонна К23-1. Спецификация арматуры и выборка материалов 3.015-2 Лист 73. Колонна К23-2. Опалубочный чертеж и армирование 3.015-2 Лист 74. Колонна К23-2. Спецификация арматуры и выборка материалов 3.015-2 Лист 75. Колонна К23-3. Опалубочный чертеж и армирование 3.015-2 Лист 76. Колонна К23-3. Спецификация арматуры и выборка материалов 3.015-2 Лист 77. Колонна К23-4. Опалубочный чертеж и армирование 3.015-2 Лист 78. Колонна К23-4. Спецификация арматуры и выборка материалов 3.015-2 Лист 79. Колонна К23-5. Опалубочный чертеж и армирование 3.015-2 Лист 80. Колонна К23-5. Спецификация арматуры и выборка материалов 3.015-2 Лист 81. Колонна К23-6. Опалубочный чертеж и армирование 3.015-2 Лист 82. Колонна К23-6. Спецификация арматуры и выборка материалов 3.015-2 Лист 83. Колонна К23-7. Опалубочный чертеж и армирование 3.015-2 Лист 84. Колонна К23-7. Спецификация арматуры и выборка материалов 3.015-2 Лист 85. Колонна К24-1. Опалубочный чертеж и армирование 3.015-2 Лист 86. Колонна К24-1. Спецификация арматуры и выборка материалов 3.015-2 Лист 87. Колонна К24-2. Опалубочный чертеж и армирование 3.015-2 Лист 88. Колонна К24-2. Спецификация арматуры и выборка материалов 3.015-2 Лист 89. Колонна К24-3. Опалубочный чертеж и армирование 3.015-2 Лист 90. Колонна К24-3. Спецификация арматуры и выборка материалов |
| Разработан: | ЦНИИпромзданий Харьковский Промстройниипроект НИИЖБ |
| Утверждён: | 27.06.1974 Госстрой СССР (Государственный комитет Совета Министров СССР по делам строительства) (USSR Gosstroy 131) |
| Расположен в: | |
| Чем заменён: |






























































































