| ||||||||||||||||||||||||
Скачать Серия 2.230-1 Выпуск 1. Стены каркасно-панельных зданийДата актуализации: 10.08.2017
|
| Обозначение: | Серия 2.230-1 |
| Обозначение англ: | Series 2.230-1 |
| Статус: | не действует |
| Название рус.: | Выпуск 1. Стены каркасно-панельных зданий |
| Дата добавления в базу: | 01.09.2013 |
| Дата актуализации: | 05.05.2017 |
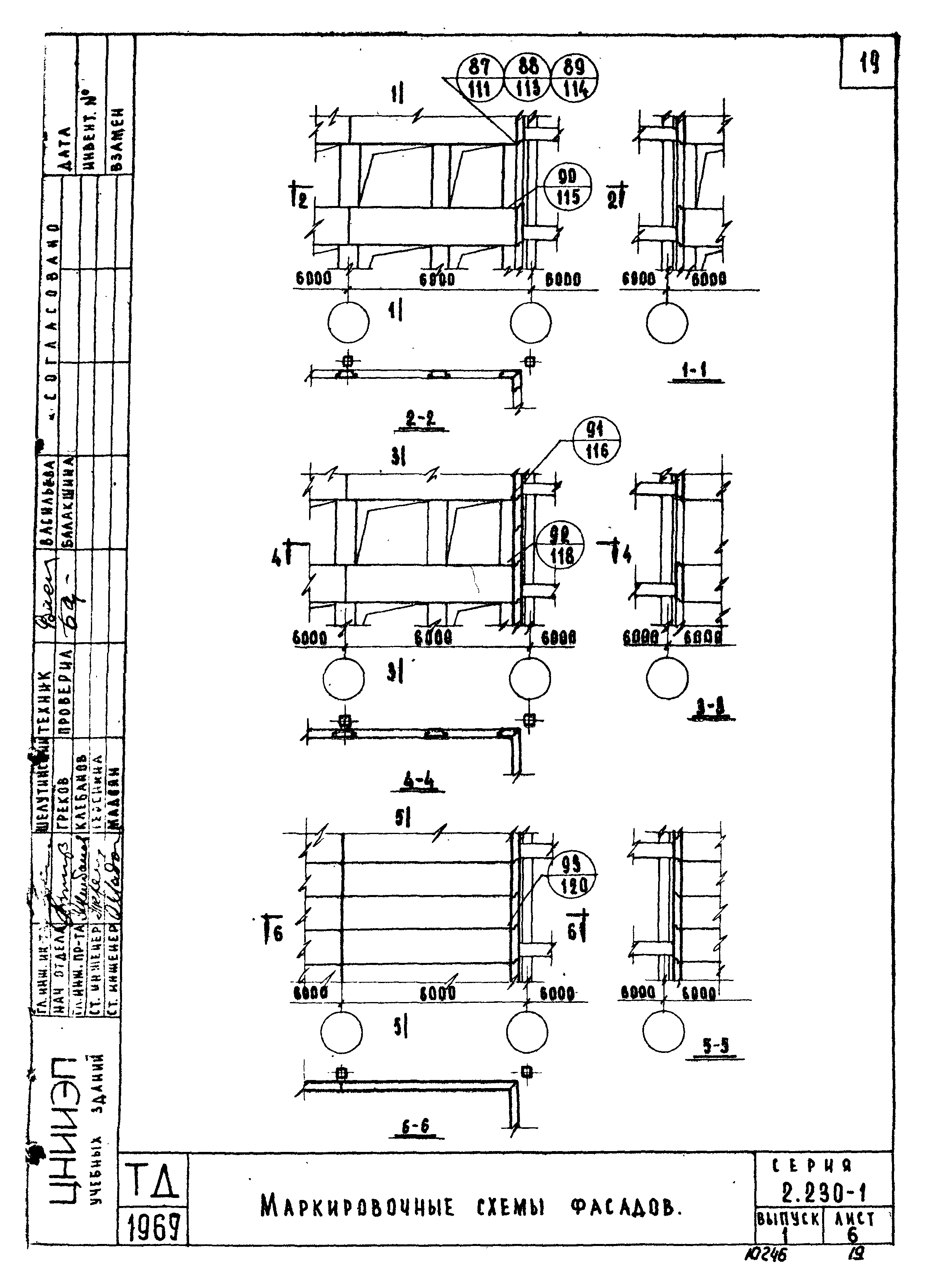
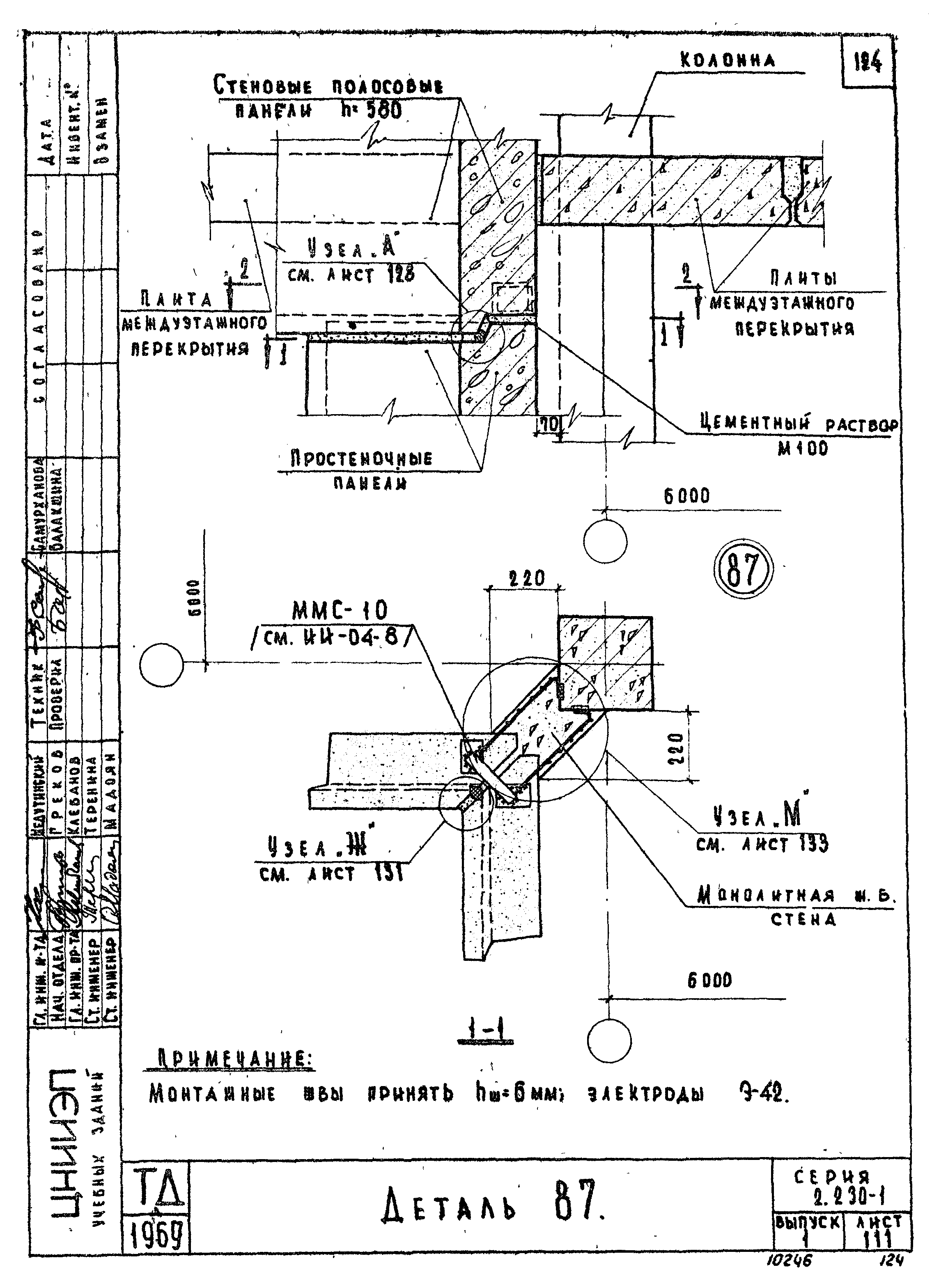
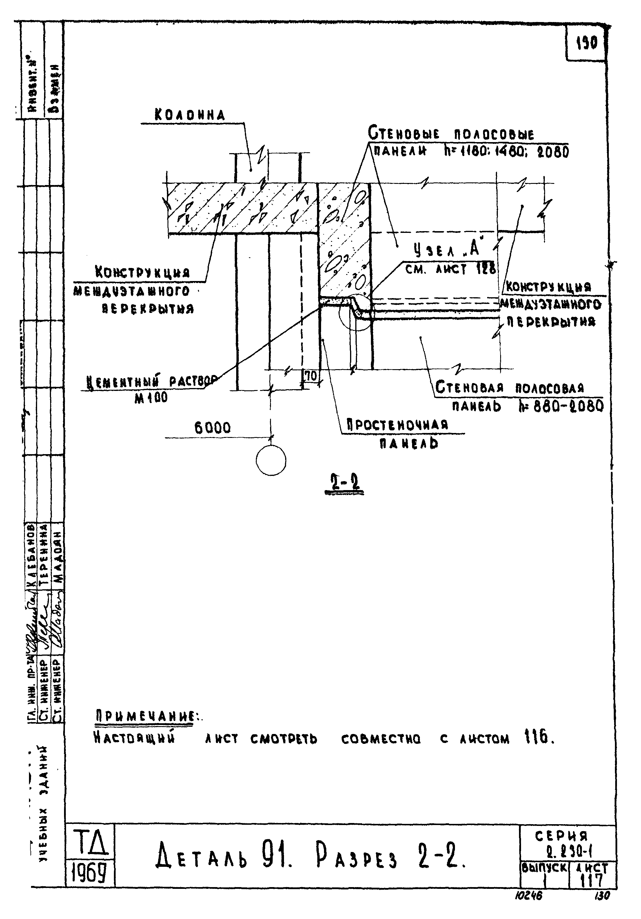
| Оглавление: | 2.230-1 Содержание 2.230-1 Пояснительная записка 2.230-1 Лист 1-6. Маркировочные схемы фасадов 2.230-1 Лист 7. Деталь 1 2.230-1 Лист 8. Деталь 2 2.230-1 Лист 9. Деталь 3 2.230-1 Лист 10. Деталь 4 2.230-1 Лист 11. Деталь 5 2.230-1 Лист 12. Деталь 5. Разрезы 2-2 и 3-3 2.230-1 Лист 13. Деталь 6 2.230-1 Лист 14. Деталь 7 2.230-1 Лист 15. Деталь 8 2.230-1 Лист 16. Деталь 9 2.230-1 Лист 17. Деталь 9. Разрезы 2-2 и 3-3 2.230-1 Лист 18. Деталь 10. 2.230-1 Лист 19. Деталь 10. Разрезы 2-2 и 3-3 2.230-1 Лист 20. Деталь 11 2.230-1 Лист 21. Деталь 12 2.230-1 Лист 22. Деталь 13 2.230-1 Лист 23. Деталь 13. Разрезы 2-2 и- 3-3 2.230-1 Лист 24. Деталь 14 2.230-1 Лист 25. Деталь 14. Разрезы 2-2 и 3-3 2.230-1 Лист 26. Деталь 15. 2.230-1 Лист 27. Деталь 16. 2.230-1 Лист 28. Деталь 17. 2.230-1 Лист 29. Деталь 17. Разрезы 2-2 и 3-3 2.230-1 Лист 30. Деталь 18. 2.230-1 Лист 31. Деталь 18. Разрезы 2-2 и 3-3 2.230-1 Лист 32. Деталь 19. 2.230-1 Лист 33. Деталь 20. 2.230-1 Лист 34. Деталь 21. 2.230-1 Лист 35. Деталь 22. 2.230-1 Лист 36. Деталь 23. 2.230-1 Лист 37. Деталь 24. 2.230-1 Лист 38. Деталь 25. 2.230-1 Лист 39. Деталь 26. 2.230-1 Лист 40. Деталь 26. Разрезы 2-2 и 3-3 2.230-1 Лист 41. Деталь 27. 2.230-1 Лист 42. Деталь 28. 2.230-1 Лист 43. Деталь 29. 2.230-1 Лист 44. Деталь 30. 2.230-1 Лист 45. Деталь 31. 2.230-1 Лист 46. Деталь 32. 2.230-1 Лист 47. Деталь 33. 2.230-1 Лист 48. Деталь 34. 2.230-1 Лист 49. Деталь 35. 2.230-1 Лист 50. Деталь 36. 2.230-1 Лист 51. Деталь 37. 2.230-1 Лист 52. Деталь 38. 2.230-1 Лист 53. Деталь 39. 2.230-1 Лист 54. Деталь 40. 2.230-1 Лист 55. Деталь 41. 2.230-1 Лист 56. Деталь 41. Разрезы 2-2 и 3-3 2.230-1 Лист 57. Деталь 42. 2.230-1 Лист 58. Деталь 42. Разрезы 2.230-1 Лист 59. Деталь 43. 2.230-1 Лист 60. Деталь 43. Разрезы 2-2 и 3-3 2.230-1 Лист 61. Деталь 44. 2.230-1 Лист 62. Деталь 45. 2.230-1 Лист 63. Деталь 46. 2.230-1 Лист 64. Деталь 47. 2.230-1 Лист 65. Деталь 48. 2.230-1 Лист 66. Деталь 49. 2.230-1 Лист 67. Деталь 50. 2.230-1 Лист 68. Деталь 51. 2.230-1 Лист 69. Деталь 52. 2.230-1 Лист 70. Деталь 53. 2.230-1 Лист 71. Деталь 54. 2.230-1 Лист 72. Деталь 55. 2.230-1 Лист 73. Деталь 56. 2.230-1 Лист 74. Деталь 57. 2.230-1 Лист 75. Деталь 58. 2.230-1 Лист 76. Деталь 59. 2.230-1 Лист 77. Деталь 60. 2.230-1 Лист 78. Деталь 61. 2.230-1 Лист 79. Деталь 62. 2.230-1 Лист 80. Деталь 63. 2.230-1 Лист 81. Деталь 64. 2.230-1 Лист 82. Деталь 65. 2.230-1 Лист 83. Деталь 66. 2.230-1 Лист 84. Деталь 67. 2.230-1 Лист 85. Деталь 68. 2.230-1 Лист 86. Деталь 69. 2.230-1 Лист 87. Деталь 69. Разрез 3-3 2.230-1 Лист 88. Деталь 70. 2.230-1 Лист 89. Деталь 71. 2.230-1 Лист 90. Деталь 72. 2.230-1 Лист 91. Деталь 73. 2.230-1 Лист 92. Деталь 74. 2.230-1 Лист 93. Деталь 74. Разрез 3-3 2.230-1 Лист 94. Деталь 75. 2.230-1 Лист 95. Деталь 76. 2.230-1 Лист 96. Деталь 77. 2.230-1 Лист 97. Деталь 78. 2.230-1 Лист 98. Деталь 78. Разрез 3-3 2.230-1 Лист 99. Деталь 79. 2.230-1 Лист 100. Деталь 79. Разрез 3-3 2.230-1 Лист 101. Деталь 80. 2.230-1 Лист 102. Деталь 81. 2.230-1 Лист 103. Деталь 82. 2.230-1 Лист 104. Деталь 83. 2.230-1 Лист 105. Деталь 84. 2.230-1 Лист 106. Деталь 84. Разрез 3-3 2.230-1 Лист 107. Деталь 85. 2.230-1 Лист 108. Деталь 85. Разрез 3-3 2.230-1 Лист 109. Деталь 86. 2.230-1 Лист 110. Деталь 86. Разрез 2-2 2.230-1 Лист 111. Деталь 87. 2.230-1 Лист 1112. Деталь 87. Разрез 2-2 и 3-3 2.230-1 Лист 113. Деталь 88. 2.230-1 Лист 114. Деталь 89. 2.230-1 Лист 115. Деталь 90. 2.230-1 Лист 116. Деталь 91. 2.230-1 Лист 117. Деталь 91. 2.230-1 Лист 118. Деталь 92. 2.230-1 Лист 119. Деталь 92. Разрез 2-2 . 2.230-1 Лист 120. Деталь 93. 2.230-1 Лист 121. Деталь 94. 2.230-1 Лист 122. Деталь 95. 2.230-1 Лист 123. Деталь 96. 2.230-1 Лист 124. Деталь 96. Разрез 2-2 2.230-1 Лист 125. Деталь 97. 2.230-1 Лист 126. Деталь 97. Разрез 2-2 2.230-1 Лист 127. Деталь 98. 2.230-1 Лист 128. Узлы "A" и "Б" 2.230-1 Лист 129. Узел "В" . 2.230-1 Лист 130. Узлы "Г" и "Д" 2.230-1 Лист 131. Узлы "Е", "Ж" , "И" 2.230-1 Лист 132. Узел "К" 2.230-1 Лист 133. Узел "М" 2.230-1 Лист 134. Монтажные металлические детали 2.230-1 Лист 135. Монтажные металлические детали |
| Разработан: | ЦНИИЭП учебных зданий Госгражданстроя |
| Утверждён: | 01.08.1969 Государственный комитет по гражданскому строительству (161) |
| Расположен в: |

















































































































































