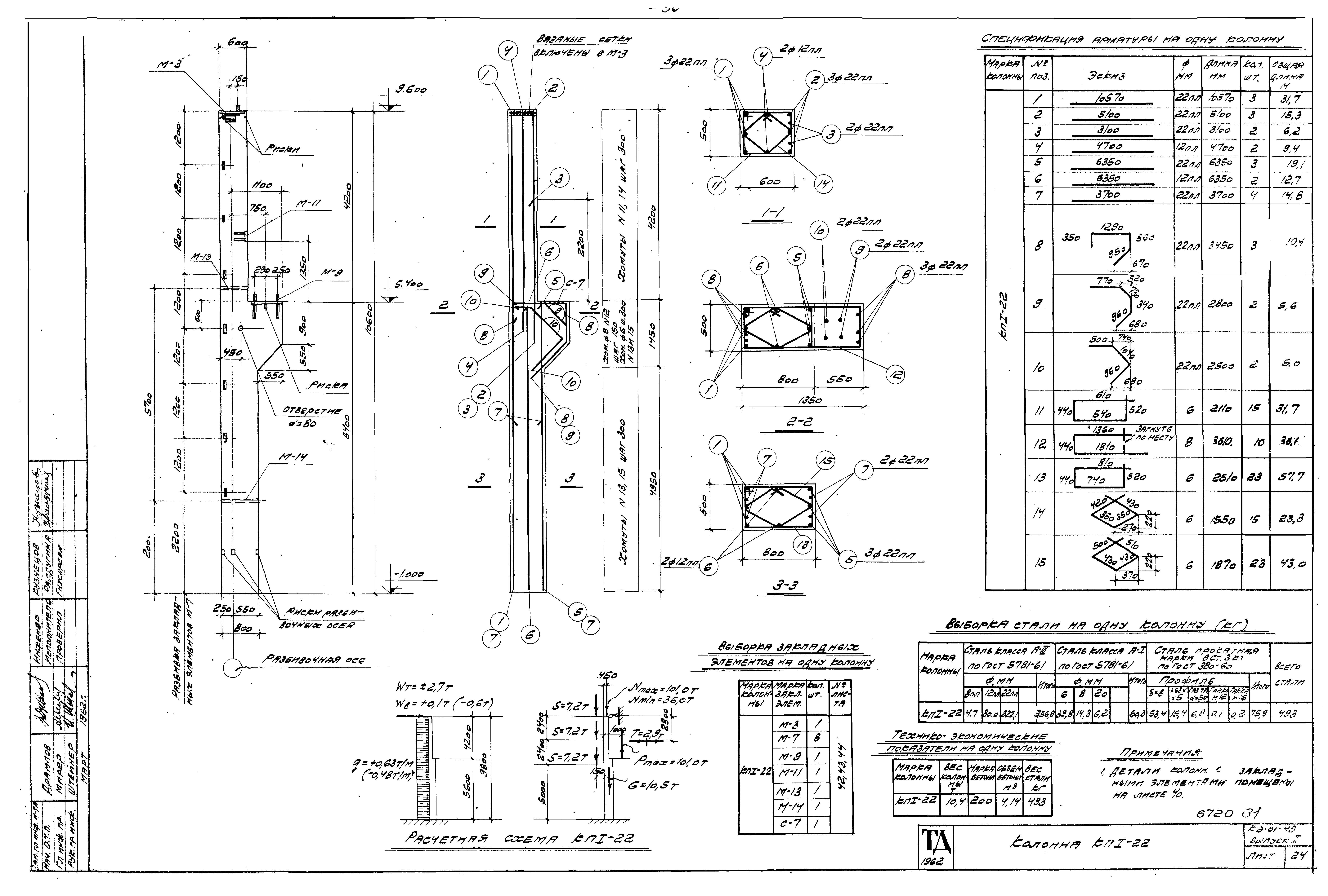
Скачать Серия КЭ-01-49 Выпуск I. Рабочие чертежи колонн для зданий с пролетами 18 и 24 м, оборудованных кранами грузоподъемностью 10 и 20 т при шаге крайних и средних колонн 6 и 12 мДата актуализации: 10.08.2017 Серия КЭ-01-49
Выпуск I. Рабочие чертежи колонн для зданий с пролетами 18 и 24 м, оборудованных кранами грузоподъемностью 10 и 20 т при шаге крайних и средних колонн 6 и 12 мОбозначение: | Серия КЭ-01-49 | Обозначение англ: | Series КЭ-01-49 | Статус: | не действует | Название рус.: | Выпуск I. Рабочие чертежи колонн для зданий с пролетами 18 и 24 м, оборудованных кранами грузоподъемностью 10 и 20 т при шаге крайних и средних колонн 6 и 12 м | Дата добавления в базу: | 01.09.2013 | Дата актуализации: | 05.05.2017 | Дата окончания срока действия: | 01.02.1984 | Разработан: | Промстройпроект Госстроя СССР НИИЖБ
| Утверждён: | 25.08.1962 Госстрой СССР (Государственный комитет Совета Министров СССР по делам строительства) (USSR Gosstroy 247)
| Расположен в: |
| Чем заменён: | |
                                                               
|