| ||||||||||||||||||||||||
Скачать Серия КЭ-01-06 Выпуск III. Сборные железобетонные колонны одноэтажных производственных зданий. Рабочие чертежиДата актуализации: 10.08.2017
|
| Обозначение: | Серия КЭ-01-06 |
| Обозначение англ: | Series КЭ-01-06 |
| Статус: | не действует |
| Название рус.: | Выпуск III. Сборные железобетонные колонны одноэтажных производственных зданий. Рабочие чертежи |
| Дата добавления в базу: | 01.09.2013 |
| Дата актуализации: | 05.05.2017 |
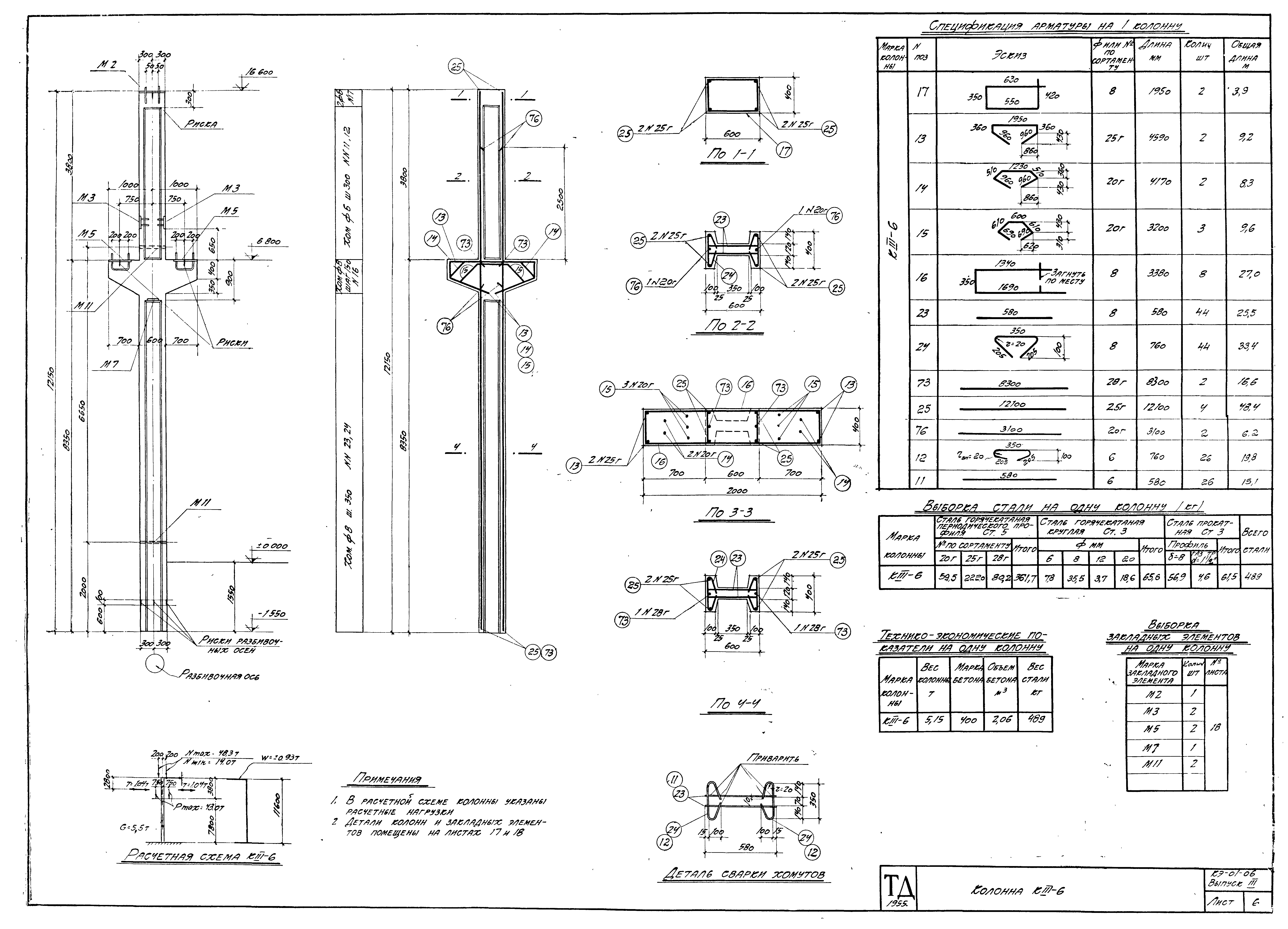
| Оглавление: | КЭ-01-06 Пояснительная записка КЭ-01-06 Лист 1. Колонна К111-1 КЭ-01-06 Лист 2. Колонна К111-2 КЭ-01-06 Лист 3. Колонна К111-3 КЭ-01-06 Лист 4. Колонна К111-4 КЭ-01-06 Лист 5. Колонна К111-5 КЭ-01-06 Лист 6. Колонна К111-6 КЭ-01-06 Лист 7. Колонна К111-7 КЭ-01-06 Лист 8. Колонна К111-8 КЭ-01-06 Лист 9. Колонна К111-9 КЭ-01-06 Лист 10. Колонна К111-10 КЭ-01-06 Лист 11. Колонна К111-11 КЭ-01-06 Лист 12. Колонна К111-12 КЭ-01-06 Лист 13. Колонна К111-13 КЭ-01-06 Лист 14. Колонна К111-14 КЭ-01-06 Лист 15. Колонна К111-15 КЭ-01-06 Лист 16. Колонна К111-16 КЭ-01-06 Лист 17. Детали колонн и закладных элементов КЭ-01-06 Лист 18. Закладные элементы М1-М12 КЭ-01-06 Лист 19. Закладные элементы М13 в колоннах К111-2а, 4а, 6а, 8а, 10а, 12а, 14а, 16а. Закладные элементы М14 в колоннах с К111-1Б по К111-16Б КЭ-01-06 Лист 20. Ключ к вертикальным связям по колоннам. Примерный схематический план цеха с размещением вертикальных связей КЭ-01-06 Лист 21. Вертикальные связи по колоннам М15 и М16 КЭ-01-06 Лист 22. Вертикальные связи по колоннам М17 и М18 КЭ-01-06 Лист 23. Нагрузки на фундаменты. Ключ к железобетонным колоннам |
| Разработан: | Промстройпроект |
| Утверждён: | 15.05.1956 Госстрой СССР (Государственный комитет Совета Министров СССР по делам строительства) (USSR Gosstroy ) |
| Расположен в: |





























