Информационная система
«Ёшкин Кот»
Скачать базу одним архивом
Скачать обновления
История создания базы
Карта сайта
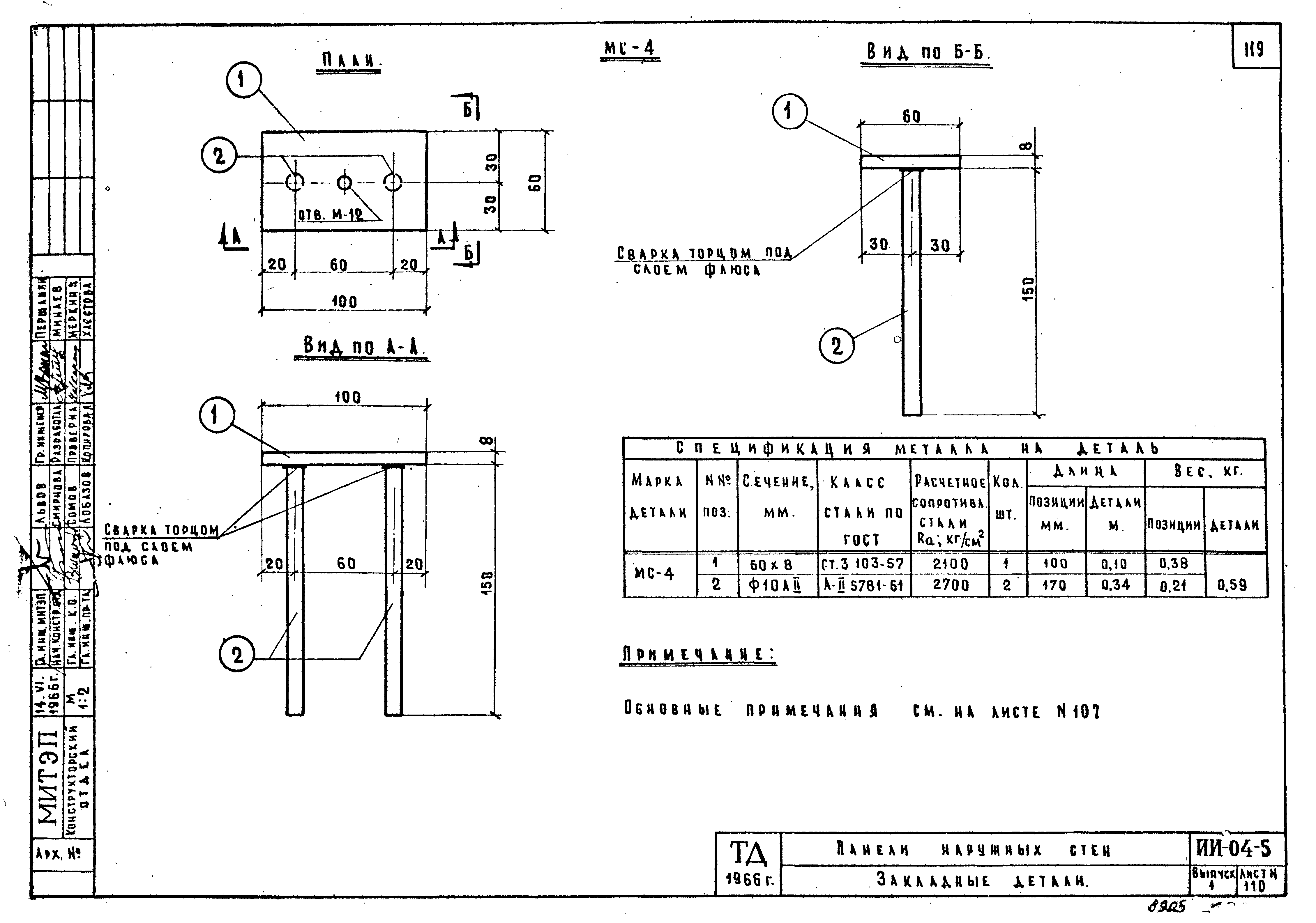
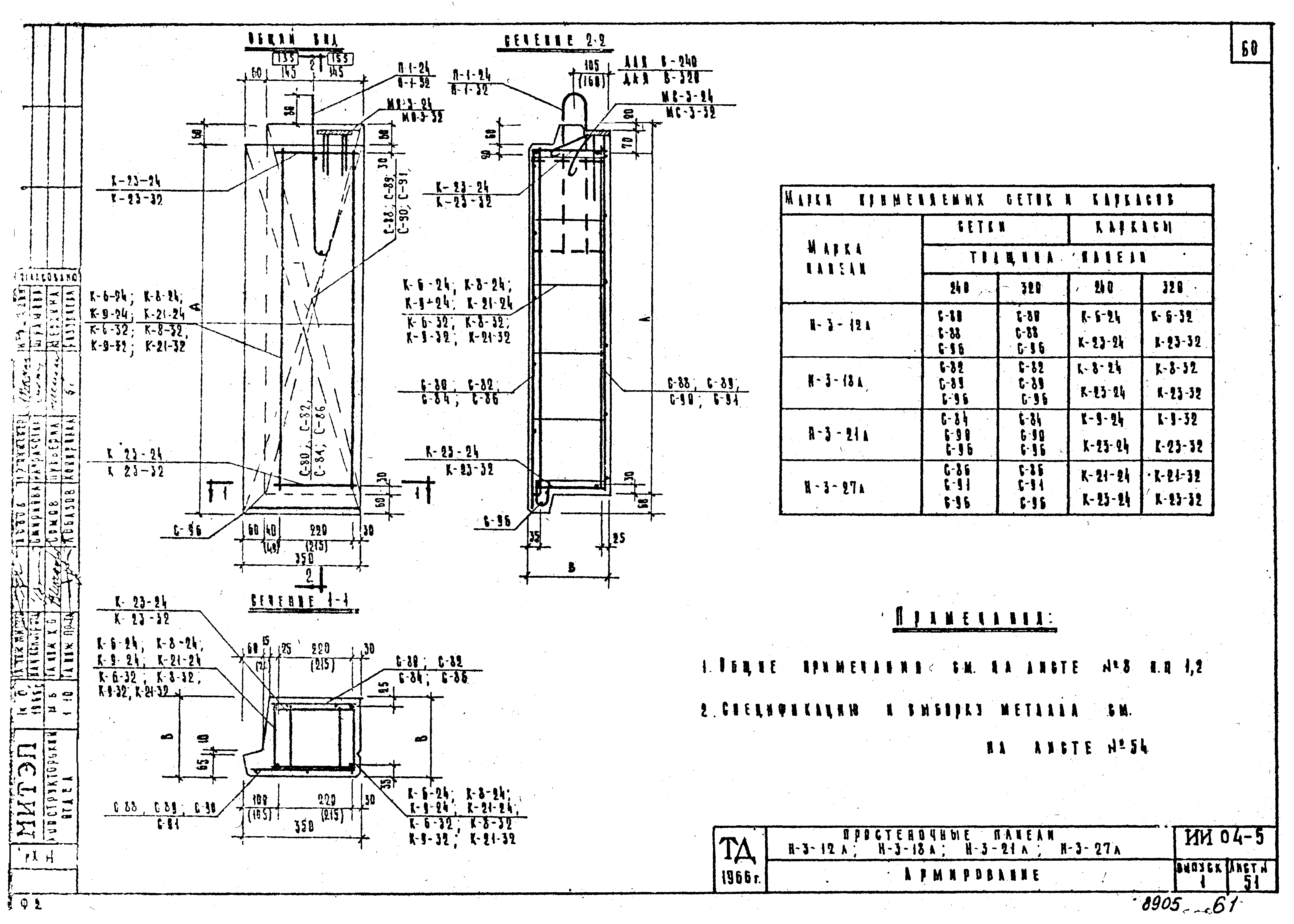
Скачать Серия ИИ-04-5 Выпуск 1. Керамзитобетонные панели стен толщиной 24 см и 32 см
Дата актуализации: 10.08.2017
Серия ИИ-04-5
Выпуск 1. Керамзитобетонные панели стен толщиной 24 см и 32 см
Обозначение:
Серия ИИ-04-5
Обозначение англ:
Series ИИ-04-5
Статус:
не действует
Название рус.:
Выпуск 1. Керамзитобетонные панели стен толщиной 24 см и 32 см
Дата добавления в базу:
01.09.2013
Дата актуализации:
05.05.2017
Дата введения:
01.02.1967
Дата окончания срока действия:
01.04.1982
Разработан:
МИТЭП ГАПУ
Утверждён:
31.12.1966 Государственный комитет по гражданскому строительству
(206)
Расположен в:
Техническая документация
Строительство
Справочные документы
Типовые строительные конструкции, изделия и узлы
Общероссийский строительный каталог
Строительные конструкции, изделия и узлы зданий и сооружений для всех видов строительства
Конструкции, изделия и узлы зданий
Несущие конструкции двухэтажных и многоэтажных зданий
Каркасные здания
Чем заменён:
Серия 1.020-1 «Конструкции каркаса межвидового применения для многоэтажных общественных и производственных зданий (на основе серии ИИ-04)»
© 2013 Ёшкин Кот :-)
Карта сайта