| ||||||||||||||||||||||||
Скачать Серия ПК-01-17 Выпуск II. Подстропильные балки для крановых и бескрановых цехов без подвесного транспортного оборудования. Рабочие чертежиДата актуализации: 10.08.2017
|
| Обозначение: | Серия ПК-01-17 |
| Обозначение англ: | Series ПК-01-17 |
| Статус: | не действует |
| Название рус.: | Выпуск II. Подстропильные балки для крановых и бескрановых цехов без подвесного транспортного оборудования. Рабочие чертежи |
| Дата добавления в базу: | 01.09.2013 |
| Дата актуализации: | 05.05.2017 |
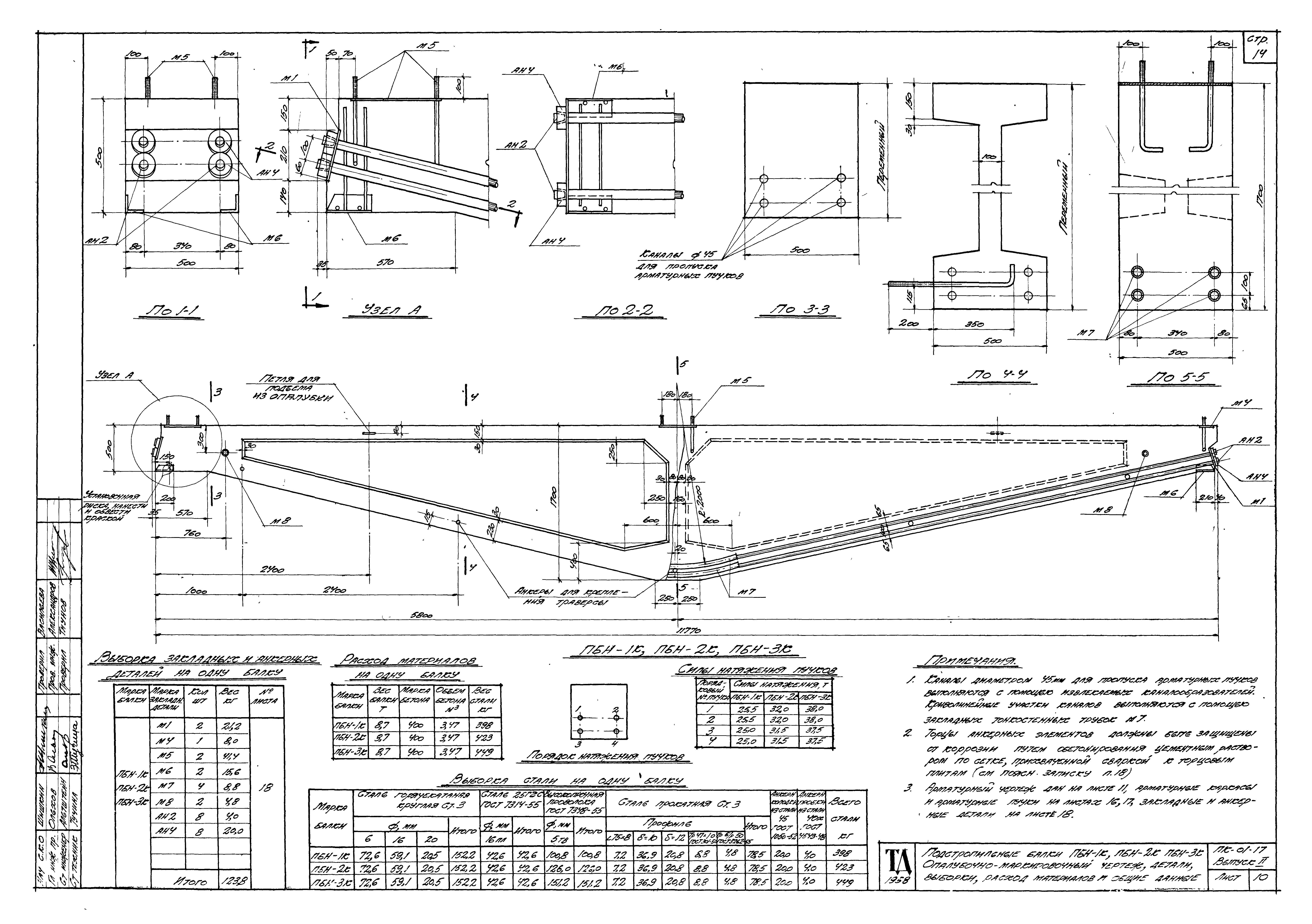
| Оглавление: | ПК-01-17 Пояснительная записка ПК-01-17 Лист 1. Пример схемы конструкций покрытия ПК-01-17 Лист 2. Узлы опирания стропильных и подстропильных конструкций ПК-01-17 Лист 3. Пример решения продольного температурного шва с применением катковых опор ПК-01-17 Лист 4. Подстропильные балки ПБН-1,ПБН-2,ПБН-3. Опалубочно-маркировочный чертеж, детали, выборки, расход материалов и общие данные ПК-01-17 Лист 5. Подстропильные балки ПБН-1,ПБН-2,ПБН-3. Арматурный чертеж ПК-01-17 Лист 6. Подстропильные балки ПБН-4,ПБН-5. Опалубочно-маркировочный чертеж, детали, выборки, расход материалов и общие данные ПК-01-17 Лист 7. Подстропильные балки ПБН-4,ПБН-5. Арматурный чертеж ПК-01-17 Лист 8. Подстропильные балки ПБН-6,ПБН-7. Опалубочно-маркировочный чертеж, детали, выборки, расход материалов и общие данные ПК-01-17 Лист 9. Подстропильные балки ПБН-6,ПБН-7. Арматурный чертеж ПК-01-17 Лист 10. Подстропильные балки ПБН-1К,ПБН-2К,ПБН-3К. Опалубочно-маркировочный чертеж, детали, выборки, расход материалов и общие данные ПК-01-17 Лист 11. Подстропильные балки ПБН-1К,ПБН-2К,ПБН-3К. Арматурный чертеж ПК-01-17 Лист 12. Подстропильные балки ПБН-4К,ПБН-5К. Опалубочно-маркировочный чертеж, детали, выборки, расход материалов и общие данные ПК-01-17 Лист 13. Подстропильные балки ПБН-4К,ПБН-5К. Арматурный чертеж ПК-01-17 Лист 14. Подстропильные балки ПБН-6К,ПБН-7К. Опалубочно-маркировочный чертеж, детали, выборки, расход материалов и общие данные ПК-01-17 Лист 15. Подстропильные балки ПБН-6К,ПБН-7К. Арматурный чертеж ПК-01-17 Лист 16. Арматурные каркасы с К-1 по К-9,К-12,К-13 ПК-01-17 Лист 17. Арматурный каркас с К-10,К-11. Арматурные пучки с ПН1 по ПН3 и спецификация ПК-01-17 Лист 18. Закладные детали М1 по М8 и анкерные детали АН2,АН4 ПК-01-17 Лист 19. Опоры 01,02. Марки С1 и С2 ПК-01-17 Лист 20. Опоры 01,02,03. Марки С3,К1,К2,К3,П1,П2,П3, выборка марок и расход стали |
| Разработан: | Промстройпроект Госстроя СССР НИИЖБ |
| Утверждён: | 31.03.1958 Госстрой СССР (Государственный комитет Совета Министров СССР по делам строительства) (USSR Gosstroy 111) |
| Расположен в: |

























