| ||||||||||||||||||||||||
Скачать Серия ПК-01-17 Выпуск I. Подстропильные балки для бескрановых цехов с подвесным транспортным оборудованием. Рабочие чертежиДата актуализации: 10.08.2017
|
| Обозначение: | Серия ПК-01-17 |
| Обозначение англ: | Series ПК-01-17 |
| Статус: | не действует |
| Название рус.: | Выпуск I. Подстропильные балки для бескрановых цехов с подвесным транспортным оборудованием. Рабочие чертежи |
| Дата добавления в базу: | 01.09.2013 |
| Дата актуализации: | 05.05.2017 |
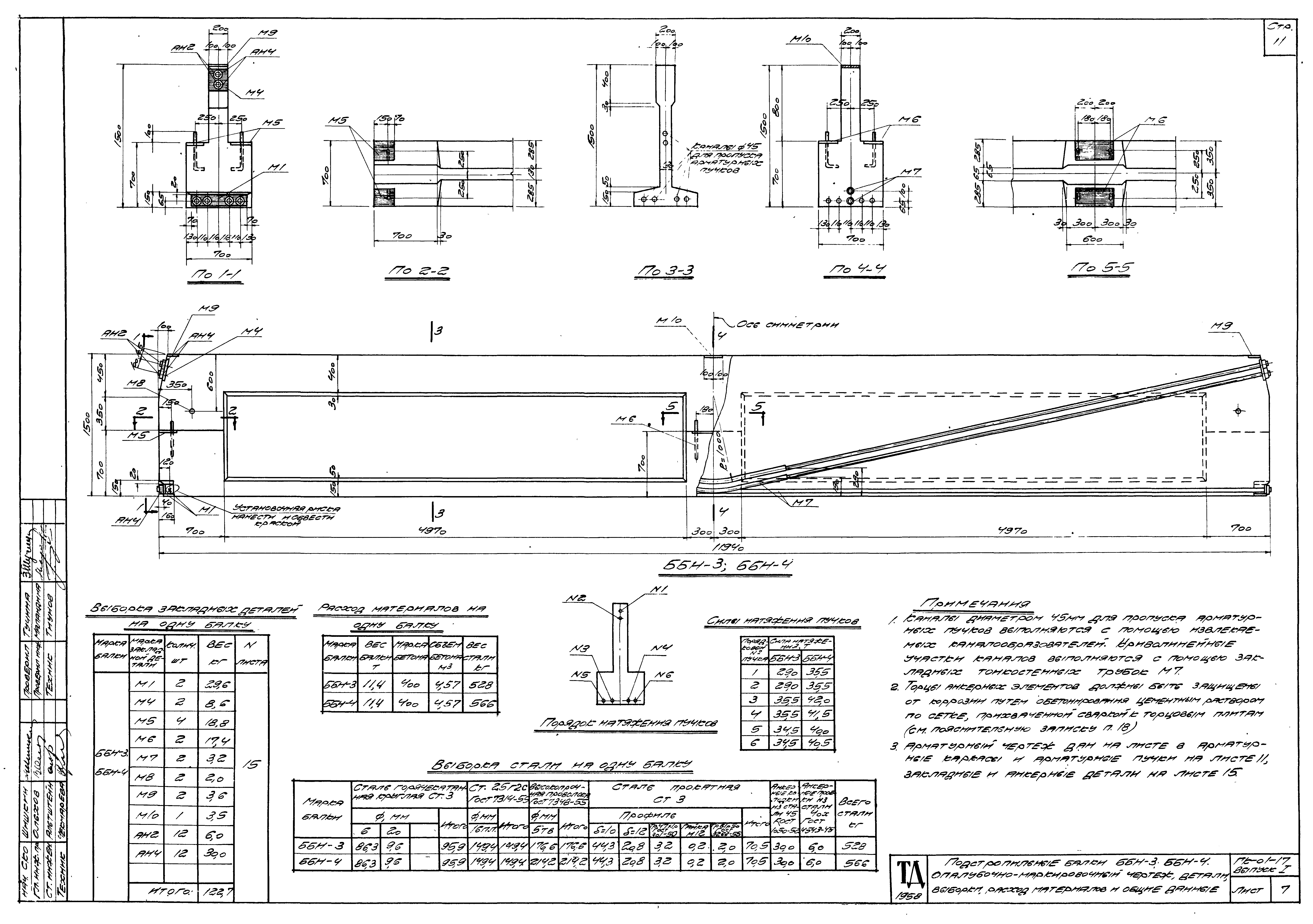
| Оглавление: | ПК-01-17 Пояснительная записка ПК-01-17 Лист 1. Пример схемы конструкций покрытия ПК-01-17 Лист 2. Узлы опирания стропильных и подстропильных балок ПК-01-17 Лист 3. Подстропильная балка ББН-1. Опалубочно-маркировочный чертеж, детали, выборки, расход материалов и общие данные ПК-01-17 Лист 4. Подстропильная балка ББН-1. Арматурный чертеж ПК-01-17 Лист 5. Подстропильная балка ББН-2. Опалубочно-маркировочный чертеж детали, выборки, расход материалов и общие данные ПК-01-17 Лист 6. Подстропильная балка ББН-2. Арматурный чертеж ПК-01-17 Лист 7. Подстропильные балки ББН-3,ББН-4. Опалубочно-маркировочный чертеж, детали, выборки, расход материалов и общие данные ПК-01-17 Лист 8. Подстропильные балки ББН-3,ББН-4. Арматурный чертеж ПК-01-17 Лист 9. Подстропильные балки ББН-5,ББН-6. Опалубочно-маркировочный чертеж, детали, выборки, расход материалов и общие данные ПК-01-17 Лист 10. Подстропильные балки ББН-5,ББН-6. Арматурный чертеж ПК-01-17 Лист 11. Арматурные каркасы с К-1 по К-8, арматурные пучки с ПН1 по ПН3, спецификация ПК-01-17 Лист 12. Подстропильные балки ББН-1К,ББН-2К,ББН-3К,ББН-4К,ББН-5К,ББН-6К. Детали, выборки, расход материалов и общие данные ПК-01-17 Лист 13. Подстропильные балки ББН-3А,ББН-4А,ББН-5А,ББН-6А. Детали, выборки, расход материалов и общие данные ПК-01-17 Лист 14. Подстропильные балки ББН-3АК,ББН-4АК,ББН-5АК,ББН-6АК. Детали, выборки, расход материалов и общие данные ПК-01-17 Лист 15. Закладные детали с М1 по М11 и анкерные детали АН2,АН4 |
| Разработан: | Промстройпроект Госстроя СССР НИИЖБ |
| Утверждён: | 31.03.1958 Госстрой СССР (Государственный комитет Совета Министров СССР по делам строительства) (USSR Gosstroy 111) |
| Расположен в: |




















