| ||||||||||||||||||||||||||||||
Скачать Серия РС 32301 Рабочие чертежиДата актуализации: 10.08.2017
|
| Обозначение: | Серия РС 32301 |
| Обозначение англ: | Series РС 32301 |
| Статус: | не определен законодательством |
| Название рус.: | Рабочие чертежи |
| Дата добавления в базу: | 01.09.2013 |
| Дата актуализации: | 05.05.2017 |
| Дата введения: | 29.02.1988 |
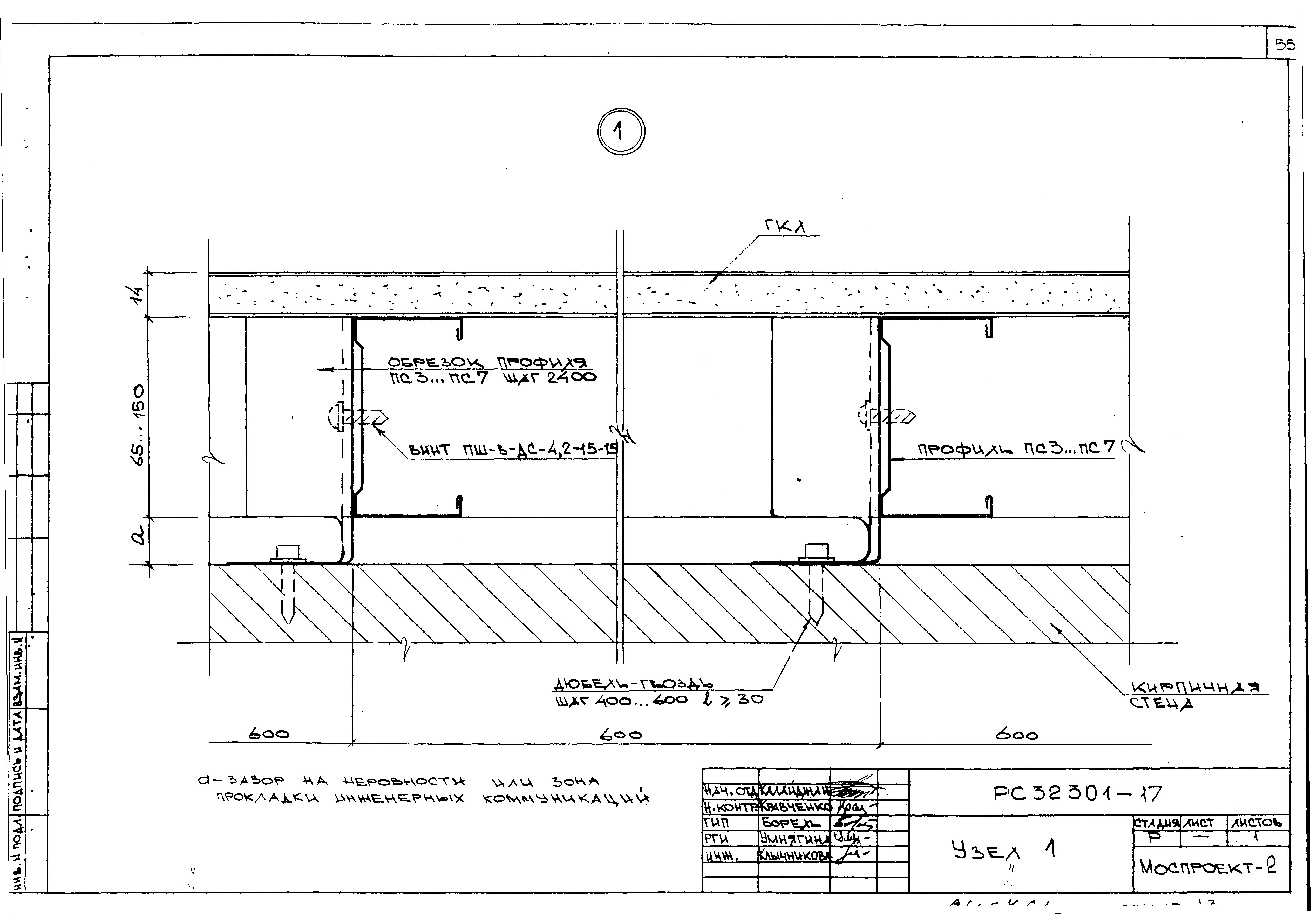
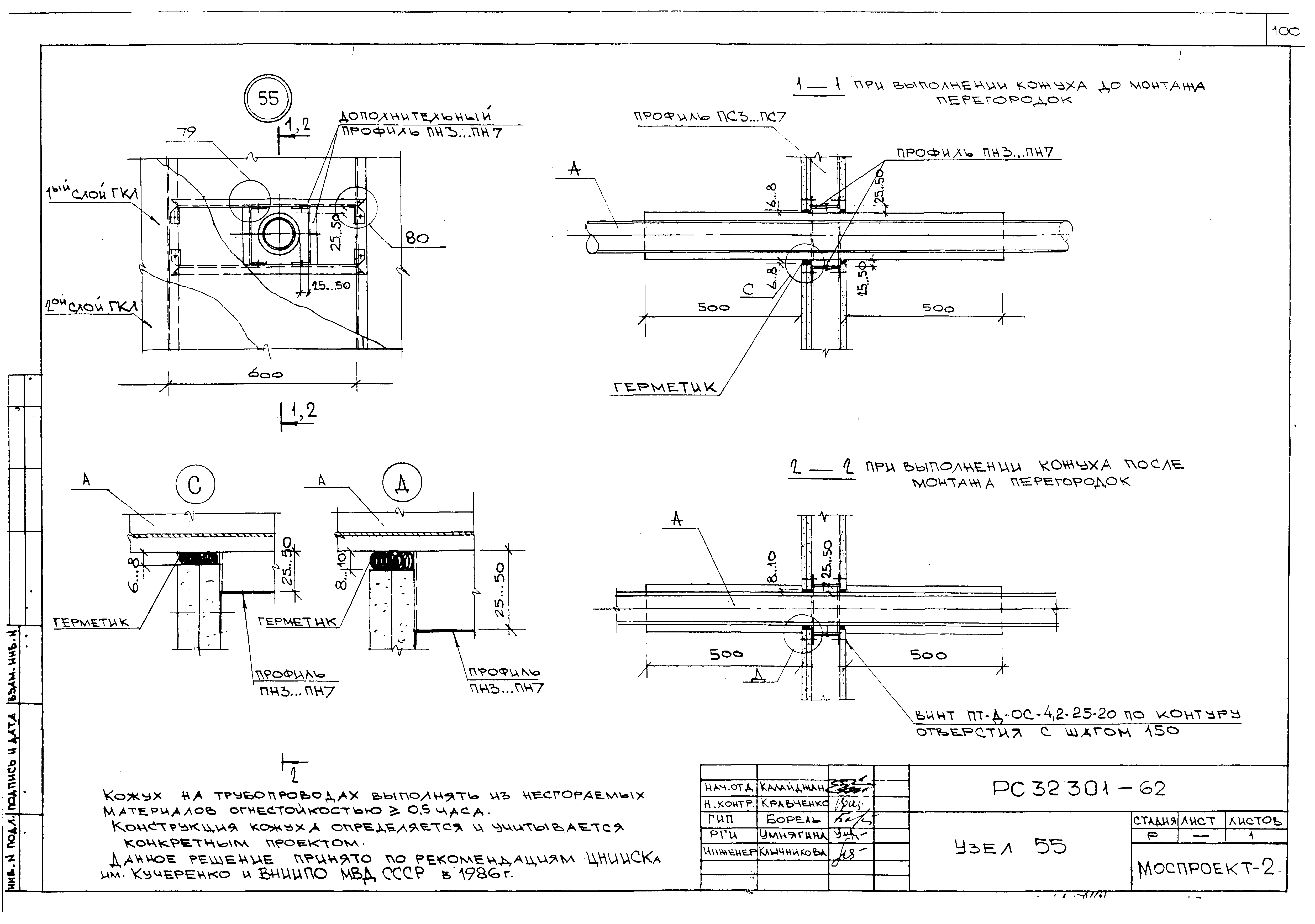
| Область применения: | Серия содержит рабочие чертежи перегородок поэлементной сборки из гипсокартонных листов на металлическом каркасе для жилых, общественных и промышленных зданий с высотой этажа 2,8, 3,0, 3,3, 3,6, 4,2, 4,8, 6,0, 7,2 м, при этом для промышленных зданий предусматриваются высоты этажей 4,2, 4,8, 6,0 и 7,2 м |
| Разработан: | Моспроект-2 Главмосархитектуры |
| Утверждён: | 31.05.1988 Исполком Моссовета (Mossoviet Ispolkom 1195) |
| Принят: | 14.12.1987 Госстрой СССР (Государственный комитет Совета Министров СССР по делам строительства) (USSR Gosstroy 6/6-4489) |
| Расположен в: | |
| Заменяет собой: |
|





































































































































